LIFULL HOME'Sは物件鮮度No.1!※評価について
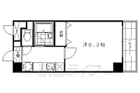
ハウスセゾン四条通(11階/1106/1K/26.23m²)
ハウスセゾン四条通(11階/1106/1K/26.23m²)
6.8万円/管理費等9,700円
11時間前 更新
画像一覧
1/30間取り
間取
2/30外観
3/30外観
4/30リビング/ダイニング
5/30室内
6/30室内
7/30室内
8/30室内
9/30キッチン
10/30キッチン
11/30キッチン
12/30浴室
13/30浴室
14/30浴室
15/30トイレ
16/30洗面
17/30洗面
18/30収納
19/30収納
20/30収納
21/30収納
22/30収納
23/30設備
24/30設備
25/30設備
26/30設備
27/30設備
28/30玄関
29/30バルコニー
30/30周辺
ファミリーマート四条西洞院店まで80m
間取り
外観
外観
リビング/ダイニング
室内
室内
室内
室内
キッチン
キッチン
キッチン
浴室
浴室
浴室
トイレ
洗面
洗面
収納
収納
収納
収納
収納
設備
設備
設備
設備
設備
玄関
バルコニー
周辺
LINEチャットでも
相談できます
お問合せ先 :ウインズリンク株式会社 アパマンショップ四条烏丸店
1〜3月は引越しシーズンのピークです。お問合せはお早めに!
仲介手数料割引
仲介手数料50%(税別、個人居住用に限り)
- 利用条件
- ウインズリンク株式会社 アパマンショップ四条烏丸店で利用可
- 他特典との併用可
利用方法
来店時に本特典の画面をスマートフォンやタブレットでスタッフに提示、または画面印刷した用紙を提示ください。
有効期限 なし
四条エリアのオススメ1K 四条駅まで徒歩7分のオススメ立地
基本情報
不動産用語- 賃料
- 6.8万円
- 管理費等
- 9,700円
初期費用などお気軽にお問合せください
- 敷金/礼金
- 無/6.8万円
- 保証金/敷引・償却金
- -/-
- 交通
京都市営烏丸線 四条駅 徒歩7分
阪急京都本線 烏丸駅 徒歩7分
- 所在地
京都府京都市下京区四条通油小路東入傘鉾町
地図を見る- 築年月
- 2006年2月(築21年)
- 主要採光面
- 東
- 専有面積
- 26.23㎡
- バルコニー面積
- -
- 所在階/階数
- 11階/16階建
入居可能日などお気軽にお問合せください
- 現況
- 賃貸中
- 入居可能時期
- 2026年05月 中旬

人気物件はすぐに埋まってしまいます。
気になったらお早めにお問合せください。
- 情報公開日
2026/03/01
4日前 公開
- 情報更新日
2026/03/05
11時間前 更新
- 次回更新
予定日 - 2026/03/18
物件のこだわり/設備・条件
新築(非該当)
2階以上の物件(該当)
南向き(非該当)
駐車場(非該当)
オートロック(該当)
エアコン(該当)
バス・トイレ別(該当)
追焚機能(非該当)
フローリング(該当)
ペット相談(非該当)
キッチン/バス・トイレ
設備・サービス
オートロック、防犯カメラ、エアコン、シューズボックス、BS対応、光ファイバー、インターネット使用料無料、公営水道、都市ガス、下水、フローリング、バルコニー、室内洗濯機置場、エレベーター、ゴミ出し24時間OK、バイク置き場あり、駐輪場ありその他
住まい探し特典あり備考
光インターネット無料。四条通沿い夜道も安心。同志社大学生さんにも好評いただいてますオススメセパレート。地下鉄沿線、阪急電車沿線でのお部屋探しはアパマンショップ四条烏丸店にお任せくださいね
物件周辺の生活情報
買い物
- コンビニ(80m)
- スーパー(100m)
- ドラッグストア(90m)
その他施設
- 総合病院(280m)
- 銀行(180m)
- 京都市中京区役所(930m)
交通
- 京都市営烏丸線 四条駅 徒歩7分
- 普通(停車)
- 急行(停車)
- 阪急京都本線 烏丸駅 徒歩7分
- 普通(停車)
- 準急(停車)
- 堺筋準急(停車)
- 通勤特急(停車)
- 特急(停車)
- 急行(停車)
- 準特急(停車)
※急行等の停車駅情報について
急行等の停車駅に関するデータは、随時更新をしておりますが、最新の内容であることを保証するものではありません。
最新かつ正確な情報につきましては、各鉄道会社のウェブサイトにてご確認ください
物件周辺の口コミ
- 京都府京都市中京区蛸薬師通東洞院東入に住む人の口コミ30代女性
交通の便が多いのと病院、歯医者が多いのであったとこを選べるとこ
口コミを見る
この物件周辺に住む人の口コミ
口コミは、LIFULL HOME'Sが実際にこの物件の周辺に住む18歳~69歳の男女を対象に、WEBアンケート調査を実施しています。内容には回答者の主観的な表現が含まれる場合があるほか、事実と異なる場合もございます。ご了承ください。
- 京都府京都市中京区蛸薬師通東洞院東入に住む人の口コミ30代女性
- 交通の便が多いのと病院、歯医者が多いのであったとこを選べるとこ
- 京都府京都市下京区堀川通仏光寺下るに住む人の口コミ30代女性
- 街中で買い物等とても便利ですが、ガヤガヤしていて落ち着きがないから
- 京都府京都市中京区衣棚通御池上るに住む人の口コミ30代女性
- 暮らしやすいが立地が良いため家賃が高い。家賃以外は満足しています。
- 京都府京都市下京区綾小路通新町東入に住む人の口コミ20代女性
- 一人暮らしをするには、充分に買い物ができる場所があり、治安がいい。しかし、観光客が多い、路線が地下鉄のため階段が多い、人気が少ないところがないことは少し不満に思う、
- 京都府京都市中京区西洞院通三条下るに住む人の口コミ20代女性
- 交通の便がよく、友達と近い距離に住んでいる。買い物にも困らない。
- 京都府京都市中京区堀川通三条東入に住む人の口コミ30代女性
- 百貨店など繁華街に徒歩でいくことができ、バスや地下鉄、私鉄があり便利。閑静な住宅街で、治安も良い。ただ保育施設までが遠く、図書館や大型のショッピングモール、ホームセンターなどはないため不便。
- 京都府京都市下京区綾小路通新町西入下るに住む人の口コミ30代女性
- 交通の便が良いところと買い物をしやすい点。ただ、郊外にあるような大きな総合スーパーがないのは不便。
- 京都府京都市中京区壬生馬場町に住む人の口コミ30代女性
- 都会でも田舎でもなく、車がなくても十分生活できる範囲にいろいろなものがあるから。とても便利。
- 京都府京都市下京区楊梅通堀川東入に住む人の口コミ30代女性
- スーパーが少ないが自転車で移動すれば問題ない。静かで過ごしやすい
物件概要
- 建物構造
- SRC(鉄骨鉄筋コンクリート)
- 駐車場
- 無
- 総戸数
- 191戸
- 契約形態
- -
- 契約期間
- 2年間
- 更新料
- 新賃料の1ヶ月分
- その他費用
- 鍵交換費用:16,500円、室内清掃費用:30,800円、町会費:6,000円、ハウスセゾンクラブ:990円
- 保証会社
加入要
保証会社:ジェイリース
保証会社利用料:初回:月額賃料等の50%、更新時:1万円/1年
- 住宅保険
- 要
- 管理
- 管理員:巡回
- LIFULL HOME'S
物件番号 - 0113626-0290390
- 自社管理番号
- 81380-1106
- 取引態様
- 仲介
- 会社名
- ウインズリンク株式会社 アパマンショップ四条烏丸店
営業スタッフコメント

ウインズリンク株式会社 アパマンショップ四条烏丸店営業
村井零士
何でも一生懸命がモットーです!
業界経験4年
- 会社実績や特徴・サービス情報
- アパマンショップ四条烏丸店では京都市内中心部・阪急・地下鉄・京阪沿線の物件多数取り扱っております。 全力でお客様のお部屋探しをサポートさせて頂きますので、アパマンショップ四条烏丸店までお気軽にお問い合わせ下さいませ。 事務所・店舗・高額賃貸マンションまで賃貸というカテゴリーでもご相談下さいませ。 当店では外国語対応のスタッフも在籍しております。 京都の賃貸でしたらアパマンショップ四条烏丸店にお任せください。
アパマンショップ四条烏丸店では京都市内中心部・阪急・地下鉄・京阪沿線の物件多数取り扱っております。 全力でお客様のお部屋探しをサポートさせて頂きますので、アパマンショップ四条烏丸店までお気軽にお問い合わせ下さいませ。 事務所・店舗・高額賃貸マンションまで賃貸というカテゴリーでもご相談下さいませ。 当店では外国語対応のスタッフも在籍しております。 京都の賃貸でしたらアパマンショップ四条烏丸店にお任せください。
- 電話でお問合せ(通話無料)
お問合せ先 :ウインズリンク株式会社 アパマンショップ四条烏丸店
不動産会社情報
ウインズリンク株式会社 アパマンショップ四条烏丸店アパマンショップ四条烏丸店
京都府京都市下京区月鉾町47−3
京都市営烏丸線 四条駅 徒歩3分
- 営業時間
- 09:30~19:00
- 定休日
- なし(盆休み8/13〜8/16・年末年始12/27〜1/4)
京都市一円の物件情報のご提供やご案内。社宅代行有無に関らず法人契約にも即ご対応いたします。女性のお客様には女性スタッフにてのご対応できます。お部屋探しはぜひアパマンショップ四条烏丸店にお任せください。
- 店舗の特徴
- 賃貸管理業務
- 24時間管理物件取扱い
- リフォーム対応
- 引越し業者紹介可
- 年中無休
- 保証人不要な物件あり
- 法人契約取扱い
- 女性スタッフ対応可
- 19時以降も営業
- 駅から歩いて3分以内
電話でお問合せお客様の電話番号は不動産会社には通知されません
- 不動産会社に
つながります
お客様の電話番号は不動産会社に通知されません
- ※光IP電話、及びIP電話からはご利用になれません
- ※お電話によるお問合せは、店舗営業時間内にお願いします。つながらない場合は、お問合せフォームよりお問合せください
- ※不動産会社がお電話に出られなかった場合、お問合せいただいた後に不動産会社より折り返しのお電話がある場合がございます(お客様が非通知設定した場合は対象外です)
- ※株式会社LIFULLは電話会社が提供するサービスを介してお客様の発信者番号を受領後、折り返し専用の電話番号を発番してお問合せの不動産会社に通知します(お客様の発信者番号がお問合せの不動産会社に通知されることはございません)
- ※携帯電話からお問合せいただいた方に対し、株式会社LIFULLは電話会社が提供するメッセ―ジサービスを介してお客様の発信者番号を受領後、ショートメッセージ(SMS)またはLINE通知メッセージによるお問合せ内容に関する通知をお届けする場合があります
- ※お客様が通話中に不動産会社にお伝えになったお客様の個人情報及び、電話会社が発番する折り返し専用の電話番号は、お問合せ先不動産会社が資料送付・電子メール送信・電話連絡などの目的で保管する可能性があります。お問合せ先不動産会社が保管する個人情報の取扱いについては、各不動産会社に直接お問合せください
- ※株式会社LIFULLでは本サービスを円滑に運用するために、お客様の発信者番号をサービスご利用の控えとして一定期間保管いたします
- ※上記および株式会社LIFULLの個人情報の取扱い方針に同意のうえ、お電話ください
【LIFULL HOME'S物件番号】0113626-0290390【自社管理番号】81380-1106
初期費用・月額費用をあわせて確認!この物件に住んだときの費用めやす
めやすを見るこの物件に住んだときの費用めやす
- 初期費用
- 月額費用
- 追加費用※ご確認ください
追加で費用が
かかる場合があります
必ずご確認ください
初期費用めやす約0円
追加で費用がかかります(※)敷金
0
- 礼金
68,000
賃料+共益費・管理費の1ヶ月分として換算
賃料の1ヶ月分+税として換算。不動産会社によって金額が異なるため正確な金額は不動産会社にお問合せください
※追加費用もチェック!
これらの項目以外にも費用がかかる場合があります。正確な金額は不動産会社にお問合せください。
- 初期費用
- 鍵交換費:16,500円
- 室内清掃費:30,800円
- 火災保険費:不動産会社に要確認
- その他
- 町会費:6000円
- ハウスセゾンクラブ:990円
- 保証会社
- 初回:月額賃料等の50%、更新時:1万円/1年
不動産会社より
四条エリアのオススメ1K 四条駅まで徒歩7分のオススメ立地
光インターネット無料。四条通沿い夜道も安心。同志社大学生さんにも好評いただいてますオススメセパレート。地下鉄沿線、阪急電車沿線でのお部屋探しはアパマンショップ四条烏丸店にお任せくださいね
- 保存する
- 共有する
- ※各種情報と現状に差異がある場合は、現状優先となります
- ※不動産会社が入力した情報を基に物件の位置を表示しています。詳しくは不動産会社までお問合せください
- ※不動産会社の方からの上記電話番号によるお問合せはお断りしております。こちら不動産会社詳細からお問合せください
- ※LIFULL HOME'Sは物件鮮度No.1を目指していきます。閲覧中の物件が「成約済である」「実際の物件情報と異なる点がある」などの場合、「掲載110番」からお問合せください
- ※QRコードは株式会社デンソーウェーブの登録商標です
この物件を取扱う他の会社
LIFULL HOME'Sでは、主要項目が同一の物件をまとめて表示しています。所在地や営業時間、掲載画像等から不動産会社を選んでお問合せください。
株式会社エリッツ 四条烏丸店
優良店認定
京都府京都市下京区四条通新町東入月鉾町59 エリッツ四条烏丸ビル1F
京都市営烏丸線 四条駅 徒歩2分
- 営業時間
- 10:00~19:00
- 定休日
- 年中無休(年末年始を除く)
株式会社エリッツ 深草店
優良店認定
京都府京都市伏見区深草西浦町4丁目31番地
京阪本線 龍谷大前深草駅 徒歩5分
- 営業時間
- 10:00~19:00
- 定休日
- 水曜日(祝日を除く)、年末年始 ※部屋探しのお問い合わせは無休
株式会社エリッツ 四条河原町店
優良店認定
京都府京都市下京区河原町通四条下る2丁目稲荷町317−2 RISSI−DO 1F
阪急京都本線 京都河原町駅 徒歩2分
- 営業時間
- 10:00~19:00
- 定休日
- 水曜日 (祝日を除く)、年末年始 ※部屋探しのお問い合わせは無休
ウインズリンク株式会社 アパマンショップ河原町三条店
京都府京都市中京区河原町通三条上る恵比須町435番地5
京都地下鉄東西線 京都市役所前駅 徒歩3分
- 営業時間
- 09:30~19:00
- 定休日
- 年中無休(盆・正月を除く)
LIFULL HOME'S 地図・周辺情報
買い物
- ファミリーマート 四条西洞院店
- ライフ 四条烏丸店
- ドラッグひかり四条堀川店
- セブンイレブン 京都四条西洞院通り店
- フレスコ 四条店
グルメ
- タリーズコーヒー京都四条烏丸店
- まいどおおきに食堂 四条西洞院食堂
- やよい軒 四条烏丸店
- すき家 四条堀川店
- タリーズコーヒー四条大宮店
育児・教育
- 池坊保育園
- 京都市立下京雅小学校
- 京都市立下京中学校成徳学舎
- 光林保育園
- 京都市立洛中小学校
医療
- 山元病院
- 医療法人知音会京都新町病院
- 医療法人毛利病院
- 医療法人財団足立病院
- 医療法人令寿会しまばら病院
公共施設・郵便局
- 京都西洞院綾小路郵便局
- 京都市下京図書館
- 京都府下京警察署
- 京都堀川仏光寺郵便局
- 京都市こどもみらい館子育て図書館
公園
- 光徳公園
- 梅屋広場公園
- 梅小路公園
- 梅小路公園
- 京都御苑
利用可能な駅
- 徒歩10分以内
京都市営烏丸線
- 四条駅徒歩7分
阪急京都本線
- 烏丸駅徒歩7分
- 周辺情報は2023年07月21日時点のものになります。
- 周辺情報は、参考情報としてのみご利用ください(周辺情報は、株式会社LIFULLが地図情報の提供事業者から提供を受けた情報とLIFULL HOME'Sの物件情報に基づき、独自の方法で抽出し提供しているものです。周辺情報は、移転や閉鎖等により情報が最新ではない、または正しくない場合がありますが、地図情報の提供事業者から提供された情報をそのまま周辺情報として表示しているため、正確かつ最新の情報へ修正することができないことがあります。)
- 周辺情報は、株式会社LIFULLが掲載するものであり、不動産物件情報を掲載している不動産会社が掲載するものではありません
- 交通情報の一部については、株式会社LIFULLが掲載するものであり、不動産物件情報を掲載している不動産会社が掲載するものではない場合があります。交通情報に関する質問などは株式会社LIFULLにお問合せください




















