LIFULL HOME'Sは物件鮮度No.1!※評価について
京都地下鉄東西線 太秦天神川駅 徒歩3分
10.5万円/管理費等11,000円
10時間前 更新
画像一覧
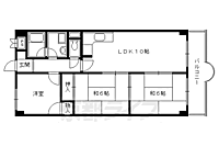
1/30間取り
2/30外観
3/30外観
4/30リビング/ダイニング
リビング
5/30リビング/ダイニング
リビング
6/30室内
洋室
7/30寝室
洋室
8/30寝室
洋室
9/30寝室
和室
10/30子供部屋
洋室
11/30キッチン
キッチン
12/30キッチン
キッチン
13/30浴室
風呂
14/30トイレ
トイレ
15/30洗面
洗面所
16/30収納
収納
17/30設備
下駄箱
18/30設備
冷蔵庫置場
19/30設備
洗濯機置場
20/30玄関
玄関
21/30バルコニー
ベランダ
22/30エントランス
エントランス
23/30駐車場
駐車場
24/30その他
廊下
25/30その他
眺望
26/30その他
エアコン
27/30その他
給湯器リモコン
28/30その他
TVモニターフォン
29/30周辺
フレスコ 天神川店まで380メートル
30/30周辺
セブンイレブン 天神川三条店まで110メートル
間取り
外観
外観
リビング/ダイニング
リビング/ダイニング
室内
寝室
寝室
寝室
子供部屋
キッチン
キッチン
浴室
トイレ
洗面
収納
設備
設備
設備
玄関
バルコニー
エントランス
駐車場
その他
その他
その他
その他
その他
周辺
周辺
お問合せ先 :株式会社エリッツ 桂店
住まい探し特典内容
電気・ガス・インターネットの手続き代行のご案内します。
- 利用条件
- 株式会社エリッツ 桂店で利用可
- 他特典との併用可
利用方法
来店時に本特典の画面をスマートフォンやタブレットでスタッフに提示、または画面印刷した用紙を提示ください。
有効期限 なし
南向きで日当たり良好。地下鉄太秦天神川まで徒歩2分--パノラマ掲載--
物件のこだわり/設備・条件
新築(非該当)
2階以上の物件(該当)
南向き(該当)
駐車場あり(該当)
オートロック(該当)
エアコン(該当)
バス・トイレ別(該当)
追焚機能(非該当)
フローリング(該当)
ペット相談(非該当)
入居条件
二人入居可、即入居可キッチン/バス・トイレ
設備・サービス
オートロック、防犯カメラ、エアコン、クローゼット、光ファイバー、公営水道、都市ガス、下水、フローリング、バルコニー、室内洗濯機置場、南面バルコニー、エレベーター、駐車場あり、バイク置き場あり、駐輪場ありその他
初期費用カード決済可、住まい探し特典あり備考
地下鉄太秦天神川駅まで徒歩1分。京都市内中心部へのアクセス良好。京福を使えば阪急へもアクセス可能です。スーパー、コンビニも徒歩5分以内です。オートロック、エレベーター付きマンションです・光ファイバーインターネット接続可・ピッキング対策錠MUL-T-LOCK設置 ハウスクリーニング38500円(退去時)・長栄スマイルパック(初回):25000円・駐輪代(原付(月額):1100円・駐輪代(自二輪(月額):3300
物件周辺の生活情報
学校
- 太秦小学校(870m)
- 太秦中学校(1,400m)
買い物
- コンビニ(110m)
- スーパー(380m)
- ドラッグストア(700m)
その他施設
- 総合病院(1,270m)
交通
- 京都地下鉄東西線 太秦天神川駅 徒歩3分
- 普通(停車)
- 京福電気鉄道嵐山本線 蚕ノ社駅 徒歩5分
- 普通(停車)
※急行等の停車駅情報について
急行等の停車駅に関するデータは、随時更新をしておりますが、最新の内容であることを保証するものではありません。
最新かつ正確な情報につきましては、各鉄道会社のウェブサイトにてご確認ください
物件周辺の口コミ
- 京都府京都市右京区太秦下刑部町に住む人の口コミ30代女性
暮らしに必要なものは近所で買える。そのほかのものも交通の弁が良いのですぐに出掛けられる。
口コミを見る
この物件周辺に住む人の口コミ
口コミは、LIFULL HOME'Sが実際にこの物件の周辺に住む18歳~69歳の男女を対象に、WEBアンケート調査を実施しています。内容には回答者の主観的な表現が含まれる場合があるほか、事実と異なる場合もございます。ご了承ください。
- 京都府京都市右京区太秦下刑部町に住む人の口コミ30代女性
- 暮らしに必要なものは近所で買える。そのほかのものも交通の弁が良いのですぐに出掛けられる。
- 京都府京都市右京区太秦下刑部町に住む人の口コミ40代男性
- 交通の便が充実しているのと買い物も近くにスーパーがあって良いのですが、車道が狭いので車にぶつかりそうな事があるので、どちらかといえば満足しているにしました。
- 京都府京都市右京区太秦下刑部町に住む人の口コミ40代男性
- 交通の便が良くて地下鉄、バス、路面電車と近くにある為、とても便利です。
- 京都府京都市右京区梅津南広町に住む人の口コミ30代女性
- 近くにスーパーやコンビニがあり、生活はしやすい。子供が大きくなったら行きたい大きい公園が近くにある。
- 京都府京都市右京区太秦安井一町田町に住む人の口コミ40代男性
- 地下鉄からの距離が近く,始発駅。スーパーが多くあり、買い物も便利。駅前は再開発をしたため、きれい。区役所が近く,図書館も同じ場所にあり利用しやすい。
- 京都府京都市右京区太秦百合ケ本町に住む人の口コミ40代男性
- ほどほどに田舎だが、都心部にすぐに出ることができるので、そこそこ便利
- 京都府京都市右京区梅津南広町に住む人の口コミ60代男性
- 交通の便がよく、自然にも恵まれており、サイクリングや川遊びもすぐにできる。
- 京都府京都市右京区太秦奥殿町に住む人の口コミ60代男性
- 学校の直ぐ近くで、家並みが綺麗に整っている。また,買い物に便利。交通の便が良い
- 京都府京都市右京区太秦井戸ケ尻町に住む人の口コミ60代男性
- 交通機関を利用したり買い物をするにあたって比較的地下鉄やバス等が利用し易く、また近くにコンビニも多く、生活用品を売っているところもあり、歳をとっても生活しやすいと思う。
- 京都府京都市右京区太秦下角田町に住む人の口コミ40代女性
- 役所・病院・スーパーなど、必要な施設が徒歩圏内に充実している。また、電車・バスなどが本数も多く、車がなくても移動に困らない。地域のイベントも多く、広めの公園もあるので、子供も楽しめる。
物件概要
- 建物構造
- SRC(鉄骨鉄筋コンクリート)
- 駐車場
- 空有 22,000円(税込)
- 総戸数
- 54戸
- 契約形態
- -
- 契約期間
- 2年間
- 更新料
- 新賃料の1ヶ月分
- その他費用
- 駐車場手数料(初回):22,000円、管理会社書類代(初回):11,000円、ベルヴィクラブ(初回):38,500円
- 保証会社
加入要
保証会社利用料:58、000円
- 住宅保険
- 不要
- 管理
- -
- LIFULL HOME'S
物件番号 - 0111205-0277227
- 自社管理番号
- 1787-8-E
- 取引態様
- 仲介
- 会社名
- 株式会社エリッツ 桂店
営業スタッフコメント

株式会社エリッツ 桂店
長曽
精一杯お客様のお部屋探しを手伝わさせていただきます
業界経験2年
資格宅地建物取引士、少額短期保険募集人
- 会社実績や特徴・サービス情報
- 西京区、南区、向日市でお部屋探しをされるなら、地域一番の賃貸のエリッツ桂店へ是非ご来店下さい。 エリッツ桂店は阪急桂駅東口前にございます。阪急桂駅は、特急停車駅です。特急で烏丸駅までは約5分とアクセス面が便利です。桂エリアは、市内中心部に比べると家賃、駐車場代がおさえることができます。シングル、新婚様、ファミリーを問わず賃貸人気の高いエリアです。ガレージ付き賃貸、ペット飼育可賃貸、戸建て賃貸など多数情報を揃えています。
西京区、南区、向日市でお部屋探しをされるなら、地域一番の賃貸のエリッツ桂店へ是非ご来店下さい。 エリッツ桂店は阪急桂駅東口前にございます。阪急桂駅は、特急停車駅です。特急で烏丸駅までは約5分とアクセス面が便利です。桂エリアは、市内中心部に比べると家賃、駐車場代がおさえることができます。シングル、新婚様、ファミリーを問わず賃貸人気の高いエリアです。ガレージ付き賃貸、ペット飼育可賃貸、戸建て賃貸など多数情報を揃えています。
- 電話でお問合せ(通話無料)
お問合せ先 :株式会社エリッツ 桂店
不動産会社情報
株式会社エリッツ 桂店賃貸のエリッツ桂店

京都府京都市西京区桂野里町17-3 プランド‐ル1階
阪急京都本線 桂駅 徒歩1分
- 営業時間
- 10:00~19:00
- 定休日
- 年中無休(年末年始を除く)
優良店認定
京都市内のお部屋探しはエリッツ桂店までお問い合わせ下さい。阪急沿線は桂駅、上桂駅、東向日駅、JR沿線は桂川駅、向日町駅周辺でしたらお任せ下さい。親切、丁寧に、お客様にぴったりのお部屋をご紹介します。
- 店舗の特徴
- 賃貸管理業務
- 24時間管理物件取扱い
- 引越し業者紹介可
- 年中無休
- 駐車場あり
- オンライン相談可
- 保証人不要な物件あり
- 法人契約取扱い
- 女性スタッフ対応可
- 駅から歩いて3分以内
電話でお問合せお客様の電話番号は不動産会社には通知されません
- 不動産会社に
つながります
お客様の電話番号は不動産会社に通知されません
- ※光IP電話、及びIP電話からはご利用になれません
- ※お電話によるお問合せは、店舗営業時間内にお願いします。つながらない場合は、お問合せフォームよりお問合せください
- ※不動産会社がお電話に出られなかった場合、お問合せいただいた後に不動産会社より折り返しのお電話がある場合がございます(お客様が非通知設定した場合は対象外です)
- ※株式会社LIFULLは電話会社が提供するサービスを介してお客様の発信者番号を受領後、折り返し専用の電話番号を発番してお問合せの不動産会社に通知します(お客様の発信者番号がお問合せの不動産会社に通知されることはございません)
- ※携帯電話からお問合せいただいた方に対し、株式会社LIFULLは電話会社が提供するメッセ―ジサービスを介してお客様の発信者番号を受領後、ショートメッセージ(SMS)またはLINE通知メッセージによるお問合せ内容に関する通知をお届けする場合があります
- ※お客様が通話中に不動産会社にお伝えになったお客様の個人情報及び、電話会社が発番する折り返し専用の電話番号は、お問合せ先不動産会社が資料送付・電子メール送信・電話連絡などの目的で保管する可能性があります。お問合せ先不動産会社が保管する個人情報の取扱いについては、各不動産会社に直接お問合せください
- ※株式会社LIFULLでは本サービスを円滑に運用するために、お客様の発信者番号をサービスご利用の控えとして一定期間保管いたします
- ※上記および株式会社LIFULLの個人情報の取扱い方針に同意のうえ、お電話ください
【LIFULL HOME'S物件番号】0111205-0277227【自社管理番号】1787-8-E
オンライン対応
オンライン内見・オンライン相談・IT重説に対応している物件です

「オンライン内見」「オンライン相談」「IT重説」とは?
物件の内見や不動産会社スタッフとの相談、契約前の重要事項説明をオンライン(ビデオ通話)で行うことができるサービスです。
オンライン内見
ビデオ通話で現地(物件)にいる不動産会社スタッフと映像・音声を使ってリアルタイムで会話しながら内見ができます。
オンライン相談
「物件について聞きたいことがある」など不動産会社スタッフへの相談もビデオ通話で行うことができます。
IT重説
契約前の重要事項説明(重説)をビデオ通話で行うことができます。
利用時の注意事項
- ビデオ通話については各不動産会社指定のものとなります。
- ビデオ通話利用時には通信が発生します。従量課金制通信サービスや通信量に上限があるネット回線・プランを利用する場合は、通信量にご注意ください。
- 通信速度やアプリの設定によってはビデオ通話の画質が低下することがあります。安定した画質で利用するためにも、Wi-Fi環境下での利用を推奨します。
- ご利用のビデオ通話アプリによっては、対象のOSやブラウザに制限がある場合があります。詳しくはお問合せ先不動産会社にご確認ください。
初期費用・月額費用をあわせて確認!この物件に住んだときの費用めやす
めやすを見るこの物件に住んだときの費用めやす
- 初期費用
- 月額費用
- 追加費用※ご確認ください
追加で費用が
かかる場合があります
必ずご確認ください
初期費用めやす約0円
追加で費用がかかります(※)敷金
0
- 礼金
210,000
賃料+共益費・管理費の1ヶ月分として換算
賃料の1ヶ月分+税として換算。不動産会社によって金額が異なるため正確な金額は不動産会社にお問合せください
※追加費用もチェック!
これらの項目以外にも費用がかかる場合があります。正確な金額は不動産会社にお問合せください。
- 初期費用
- 鍵交換費:不動産会社に要確認
- 室内清掃費:不動産会社に要確認
- 火災保険費:不動産会社に要確認
- 月額費用
- 駐車場費:22,000円(税込)※契約任意
- その他
- 駐車場手数料(初回):22000円
- 管理会社書類代(初回):11000円
- ベルヴィクラブ(初回):38500円
- 保証会社
- 58、000円
不動産会社より
南向きで日当たり良好。地下鉄太秦天神川まで徒歩2分--パノラマ掲載--
地下鉄太秦天神川駅まで徒歩1分。京都市内中心部へのアクセス良好。京福を使えば阪急へもアクセス可能です。スーパー、コンビニも徒歩5分以内です。オートロック、エレベーター付きマンションです・光ファイバーインターネット接続可・ピッキング対策錠MUL-T-LOCK設置 ハウスクリーニング38500円(退去時)・長栄スマイルパック(初回):25000円・駐輪代(原付(月額):1100円・駐輪代(自二輪(月額):3300
- 保存する
- 共有する
- ※各種情報と現状に差異がある場合は、現状優先となります
- ※不動産会社が入力した情報を基に物件の位置を表示しています。詳しくは不動産会社までお問合せください
- ※不動産会社の方からの上記電話番号によるお問合せはお断りしております。こちら不動産会社詳細からお問合せください
- ※LIFULL HOME'Sは物件鮮度No.1を目指していきます。閲覧中の物件が「成約済である」「実際の物件情報と異なる点がある」などの場合、「掲載110番」からお問合せください
- ※QRコードは株式会社デンソーウェーブの登録商標です
したい暮らしのタグから探す
この物件を取扱う他の会社
LIFULL HOME'Sでは、主要項目が同一の物件をまとめて表示しています。所在地や営業時間、掲載画像等から不動産会社を選んでお問合せください。
最近見た賃貸物件
LIFULL HOME'S 地図・周辺情報
買い物
- セブンイレブン 天神川三条店
- フレスコ 天神川店
- ドラッグユタカ葛野大路店
- セブンイレブン 京都太秦下刑部町店
- サンディ太秦天神川店
グルメ
- マクドナルド 葛野大路四条店
- 無添くら寿司 京都外大前店
- マクドナルド 太秦ライフ店
- スターバックスコーヒー京都四条葛野大路店
- リンガーハット 京都ファミリー店
育児・教育
- うたの里保育園
- 京都市立安井小学校
- 京都市立四条中学校
- 西本願寺保育園
- 京都市立山ノ内小学校
医療
- 社会医療法人太秦病院
- (財)泉谷病院
- 公益社団法人京都保健会京都民医連中央病院
- 医療法人新生十全会京都ならびがおか病院
- 医療法人西大路病院
公共施設・郵便局
- 京都山ノ内郵便局
- 京都市右京中央図書館
- 京都市右京区役所
- 京都太秦安井郵便局
- 京都市中央図書館
公園
- 西院公園
- 土堂公園
- 東大丸公園
- 光徳公園
- 広沢池公園
利用可能な駅
- 徒歩10分以内
京都地下鉄東西線
- 太秦天神川駅徒歩3分
京福電気鉄道嵐山本線
- 嵐電天神川駅徒歩4分
- 蚕ノ社駅徒歩5分
- 山ノ内駅徒歩9分
- すべての駅
京福電気鉄道嵐山本線
- 太秦広隆寺駅徒歩14分
- 西大路三条駅徒歩20分
- 帷子ノ辻駅徒歩23分
- 西院駅徒歩28分
- 有栖川駅徒歩30分
- 車折神社駅徒歩37分
- 鹿王院駅3.2km
JR山陰本線
- 花園駅徒歩15分
- 太秦駅徒歩24分
- 円町駅徒歩28分
- 二条駅徒歩32分
- 丹波口駅4km
京都地下鉄東西線
- 西大路御池駅徒歩19分
京福電気鉄道北野線
- 撮影所前駅徒歩21分
- 常盤駅徒歩25分
- 御室仁和寺駅徒歩27分
- 宇多野駅徒歩28分
- 鳴滝駅徒歩28分
- 妙心寺駅徒歩29分
- 龍安寺駅徒歩33分
- 等持院・立命館大学衣笠キャンパス前駅徒歩34分
- 北野白梅町駅3.3km
阪急京都本線
- 西院駅徒歩26分
- 西京極駅徒歩26分
阪急嵐山線
- 松尾大社駅3.6km
- 上桂駅3.8km
- 周辺情報は2023年07月21日時点のものになります。
- 周辺情報は、参考情報としてのみご利用ください(周辺情報は、株式会社LIFULLが地図情報の提供事業者から提供を受けた情報とLIFULL HOME'Sの物件情報に基づき、独自の方法で抽出し提供しているものです。周辺情報は、移転や閉鎖等により情報が最新ではない、または正しくない場合がありますが、地図情報の提供事業者から提供された情報をそのまま周辺情報として表示しているため、正確かつ最新の情報へ修正することができないことがあります。)
- 周辺情報は、株式会社LIFULLが掲載するものであり、不動産物件情報を掲載している不動産会社が掲載するものではありません
- 交通情報の一部については、株式会社LIFULLが掲載するものであり、不動産物件情報を掲載している不動産会社が掲載するものではない場合があります。交通情報に関する質問などは株式会社LIFULLにお問合せください














































