LIFULL HOME'Sは物件鮮度No.1!※評価について
ニホコーポラスIII 1階
3.4万円/管理費等4,000円
4時間前 更新
画像一覧
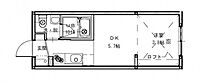
1/25間取り
2/25外観
3/25リビング/ダイニング
4/25リビング/ダイニング
5/25リビング/ダイニング
6/25寝室
7/25キッチン
8/25浴室
9/25トイレ
10/25収納
11/25設備
12/25設備
13/25玄関
14/25玄関
15/25駐車場
16/25その他
展望
17/25その他
セキュリティ
18/25その他
その他共有部分
19/25周辺
【スーパー】YOURS(ユアーズ) 本浦店まで826m
20/25周辺
【コンビニエンスストア】セブンイレブン広島仁保店まで362m
21/25周辺
【コンビニエンスストア】ファミリーマート 東本浦店まで785m
22/25周辺
【ドラッグストア】ウォンツ 本浦店まで854m
23/25周辺
【銀行】広島銀行仁保支店まで581m
24/25周辺
【郵便局】広島仁保二郵便局まで130m
25/25
間取り
外観
リビング/ダイニング
リビング/ダイニング
リビング/ダイニング
寝室
キッチン
浴室
トイレ
収納
設備
設備
玄関
玄関
駐車場
その他
その他
その他
周辺
周辺
周辺
周辺
周辺
周辺
お問合せ先 :株式会社リブマックスリーシング 八丁堀店
仲介手数料割引
リブマックスでご契約頂くと全物件仲介手数料半月分(一部法人を除く)となります。
- 利用条件
- 株式会社リブマックスリーシング 八丁堀店で利用可
- 他特典との併用可
利用方法
来店時に本特典の画面をスマートフォンやタブレットでスタッフに提示、または画面印刷した用紙を提示ください。
有効期限 2026年04月01日まで
仲介手数料は賃料の半月分☆ネット無料☆ペットOK☆
基本情報
不動産用語- 賃料
- 3.4万円
- 管理費等
- 4,000円
初期費用などお気軽にお問合せください
物件のこだわり/設備・条件
新築(非該当)
2階以上の物件(非該当)
南向き(非該当)
駐車場(非該当)
オートロック(該当)
エアコン(該当)
バス・トイレ別(該当)
追焚機能(該当)
フローリング(該当)
ペット相談可(該当)
位置
角部屋入居条件
ペット相談、即入居可キッチン/バス・トイレ
設備・サービス
オートロック、防犯カメラ、TVモニタ付インターホン、エアコン、床暖房、クローゼット、シューズボックス、光ファイバー、インターネット使用料無料、公営水道、プロパンガス、下水、フローリング、バルコニー、室内洗濯機置場、宅配ボックス、バイク置き場あり、駐輪場ありその他
初期費用カード決済可、住まい探し特典あり備考
床暖房・ウォシュレット・追炊き機能・浴室乾燥機完備☆TVモニタ付きオートロックで防犯面も安心☆大型バイク駐輪OK☆ベッド付き☆2人入居OK☆ 参考写真になります。物件情報と現況が異なる場合現況を優先と致します。この他にも家具家電付き物件、敷金礼金ゼロ物件、ペット物件、保証人不要物件など、多数取り扱っております!
物件周辺の生活情報
買い物
- コンビニ(362m)
- スーパー(826m)
- ドラッグストア(854m)
その他施設
- 銀行(581m)
- ファミリーマート 東本浦店(785m)
交通
- JR山陽本線 向洋駅 徒歩22分
- 普通(停車)
- 新快速(通過)
- 快速(通過)
- サンライナー(通過)
- JR山陽本線 天神川駅 徒歩37分
- 普通(停車)
- 新快速(通過)
- 快速(通過)
- サンライナー(通過)
※急行等の停車駅情報について
急行等の停車駅に関するデータは、随時更新をしておりますが、最新の内容であることを保証するものではありません。
最新かつ正確な情報につきましては、各鉄道会社のウェブサイトにてご確認ください
物件概要
- 建物構造
- 木造
- 駐車場
- 近隣 11,000円 物件からの距離100m
- 総戸数
- 18戸
- 契約形態
- -
- 契約期間
- 2年間
- 更新料
- -
- その他費用
- 鍵交換代:5,500円
- 保証会社
- -
- 住宅保険
- 要
- 管理
- -
- LIFULL HOME'S
物件番号 - 0127508-0042178
- 自社管理番号
- 690723
- 取引態様
- 仲介
- 会社名
- 株式会社リブマックスリーシング 八丁堀店
営業スタッフコメント

株式会社リブマックスリーシング 八丁堀店
生形
「「幸せなお部屋探し」」のお手伝いさせてください☆
業界経験1年
- 会社実績や特徴・サービス情報
- 新築物件、ペット可物件、デザイナーズ物件、SOHO可物件など多種多様な物件情報をご用意しております。 当社で提案する家具家電付きSETUP賃貸物件(セットアップ賃貸)も展開しております。 SETUP賃貸は生活に必要な家具・家電が揃った状態でお部屋をお貸しするので、 引越しの手間や費用を抑え、新生活をスタートできるので、 急なご転勤の方、短期出張の方などにお勧めのニュースタイル賃貸マンションです。 お客様のお部屋探しを全力でサポート致します。
新築物件、ペット可物件、デザイナーズ物件、SOHO可物件など多種多様な物件情報をご用意しております。 当社で提案する家具家電付きSETUP賃貸物件(セットアップ賃貸)も展開しております。 SETUP賃貸は生活に必要な家具・家電が揃った状態でお部屋をお貸しするので、 引越しの手間や費用を抑え、新生活をスタートできるので、 急なご転勤の方、短期出張の方などにお勧めのニュースタイル賃貸マンションです。 お客様のお部屋探しを全力でサポート致します。
- 電話でお問合せ(通話無料)
お問合せ先 :株式会社リブマックスリーシング 八丁堀店
不動産会社情報
株式会社リブマックスリーシング 八丁堀店リブマックス 八丁堀店
広島県広島市中区鉄砲町10-15 もんビル5F
広島電鉄1系統 八丁堀駅 徒歩1分
- 営業時間
- 09:00~19:00
- 定休日
- 毎週水曜日 年末年始
- 担当者
- リブマックス八丁堀店
お部屋探しはリブマックス八丁堀店にお任せ下さい。初期費用を抑えたい方はまずは当店にお越し下さい!スタッフ全員が、貴方にピッタリのお部屋を必ずお探しいたします!
- 店舗の特徴
- 賃貸管理業務
- リフォーム対応
- 引越し業者紹介可
- 保証人不要な物件あり
- 法人契約取扱い
- 19時以降も営業
- 駅から歩いて3分以内
電話でお問合せお客様の電話番号は不動産会社には通知されません
- 不動産会社に
つながります
お客様の電話番号は不動産会社に通知されません
- ※光IP電話、及びIP電話からはご利用になれません
- ※お電話によるお問合せは、店舗営業時間内にお願いします。つながらない場合は、お問合せフォームよりお問合せください
- ※不動産会社がお電話に出られなかった場合、お問合せいただいた後に不動産会社より折り返しのお電話がある場合がございます(お客様が非通知設定した場合は対象外です)
- ※株式会社LIFULLは電話会社が提供するサービスを介してお客様の発信者番号を受領後、折り返し専用の電話番号を発番してお問合せの不動産会社に通知します(お客様の発信者番号がお問合せの不動産会社に通知されることはございません)
- ※携帯電話からお問合せいただいた方に対し、株式会社LIFULLは電話会社が提供するメッセ―ジサービスを介してお客様の発信者番号を受領後、ショートメッセージ(SMS)またはLINE通知メッセージによるお問合せ内容に関する通知をお届けする場合があります
- ※お客様が通話中に不動産会社にお伝えになったお客様の個人情報及び、電話会社が発番する折り返し専用の電話番号は、お問合せ先不動産会社が資料送付・電子メール送信・電話連絡などの目的で保管する可能性があります。お問合せ先不動産会社が保管する個人情報の取扱いについては、各不動産会社に直接お問合せください
- ※株式会社LIFULLでは本サービスを円滑に運用するために、お客様の発信者番号をサービスご利用の控えとして一定期間保管いたします
- ※上記および株式会社LIFULLの個人情報の取扱い方針に同意のうえ、お電話ください
【LIFULL HOME'S物件番号】0127508-0042178【自社管理番号】690723
オンライン対応
オンライン相談に対応している物件です

「オンライン内見」「オンライン相談」「IT重説」とは?
物件の内見や不動産会社スタッフとの相談、契約前の重要事項説明をオンライン(ビデオ通話)で行うことができるサービスです。
オンライン内見
ビデオ通話で現地(物件)にいる不動産会社スタッフと映像・音声を使ってリアルタイムで会話しながら内見ができます。
オンライン相談
「物件について聞きたいことがある」など不動産会社スタッフへの相談もビデオ通話で行うことができます。
IT重説
契約前の重要事項説明(重説)をビデオ通話で行うことができます。
利用時の注意事項
- ビデオ通話については各不動産会社指定のものとなります。
- ビデオ通話利用時には通信が発生します。従量課金制通信サービスや通信量に上限があるネット回線・プランを利用する場合は、通信量にご注意ください。
- 通信速度やアプリの設定によってはビデオ通話の画質が低下することがあります。安定した画質で利用するためにも、Wi-Fi環境下での利用を推奨します。
- ご利用のビデオ通話アプリによっては、対象のOSやブラウザに制限がある場合があります。詳しくはお問合せ先不動産会社にご確認ください。
初期費用・月額費用をあわせて確認!この物件に住んだときの費用めやす
めやすを見るこの物件に住んだときの費用めやす
- 初期費用
- 月額費用
- 追加費用※ご確認ください
追加で費用が
かかる場合があります
必ずご確認ください
初期費用めやす約0円
追加で費用がかかります(※)敷金
34,000
- 礼金
34,000
賃料+共益費・管理費の1ヶ月分として換算
賃料の1ヶ月分+税として換算。不動産会社によって金額が異なるため正確な金額は不動産会社にお問合せください
※追加費用もチェック!
これらの項目以外にも費用がかかる場合があります。正確な金額は不動産会社にお問合せください。
- 初期費用
- 鍵交換費:不動産会社に要確認
- 室内清掃費:不動産会社に要確認
- 火災保険費:不動産会社に要確認
- 月額費用
- 駐車場費:11,000円※近隣
- その他
- 鍵交換代:5500円
- 保証会社
- 不動産会社に要確認
不動産会社より
仲介手数料は賃料の半月分☆ネット無料☆ペットOK☆
床暖房・ウォシュレット・追炊き機能・浴室乾燥機完備☆TVモニタ付きオートロックで防犯面も安心☆大型バイク駐輪OK☆ベッド付き☆2人入居OK☆ 参考写真になります。物件情報と現況が異なる場合現況を優先と致します。この他にも家具家電付き物件、敷金礼金ゼロ物件、ペット物件、保証人不要物件など、多数取り扱っております!
- 保存する
- 共有する
- ※各種情報と現状に差異がある場合は、現状優先となります
- ※不動産会社が入力した情報を基に物件の位置を表示しています。詳しくは不動産会社までお問合せください
- ※不動産会社の方からの上記電話番号によるお問合せはお断りしております。こちら不動産会社詳細からお問合せください
- ※LIFULL HOME'Sは物件鮮度No.1を目指していきます。閲覧中の物件が「成約済である」「実際の物件情報と異なる点がある」などの場合、「掲載110番」からお問合せください
- ※QRコードは株式会社デンソーウェーブの登録商標です
したい暮らしのタグから探す
この物件を取扱う他の会社
LIFULL HOME'Sでは、主要項目が同一の物件をまとめて表示しています。所在地や営業時間、掲載画像等から不動産会社を選んでお問合せください。
LIFULL HOME'S 地図・周辺情報
買い物
- セブンイレブン 広島仁保店
- ユアーズ 本浦店
- ウォンツ本浦店
- ファミリーマート 東本浦店
- 万惣 本浦店
グルメ
- すき家 2国広島東雲店
- マクドナルド 東雲店
- 丸亀製麺広島東雲店
- 無添くら寿司 広島東雲店
- COCO’S 東雲店
育児・教育
- 仁保保育園
- 広島市立仁保小学校
- 広島市立仁保中学校
- 本浦幼稚園
- 広島市立青崎小学校
医療
- マツダ(株)マツダ病院
- 医療法人広島厚生会広島厚生病院
- 医療法人健真会山本整形外科病院
- 塩田病院
- 広島大学病院
公共施設・郵便局
- 広島仁保二郵便局
- 府中町立図書館
- 広島南警察署
- 広島青崎郵便局
- 広島市立安芸区図書館
公園
- 黄金山緑地
- 日宇那緑地
- 空城山公園
- 宇品第一公園
- 比治山公園
利用可能な駅
- すべての駅
JR山陽本線
- 向洋駅徒歩22分
- 天神川駅徒歩37分
- その他交通
- 芸備線 矢賀駅 徒歩58分
- 周辺情報は2023年07月21日時点のものになります。
- 周辺情報は、参考情報としてのみご利用ください(周辺情報は、株式会社LIFULLが地図情報の提供事業者から提供を受けた情報とLIFULL HOME'Sの物件情報に基づき、独自の方法で抽出し提供しているものです。周辺情報は、移転や閉鎖等により情報が最新ではない、または正しくない場合がありますが、地図情報の提供事業者から提供された情報をそのまま周辺情報として表示しているため、正確かつ最新の情報へ修正することができないことがあります。)
- 周辺情報は、株式会社LIFULLが掲載するものであり、不動産物件情報を掲載している不動産会社が掲載するものではありません
- 交通情報の一部については、株式会社LIFULLが掲載するものであり、不動産物件情報を掲載している不動産会社が掲載するものではない場合があります。交通情報に関する質問などは株式会社LIFULLにお問合せください





















