LIFULL HOME'Sは物件鮮度No.1!※評価について
QUON 四条柏屋町(7階/702/1LDK/56.68㎡)
QUON 四条柏屋町(7階/702/1LDK/56.68㎡)
16万円/管理費等-
1日前 更新
画像一覧
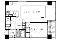
1/30間取り
間取
2/30外観
3/30外観
4/30リビング/ダイニング
5/30リビング/ダイニング
6/30リビング/ダイニング
7/30リビング/ダイニング
8/30寝室
9/30キッチン
10/30キッチン
11/30キッチン
12/30キッチン
13/30浴室
14/30浴室
15/30トイレ
16/30洗面
17/30収納
18/30収納
19/30収納
20/30設備
21/30設備
22/30設備
23/30設備
24/30玄関
25/30バルコニー
26/30バルコニー
27/30その他
28/30その他
29/30その他
30/30周辺
大宮駅まで400m
間取り
外観
外観
リビング/ダイニング
リビング/ダイニング
リビング/ダイニング
リビング/ダイニング
寝室
キッチン
キッチン
キッチン
キッチン
浴室
浴室
トイレ
洗面
収納
収納
収納
設備
設備
設備
設備
玄関
バルコニー
バルコニー
その他
その他
その他
周辺
LINEチャットでも 相談できます
お問合せ先 :株式会社京都ライフ 京都駅前店
仲介手数料割引
仲介手数料が家賃の半月分(消費税)です。
- 利用条件
- 株式会社京都ライフ 京都駅前店で利用可
- 他特典との併用はできませんので、ご注意ください。
- ・法人契約・事業用物件は除く。 ・積水ハウス、大東建託の管理物件は除く。
利用方法
来店時に本特典の画面をスマートフォンやタブレットでスタッフに提示、または画面印刷した用紙を提示ください。
有効期限 なし
洛央小学校区 賃貸 洛王小学校区 分譲賃貸 地下鉄四条駅まで徒歩7分の分譲賃貸マンションです。
基本情報
不動産用語- 賃料
- 16万円
- 管理費等
- -
初期費用などお気軽にお問合せください
- 敷金/礼金
- 16万円/32万円
- 保証金/敷引・償却金
- -/-
- 交通
阪急京都本線 大宮駅 徒歩5分
京都市営烏丸線 四条駅 徒歩7分
- 所在地
京都府京都市下京区四条通堀川東入柏屋町
地図を見る- 築年月
- 2007年11月(築19年)
- 主要採光面
- 北
- 専有面積
- 56.68㎡
- バルコニー面積
- -
- 所在階/階数
- 7階/12階建
入居可能日などお気軽にお問合せください
- 現況
- 空家
- 入居可能時期
- 相談

人気物件はすぐに埋まってしまいます。
気になったらお早めにお問合せください。
- 情報公開日
2025/12/11
2日前 公開
- 情報更新日
2025/12/12
1日前 更新
- 次回更新
予定日 - 2025/12/25
物件のこだわり/設備・条件
新築(非該当)
2階以上の物件(該当)
南向き(非該当)
駐車場(非該当)
オートロック(該当)
エアコン(非該当)
バス・トイレ別(該当)
追焚機能(該当)
フローリング(該当)
ペット相談(非該当)
位置
角部屋入居条件
法人希望キッチン/バス・トイレ
設備・サービス
オートロック、防犯カメラ、TVモニタ付インターホン、床暖房、光ファイバー、インターネット使用料無料、公営水道、都市ガス、下水、フローリング、バルコニー、室内洗濯機置場、タイル貼り、エレベーター、駐輪場ありその他
分譲賃貸、住まい探し特典あり備考
京福、阪急、地下鉄のトリプルアクセス。嬉しい3点セパレートに浴室乾燥機、追い焚き機能付浴室、システムキッチンなど充実の設備。オートロック、警備保障、防犯カメラ、TVホンでセキュリティも安心です。コンビニ、スーパー、ドラッグストアなど近くにあって便利ですよ。インターネットは光対応、無料でご利用いただけます。 物件情報はもちろん京都のエリア情報まで幅広く対応させていただきます!
物件周辺の生活情報
学校
- 下京中学校(1,100m)
買い物
- コンビニ(128m)
- スーパー(202m)
- ドラッグストア(81m)
その他施設
- 総合病院(443m)
- 銀行(367m)
- TSUTAYA烏丸五条店(1,100m)
交通
- 京都市営烏丸線 四条駅 徒歩7分
- 普通(停車)
- 急行(停車)
- 阪急京都本線 大宮駅 徒歩5分
- 普通(停車)
- 準急(停車)
- 堺筋準急(停車)
- 通勤特急(停車)
- 特急(通過)
- 急行(停車)
- 準特急(停車)
※急行等の停車駅情報について
急行等の停車駅に関するデータは、随時更新をしておりますが、最新の内容であることを保証するものではありません。
最新かつ正確な情報につきましては、各鉄道会社のウェブサイトにてご確認ください
物件周辺の口コミ
- 京都府京都市下京区西洞院通高辻下るに住む人の口コミ40代女性
住みやすい。治安が良い、ただ最近外国人がとても多くなって色々な場所が混雑している
口コミを見る
この物件周辺に住む人の口コミ
口コミは、LIFULL HOME'Sが実際にこの物件の周辺に住む18歳~69歳の男女を対象に、WEBアンケート調査を実施しています。内容には回答者の主観的な表現が含まれる場合があるほか、事実と異なる場合もございます。ご了承ください。
- 京都府京都市下京区西洞院通高辻下るに住む人の口コミ40代女性
- 住みやすい。治安が良い、ただ最近外国人がとても多くなって色々な場所が混雑している
- 京都府京都市下京区仏光寺通室町西入に住む人の口コミ20代女性
- 京都の中心地(都会)で、便利。銀行が密集しているところにすんでいること。百貨店や本屋、飲食店が多いが、オフィス街なので24:00をこえるとガラッと静かでおちつく街になるため、満足している
- 京都府京都市中京区堀川通錦小路下るに住む人の口コミ40代女性
- バス停すぐそこ。系統網羅していてバスの本数が多く、待ち時間が少ない。交通の便が良い。大丸、高島屋まで歩いていける。大通り外ればとても静か。祇園祭がすぐそばで簡単に行ける
- 京都府京都市中京区堺町通六角下るに住む人の口コミ40代女性
- 便利、楽しい、生活水準が高い、商業施設が多いが、御所や鴨川などの自然も楽しめる点。
- 京都府京都市下京区高辻通堀川西入に住む人の口コミ30代女性
- 街中ですが夜は割と静かに過ごせますし、スーパーやコンビニもいくつかあるので1人でもファミリーでも過ごしやすい街だと思う。
- 京都府京都市中京区油小路通四条上る東入に住む人の口コミ60代男性
- 日常生活を送っていくにあたって、何の不便も感じたことがないから
- 京都府京都市中京区西洞院通錦小路下るに住む人の口コミ40代女性
- 街の中心部にあるため、自然が少なく、四季が感じられないが、それ以外は概ね満足している
- 京都府京都市下京区四条通岩上東入に住む人の口コミ30代男性
- 交通の便がよく、夜に買い物にも行けるが、救急車の出動や、車の通りが多いため、寝る時間に騒がしい。
- 京都府京都市中京区堀川通錦小路下るに住む人の口コミ40代男性
- 交通の利便性がよく、買い物もしやすい。公園など子供の遊び場が少ないのがマイナス
- 京都府京都市中京区油小路通四条上る東入に住む人の口コミ60代男性
- 十秒でコンビニエンスストアに行けて、自宅の隣はコインパーキングになっているので、急な来客にも困らない。
物件概要
- 建物構造
- RC(鉄筋コンクリート)
- 駐車場
- 無
- 総戸数
- 14戸
- 契約形態
- -
- 契約期間
- 2年間
- 更新料
- 新賃料の1ヶ月分
- その他費用
- -
- 保証会社
- -
- 住宅保険
- 要
- 管理
- -
- LIFULL HOME'S
物件番号 - 0105901-0291123
- 自社管理番号
- 09693-702-10
- 取引態様
- 仲介
- 会社名
- 株式会社京都ライフ 京都駅前店
営業スタッフコメント

株式会社京都ライフ 京都駅前店営業
新井温美
やればできる!
業界経験1年
- 会社実績や特徴・サービス情報
- 京都で昭和53年の創業より培ってきた安心と信頼の賃貸不動産会社「京都ライフ」です。 物件掲載数も京都で一番豊富です。 お探しの同じエリア内や近隣の駅からじっくりお部屋探しをして、理想の賃貸物件を見つけられるようお手伝いさせて頂きます。 京都でお部屋探しをご希望の方や掲載物件以外の賃貸情報のご依頼、お部屋に関するご質問などもお気軽にお問合せください。
京都で昭和53年の創業より培ってきた安心と信頼の賃貸不動産会社「京都ライフ」です。 物件掲載数も京都で一番豊富です。 お探しの同じエリア内や近隣の駅からじっくりお部屋探しをして、理想の賃貸物件を見つけられるようお手伝いさせて頂きます。 京都でお部屋探しをご希望の方や掲載物件以外の賃貸情報のご依頼、お部屋に関するご質問などもお気軽にお問合せください。
- 電話でお問合せ(通話無料)
お問合せ先 :株式会社京都ライフ 京都駅前店
不動産会社情報
株式会社京都ライフ 京都駅前店京都ライフ京都駅前店
京都府京都市下京区塩小路通東洞院西入東塩小路町717-1 京都駅前ビル2階
JR東海道・山陽本線 京都駅 徒歩2分
- 営業時間
- 09:30~19:00
- 定休日
- 年中無休(盆正月を除く)
京都不動産会社部屋付け数No1京都ライフ京都駅前店です。京都最大級の情報量のもと、お客様にピッタリのお部屋をご紹介させて頂きます。スタッフ全員が「ありがとう」の心で楽しいお部屋探しのお手伝いいたします
- 店舗の特徴
- 賃貸管理業務
- 24時間管理物件取扱い
- リフォーム対応
- 引越し業者紹介可
- 年中無休
- 保証人不要な物件あり
- 法人契約取扱い
- 女性スタッフ対応可
- 駅から歩いて3分以内
電話でお問合せお客様の電話番号は不動産会社には通知されません
- 不動産会社に
つながります
お客様の電話番号は不動産会社に通知されません
- ※光IP電話、及びIP電話からはご利用になれません
- ※お電話によるお問合せは、店舗営業時間内にお願いします。つながらない場合は、お問合せフォームよりお問合せください
- ※不動産会社がお電話に出られなかった場合、お問合せいただいた後に不動産会社より折り返しのお電話がある場合がございます(お客様が非通知設定した場合は対象外です)
- ※株式会社LIFULLは電話会社が提供するサービスを介してお客様の発信者番号を受領後、折り返し専用の電話番号を発番してお問合せの不動産会社に通知します(お客様の発信者番号がお問合せの不動産会社に通知されることはございません)
- ※携帯電話からお問合せいただいた方に対し、株式会社LIFULLは電話会社が提供するメッセ―ジサービスを介してお客様の発信者番号を受領後、ショートメッセージ(SMS)またはLINE通知メッセージによるお問合せ内容に関する通知をお届けする場合があります
- ※お客様が通話中に不動産会社にお伝えになったお客様の個人情報及び、電話会社が発番する折り返し専用の電話番号は、お問合せ先不動産会社が資料送付・電子メール送信・電話連絡などの目的で保管する可能性があります。お問合せ先不動産会社が保管する個人情報の取扱いについては、各不動産会社に直接お問合せください
- ※株式会社LIFULLでは本サービスを円滑に運用するために、お客様の発信者番号をサービスご利用の控えとして一定期間保管いたします
- ※上記および株式会社LIFULLの個人情報の取扱い方針に同意のうえ、お電話ください
【LIFULL HOME'S物件番号】0105901-0291123【自社管理番号】09693-702-10
オンライン対応
オンライン内見・オンライン相談・IT重説に対応している物件です

「オンライン内見」「オンライン相談」「IT重説」とは?
物件の内見や不動産会社スタッフとの相談、契約前の重要事項説明をオンライン(ビデオ通話)で行うことができるサービスです。
オンライン内見
ビデオ通話で現地(物件)にいる不動産会社スタッフと映像・音声を使ってリアルタイムで会話しながら内見ができます。
オンライン相談
「物件について聞きたいことがある」など不動産会社スタッフへの相談もビデオ通話で行うことができます。
IT重説
契約前の重要事項説明(重説)をビデオ通話で行うことができます。
利用時の注意事項
- ビデオ通話については各不動産会社指定のものとなります。
- ビデオ通話利用時には通信が発生します。従量課金制通信サービスや通信量に上限があるネット回線・プランを利用する場合は、通信量にご注意ください。
- 通信速度やアプリの設定によってはビデオ通話の画質が低下することがあります。安定した画質で利用するためにも、Wi-Fi環境下での利用を推奨します。
- ご利用のビデオ通話アプリによっては、対象のOSやブラウザに制限がある場合があります。詳しくはお問合せ先不動産会社にご確認ください。
初期費用・月額費用をあわせて確認!この物件に住んだときの費用めやす
めやすを見るこの物件に住んだときの費用めやす
- 初期費用
- 月額費用
- 追加費用※ご確認ください
追加で費用が
かかる場合があります
必ずご確認ください
初期費用めやす約0円
追加で費用がかかります(※)敷金
160,000
- 礼金
320,000
賃料+共益費・管理費の1ヶ月分として換算
賃料の1ヶ月分+税として換算。不動産会社によって金額が異なるため正確な金額は不動産会社にお問合せください
※追加費用もチェック!
これらの項目以外にも費用がかかる場合があります。正確な金額は不動産会社にお問合せください。
- 初期費用
- 鍵交換費:不動産会社に要確認
- 室内清掃費:不動産会社に要確認
- 火災保険費:不動産会社に要確認
- 保証会社
- 不動産会社に要確認
不動産会社より
洛央小学校区 賃貸 洛王小学校区 分譲賃貸 地下鉄四条駅まで徒歩7分の分譲賃貸マンションです。
京福、阪急、地下鉄のトリプルアクセス。嬉しい3点セパレートに浴室乾燥機、追い焚き機能付浴室、システムキッチンなど充実の設備。オートロック、警備保障、防犯カメラ、TVホンでセキュリティも安心です。コンビニ、スーパー、ドラッグストアなど近くにあって便利ですよ。インターネットは光対応、無料でご利用いただけます。 物件情報はもちろん京都のエリア情報まで幅広く対応させていただきます!
- 保存する
- 共有する
- ※各種情報と現状に差異がある場合は、現状優先となります
- ※不動産会社が入力した情報を基に物件の位置を表示しています。詳しくは不動産会社までお問合せください
- ※不動産会社の方からの上記電話番号によるお問合せはお断りしております。こちら不動産会社詳細からお問合せください
- ※LIFULL HOME'Sは物件鮮度No.1を目指していきます。閲覧中の物件が「成約済である」「実際の物件情報と異なる点がある」などの場合、「掲載110番」からお問合せください
- ※QRコードは株式会社デンソーウェーブの登録商標です
同じ建物の他の部屋
LIFULL HOME'S 地図・周辺情報
買い物
- ファミリーマート 堀川綾小路店
- ライフ 四条烏丸店
- ドラッグひかり四条堀川店
- セブンイレブン 京都四条堀川店
- フレスコ 四条店
グルメ
- すき家 四条堀川店
- タリーズコーヒー京都四条烏丸店
- まいどおおきに食堂 四条西洞院食堂
- やよい軒 四条烏丸店
- タリーズコーヒー四条大宮店
育児・教育
- 池坊保育園
- 京都市立下京雅小学校
- 京都市立洛友中学校
- 光林保育園
- 京都市立洛中小学校
医療
- 山元病院
- 医療法人知音会京都新町病院
- 医療法人毛利病院
- 医療法人財団足立病院
- 医療法人令寿会しまばら病院
公共施設・郵便局
- 京都西洞院綾小路郵便局
- 京都市下京図書館
- 京都府下京警察署
- 京都堀川仏光寺郵便局
- 京都市こどもみらい館子育て図書館
公園
- 光徳公園
- 梅屋広場公園
- 梅小路公園
- 梅小路公園
- 京都御苑
利用可能な駅
- 徒歩10分以内
阪急京都本線
- 大宮駅徒歩5分
京都市営烏丸線
- 四条駅徒歩7分
- 周辺情報は2023年07月21日時点のものになります。
- 周辺情報は、参考情報としてのみご利用ください(周辺情報は、株式会社LIFULLが地図情報の提供事業者から提供を受けた情報とLIFULL HOME'Sの物件情報に基づき、独自の方法で抽出し提供しているものです。周辺情報は、移転や閉鎖等により情報が最新ではない、または正しくない場合がありますが、地図情報の提供事業者から提供された情報をそのまま周辺情報として表示しているため、正確かつ最新の情報へ修正することができないことがあります。)
- 周辺情報は、株式会社LIFULLが掲載するものであり、不動産物件情報を掲載している不動産会社が掲載するものではありません
- 交通情報の一部については、株式会社LIFULLが掲載するものであり、不動産物件情報を掲載している不動産会社が掲載するものではない場合があります。交通情報に関する質問などは株式会社LIFULLにお問合せください








