LIFULL HOME'Sは物件鮮度No.1!※評価について
NEORA Ray Materia B棟 1階/5
23.5万円/管理費等5,000円
5時間前 更新
お問合せ先 :株式会社ハウスメイトショップ 香椎店
引越し料金割引
ご成約で引越料金の割引業者紹介! 何社かご紹介可能です!
- 利用条件
- 株式会社ハウスメイトショップ 香椎店で利用可
- 他特典との併用可
利用方法
来店時に本特典の画面をスマートフォンやタブレットでスタッフに提示、または画面印刷した用紙を提示ください。
有効期限 なし
【入居受付開始】2025年4月下旬入居予定のガレージ付の未来型集合住宅。
基本情報
不動産用語- 賃料
- 23.5万円
- 管理費等
- 5,000円
初期費用などお気軽にお問合せください
- 敷金/礼金
- 無/2ヶ月
- 保証金/敷引・償却金
- -/-
- 交通
JR鹿児島本線 福間駅 徒歩7分
JR鹿児島本線 千鳥駅 徒歩25分
- 所在地
福岡県福津市花見が丘1丁目
地図を見る- 築年月
- 2026年4月(新築)
- 主要採光面
- 西
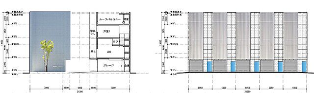
- 専有面積
- 119.05㎡
- バルコニー面積
- -
- 所在階/階数
- 1階/3階建
入居可能日などお気軽にお問合せください
- 現況
- 未完成
- 入居可能時期
- 2026年04月 下旬

人気物件はすぐに埋まってしまいます。
気になったらお早めにお問合せください。
- 情報公開日
2025/09/18
67日前 公開
- 情報更新日
2025/11/24
5時間前 更新
- 次回更新
予定日 - 2025/11/30
物件のこだわり/設備・条件
新築(該当)
2階以上の物件(非該当)
南向き(非該当)
駐車場あり(該当)
オートロック(該当)
エアコン(該当)
バス・トイレ別(該当)
追焚機能(該当)
フローリング(非該当)
ペット相談可(該当)
位置
角部屋入居条件
事務所可(SOHO向け)、二人入居可、ペット相談、ルームシェア可、保証人不要キッチン/バス・トイレ
ガスコンロ設置済、コンロ三口、システムキッチン、給湯、専用バス、専用トイレ、バス・トイレ別、追焚機能、シャワー、シャワー付洗面化粧台、温水洗浄便座、洗面所独立設備・サービス
オートロック、TVモニタ付インターホン、エアコン、クローゼット、シューズボックス、インターネット対応、公営水道、プロパンガス、下水、メゾネット、バルコニー、ロフト付き、室内洗濯機置場、駐車場ありその他
住まい探し特典あり備考
短期解約違約金:1年未満家賃の1ヵ月分、解約時、契約者負担にて美装代が必要となります。、ペット相談(小型犬、猫計2匹迄飼育可能。ペット飼育時退去時クリーニング費用家賃1か月分)、子供可
物件周辺の生活情報
学校
- 福津市立福間小学校(700m)
- 福津市立福間中学校(750m)
買い物
- コンビニ(700m)
- スーパー(260m)
その他施設
- コンビニ(450m)
交通
- JR鹿児島本線 福間駅 徒歩7分
- 普通(停車)
- 区間快速(門司港-八代)(停車)
- 快速(門司港-八代)(停車)
- JR鹿児島本線 千鳥駅 徒歩25分
- 普通(停車)
- 区間快速(門司港-八代)(通過)
- 快速(門司港-八代)(通過)
※急行等の停車駅情報について
急行等の停車駅に関するデータは、随時更新をしておりますが、最新の内容であることを保証するものではありません。
最新かつ正確な情報につきましては、各鉄道会社のウェブサイトにてご確認ください
物件周辺の口コミ
- 福岡県福津市花見が丘に住む人の口コミ30代女性
合併して市になる前から住み続けていて、自然海や山も近くにあり、何より空が広く感じられる所が好きです。住宅街や病院商業施設も増えて便利になる反面、自然は減りマナーの悪い方が増えた所が少し寂しいです。
口コミを見る
この物件周辺に住む人の口コミ
口コミは、LIFULL HOME'Sが実際にこの物件の周辺に住む18歳~69歳の男女を対象に、WEBアンケート調査を実施しています。内容には回答者の主観的な表現が含まれる場合があるほか、事実と異なる場合もございます。ご了承ください。
- 福岡県福津市花見が丘に住む人の口コミ30代女性
- 合併して市になる前から住み続けていて、自然海や山も近くにあり、何より空が広く感じられる所が好きです。住宅街や病院商業施設も増えて便利になる反面、自然は減りマナーの悪い方が増えた所が少し寂しいです。
- 福岡県福津市花見が丘に住む人の口コミ30代女性
- 買い物も15分圏内で大体揃うし、子育てしやすく昼間出歩く人にはいい場所だが、夜出歩く人にはおすすめできない。夜はほとんど人通りもなく、開いてる飲食店やスーパーがほとんどない。
- 福岡県福津市花見が丘に住む人の口コミ30代男性
- 町の開発が進んでおり若者世帯が多く転入してくるため町としては活気があり、インフラが充実してきているから
- 福岡県福津市花見が丘に住む人の口コミ40代男性
- 程よい田舎にもかかわらず、買い物に困らない。都心の間にある為、若干交通の便が悪い。
- 福岡県福津市花見が丘に住む人の口コミ30代女性
- 人の感じがガサツではあるが、福岡の他の地域に比べればマシ。田舎なので店は少ない。私は車がなくても生活できる場所で田舎暮らしをのんびりしたかったので、人の問題が解消すれば満足の住み心地。
- 福岡県福津市花見が丘に住む人の口コミ50代女性
- 海が近く自然が豊かで、子育てをしやすい環境と医療施設や買い物など充実した生活ができる所。
- 福岡県福津市花見が丘に住む人の口コミ40代男性
- 買い物のしやすさは良いが市のサービスが不足しているように思える。
- 福岡県福津市花見が丘に住む人の口コミ30代女性
- 車がないと不便な点はあるが、普段の買い物は徒歩圏内で済ませられるし、綺麗な海が近く、自然も感じられるから
- 福岡県福津市光陽台に住む人の口コミ30代女性
- 近くにイオンモールができて、スーパーやコンビニが増えて買い物がしやすくなった為
- 福岡県古賀市舞の里に住む人の口コミ60代女性
- 少し足を延ばせば、海も山も、大きな複合施設もあり、静かですみやすい。
物件概要
- 建物構造
- RC(鉄筋コンクリート)
- 駐車場
- 空有 13,200円(税込)
- 総戸数
- 5戸
- 契約形態
- -
- 契約期間
- 2年間
- 更新料
- -
- その他費用
- 仲介手数料:258,500円、消毒代:41,800円、Nサポート:1,210円
- 保証会社
加入要
保証会社:えるく、全保連、OFI
保証会社利用料:初回保証料総額賃料100%、継続更新料1年毎1万
- 住宅保険
- 要
- 管理
- -
- LIFULL HOME'S
物件番号 - 0122882-0031549
- 自社管理番号
- 5855051-1
- 取引態様
- 専任媒介
- 会社名
- 株式会社ハウスメイトショップ 香椎店
営業スタッフコメント

株式会社ハウスメイトショップ 香椎店
松永英里香
お部屋のことならなんでもご相談ください!
業界経験1年
- 会社実績や特徴・サービス情報
- ハウスメイト香椎店は西鉄貝塚線「西鉄香椎」駅より徒歩2分、JR鹿児島本線「香椎」駅より徒歩3分。天神方面・博多方面からもアクセス良好。福岡市東区方面のお部屋探しはハウスメイト香椎店へお任せください。当店では店内にキッズルームをご用意しております。ご家族連れのお客様もお気軽にご来店ください。お車でお越しの際は近隣コインパーキングへ駐車ください。お帰りの際にご精算を致します。(お声がけください。)
ハウスメイト香椎店は西鉄貝塚線「西鉄香椎」駅より徒歩2分、JR鹿児島本線「香椎」駅より徒歩3分。天神方面・博多方面からもアクセス良好。福岡市東区方面のお部屋探しはハウスメイト香椎店へお任せください。当店では店内にキッズルームをご用意しております。ご家族連れのお客様もお気軽にご来店ください。お車でお越しの際は近隣コインパーキングへ駐車ください。お帰りの際にご精算を致します。(お声がけください。)
- 電話でお問合せ(通話無料)
お問合せ先 :株式会社ハウスメイトショップ 香椎店
不動産会社情報
株式会社ハウスメイトショップ 香椎店株式会社ハウスメイトショップ 香椎店

福岡県福岡市東区香椎駅前1丁目17‐40 ブルパラッツォ1F
JR鹿児島本線 香椎駅 徒歩2分
- 営業時間
- 10:00~18:00
- 定休日
- 水曜日、GW、8/12〜8/15、年末年始
優良店認定
福岡市東区・糟屋郡新宮町・古賀市・宗像市・福津市と幅広いエリアの賃貸情報が豊富です。東部エリアでお部屋を探される方はぜひ当社へおまかせ下さい。社員一同お客様の立場になって親身に対応させて頂きます。
- 店舗の特徴
- 賃貸管理業務
- 引越し業者紹介可
- オンライン相談可
- 保証人不要な物件あり
- 法人契約取扱い
- 女性スタッフ対応可
- 駅から歩いて3分以内
電話でお問合せお客様の電話番号は不動産会社には通知されません
- 不動産会社に
つながります
お客様の電話番号は不動産会社に通知されません
- ※光IP電話、及びIP電話からはご利用になれません
- ※お電話によるお問合せは、店舗営業時間内にお願いします。つながらない場合は、お問合せフォームよりお問合せください
- ※不動産会社がお電話に出られなかった場合、お問合せいただいた後に不動産会社より折り返しのお電話がある場合がございます(お客様が非通知設定した場合は対象外です)
- ※株式会社LIFULLは電話会社が提供するサービスを介してお客様の発信者番号を受領後、折り返し専用の電話番号を発番してお問合せの不動産会社に通知します(お客様の発信者番号がお問合せの不動産会社に通知されることはございません)
- ※携帯電話からお問合せいただいた方に対し、株式会社LIFULLは電話会社が提供するメッセ―ジサービスを介してお客様の発信者番号を受領後、ショートメッセージ(SMS)またはLINE通知メッセージによるお問合せ内容に関する通知をお届けする場合があります
- ※お客様が通話中に不動産会社にお伝えになったお客様の個人情報及び、電話会社が発番する折り返し専用の電話番号は、お問合せ先不動産会社が資料送付・電子メール送信・電話連絡などの目的で保管する可能性があります。お問合せ先不動産会社が保管する個人情報の取扱いについては、各不動産会社に直接お問合せください
- ※株式会社LIFULLでは本サービスを円滑に運用するために、お客様の発信者番号をサービスご利用の控えとして一定期間保管いたします
- ※上記および株式会社LIFULLの個人情報の取扱い方針に同意のうえ、お電話ください
【LIFULL HOME'S物件番号】0122882-0031549【自社管理番号】5855051-1
初期費用・月額費用をあわせて確認!この物件に住んだときの費用めやす
めやすを見るこの物件に住んだときの費用めやす
- 初期費用
- 月額費用
- 追加費用※ご確認ください
追加で費用が
かかる場合があります
必ずご確認ください
※追加費用もチェック!
これらの項目以外にも費用がかかる場合があります。正確な金額は不動産会社にお問合せください。
- 初期費用
- 鍵交換費:不動産会社に要確認
- 室内清掃費:不動産会社に要確認
- 火災保険費:不動産会社に要確認
- 月額費用
- 駐車場費:13,200円(税込)※契約任意
- その他
- 消毒代:41800円
- Nサポート:1210円
- 保証会社
- 初回保証料総額賃料100%、継続更新料1年毎1万
不動産会社より
【入居受付開始】2025年4月下旬入居予定のガレージ付の未来型集合住宅。
短期解約違約金:1年未満家賃の1ヵ月分、解約時、契約者負担にて美装代が必要となります。、ペット相談(小型犬、猫計2匹迄飼育可能。ペット飼育時退去時クリーニング費用家賃1か月分)、子供可
- 保存する
- 共有する
- ※各種情報と現状に差異がある場合は、現状優先となります
- ※不動産会社が入力した情報を基に物件の位置を表示しています。詳しくは不動産会社までお問合せください
- ※不動産会社の方からの上記電話番号によるお問合せはお断りしております。こちら不動産会社詳細からお問合せください
- ※LIFULL HOME'Sは物件鮮度No.1を目指していきます。閲覧中の物件が「成約済である」「実際の物件情報と異なる点がある」などの場合、「掲載110番」からお問合せください
- ※QRコードは株式会社デンソーウェーブの登録商標です
したい暮らしのタグから探す
LIFULL HOME'S 地図・周辺情報
買い物
- ローソン 福津花見が丘一丁目店
- ゆめマート福津
- ディスカウントドラッグコスモス福間駅前店
- ファミリーマート JR福間駅店
- グリーンコープ 生協ふくおか福間店
グルメ
- リンガーハット 福岡福間店
- コメダ珈琲店福間駅南店
- ウエスト 福津店
- やよい軒 福津店
- ジョイフル 福岡福津店
育児・教育
- 双葉花見が丘保育園
- 福津市立福間小学校
- 福津市立福間中学校
- いろどり真愛保育園
- 福津市立福間南小学校
医療
- 医療法人恵愛会福間病院
- 宗像水光会総合病院
- 宮城病院
- 北九州古賀病院
- 医療法人社団宗正会東福間病院
公共施設・郵便局
- 福間郵便局
- 福津市立図書館
- 福津市役所
- イオンモール福津郵便局
- カメリアステージ図書館
公園
- 千鳥ケ池地区公園
- 福津市総合運動公園なまずの郷
利用可能な駅
- 徒歩10分以内
JR鹿児島本線
- 福間駅徒歩7分
- すべての駅
JR鹿児島本線
- 千鳥駅徒歩25分
- 周辺情報は2023年07月21日時点のものになります。
- 周辺情報は、参考情報としてのみご利用ください(周辺情報は、株式会社LIFULLが地図情報の提供事業者から提供を受けた情報とLIFULL HOME'Sの物件情報に基づき、独自の方法で抽出し提供しているものです。周辺情報は、移転や閉鎖等により情報が最新ではない、または正しくない場合がありますが、地図情報の提供事業者から提供された情報をそのまま周辺情報として表示しているため、正確かつ最新の情報へ修正することができないことがあります。)
- 周辺情報は、株式会社LIFULLが掲載するものであり、不動産物件情報を掲載している不動産会社が掲載するものではありません
- 交通情報の一部については、株式会社LIFULLが掲載するものであり、不動産物件情報を掲載している不動産会社が掲載するものではない場合があります。交通情報に関する質問などは株式会社LIFULLにお問合せください













