LIFULL HOME'Sは物件鮮度No.1!※評価について
レオネクスト夢追人(2階/201/ワンルーム/26.5m²)
レオネクスト夢追人(2階/201/ワンルーム/26.5m²)
7.9万円/管理費等7,000円
23時間前 更新
画像一覧
1/21
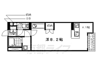
間取り
代表的な間取のため実際の間取とは異なる場合があります
2/21
外観
同志社大学へ通学される方におススメ!
3/21
リビング/ダイニング
1Fはフローリング仕様・2Fは遮音フローリング仕様
4/21
リビング/ダイニング
5/21
リビング/ダイニング
6/21
リビング/ダイニング
7/21
リビング/ダイニング
8/21
室内
9/21
室内
10/21
キッチン
11/21
浴室
12/21
玄関
13/21
その他
14/21
その他
15/21
その他
16/21
その他
17/21
その他
18/21
その他
19/21
その他
20/21
その他
駐輪場
21/21
その他
ゴミ置場
間取り
外観
リビング/ダイニング
リビング/ダイニング
リビング/ダイニング
リビング/ダイニング
リビング/ダイニング
室内
室内
キッチン
浴室
玄関
その他
その他
その他
その他
その他
その他
その他
その他
その他
お問合せ先 :レオパレスセンター京都第1
1〜4月は引越しシーズンのピークです。お問合せはお早めに!
インターネット使い放題・U-NEXT一般作品見放題プラン有
基本情報
不動産用語- 賃料
- 7.9万円
- 管理費等
- 7,000円
初期費用などお気軽にお問合せください
- 敷金/礼金
- 無/1ヶ月
- 保証金/敷引・償却金
- -/-
- 交通
JR片町線(学研都市線) JR三山木駅 徒歩5分
近鉄京都線 三山木駅 徒歩6分
- 所在地
京都府京田辺市三山木中央8丁目
地図を見る- 築年月
- 2014年4月(築13年)
- 主要採光面
- 西
- 専有面積
- 26.5㎡
- バルコニー面積
- -
- 所在階/階数
- 2階/2階建
入居可能日などお気軽にお問合せください
- 現況
- 居住中
- 入居可能時期
- 2026年04月 中旬

人気物件はすぐに埋まってしまいます。
気になったらお早めにお問合せください。
- 情報公開日
2026/02/27
34日前 公開
- 情報更新日
2026/04/01
23時間前 更新
- 次回更新
予定日 - 2026/04/03
物件のこだわり/設備・条件
新築(非該当)
2階以上の物件(該当)
南向き(非該当)
駐車場(非該当)
オートロック(非該当)
エアコン(該当)
バス・トイレ別(該当)
追焚機能(非該当)
フローリング(非該当)
ペット相談(非該当)
位置
角部屋キッチン/バス・トイレ
設備・サービス
防犯カメラ、TVモニタ付インターホン、エアコン、インターネット対応、バルコニー、室内洗濯機置場、家具・家電付き、駐輪場あり備考
環境維持費:1ヶ月550円(税込)、鍵交換費:ご契約時16500円(税込)、退去時清掃費:41800円(税込)、インターネット利用料:有料、更新手数料:16500円(税込)、保証委託料:必要、引落手数料:524円(税込)
物件周辺の生活情報
交通
- JR片町線(学研都市線) JR三山木駅 徒歩5分
- 普通(停車)
- 区間快速(停車)
- 快速(停車)
- 近鉄京都線 三山木駅 徒歩6分
- 普通(停車)
- 準急(通過)
- 急行(停車)
※急行等の停車駅情報について
急行等の停車駅に関するデータは、随時更新をしておりますが、最新の内容であることを保証するものではありません。
最新かつ正確な情報につきましては、各鉄道会社のウェブサイトにてご確認ください
物件周辺の口コミ
- 京都府京田辺市三山木中央に住む人の口コミ30代男性
自然環境が豊かな上に生活するうえでの必要なものが徒歩圏で揃います。また京都大阪までのアクセスも良く、治安もいいので安心して子育てができます。
口コミを見る
この物件周辺に住む人の口コミ
口コミは、LIFULL HOME'Sが実際にこの物件の周辺に住む18歳~69歳の男女を対象に、WEBアンケート調査を実施しています。内容には回答者の主観的な表現が含まれる場合があるほか、事実と異なる場合もございます。ご了承ください。
- 京都府京田辺市三山木中央に住む人の口コミ30代男性
- 自然環境が豊かな上に生活するうえでの必要なものが徒歩圏で揃います。また京都大阪までのアクセスも良く、治安もいいので安心して子育てができます。
- 京都府京田辺市三山木中央に住む人の口コミ20代女性
- 【良い点】子育て世帯が多い。最寄りのスーパーが安い。JRと近鉄両方利用できる。子育て支援センターが近い。幼稚園と小学校が近い。家の周りが基本的に静か。【悪い点】虫が多い。病院の種類が少ない。
- 京都府京田辺市三山木中央に住む人の口コミ30代女性
- 段々、発展してきておりお店も増えている。ただ、車がないと少し不便な部分も否めない。
- 京都府京田辺市三山木中央に住む人の口コミ30代女性
- 電車の本数が30分に1本しかない。夜遅くまでやっているスーパーがない。ダブルアクセスがあり便利。夜が静か。街が整備され始めている
- 京都府京田辺市三山木中央に住む人の口コミ20代女性
- 買い物するには十分やし公園なども多いけど大型商業施設やもう少し子どもが遊んだり楽しめる大きいなにかがほしい
- 京都府京田辺市三山木中央に住む人の口コミ30代女性
- 2つの路線の駅近に住んでいるので、京都、奈良、大阪などの主要都市に出やすい。食料品などを買うのには困らない数のスーパーがあるし、あまり利用しないが大手3社のコンビニもある。
- 京都府京田辺市三山木中央に住む人の口コミ30代女性
- 生活用品や、食料品、病院、駅が近くにある。歩道も綺麗で大きく、自転車や徒歩で安心して移動できる。
- 京都府京田辺市三山木中央に住む人の口コミ30代女性
- コンビニやスーパー、ドラッグストアが近くにあって日常の買い物は近くで済ませられるし、駅が近いのも嬉しい。住宅地などで同世代の家族が多いのも嬉しい。歩いていける距離に公園があるのも嬉しい。
- 京都府京田辺市三山木中央に住む人の口コミ20代男性
- 物価が安いので生活費が安いが、寒暖差が激しく、住みにくいところ
- 京都府京田辺市三山木中央に住む人の口コミ20代女性
- 近くに駅があるため、大きな街に出やすい。しかし、終電が早いため遅くまで出かけられない。また、本屋や図書館、銭湯が近くにないことが不満である。
物件概要
- 建物構造
- 木造
- 駐車場
- -
- 総戸数
- 14戸
- 契約形態
- -
- 契約期間
- -
- 更新料
- 16,500円
- その他費用
- 鍵交換費用:16,500円、室内清掃費用:41,800円
- 保証会社
- -
- 住宅保険
- 要
- 管理
- -
- LIFULL HOME'S
物件番号 - 3706583-0034068
- 自社管理番号
- 53604-201
- 取引態様
- 貸主★
- 会社名
- レオパレスセンター京都第1
- 電話でお問合せ(通話無料)
お問合せ先 :レオパレスセンター京都第1
不動産会社情報
レオパレスセンター京都第1

京都府京都市中京区烏丸通錦小路上る手洗水町670 京都フクトクビル1F
阪急京都本線 烏丸駅 徒歩3分
- 営業時間
- 10:00~18:00
- 定休日
- 定休日なし
日管協加盟
優良店認定
電話でお問合せお客様の電話番号は不動産会社には通知されません
- 不動産会社に
つながります
お客様の電話番号は不動産会社に通知されません
- ※光IP電話、及びIP電話からはご利用になれません
- ※お電話によるお問合せは、店舗営業時間内にお願いします。つながらない場合は、お問合せフォームよりお問合せください
- ※不動産会社がお電話に出られなかった場合、お問合せいただいた後に不動産会社より折り返しのお電話がある場合がございます(お客様が非通知設定した場合は対象外です)
- ※株式会社LIFULLは電話会社が提供するサービスを介してお客様の発信者番号を受領後、折り返し専用の電話番号を発番してお問合せの不動産会社に通知します(お客様の発信者番号がお問合せの不動産会社に通知されることはございません)
- ※携帯電話からお問合せいただいた方に対し、株式会社LIFULLは電話会社が提供するメッセ―ジサービスを介してお客様の発信者番号を受領後、ショートメッセージ(SMS)またはLINE通知メッセージによるお問合せ内容に関する通知をお届けする場合があります
- ※お客様が通話中に不動産会社にお伝えになったお客様の個人情報及び、電話会社が発番する折り返し専用の電話番号は、お問合せ先不動産会社が資料送付・電子メール送信・電話連絡などの目的で保管する可能性があります。お問合せ先不動産会社が保管する個人情報の取扱いについては、各不動産会社に直接お問合せください
- ※株式会社LIFULLでは本サービスを円滑に運用するために、お客様の発信者番号をサービスご利用の控えとして一定期間保管いたします
- ※上記および株式会社LIFULLの個人情報の取扱い方針に同意のうえ、お電話ください
【LIFULL HOME'S物件番号】3706583-0034068【自社管理番号】53604-201
オンライン対応
オンライン相談・IT重説に対応している物件です

「オンライン内見」「オンライン相談」「IT重説」とは?
物件の内見や不動産会社スタッフとの相談、契約前の重要事項説明をオンライン(ビデオ通話)で行うことができるサービスです。
オンライン内見
ビデオ通話で現地(物件)にいる不動産会社スタッフと映像・音声を使ってリアルタイムで会話しながら内見ができます。
オンライン相談
「物件について聞きたいことがある」など不動産会社スタッフへの相談もビデオ通話で行うことができます。
IT重説
契約前の重要事項説明(重説)をビデオ通話で行うことができます。
利用時の注意事項
- ビデオ通話については各不動産会社指定のものとなります。
- ビデオ通話利用時には通信が発生します。従量課金制通信サービスや通信量に上限があるネット回線・プランを利用する場合は、通信量にご注意ください。
- 通信速度やアプリの設定によってはビデオ通話の画質が低下することがあります。安定した画質で利用するためにも、Wi-Fi環境下での利用を推奨します。
- ご利用のビデオ通話アプリによっては、対象のOSやブラウザに制限がある場合があります。詳しくはお問合せ先不動産会社にご確認ください。
初期費用・月額費用をあわせて確認!この物件に住んだときの費用めやす
めやすを見るこの物件に住んだときの費用めやす
- 初期費用
- 月額費用
- 追加費用※ご確認ください
追加で費用が
かかる場合があります
必ずご確認ください
※追加費用もチェック!
これらの項目以外にも費用がかかる場合があります。正確な金額は不動産会社にお問合せください。
- 初期費用
- 鍵交換費:16,500円
- 室内清掃費:41,800円
- 火災保険費:不動産会社に要確認
- 保証会社
- 不動産会社に要確認
不動産会社より
インターネット使い放題・U-NEXT一般作品見放題プラン有
環境維持費:1ヶ月550円(税込)、鍵交換費:ご契約時16500円(税込)、退去時清掃費:41800円(税込)、インターネット利用料:有料、更新手数料:16500円(税込)、保証委託料:必要、引落手数料:524円(税込)
- 保存する
- 共有する
- ※各種情報と現状に差異がある場合は、現状優先となります
- ※不動産会社が入力した情報を基に物件の位置を表示しています。詳しくは不動産会社までお問合せください
- ※不動産会社の方からの上記電話番号によるお問合せはお断りしております。こちら不動産会社詳細からお問合せください
- ※LIFULL HOME'Sは物件鮮度No.1を目指していきます。閲覧中の物件が「成約済である」「実際の物件情報と異なる点がある」などの場合、「掲載110番」からお問合せください
- ※QRコードは株式会社デンソーウェーブの登録商標です
したい暮らしのタグから探す
LIFULL HOME'S 地図・周辺情報
買い物
- ファミリーマート 京田辺三山木店
- サンディ三山木店
- キリン堂三山木店
- ローソン 三山木田中店
- サンフレッシュ三山木店
グルメ
- コメダ珈琲店京田辺三山木店
- まいどおおきに食堂 京田辺三山木食堂
- COCO’S 京田辺店
- なか卯 フォレストモール京田辺店
- マクドナルド 山城田辺店
育児・教育
- 京田辺市立三山木保育所
- 京田辺市立三山木小学校
- 私立同志社国際中学校
- みんなのき三山木こども園
- 京田辺市立草内小学校
医療
- 芳松会田辺病院
- 医療法人社団石鎚会同志社山手病院
- 医療法人社団石鎚会京都田辺中央病院
公共施設・郵便局
- 田辺三山木郵便局
- 京田辺市立中央図書館中部分室
- 井手町役場
- 草内郵便局
- 京田辺市立中央図書館
公園
- 鶴沢公園
- 田辺公園
利用可能な駅
- 徒歩10分以内
JR片町線(学研都市線)
- JR三山木駅徒歩5分
近鉄京都線
- 三山木駅徒歩6分
- 周辺情報は2023年07月21日時点のものになります。
- 周辺情報は、参考情報としてのみご利用ください(周辺情報は、株式会社LIFULLが地図情報の提供事業者から提供を受けた情報とLIFULL HOME'Sの物件情報に基づき、独自の方法で抽出し提供しているものです。周辺情報は、移転や閉鎖等により情報が最新ではない、または正しくない場合がありますが、地図情報の提供事業者から提供された情報をそのまま周辺情報として表示しているため、正確かつ最新の情報へ修正することができないことがあります。)
- 周辺情報は、株式会社LIFULLが掲載するものであり、不動産物件情報を掲載している不動産会社が掲載するものではありません
- 交通情報の一部については、株式会社LIFULLが掲載するものであり、不動産物件情報を掲載している不動産会社が掲載するものではない場合があります。交通情報に関する質問などは株式会社LIFULLにお問合せください





