LIFULL HOME'Sは物件鮮度No.1!※評価について
阪急京都本線 大宮駅 徒歩10分(2階/1K/40.5m²)
阪急京都本線 大宮駅 徒歩10分(2階/1K/40.5m²)
6.9万円/管理費等2,000円
2日前 更新
画像一覧
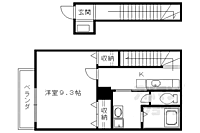
1/30間取り
間取
2/30外観
3/30外観
4/30リビング/ダイニング
築浅の綺麗な物件です
5/30室内
6/30寝室
7/30寝室
8/30寝室
9/30キッチン
ガスコンロ付きのキッチン
10/30キッチン
11/30キッチン
12/30キッチン
13/30キッチン
14/30浴室
浴室乾燥付き
15/30浴室
鏡の付いた便利なお風呂
16/30トイレ
セパレート
17/30洗面
独立洗面台
18/30洗面
19/30収納
たっぷり収納できます
20/30収納
21/30設備
靴収納付きの玄関
22/30設備
室内に設置可
23/30設備
24/30設備
25/30玄関
靴収納付きの玄関
26/30バルコニー
27/30その他
28/30その他
29/30その他
30/30周辺
ファミリーマート四条西新道店まで382m 四条通り沿いにあります。近くにファミレスも有りますよ
間取り
外観
外観
リビング/ダイニング
室内
寝室
寝室
寝室
キッチン
キッチン
キッチン
キッチン
キッチン
浴室
浴室
トイレ
洗面
洗面
収納
収納
設備
設備
設備
設備
玄関
バルコニー
その他
その他
その他
周辺
LINEチャットでも
相談できます
お問合せ先 :株式会社京都ライフ 烏丸五条店
1〜4月は引越しシーズンのピークです。お問合せはお早めに!
仲介手数料割引
仲介手数料50%(税別)でご成約頂けます。
- 利用条件
- 株式会社京都ライフ 烏丸五条店で利用可
- 他特典との併用可
- ※法人契約、積水ハウス、大東建託の管理物件は家賃1か月分の仲介手数料要。
利用方法
来店時に本特典の画面をスマートフォンやタブレットでスタッフに提示、または画面印刷した用紙を提示ください。
有効期限 なし
シャーメゾンシリーズ 積水ハウス「シャーメゾン」登場 京都の賃貸は京都ライフにお任せ下さい。
物件周辺の生活情報
学校
- 朱雀第三小学校(288m)
- 松原中学校(629m)
買い物
- コンビニ(382m)
- スーパー(554m)
その他施設
- 総合病院(619m)
- 銀行(353m)
- 中京警察署(723m)
交通
- 阪急京都本線 大宮駅 徒歩10分
- 普通(停車)
- 準急(停車)
- 堺筋準急(停車)
- 通勤特急(停車)
- 特急(通過)
- 急行(停車)
- 準特急(停車)
- 阪急京都本線 西院駅 徒歩10分
- 普通(停車)
- 準急(停車)
- 堺筋準急(停車)
- 通勤特急(停車)
- 特急(通過)
- 急行(停車)
- 準特急(停車)
※急行等の停車駅情報について
急行等の停車駅に関するデータは、随時更新をしておりますが、最新の内容であることを保証するものではありません。
最新かつ正確な情報につきましては、各鉄道会社のウェブサイトにてご確認ください
物件周辺の口コミ
- 京都府京都市中京区壬生松原町に住む人の口コミ30代女性
スーパーが近くにあり、交通機関かりもそう遠くないので便利ではあるが、小さい子供が安心して遊べる公園や、室内の施設がもう少し充実されていると良い。
口コミを見る
この物件周辺に住む人の口コミ
口コミは、LIFULL HOME'Sが実際にこの物件の周辺に住む18歳~69歳の男女を対象に、WEBアンケート調査を実施しています。内容には回答者の主観的な表現が含まれる場合があるほか、事実と異なる場合もございます。ご了承ください。
- 京都府京都市中京区壬生松原町に住む人の口コミ30代女性
- スーパーが近くにあり、交通機関かりもそう遠くないので便利ではあるが、小さい子供が安心して遊べる公園や、室内の施設がもう少し充実されていると良い。
- 京都府京都市下京区西七条南東野町に住む人の口コミ30代女性
- スーパーなど買い物できる場所が近くに何軒かあって、大きな公園もあるので子供とお散歩に行けたり、バスなど移動もしやすく住みやすいです。
- 京都府京都市中京区壬生西土居ノ内町に住む人の口コミ30代女性
- 買い物に困らず子育てしやすく交通の便も良く、不便なところがない
- 京都府京都市下京区七条御所ノ内西町に住む人の口コミ30代女性
- 日々の買い物が便利で外食場所も割と充実している。閑静で落ち着いている。
- 京都府京都市下京区西七条石井町に住む人の口コミ30代女性
- 近くにスーパーがあり、大型ショッピングセンターも自転車で行ける範囲にある。総合病院も近くにあり安心だから。
- 京都府京都市右京区西院月双町に住む人の口コミ30代女性
- 大型商業施設があるため、買い物に一応は困らない。その他にお洒落なお店や本屋、文房具屋、花屋などの店舗は少ない気がする。
- 京都府京都市右京区山ノ内養老町に住む人の口コミ30代女性
- 引っ越して5年ほど経ちましたがご近所さんにも恵まれ幼稚園、小学校も近く子供を育てる環境は整ってると思います。
- 京都府京都市中京区岩上通三条上るに住む人の口コミ20代女性
- 近くに区役所もあるし、商店街が近くで、なんでもある。お城もあるし、神社もあるし、歴史がある。
- 京都府京都市下京区西七条東八反田町に住む人の口コミ30代女性
- 徒歩圏内にスーパーやコンビニがあり、買い物に便利。近くに大きな公園もあるので、子育てしやすい。
- 京都府京都市下京区西七条掛越町に住む人の口コミ20代女性
- 必要なものをすぐに手に入れれる充実した店舗。公共の交通機関も近く、自転車で少し走ってもたくさんの娯楽施設やリラックススポットがあるため退屈しない。
物件概要
- 建物構造
- 軽量鉄骨造
- 駐車場
- 空無
- 総戸数
- 4戸
- 契約形態
- -
- 契約期間
- 2年間
- 更新料
- 新賃料の1ヶ月分
- その他費用
- 鍵交換費用:13,200円、室内清掃費用:55,000円、シャーメゾンライフSUPPRT24:1,320円
- 保証会社
加入要
保証会社:らくらくパートナー
保証会社利用料:初回:3.3万円/2年、月額:支払い手数料として月額賃料等の2%
- 住宅保険
- 要
- 管理
- 管理員:巡回
- LIFULL HOME'S
物件番号 - 0126938-0278944
- 自社管理番号
- 09711-201-23
- 取引態様
- 仲介
- 会社名
- 株式会社京都ライフ 烏丸五条店
営業スタッフコメント

株式会社京都ライフ 烏丸五条店賃貸仲介営業
中山登夢
お部屋探しは、私にお任せを!
業界経験2年
資格宅地建物取引士
- 会社実績や特徴・サービス情報
- この度は物件情報のご閲覧ありがとうございます。 ご案内ご希望の際は店頭・現地・最寄り駅等、 お客様のご都合に合わせお待ち合わせも可能です。 お気軽におっしゃってくださいませ。 お問い合わせを心よりお待ちしております。
この度は物件情報のご閲覧ありがとうございます。 ご案内ご希望の際は店頭・現地・最寄り駅等、 お客様のご都合に合わせお待ち合わせも可能です。 お気軽におっしゃってくださいませ。 お問い合わせを心よりお待ちしております。
- 電話でお問合せ(通話無料)
お問合せ先 :株式会社京都ライフ 烏丸五条店
不動産会社情報
京都の情報を熟知した店舗スタッフが、豊富な物件量で皆様のお部屋探しを全力でサポートさせていただきます!お客様からのお問い合わせ・ご来店、烏丸五条店スタッフ一同心よりお待ちしております。
- 店舗の特徴
- 引越し業者紹介可
- 系列店舗での対応可
- 社宅・寮物件取扱い
- オンライン相談可
- 保証人不要な物件あり
- 法人契約取扱い
- 女性スタッフ対応可
- 駅から歩いて3分以内
電話でお問合せお客様の電話番号は不動産会社には通知されません
- 不動産会社に
つながります
お客様の電話番号は不動産会社に通知されません
- ※光IP電話、及びIP電話からはご利用になれません
- ※お電話によるお問合せは、店舗営業時間内にお願いします。つながらない場合は、お問合せフォームよりお問合せください
- ※不動産会社がお電話に出られなかった場合、お問合せいただいた後に不動産会社より折り返しのお電話がある場合がございます(お客様が非通知設定した場合は対象外です)
- ※株式会社LIFULLは電話会社が提供するサービスを介してお客様の発信者番号を受領後、折り返し専用の電話番号を発番してお問合せの不動産会社に通知します(お客様の発信者番号がお問合せの不動産会社に通知されることはございません)
- ※携帯電話からお問合せいただいた方に対し、株式会社LIFULLは電話会社が提供するメッセ―ジサービスを介してお客様の発信者番号を受領後、ショートメッセージ(SMS)またはLINE通知メッセージによるお問合せ内容に関する通知をお届けする場合があります
- ※お客様が通話中に不動産会社にお伝えになったお客様の個人情報及び、電話会社が発番する折り返し専用の電話番号は、お問合せ先不動産会社が資料送付・電子メール送信・電話連絡などの目的で保管する可能性があります。お問合せ先不動産会社が保管する個人情報の取扱いについては、各不動産会社に直接お問合せください
- ※株式会社LIFULLでは本サービスを円滑に運用するために、お客様の発信者番号をサービスご利用の控えとして一定期間保管いたします
- ※上記および株式会社LIFULLの個人情報の取扱い方針に同意のうえ、お電話ください
【LIFULL HOME'S物件番号】0126938-0278944【自社管理番号】09711-201-23
オンライン対応
オンライン相談に対応している物件です

「オンライン内見」「オンライン相談」「IT重説」とは?
物件の内見や不動産会社スタッフとの相談、契約前の重要事項説明をオンライン(ビデオ通話)で行うことができるサービスです。
オンライン内見
ビデオ通話で現地(物件)にいる不動産会社スタッフと映像・音声を使ってリアルタイムで会話しながら内見ができます。
オンライン相談
「物件について聞きたいことがある」など不動産会社スタッフへの相談もビデオ通話で行うことができます。
IT重説
契約前の重要事項説明(重説)をビデオ通話で行うことができます。
利用時の注意事項
- ビデオ通話については各不動産会社指定のものとなります。
- ビデオ通話利用時には通信が発生します。従量課金制通信サービスや通信量に上限があるネット回線・プランを利用する場合は、通信量にご注意ください。
- 通信速度やアプリの設定によってはビデオ通話の画質が低下することがあります。安定した画質で利用するためにも、Wi-Fi環境下での利用を推奨します。
- ご利用のビデオ通話アプリによっては、対象のOSやブラウザに制限がある場合があります。詳しくはお問合せ先不動産会社にご確認ください。
初期費用・月額費用をあわせて確認!この物件に住んだときの費用めやす
めやすを見るこの物件に住んだときの費用めやす
- 初期費用
- 月額費用
- 追加費用※ご確認ください
追加で費用が
かかる場合があります
必ずご確認ください
初期費用めやす約0円
追加で費用がかかります(※)敷金
20,000
- 礼金
70,000
賃料+共益費・管理費の1ヶ月分として換算
賃料の1ヶ月分+税として換算。不動産会社によって金額が異なるため正確な金額は不動産会社にお問合せください
※追加費用もチェック!
これらの項目以外にも費用がかかる場合があります。正確な金額は不動産会社にお問合せください。
- 初期費用
- 鍵交換費:13,200円
- 室内清掃費:55,000円
- 火災保険費:不動産会社に要確認
- その他
- シャーメゾンライフSUPPRT24:1320円
- 保証会社
- 初回:3.3万円/2年、月額:支払い手数料として月額賃料等の2%
不動産会社より
シャーメゾンシリーズ 積水ハウス「シャーメゾン」登場 京都の賃貸は京都ライフにお任せ下さい。
- 保存する
- 共有する
- ※各種情報と現状に差異がある場合は、現状優先となります
- ※不動産会社が入力した情報を基に物件の位置を表示しています。詳しくは不動産会社までお問合せください
- ※不動産会社の方からの上記電話番号によるお問合せはお断りしております。こちら不動産会社詳細からお問合せください
- ※LIFULL HOME'Sは物件鮮度No.1を目指していきます。閲覧中の物件が「成約済である」「実際の物件情報と異なる点がある」などの場合、「掲載110番」からお問合せください
- ※QRコードは株式会社デンソーウェーブの登録商標です
この物件を取扱う他の会社
LIFULL HOME'Sでは、主要項目が同一の物件をまとめて表示しています。所在地や営業時間、掲載画像等から不動産会社を選んでお問合せください。
株式会社京都ライフ 立命館大学前店
優良店認定
京都府京都市北区小松原北町26-5
京福電気鉄道北野線 等持院・立命館大学衣笠キャンパス前駅 徒歩8分
- 営業時間
- 09:30~19:00
- 定休日
- 水曜定休(4/21〜9/20の期間)、盆・正月
同じ建物の他の部屋
LIFULL HOME'S 地図・周辺情報
買い物
- ローソンストア100 壬生辻町店
- スーパーマツモト 五条店
- ディスカウントドラッグコスモス壬生松原店
- セブンイレブン 京都壬生辻町店
- ライフ 四条大宮店
グルメ
- CoCo壱番屋 京都四条壬生店
- はま寿司四条壬生店
- スシロー 五条七本松店
- なか卯 四条壬生店
- モスバーガー 五条七本松店
育児・教育
- 壬生寺保育園
- 京都市立朱雀第三小学校
- 私立京都産業大学附属中学校
- 朱一保育園分園いちょうのおうち
- 京都市立光徳小学校
医療
- 医療法人回生会京都回生病院
- 一般財団法人京都地域医療学際研究所がくさい病院
- 安威医院
- 地方独立行政法人京都市立病院機構京都市立病院
- 医療法人令寿会しまばら病院
公共施設・郵便局
- 京都壬生松原郵便局
- 京都市下京図書館
- 京都府中京警察署
- 京都中堂寺郵便局
- 京都市中央図書館
公園
- 光徳公園
- 梅小路公園
- 梅小路公園
- 西院公園
- 東大丸公園
利用可能な駅
- 徒歩10分以内
JR山陰本線
- 丹波口駅徒歩9分
阪急京都本線
- 大宮駅徒歩10分
- 西院駅徒歩10分
- すべての駅
京福電気鉄道嵐山本線
- 四条大宮駅徒歩13分
- 西院駅徒歩14分
- 西大路三条駅徒歩21分
- 山ノ内駅徒歩32分
- 嵐電天神川駅3.4km
- 蚕ノ社駅3.6km
JR山陰本線
- 二条駅徒歩18分
- 梅小路京都西駅徒歩20分
- 円町駅徒歩36分
京都市営烏丸線
- 四条駅徒歩26分
- 五条駅徒歩28分
- 烏丸御池駅徒歩37分
- 丸太町駅3.5km
阪急京都本線
- 烏丸駅徒歩27分
- 西京極駅徒歩34分
- 京都河原町駅徒歩37分
京都地下鉄東西線
- 二条城前駅徒歩27分
- 西大路御池駅徒歩28分
- 烏丸御池駅徒歩36分
- 太秦天神川駅3.5km
- 京都市役所前駅3.8km
JR東海道・山陽本線
- 西大路駅徒歩34分
- 京都駅3.4km
京阪本線
- 清水五条駅3.2km
- 祇園四条駅3.2km
- 七条駅3.6km
近鉄京都線
- 東寺駅3.2km
- 周辺情報は2023年07月21日時点のものになります。
- 周辺情報は、参考情報としてのみご利用ください(周辺情報は、株式会社LIFULLが地図情報の提供事業者から提供を受けた情報とLIFULL HOME'Sの物件情報に基づき、独自の方法で抽出し提供しているものです。周辺情報は、移転や閉鎖等により情報が最新ではない、または正しくない場合がありますが、地図情報の提供事業者から提供された情報をそのまま周辺情報として表示しているため、正確かつ最新の情報へ修正することができないことがあります。)
- 周辺情報は、株式会社LIFULLが掲載するものであり、不動産物件情報を掲載している不動産会社が掲載するものではありません
- 交通情報の一部については、株式会社LIFULLが掲載するものであり、不動産物件情報を掲載している不動産会社が掲載するものではない場合があります。交通情報に関する質問などは株式会社LIFULLにお問合せください













