LIFULL HOME'Sは物件鮮度No.1!※評価について
京都市営烏丸線 今出川駅 徒歩12分4LDK/162.38㎡
京都市営烏丸線 今出川駅 徒歩12分4LDK/162.38㎡
37万円/管理費等20,000円
20時間前 更新
画像一覧
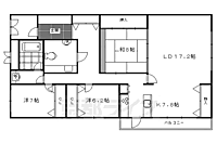
1/30間取り
間取
2/30外観
3/30外観
4/30リビング/ダイニング
5/30リビング/ダイニング
6/30リビング/ダイニング
7/30リビング/ダイニング
8/30室内
9/30キッチン
10/30キッチン
11/30キッチン
12/30キッチン
13/30キッチン
14/30キッチン
15/30キッチン
16/30浴室
17/30浴室
18/30トイレ
19/30洗面
20/30収納
21/30収納
22/30設備
23/30設備
24/30設備
25/30設備
26/30玄関
27/30バルコニー
28/30その他
29/30その他
30/30周辺
京都出雲路郵便局まで360m 鴨川近くに郵便局あります
間取り
外観
外観
リビング/ダイニング
リビング/ダイニング
リビング/ダイニング
リビング/ダイニング
室内
キッチン
キッチン
キッチン
キッチン
キッチン
キッチン
キッチン
浴室
浴室
トイレ
洗面
収納
収納
設備
設備
設備
設備
玄関
バルコニー
その他
その他
周辺
仲介手数料割引
仲介手数料 賃料50%(税別)でご紹介可能です。
- 利用条件
- 株式会社京都ライフ 四条烏丸店で利用可
- 他特典との併用可
- 法人契約・事業用は除きます。
利用方法
来店時に本特典の画面をスマートフォンやタブレットでスタッフに提示、または画面印刷した用紙を提示ください。
有効期限 なし
京極学区・稀少ファミリー物件 交通買物便利。鴨川近く環境良好。設備充実、居室広々。京極学区
基本情報
不動産用語- 賃料
- 37万円
- 管理費等
- 20,000円
初期費用などお気軽にお問合せください
- 敷金/礼金
- 20万円/50万円
- 保証金/敷引・償却金
- -/-
- 交通
京都市営烏丸線 今出川駅 徒歩12分
京都市営烏丸線 北大路駅 徒歩14分
- 所在地
京都府京都市上京区寺町通今出川上る2丁目鶴山町
地図を見る- 築年月
- 1990年12月(築36年)
- 主要採光面
- 北西
- 専有面積
- 162.38㎡
- バルコニー面積
- -
- 所在階/階数
- 3階/3階建(地下1階)
- 現況
- 空家
- 入居可能時期
- 即時

人気物件はすぐに埋まってしまいます。
気になったらお早めにお問合せください。
- 情報公開日
2025/11/09
34日前 公開
- 情報更新日
2025/12/12
20時間前 更新
- 次回更新
予定日 - 2025/12/25
物件のこだわり/設備・条件
新築(非該当)
2階以上の物件(該当)
南向き(非該当)
駐車場あり(該当)
オートロック(該当)
エアコン(該当)
バス・トイレ別(該当)
追焚機能(該当)
フローリング(該当)
ペット相談可(該当)
位置
角部屋入居条件
二人入居可、ペット相談、即入居可キッチン/バス・トイレ
設備・サービス
オートロック、管理人常駐、TVモニタ付インターホン、エアコン、シューズボックス、BS対応、有線放送、光ファイバー、公営水道、都市ガス、下水、フローリング、バルコニー、室内洗濯機置場、照明器具付き、エレベーター、駐車場あり、バイク置き場あり、駐輪場ありその他
リノベーション物件、住まい探し特典あり備考
京都市上京区 出町エリアの4LDKマンションです。叡山、京阪、地下鉄のトリプルアクセス。嬉しい3点セパレートにシステムキッチン、温水洗浄便座など充実の設備。オートロックでセキュリティも安心です。コンビニ、スーパー、ドラッグストアなど近くにあって便利ですよ。光ファイバー対応しています。 物件情報はもちろん京都のエリア情報まで幅広く対応させていただきます!
リノベーション
- 施工内容
2025年10月 実施
全面リノベ済。
物件周辺の生活情報
買い物
- コンビニ(528m)
- スーパー(617m)
- 商店街(600m)
- ドラッグストア(672m)
その他施設
- 総合病院(739m)
- 公園(240m)
- 銀行(630m)
- 川端ニック(1,200m)
交通
- 京都市営烏丸線 今出川駅 徒歩12分
- 普通(停車)
- 急行(停車)
- 京都市営烏丸線 北大路駅 徒歩14分
- 普通(停車)
- 急行(停車)
※急行等の停車駅情報について
急行等の停車駅に関するデータは、随時更新をしておりますが、最新の内容であることを保証するものではありません。
最新かつ正確な情報につきましては、各鉄道会社のウェブサイトにてご確認ください
物件概要
- 建物構造
- RC(鉄筋コンクリート)
- 駐車場
- 空有 28,600円(税込)
- 総戸数
- 17戸
- 契約形態
- -
- 契約期間
- 2年間
- 更新料
- 新賃料の1ヶ月分
- その他費用
- 室内清掃費用:40,700円、ゴミ処理代:2,000円
- 保証会社
加入要
保証会社:全保連
保証会社利用料:初回:月額賃料等の50%、更新時:1.3万円/1年
- 住宅保険
- 要
- 管理
- 管理員:常駐
- LIFULL HOME'S
物件番号 - 0106225-0320419
- 自社管理番号
- 08610-306RV-03
- 取引態様
- 仲介
- 会社名
- 株式会社京都ライフ 四条烏丸店
営業スタッフコメント

株式会社京都ライフ 四条烏丸店店長
豊原勇介
丁寧な応対を心がけております。
業界経験10年
資格少額短期保険募集人
- スタッフ情報
- 創業40年以上にわたり京都市の中心にて賃貸仲介業をさせていただいております。 当店四条烏丸店は、京都市内のビジネス街である四条烏丸に店舗を構えており、 社会人のお客様、転勤等の法人契約などのお客様と多く関わらせていただいております。
創業40年以上にわたり京都市の中心にて賃貸仲介業をさせていただいております。 当店四条烏丸店は、京都市内のビジネス街である四条烏丸に店舗を構えており、 社会人のお客様、転勤等の法人契約などのお客様と多く関わらせていただいております。
- 電話でお問合せ(通話無料)
お問合せ先 :株式会社京都ライフ 四条烏丸店
不動産会社情報
株式会社京都ライフ 四条烏丸店京都ライフ四条烏丸店
京都府京都市下京区四条通新町東入月鉾町47-15
京都市営烏丸線 四条駅 徒歩3分
- 営業時間
- 09:30~19:00
- 定休日
- 年中無休(盆正月を除く)
京都に生まれて四十年かんたんお部屋探しでおなじみの京都ライフ「四条烏丸店」。
- 店舗の特徴
- 賃貸管理業務
- 引越し業者紹介可
- 年中無休
- 送迎あり
- オンライン相談可
- 保証人不要な物件あり
- 法人契約取扱い
- 女性スタッフ対応可
- 19時以降も営業
- 駅から歩いて3分以内
電話でお問合せお客様の電話番号は不動産会社には通知されません
- 不動産会社に
つながります
お客様の電話番号は不動産会社に通知されません
- ※光IP電話、及びIP電話からはご利用になれません
- ※お電話によるお問合せは、店舗営業時間内にお願いします。つながらない場合は、お問合せフォームよりお問合せください
- ※不動産会社がお電話に出られなかった場合、お問合せいただいた後に不動産会社より折り返しのお電話がある場合がございます(お客様が非通知設定した場合は対象外です)
- ※株式会社LIFULLは電話会社が提供するサービスを介してお客様の発信者番号を受領後、折り返し専用の電話番号を発番してお問合せの不動産会社に通知します(お客様の発信者番号がお問合せの不動産会社に通知されることはございません)
- ※携帯電話からお問合せいただいた方に対し、株式会社LIFULLは電話会社が提供するメッセ―ジサービスを介してお客様の発信者番号を受領後、ショートメッセージ(SMS)またはLINE通知メッセージによるお問合せ内容に関する通知をお届けする場合があります
- ※お客様が通話中に不動産会社にお伝えになったお客様の個人情報及び、電話会社が発番する折り返し専用の電話番号は、お問合せ先不動産会社が資料送付・電子メール送信・電話連絡などの目的で保管する可能性があります。お問合せ先不動産会社が保管する個人情報の取扱いについては、各不動産会社に直接お問合せください
- ※株式会社LIFULLでは本サービスを円滑に運用するために、お客様の発信者番号をサービスご利用の控えとして一定期間保管いたします
- ※上記および株式会社LIFULLの個人情報の取扱い方針に同意のうえ、お電話ください
【LIFULL HOME'S物件番号】0106225-0320419【自社管理番号】08610-306RV-03
オンライン対応
オンライン内見・オンライン相談・IT重説に対応している物件です

「オンライン内見」「オンライン相談」「IT重説」とは?
物件の内見や不動産会社スタッフとの相談、契約前の重要事項説明をオンライン(ビデオ通話)で行うことができるサービスです。
オンライン内見
ビデオ通話で現地(物件)にいる不動産会社スタッフと映像・音声を使ってリアルタイムで会話しながら内見ができます。
オンライン相談
「物件について聞きたいことがある」など不動産会社スタッフへの相談もビデオ通話で行うことができます。
IT重説
契約前の重要事項説明(重説)をビデオ通話で行うことができます。
利用時の注意事項
- ビデオ通話については各不動産会社指定のものとなります。
- ビデオ通話利用時には通信が発生します。従量課金制通信サービスや通信量に上限があるネット回線・プランを利用する場合は、通信量にご注意ください。
- 通信速度やアプリの設定によってはビデオ通話の画質が低下することがあります。安定した画質で利用するためにも、Wi-Fi環境下での利用を推奨します。
- ご利用のビデオ通話アプリによっては、対象のOSやブラウザに制限がある場合があります。詳しくはお問合せ先不動産会社にご確認ください。
初期費用・月額費用をあわせて確認!この物件に住んだときの費用めやす
めやすを見るこの物件に住んだときの費用めやす
- 初期費用
- 月額費用
- 追加費用※ご確認ください
追加で費用が
かかる場合があります
必ずご確認ください
初期費用めやす約0円
追加で費用がかかります(※)敷金
200,000
- 礼金
500,000
賃料+共益費・管理費の1ヶ月分として換算
賃料の1ヶ月分+税として換算。不動産会社によって金額が異なるため正確な金額は不動産会社にお問合せください
※追加費用もチェック!
これらの項目以外にも費用がかかる場合があります。正確な金額は不動産会社にお問合せください。
- 初期費用
- 鍵交換費:不動産会社に要確認
- 室内清掃費:40,700円
- 火災保険費:不動産会社に要確認
- 月額費用
- 駐車場費:28,600円(税込)※契約任意
- その他
- ゴミ処理代:2000円
- 保証会社
- 初回:月額賃料等の50%、更新時:1.3万円/1年
不動産会社より
京極学区・稀少ファミリー物件 交通買物便利。鴨川近く環境良好。設備充実、居室広々。京極学区
京都市上京区 出町エリアの4LDKマンションです。叡山、京阪、地下鉄のトリプルアクセス。嬉しい3点セパレートにシステムキッチン、温水洗浄便座など充実の設備。オートロックでセキュリティも安心です。コンビニ、スーパー、ドラッグストアなど近くにあって便利ですよ。光ファイバー対応しています。 物件情報はもちろん京都のエリア情報まで幅広く対応させていただきます!
- 保存する
- 共有する
- ※各種情報と現状に差異がある場合は、現状優先となります
- ※不動産会社が入力した情報を基に物件の位置を表示しています。詳しくは不動産会社までお問合せください
- ※不動産会社の方からの上記電話番号によるお問合せはお断りしております。こちら不動産会社詳細からお問合せください
- ※LIFULL HOME'Sは物件鮮度No.1を目指していきます。閲覧中の物件が「成約済である」「実際の物件情報と異なる点がある」などの場合、「掲載110番」からお問合せください
- ※QRコードは株式会社デンソーウェーブの登録商標です
したい暮らしのタグから探す
同じ建物の他の部屋
LIFULL HOME'S 地図・周辺情報
買い物
- セブンイレブン 京都葵橋寺町店
- ダイソー京都出町店
- ダックス鞍楽ハウディ店
- デイリーヤマザキ 鞍馬口店
- ダイソー鞍楽ハウディ店
グルメ
- なか卯 烏丸今出川店
- CoCo壱番屋 烏丸今出川店
- モスバーガー 烏丸今出川店
- ミスタードーナツ 出町ショップ
- ロッテリア 京阪出町柳駅店
育児・教育
- 京都市鶴山保育所
- 京都市立下鴨小学校
- 京都市立烏丸中学校
- 京都市立京極幼稚園
- 京都市立室町小学校
医療
- 独立行政法人地域医療機能推進機構京都鞍馬口医療センター
- 室町病院
- 京都博愛会冨田病院
- 医療法人愛寿会同仁病院
- 社会福祉法人京都社会事業財団京都からすま病院
公共施設・郵便局
- 京都出雲路郵便局
- 京都市左京図書館
- 下鴨警察署
- 京都室町上立売郵便局
- 京都市北図書館
公園
- 京都御苑
- 梅屋広場公園
- 船岡山公園
- 吉田山公園
- 大宮交通公園
利用可能な駅
- すべての駅
京都市営烏丸線
- 今出川駅徒歩12分
- 北大路駅徒歩14分
- 周辺情報は2023年07月21日時点のものになります。
- 周辺情報は、参考情報としてのみご利用ください(周辺情報は、株式会社LIFULLが地図情報の提供事業者から提供を受けた情報とLIFULL HOME'Sの物件情報に基づき、独自の方法で抽出し提供しているものです。周辺情報は、移転や閉鎖等により情報が最新ではない、または正しくない場合がありますが、地図情報の提供事業者から提供された情報をそのまま周辺情報として表示しているため、正確かつ最新の情報へ修正することができないことがあります。)
- 周辺情報は、株式会社LIFULLが掲載するものであり、不動産物件情報を掲載している不動産会社が掲載するものではありません
- 交通情報の一部については、株式会社LIFULLが掲載するものであり、不動産物件情報を掲載している不動産会社が掲載するものではない場合があります。交通情報に関する質問などは株式会社LIFULLにお問合せください







