LIFULL HOME'Sは物件鮮度No.1!※評価について
ザ レジデンス 京都・東 2階/204
8.7万円/管理費等5,800円
6時間前 更新
画像一覧
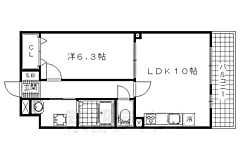
1/30間取り
間取
2/30外観
3/30外観
4/30リビング/ダイニング
日当りの良いリビング&キッチンです
5/30リビング/ダイニング
風通しも良好です
6/30リビング/ダイニング
無駄の無いシンプルな造りで広く見えます
7/30リビング/ダイニング
隣のお部屋はこんな感じです・
8/30リビング/ダイニング
憧れのウォークインクローゼットです
9/30リビング/ダイニング
隣同士で使い勝手の良い部屋です
10/30キッチン
スペース充分・
11/30キッチン
収納過多
12/30キッチン
嬉しい三口コンロ付き・
13/30キッチン
上段にも収納&換気扇あります・
14/30浴室
落ち着いた色合いでリラックス・
15/30浴室
浴室乾燥機完備・・
16/30トイレ
ウォシュレット付き・
17/30洗面
下段収納有りの明るい洗面所です
18/30設備
洗濯機は室内に
19/30設備
・浴室乾燥機スイッチパネル・
20/30設備
給湯スイッチパネル・
21/30設備
給湯器温度調整スイッチパネル・
22/30設備
寝室側エアコン
23/30設備
リビング側エアコン
24/30設備
モニター付きです・
25/30玄関
大理石風玄関・
26/30玄関
全身鏡付シューズボックスです・
27/30玄関
靴好きな方にぴったり・
28/30その他
洗濯物もたくさん干せます・
29/30その他
反対側です・
30/30周辺
ローソン 山科音羽前田町店まで350m
間取り
外観
外観
リビング/ダイニング
リビング/ダイニング
リビング/ダイニング
リビング/ダイニング
リビング/ダイニング
リビング/ダイニング
キッチン
キッチン
キッチン
キッチン
浴室
浴室
トイレ
洗面
設備
設備
設備
設備
設備
設備
設備
玄関
玄関
玄関
その他
その他
周辺
LINEチャットでも 相談できます
お問合せ先 :株式会社京都ライフ 山科店
仲介手数料割引
ご成約時の仲介手数料が賃料の半月分(税別)です。
- 利用条件
- 株式会社京都ライフ 山科店で利用可
- 他特典との併用はできませんので、ご注意ください。
- ・法人契約、事業用物件は除く。 ・積水ハウス、大東建託の管理物件は除く。
利用方法
来店時に本特典の画面をスマートフォンやタブレットでスタッフに提示、または画面印刷した用紙を提示ください。
有効期限 なし
インターネット使用料無料で設備充実マンション登場です。
物件のこだわり/設備・条件
新築(非該当)
2階以上の物件(該当)
南向き(非該当)
駐車場あり(該当)
オートロック(該当)
エアコン(該当)
バス・トイレ別(該当)
追焚機能(該当)
フローリング(該当)
ペット相談(非該当)
入居条件
二人入居可、保証人不要キッチン/バス・トイレ
設備・サービス
オートロック、TVモニタ付インターホン、エアコン、シューズボックス、BS対応、インターネット使用料無料、公営水道、都市ガス、下水、フローリング、バルコニー、室内洗濯機置場、エレベーター、宅配ボックス、駐車場あり、駐輪場ありその他
家賃・初期費用カード決済可、住まい探し特典あり備考
山科区は人気高い音羽エリアより設備充実マンションのご紹介です。浴室乾燥に追炊き機能はもちろんシステムキッチンからシャンプードレッサーと人気設備は余す事無く設置されています。また敷地内ゴミ置場が御座いますので衛生的にも嬉しいですね。更にインターネット使用料も無料です。 物件情報はもちろん京都のエリア情報まで幅広く対応させていただきます!
物件周辺の生活情報
学校
- 音羽小学校(350m)
- 音羽中学校(650m)
買い物
- コンビニ(350m)
- スーパー(1,000m)
- ドラッグストア(500m)
その他施設
- 総合病院(450m)
- 銀行(350m)
- ゲオ山科東野店(1,500m)
交通
- 京阪京津線 四宮駅 徒歩8分
- 普通(停車)
- JR東海道・山陽本線 山科駅 徒歩17分
- 普通(停車)
- 新快速(停車)
- 快速(停車)
- 緩行電車(停車)
- 特別快速(通過)
- 区間快速(通過)
※急行等の停車駅情報について
急行等の停車駅に関するデータは、随時更新をしておりますが、最新の内容であることを保証するものではありません。
最新かつ正確な情報につきましては、各鉄道会社のウェブサイトにてご確認ください
物件周辺の口コミ
- 京都府京都市山科区音羽八ノ坪に住む人の口コミ50代女性
坂道が多いので、どこへ行っても必ず帰りは自転車ではしんどい。時々の暴走族と救急車がうるさくなければ、かなり静か。だがうるさい犬が多い。
口コミを見る
この物件周辺に住む人の口コミ
口コミは、LIFULL HOME'Sが実際にこの物件の周辺に住む18歳~69歳の男女を対象に、WEBアンケート調査を実施しています。内容には回答者の主観的な表現が含まれる場合があるほか、事実と異なる場合もございます。ご了承ください。
- 京都府京都市山科区音羽八ノ坪に住む人の口コミ50代女性
- 坂道が多いので、どこへ行っても必ず帰りは自転車ではしんどい。時々の暴走族と救急車がうるさくなければ、かなり静か。だがうるさい犬が多い。
- 京都府京都市山科区音羽八ノ坪に住む人の口コミ50代女性
- 昔から住んでみたかった京都に住めて満足している。引っ越してすぐ自転車を買ったが、意外と坂道ばかりで、電動自転車にすれば良かったと後悔している。一番近くのスーパーが小さすぎて、日用品を買うのに苦労する。
- 京都府京都市山科区音羽八ノ坪に住む人の口コミ50代女性
- 何となく感じが良い。時々暴走族のバイクや救急車の音がうるさいが、それが無ければ、夜がとても静か。ただ町全体が坂道が多く、電動自転車でないので、どこに行くにも帰りがかなりしんどい。
- 京都府京都市山科区音羽八ノ坪に住む人の口コミ50代男性
- 京都市内だが山を越えてどちらかと言えば滋賀県に近い。昔は治安が悪かったが今は治安がいい方だと思う。京都駅までも近いし、地下鉄が通ってからはますます栄えたと感じる。
- 京都府京都市山科区音羽役出町に住む人の口コミ30代女性
- スーパー、ドラッグストアなどがたくさんあり、生活に必要なものがすぐに買える。新快速がとまる駅で便利。病院が近い。マンションが多く、高いためやや家は手狭になる。
- 京都府京都市山科区安朱馬場ノ西町に住む人の口コミ50代男性
- 買い物も交通にも便利でファミリーで住みやすいので満足している。
- 滋賀県大津市稲葉台に住む人の口コミ50代女性
- 買い物等は自動車が無いと不便ではあるが、環境面では住みやすいと思う。
- 京都府京都市山科区御陵田山町に住む人の口コミ50代女性
- スーパーがたくさんあり、自然も近く、治安もいい、ジムもあります。いい環境です。
- 京都府京都市山科区東野北井ノ上町に住む人の口コミ40代女性
- 学校や児童館も多く、子どももお年寄りも多く、地域内での交流が多い。スーパーが多く交通の便も良いため、子育てしやすい環境であるという点で満足しています。
- 京都府京都市山科区音羽役出町に住む人の口コミ20代女性
- スーパー、ホームセンター、ドラッグストアが徒歩圏内にある。駅が近い
物件概要
- 建物構造
- RC(鉄筋コンクリート)
- 駐車場
- 空有 11,000円(税込)
- 総戸数
- 32戸
- 契約形態
- -
- 契約期間
- 2年間
- 更新料
- -
- その他費用
- 鍵交換費用:3,300円、室内清掃費用:50,000円、24時間サポート:330円
- 保証会社
加入要
保証会社:ハウスリーブ
保証会社利用料:初回:2.2万円、月額:保証料として月額賃料等の2.2%(ハウスクリーニング代退去時支払いの場合、月額保証料は総賃料の5% ペット可の場合、初回保証料25000円/月額保証料は総賃料の2.5%)
- 住宅保険
- 要
- 管理
- -
- LIFULL HOME'S
物件番号 - 0105171-0208183
- 自社管理番号
- 30273-204
- 取引態様
- 仲介
- 会社名
- 株式会社京都ライフ 山科店
営業スタッフコメント

株式会社京都ライフ 山科店営業
植田鉱斗
初志貫徹
業界経験3年
- 会社実績や特徴・サービス情報
- 昭和53年創業時よりの情報力が最大の武器の総合不動産会社です。山科店では山科エリアはもちろん京都市内全域の物件情報およびエリアお役立ち情報に関しましてもエリアNO.1であると自信を持ってお客様にご紹介させていただきます。また、山科駅はJR、地下鉄、京阪と3WAYアクセスとなっており大変便利。大阪まで35分、大津まで10分で通勤、通学可能で近年人気エリアとなっております。京都ライフ山科店スタッフ全員、お客様に喜んで頂き、笑顔を見せていただくことが大好きです。
昭和53年創業時よりの情報力が最大の武器の総合不動産会社です。山科店では山科エリアはもちろん京都市内全域の物件情報およびエリアお役立ち情報に関しましてもエリアNO.1であると自信を持ってお客様にご紹介させていただきます。また、山科駅はJR、地下鉄、京阪と3WAYアクセスとなっており大変便利。大阪まで35分、大津まで10分で通勤、通学可能で近年人気エリアとなっております。京都ライフ山科店スタッフ全員、お客様に喜んで頂き、笑顔を見せていただくことが大好きです。
- 電話でお問合せ(通話無料)
お問合せ先 :株式会社京都ライフ 山科店
不動産会社情報
株式会社京都ライフ 山科店京都ライフ山科店
京都府京都市山科区竹鼻竹ノ街道町11
JR東海道・山陽本線 山科駅 徒歩3分
- 営業時間
- 09:30~19:00
- 定休日
- 夏期休暇 8月13日〜8月16日 年末年始休暇 12月27日〜1月4日
京都一筋40余年!京都橘大学・京都薬科大学・社会人様は勿論、豊富な物件データと信頼・実績の京都ライフ山科店にて満足度120%をお約束致します。来客用ガレージ完備。お気軽にお問い合わせください!!
- 店舗の特徴
- 賃貸管理業務
- 引越し業者紹介可
- 年中無休
- 駐車場あり
- オンライン相談可
- 保証人不要な物件あり
- 法人契約取扱い
- 女性スタッフ対応可
- 19時以降も営業
- 駅から歩いて3分以内
電話でお問合せお客様の電話番号は不動産会社には通知されません
- 不動産会社に
つながります
お客様の電話番号は不動産会社に通知されません
- ※光IP電話、及びIP電話からはご利用になれません
- ※お電話によるお問合せは、店舗営業時間内にお願いします。つながらない場合は、お問合せフォームよりお問合せください
- ※不動産会社がお電話に出られなかった場合、お問合せいただいた後に不動産会社より折り返しのお電話がある場合がございます(お客様が非通知設定した場合は対象外です)
- ※株式会社LIFULLは電話会社が提供するサービスを介してお客様の発信者番号を受領後、折り返し専用の電話番号を発番してお問合せの不動産会社に通知します(お客様の発信者番号がお問合せの不動産会社に通知されることはございません)
- ※携帯電話からお問合せいただいた方に対し、株式会社LIFULLは電話会社が提供するメッセ―ジサービスを介してお客様の発信者番号を受領後、ショートメッセージ(SMS)またはLINE通知メッセージによるお問合せ内容に関する通知をお届けする場合があります
- ※お客様が通話中に不動産会社にお伝えになったお客様の個人情報及び、電話会社が発番する折り返し専用の電話番号は、お問合せ先不動産会社が資料送付・電子メール送信・電話連絡などの目的で保管する可能性があります。お問合せ先不動産会社が保管する個人情報の取扱いについては、各不動産会社に直接お問合せください
- ※株式会社LIFULLでは本サービスを円滑に運用するために、お客様の発信者番号をサービスご利用の控えとして一定期間保管いたします
- ※上記および株式会社LIFULLの個人情報の取扱い方針に同意のうえ、お電話ください
【LIFULL HOME'S物件番号】0105171-0208183【自社管理番号】30273-204
オンライン対応
オンライン相談に対応している物件です

「オンライン内見」「オンライン相談」「IT重説」とは?
物件の内見や不動産会社スタッフとの相談、契約前の重要事項説明をオンライン(ビデオ通話)で行うことができるサービスです。
オンライン内見
ビデオ通話で現地(物件)にいる不動産会社スタッフと映像・音声を使ってリアルタイムで会話しながら内見ができます。
オンライン相談
「物件について聞きたいことがある」など不動産会社スタッフへの相談もビデオ通話で行うことができます。
IT重説
契約前の重要事項説明(重説)をビデオ通話で行うことができます。
利用時の注意事項
- ビデオ通話については各不動産会社指定のものとなります。
- ビデオ通話利用時には通信が発生します。従量課金制通信サービスや通信量に上限があるネット回線・プランを利用する場合は、通信量にご注意ください。
- 通信速度やアプリの設定によってはビデオ通話の画質が低下することがあります。安定した画質で利用するためにも、Wi-Fi環境下での利用を推奨します。
- ご利用のビデオ通話アプリによっては、対象のOSやブラウザに制限がある場合があります。詳しくはお問合せ先不動産会社にご確認ください。
初期費用・月額費用をあわせて確認!この物件に住んだときの費用めやす
めやすを見るこの物件に住んだときの費用めやす
- 初期費用
- 月額費用
- 追加費用※ご確認ください
追加で費用が
かかる場合があります
必ずご確認ください
初期費用めやす約0円
追加で費用がかかります(※)敷金
0
- 礼金
87,000
賃料+共益費・管理費の1ヶ月分として換算
賃料の1ヶ月分+税として換算。不動産会社によって金額が異なるため正確な金額は不動産会社にお問合せください
※追加費用もチェック!
これらの項目以外にも費用がかかる場合があります。正確な金額は不動産会社にお問合せください。
- 初期費用
- 鍵交換費:3,300円
- 室内清掃費:50,000円
- 火災保険費:不動産会社に要確認
- 月額費用
- 駐車場費:11,000円(税込)※契約任意
- その他
- 24時間サポート:330円
- 保証会社
- 初回:2.2万円、月額:保証料として月額賃料等の2.2%(ハウスクリーニング代退去時支払いの場合、月額保証料は総賃料の5% ペット可の場合、初回保証料25000円/月額保証料は総賃料の2.5%)
不動産会社より
インターネット使用料無料で設備充実マンション登場です。
山科区は人気高い音羽エリアより設備充実マンションのご紹介です。浴室乾燥に追炊き機能はもちろんシステムキッチンからシャンプードレッサーと人気設備は余す事無く設置されています。また敷地内ゴミ置場が御座いますので衛生的にも嬉しいですね。更にインターネット使用料も無料です。 物件情報はもちろん京都のエリア情報まで幅広く対応させていただきます!
- 保存する
- 共有する
- ※各種情報と現状に差異がある場合は、現状優先となります
- ※不動産会社が入力した情報を基に物件の位置を表示しています。詳しくは不動産会社までお問合せください
- ※不動産会社の方からの上記電話番号によるお問合せはお断りしております。こちら不動産会社詳細からお問合せください
- ※LIFULL HOME'Sは物件鮮度No.1を目指していきます。閲覧中の物件が「成約済である」「実際の物件情報と異なる点がある」などの場合、「掲載110番」からお問合せください
- ※QRコードは株式会社デンソーウェーブの登録商標です
この物件を取扱う他の会社
LIFULL HOME'Sでは、主要項目が同一の物件をまとめて表示しています。所在地や営業時間、掲載画像等から不動産会社を選んでお問合せください。
LIFULL HOME'S 地図・周辺情報
買い物
- ファミリーマート 京都東インター店
- ダイソー山科小山店
- ダックス山科大塚店
- ローソン 山科音羽前田町店
- フレスコ 四ノ宮店
グルメ
- ガスト 京都山科店(から好し取扱店)
- ドトールコーヒーショップEneJet京都東インター店
- 丸亀製麺京都東インター店
- マクドナルド 1号線山科店
- びっくりドンキー 山科店
育児・教育
- いずみ幼稚園
- 京都市立音羽小学校
- 京都市立音羽中学校
- 永興藤尾こども園
- 京都市立大塚小学校
医療
- 医療法人社団洛和会洛和会音羽病院
- 医療法人社団洛和会洛和会音羽リハビリテーション病院
- 医療法人洛和会洛和会音羽記念病院
- 一般社団法人愛生会山科病院
- 加藤山科病院
公共施設・郵便局
- 山科四宮郵便局
- 京都市山科図書館
- 京都市山科区役所
- 京都山科音羽郵便局
- 山科警察署
公園
利用可能な駅
- 徒歩10分以内
京阪京津線
- 四宮駅徒歩8分
- すべての駅
JR東海道・山陽本線
- 山科駅徒歩17分
京都地下鉄東西線
- 東野駅徒歩17分
- 椥辻駅徒歩31分
京阪京津線
- 京阪山科駅徒歩18分
- 追分駅徒歩23分
- 御陵駅徒歩35分
- 大谷駅徒歩37分
- 周辺情報は2023年07月21日時点のものになります。
- 周辺情報は、参考情報としてのみご利用ください(周辺情報は、株式会社LIFULLが地図情報の提供事業者から提供を受けた情報とLIFULL HOME'Sの物件情報に基づき、独自の方法で抽出し提供しているものです。周辺情報は、移転や閉鎖等により情報が最新ではない、または正しくない場合がありますが、地図情報の提供事業者から提供された情報をそのまま周辺情報として表示しているため、正確かつ最新の情報へ修正することができないことがあります。)
- 周辺情報は、株式会社LIFULLが掲載するものであり、不動産物件情報を掲載している不動産会社が掲載するものではありません
- 交通情報の一部については、株式会社LIFULLが掲載するものであり、不動産物件情報を掲載している不動産会社が掲載するものではない場合があります。交通情報に関する質問などは株式会社LIFULLにお問合せください
















