LIFULL HOME'Sは物件鮮度No.1!※評価について
KDXレジデンス西大路(5階/1K/20m²)
KDXレジデンス西大路(5階/1K/20m²)
6.2万円/管理費等8,000円
20時間前 更新
画像一覧
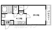
1/30間取り
間取
2/30外観
3/30外観
4/30外観
5/30リビング/ダイニング
6/30室内
7/30寝室
8/30寝室
9/30キッチン
10/30キッチン
11/30キッチン
12/30浴室
13/30浴室
14/30浴室
15/30トイレ
16/30洗面
17/30収納
18/30収納
19/30収納
20/30設備
21/30設備
22/30設備
23/30設備
24/30玄関
25/30玄関
26/30バルコニー
27/30その他
28/30その他
29/30その他
30/30周辺
フレスコ 壬生店まで116m 西院駅から北東に位置します。駐車場もついております。
間取り
外観
外観
外観
リビング/ダイニング
室内
寝室
寝室
キッチン
キッチン
キッチン
浴室
浴室
浴室
トイレ
洗面
収納
収納
収納
設備
設備
設備
設備
玄関
玄関
バルコニー
その他
その他
その他
周辺
LINEチャットでも 相談できます
お問合せ先 :株式会社京都ライフ 烏丸五条店
1〜3月は引越しシーズンのピークです。お問合せはお早めに!
仲介手数料割引
仲介手数料50%(税別)でご成約頂けます。
- 利用条件
- 株式会社京都ライフ 烏丸五条店で利用可
- 他特典との併用可
- ※法人契約、積水ハウス、大東建託の管理物件は家賃1か月分の仲介手数料要。
利用方法
来店時に本特典の画面をスマートフォンやタブレットでスタッフに提示、または画面印刷した用紙を提示ください。
有効期限 なし
高グレード単身物件 京都市下京区西七条の大型1K&1LDK複合賃貸マンション
物件のこだわり/設備・条件
新築(非該当)
2階以上の物件(該当)
南向き(非該当)
駐車場あり(該当)
オートロック(該当)
エアコン(該当)
バス・トイレ別(該当)
追焚機能(非該当)
フローリング(該当)
ペット相談(非該当)
キッチン/バス・トイレ
セキュリティ
オートロック、防犯カメラ、TVモニタ付インターホン駐車・駐輪
駐車場あり、駐輪場ありテレビ・通信
CS対応、BS対応、光ファイバー電気・ガス・水道
公営水道、都市ガス、下水収納
シューズボックス室内
エアコン、フローリング、室内洗濯機置場、照明器具付き建物設備
エレベーター、宅配ボックスバルコニー・庭
バルコニー
物件周辺の生活情報
買い物
- コンビニ(230m)
- スーパー(116m)
- ドラッグストア(374m)
その他施設
- 総合病院(944m)
- 銀行(360m)
- ディオハウス西ノ京店(806m)
交通
- JR東海道・山陽本線 西大路駅 徒歩20分
- 普通(停車)
- 新快速(通過)
- 快速(停車)
- 緩行電車(停車)
- 特別快速(通過)
- 区間快速(通過)
- 阪急京都本線 西院駅 徒歩15分
- 普通(停車)
- 準急(停車)
- 堺筋準急(停車)
- 通勤特急(停車)
- 特急(通過)
- 急行(停車)
- 準特急(停車)
※急行等の停車駅情報について
急行等の停車駅に関するデータは、随時更新をしておりますが、最新の内容であることを保証するものではありません。
最新かつ正確な情報につきましては、各鉄道会社のウェブサイトにてご確認ください
物件概要
- 建物構造
- RC(鉄筋コンクリート)
- 駐車場
- 空有 16,500円(税込) 駐車料金:16500円〜19800円
- 総戸数
- 76戸
- 契約形態
- -
- 契約期間
- 2年間
- 更新料
- -
- その他費用
- 鍵交換費用:22,000円、室内清掃費用:33,000円
- 保証会社
加入要
保証会社:エポス
保証会社利用料:初回:月額賃料等の30%/1年、更新時:1万円/1年(最低保証料15000円)
- 住宅保険
- 要
- 契約条件
- 保証人不要、住まい探し特典あり
- 管理
- 管理員:巡回
- LIFULL HOME'S
物件番号 - 0126938-0272309
- 自社管理番号
- 08096-509
- 取引態様
- 仲介
- 会社名
- 株式会社京都ライフ 烏丸五条店
営業スタッフコメント

株式会社京都ライフ 烏丸五条店賃貸仲介営業
中山登夢
お部屋探しは、私にお任せを!
業界経験2年
資格宅地建物取引士
- 会社実績や特徴・サービス情報
- この度は物件情報のご閲覧ありがとうございます。 ご案内ご希望の際は店頭・現地・最寄り駅等、 お客様のご都合に合わせお待ち合わせも可能です。 お気軽におっしゃってくださいませ。 お問い合わせを心よりお待ちしております。
この度は物件情報のご閲覧ありがとうございます。 ご案内ご希望の際は店頭・現地・最寄り駅等、 お客様のご都合に合わせお待ち合わせも可能です。 お気軽におっしゃってくださいませ。 お問い合わせを心よりお待ちしております。
- 電話でお問合せ(通話無料)
お問合せ先 :株式会社京都ライフ 烏丸五条店
不動産会社情報
京都の情報を熟知した店舗スタッフが、豊富な物件量で皆様のお部屋探しを全力でサポートさせていただきます!お客様からのお問い合わせ・ご来店、烏丸五条店スタッフ一同心よりお待ちしております。
- 店舗の特徴
- 引越し業者紹介可
- 系列店舗での対応可
- 社宅・寮物件取扱い
- オンライン相談可
- 保証人不要な物件あり
- 法人契約取扱い
- 女性スタッフ対応可
- 駅から歩いて3分以内
電話でお問合せお客様の電話番号は不動産会社には通知されません
- 不動産会社に
つながります
お客様の電話番号は不動産会社に通知されません
- ※光IP電話、及びIP電話からはご利用になれません
- ※お電話によるお問合せは、店舗営業時間内にお願いします。つながらない場合は、お問合せフォームよりお問合せください
- ※不動産会社がお電話に出られなかった場合、お問合せいただいた後に不動産会社より折り返しのお電話がある場合がございます(お客様が非通知設定した場合は対象外です)
- ※株式会社LIFULLは電話会社が提供するサービスを介してお客様の発信者番号を受領後、折り返し専用の電話番号を発番してお問合せの不動産会社に通知します(お客様の発信者番号がお問合せの不動産会社に通知されることはございません)
- ※携帯電話からお問合せいただいた方に対し、株式会社LIFULLは電話会社が提供するメッセ―ジサービスを介してお客様の発信者番号を受領後、ショートメッセージ(SMS)またはLINE通知メッセージによるお問合せ内容に関する通知をお届けする場合があります
- ※お客様が通話中に不動産会社にお伝えになったお客様の個人情報及び、電話会社が発番する折り返し専用の電話番号は、お問合せ先不動産会社が資料送付・電子メール送信・電話連絡などの目的で保管する可能性があります。お問合せ先不動産会社が保管する個人情報の取扱いについては、各不動産会社に直接お問合せください
- ※株式会社LIFULLでは本サービスを円滑に運用するために、お客様の発信者番号をサービスご利用の控えとして一定期間保管いたします
- ※上記および株式会社LIFULLの個人情報の取扱い方針に同意のうえ、お電話ください
【LIFULL HOME'S物件番号】0126938-0272309【自社管理番号】08096-509
オンライン対応
オンライン相談に対応している物件です

「オンライン内見」「オンライン相談」「IT重説」とは?
物件の内見や不動産会社スタッフとの相談、契約前の重要事項説明をオンライン(ビデオ通話)で行うことができるサービスです。
オンライン内見
ビデオ通話で現地(物件)にいる不動産会社スタッフと映像・音声を使ってリアルタイムで会話しながら内見ができます。
オンライン相談
「物件について聞きたいことがある」など不動産会社スタッフへの相談もビデオ通話で行うことができます。
IT重説
契約前の重要事項説明(重説)をビデオ通話で行うことができます。
利用時の注意事項
- ビデオ通話については各不動産会社指定のものとなります。
- ビデオ通話利用時には通信が発生します。従量課金制通信サービスや通信量に上限があるネット回線・プランを利用する場合は、通信量にご注意ください。
- 通信速度やアプリの設定によってはビデオ通話の画質が低下することがあります。安定した画質で利用するためにも、Wi-Fi環境下での利用を推奨します。
- ご利用のビデオ通話アプリによっては、対象のOSやブラウザに制限がある場合があります。詳しくはお問合せ先不動産会社にご確認ください。
初期費用・月額費用をあわせて確認!この物件に住んだときの費用めやす
めやすを見るこの物件に住んだときの費用めやす
- 初期費用
- 月額費用
- 追加費用※ご確認ください
追加で費用が
かかる場合があります
必ずご確認ください
初期費用めやす約0円
追加で費用がかかります(※)敷金
0
- 礼金
62,000
賃料+共益費・管理費の1ヶ月分として換算
賃料の1ヶ月分+税として換算。不動産会社によって金額が異なるため正確な金額は不動産会社にお問合せください
※追加費用もチェック!
これらの項目以外にも費用がかかる場合があります。正確な金額は不動産会社にお問合せください。
- 初期費用
- 鍵交換費:22,000円
- 室内清掃費:33,000円
- 火災保険費:不動産会社に要確認
- 月額費用
- 駐車場費:16,500円(税込)※契約任意
- 保証会社
- 初回:月額賃料等の30%/1年、更新時:1万円/1年(最低保証料15000円)
不動産会社より
高グレード単身物件 京都市下京区西七条の大型1K&1LDK複合賃貸マンション
- 保存する
- 共有する
- ※各種情報と現状に差異がある場合は、現状優先となります
- ※不動産会社が入力した情報を基に物件の位置を表示しています。詳しくは不動産会社までお問合せください
- ※不動産会社の方からの上記電話番号によるお問合せはお断りしております。こちら不動産会社詳細からお問合せください
- ※LIFULL HOME'Sは物件鮮度No.1を目指していきます。閲覧中の物件が「成約済である」「実際の物件情報と異なる点がある」などの場合、「掲載110番」からお問合せください
- ※QRコードは株式会社デンソーウェーブの登録商標です
LIFULL HOME'S 地図・周辺情報
買い物
- セブンイレブン 京都西大路花屋町店
- ライフ セントラルスクエア西大路花屋町店
- スギ薬局西大路五条店
- ファミリーマート 西大路花屋町店
- コレモ七条店
グルメ
- 餃子の王将 西大路五条店
- マクドナルド 西大路五条店
- サイゼリヤ 京都西京極店
- 小川珈琲本店
- すき家 西大路七条店
育児・教育
- 京都市西七条保育園
- 京都市立七条第三小学校
- 京都市立七条中学校
- きらきら保育園
- 京都市立七条小学校
医療
- 地方独立行政法人京都市立病院機構京都市立病院
- 医療法人社団恵心会京都武田病院
- 医療法人愛友会明石病院
- 医療法人健康会総合病院京都南病院
- 一般財団法人京都地域医療学際研究所がくさい病院
公共施設・郵便局
- 京都東中水郵便局
- 京都市下京図書館
- 京都府中京警察署
- 京都春日郵便局
- 京都市右京中央図書館
公園
- 東大丸公園
- 光徳公園
- 西院公園
- 梅小路公園
- 梅小路公園
利用可能な駅
- すべての駅
阪急京都本線
- 西院駅徒歩15分
- 西京極駅徒歩17分
- 大宮駅徒歩35分
- 烏丸駅3.8km
JR山陰本線
- 丹波口駅徒歩17分
- 梅小路京都西駅徒歩21分
- 円町駅徒歩36分
- 二条駅徒歩37分
京福電気鉄道嵐山本線
- 西院駅徒歩17分
- 西大路三条駅徒歩22分
- 山ノ内駅徒歩31分
- 四条大宮駅徒歩34分
- 嵐電天神川駅3.4km
- 蚕ノ社駅3.6km
JR東海道・山陽本線
- 西大路駅徒歩20分
- 京都駅3.5km
京都地下鉄東西線
- 西大路御池駅徒歩27分
- 太秦天神川駅3.5km
- 二条城前駅3.8km
京都市営烏丸線
- 五条駅徒歩35分
- 四条駅3.7km
- 九条駅4km
近鉄京都線
- 東寺駅3.3km
- 十条駅4km
- 周辺情報は2023年07月21日時点のものになります。
- 周辺情報は、参考情報としてのみご利用ください(周辺情報は、株式会社LIFULLが地図情報の提供事業者から提供を受けた情報とLIFULL HOME'Sの物件情報に基づき、独自の方法で抽出し提供しているものです。周辺情報は、移転や閉鎖等により情報が最新ではない、または正しくない場合がありますが、地図情報の提供事業者から提供された情報をそのまま周辺情報として表示しているため、正確かつ最新の情報へ修正することができないことがあります。)
- 周辺情報は、株式会社LIFULLが掲載するものであり、不動産物件情報を掲載している不動産会社が掲載するものではありません
- 交通情報の一部については、株式会社LIFULLが掲載するものであり、不動産物件情報を掲載している不動産会社が掲載するものではない場合があります。交通情報に関する質問などは株式会社LIFULLにお問合せください












