LIFULL HOME'Sは物件鮮度No.1!※評価について
エスポワール桃栄 3階
7.7万円/管理費等8,000円
11時間前 更新
画像一覧
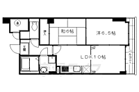
1/30間取り
間取
2/30外観
存在感たっぷり
3/30外観
オシャレな外観
4/30リビング/ダイニング
全ての部屋がつながります。
5/30リビング/ダイニング
2LDKとしても使える間取りです。
6/30リビング/ダイニング
広々。使いやすいフローリングが2部屋。
7/30リビング/ダイニング
リビングとして使えるお部屋です。
8/30リビング/ダイニング
充分な広さがあります。
9/30キッチン
システムキッチンが入ってます。部屋はドアを開けて広々使えます。
10/30キッチン
11/30浴室
お風呂。温度調節のパネルも有ります。
12/30トイレ
トイレ。
13/30洗面
独立洗面台。
14/30洗面
15/30収納
16/30設備
17/30設備
なんとエアコンです。
18/30玄関
広い玄関です。
19/30バルコニー
バルコニー。
20/30エントランス
お城のようなデザイン
21/30エントランス
裏口です
22/30その他
マンションの玄関です。
23/30その他
オートラックつきの安心マンションです。
24/30その他
ヨーロッパ風の飾りです。
25/30その他
豪華なエントランス。
26/30その他
豪華なエントランス
27/30その他
エレベーターもあります
28/30その他
屋根付きです
29/30その他
ゴミはこちらへ
30/30周辺
桃山中学校まで270m 活気のある中学校です。
間取り
外観
外観
リビング/ダイニング
リビング/ダイニング
リビング/ダイニング
リビング/ダイニング
リビング/ダイニング
キッチン
キッチン
浴室
トイレ
洗面
洗面
収納
設備
設備
玄関
バルコニー
エントランス
エントランス
その他
その他
その他
その他
その他
その他
その他
その他
周辺
LINEチャットでも 相談できます
お問合せ先 :株式会社京都ライフ 伏見桃山店
住まい探し特典内容
仲介手数料が家賃の半月分(消費税)です。
- 利用条件
- 株式会社京都ライフ 伏見桃山店で利用可
- 他特典との併用可
- 法人様契約、事業用物件は対象外です。積水ハウス、大東建託の管理物件は除く。
利用方法
来店時に本特典の画面をスマートフォンやタブレットでスタッフに提示、または画面印刷した用紙を提示ください。
有効期限 なし
新婚様にオススメ 丹波橋でハイグレードを求める方に
基本情報
不動産用語- 賃料
- 7.7万円
- 管理費等
- 8,000円
初期費用などお気軽にお問合せください
- 敷金/礼金
- 無/7.7万円
- 保証金/敷引・償却金
- -/-
- 交通
京阪本線 墨染駅 徒歩6分
京阪本線 丹波橋駅 徒歩9分
- 所在地
京都府京都市伏見区桃山最上町
地図を見る- 築年月
- 1994年2月(築32年)
- 主要採光面
- 東
- 専有面積
- 54.23㎡
- バルコニー面積
- -
- 所在階/階数
- 3階/7階建(地下1階)
入居可能日などお気軽にお問合せください
- 現況
- 賃貸中
- 入居可能時期
- 2026年01月 中旬

人気物件はすぐに埋まってしまいます。
気になったらお早めにお問合せください。
- 情報公開日
2025/10/29
24日前 公開
- 情報更新日
2025/11/22
11時間前 更新
- 次回更新
予定日 - 2025/12/05
物件のこだわり/設備・条件
新築(非該当)
2階以上の物件(該当)
南向き(非該当)
駐車場あり(該当)
オートロック(該当)
エアコン(該当)
バス・トイレ別(該当)
追焚機能(非該当)
フローリング(該当)
ペット相談(非該当)
入居条件
二人入居可キッチン/バス・トイレ
設備・サービス
オートロック、TVモニタ付インターホン、エアコン、CATV、BS対応、光ファイバー、公営水道、都市ガス、下水、フローリング、バルコニー、室内洗濯機置場、エレベーター、駐車場ありその他
住まい探し特典あり備考
丹波橋駅から北東へ、格調ある6階建てのレンガ調外観はもはやこの辺りのランドマークになってます。東向きの広々2LDKはシステムキッチン、追炊き風呂、エアコンをはじめ充実設備ぞろいです、丹波橋でハイグレードを求める方に。京都の賃貸は京都ライフまでお待ちしております。ご質問、ご不明な点等がございましたらお気軽にお電話、メールにて... 物件情報はもちろん京都のエリア情報まで幅広く対応させていただきます!
物件周辺の生活情報
学校
- 桃山小学校(454m)
- 桃山中学校(270m)
買い物
- コンビニ(650m)
- スーパー(750m)
その他施設
- 総合病院(1,000m)
- 銀行(325m)
- 伏見郵便局(500m)
交通
- 京阪本線 丹波橋駅 徒歩9分
- 普通(停車)
- 区間急行(通過)
- 急行(停車)
- 特急(停車)
- 通勤準急・準急(停車)
- 快速特急 洛楽(通過)
- 通勤快急・快速急行(停車)
- 京阪本線 墨染駅 徒歩6分
- 普通(停車)
- 区間急行(通過)
- 急行(通過)
- 特急(通過)
- 通勤準急・準急(停車)
- 快速特急 洛楽(通過)
- 通勤快急・快速急行(通過)
※急行等の停車駅情報について
急行等の停車駅に関するデータは、随時更新をしておりますが、最新の内容であることを保証するものではありません。
最新かつ正確な情報につきましては、各鉄道会社のウェブサイトにてご確認ください
物件周辺の口コミ
- 京都府京都市伏見区深草大亀谷東寺町に住む人の口コミ40代女性
安全、住みやすい、人間関係気にしなくて良い。交通便利、買い物は自転車を使うがだいたい何でもそろう
口コミを見る
この物件周辺に住む人の口コミ
口コミは、LIFULL HOME'Sが実際にこの物件の周辺に住む18歳~69歳の男女を対象に、WEBアンケート調査を実施しています。内容には回答者の主観的な表現が含まれる場合があるほか、事実と異なる場合もございます。ご了承ください。
- 京都府京都市伏見区深草大亀谷東寺町に住む人の口コミ40代女性
- 安全、住みやすい、人間関係気にしなくて良い。交通便利、買い物は自転車を使うがだいたい何でもそろう
- 京都府京都市伏見区聚楽町2丁目に住む人の口コミ50代女性
- 最近、近所のアパートのゴミ出しの仕方が汚くてゴミ出しの日は通りが汚れて汚い。
- 京都府京都市伏見区深草新門丈町に住む人の口コミ50代男性
- 交通機関が充実し、また、名神高速、阪神高速・第二京阪等自家用車でも遠出しやすい立地。
- 京都府京都市伏見区深草泓ノ壺町に住む人の口コミ60代女性
- 生まれて育った土地なので、住みやすい。結構なんでもある環境だ。
- 京都府京都市伏見区聚楽町2丁目に住む人の口コミ40代男性
- スーパーが複数あり値段を比べて楽しめて買い物ができる。道の幅は狭いのに交通量が多い事があり歩行者にとっては危険な場所がある。
- 京都府京都市伏見区深草墨染町に住む人の口コミ60代男性
- コンビニや中小のスーパーなども点在しており、駅からも近くて便利。
- 京都府京都市伏見区深草墨染町に住む人の口コミ40代男性
- 電車の路線が充実している。高速道路にも近い。凶悪犯罪が発生していない。
- 京都府京都市伏見区深草善導寺町に住む人の口コミ60代男性
- 歩いて5分以内に最寄り駅とコンビニがある。自転車で5分以内にスーパーと郵便局がある。自転車で10分程度で図書館に行ける。歩いて10分以内に医院があり、自転車で15分程度で総合病院に行ける。
- 京都府京都市伏見区深草越後屋敷町に住む人の口コミ60代女性
- 災害にも安心感がり、病院、スーパーなどがそろっているうえ交通の便がいいので住みやすい。
- 京都府京都市伏見区深草大亀谷八島町に住む人の口コミ60代男性
- あくまでも60代である個人が住むのにはどちらかといえば、満足している。配達してくれる店も多いし、交通の便も良いので。
物件概要
- 建物構造
- RC(鉄筋コンクリート)
- 駐車場
- 空有 13,200円(税込)
- 総戸数
- 31戸
- 契約形態
- -
- 契約期間
- 2年間
- 更新料
- 99,000円
- その他費用
- 室内清掃費用:33,000円、スマイルパック:15,000円
- 保証会社
加入要
保証会社:グリーン保証
保証会社利用料:初回:月額賃料等の50%、更新時:月額賃料等の50%(初回保証料および更新保証料ともに最低保証料22000円)
- 住宅保険
- 要
- 管理
- -
- LIFULL HOME'S
物件番号 - 0138141-0155464
- 自社管理番号
- 03212-305-25
- 取引態様
- 仲介
- 会社名
- 株式会社京都ライフ 伏見桃山店
営業スタッフコメント

株式会社京都ライフ 伏見桃山店
奥田光貴
全力でサポート致します。
業界経験5年
- スタッフ情報
- 京都の賃貸は京都ライフまでお待ちしております。 伏見桃山に新店を出させて頂きました。新しいお店でお待ちしております。 ご質問、ご不明な点等がございましたらお気軽にお電話、メールにてお問い合わせくださいませ。
京都の賃貸は京都ライフまでお待ちしております。 伏見桃山に新店を出させて頂きました。新しいお店でお待ちしております。 ご質問、ご不明な点等がございましたらお気軽にお電話、メールにてお問い合わせくださいませ。
- 電話でお問合せ(通話無料)
お問合せ先 :株式会社京都ライフ 伏見桃山店
不動産会社情報
株式会社京都ライフ 伏見桃山店

京都府京都市伏見区観音寺町215-1 CONNECT桃山2F
近鉄京都線 桃山御陵前駅 徒歩1分
- 営業時間
- 09:30~19:00
- 定休日
- 年中無休(盆正月を除く)
優良店認定
桃山御陵前駅降りればスグ!人口の多い伏見区、沿線の多い伏見区、大阪へも出易い伏見区でお探しの方へ! もちろん京都市内どこでもご案内致します。全力でお部屋探しをサポートさせて頂きます!
- 店舗の特徴
- 賃貸管理業務
- 24時間管理物件取扱い
- リフォーム対応
- 引越し業者紹介可
- 年中無休
- 社宅・寮物件取扱い
- オンライン相談可
- 保証人不要な物件あり
- 法人契約取扱い
- 駅から歩いて3分以内
電話でお問合せお客様の電話番号は不動産会社には通知されません
- 不動産会社に
つながります
お客様の電話番号は不動産会社に通知されません
- ※光IP電話、及びIP電話からはご利用になれません
- ※お電話によるお問合せは、店舗営業時間内にお願いします。つながらない場合は、お問合せフォームよりお問合せください
- ※不動産会社がお電話に出られなかった場合、お問合せいただいた後に不動産会社より折り返しのお電話がある場合がございます(お客様が非通知設定した場合は対象外です)
- ※株式会社LIFULLは電話会社が提供するサービスを介してお客様の発信者番号を受領後、折り返し専用の電話番号を発番してお問合せの不動産会社に通知します(お客様の発信者番号がお問合せの不動産会社に通知されることはございません)
- ※携帯電話からお問合せいただいた方に対し、株式会社LIFULLは電話会社が提供するメッセ―ジサービスを介してお客様の発信者番号を受領後、ショートメッセージ(SMS)またはLINE通知メッセージによるお問合せ内容に関する通知をお届けする場合があります
- ※お客様が通話中に不動産会社にお伝えになったお客様の個人情報及び、電話会社が発番する折り返し専用の電話番号は、お問合せ先不動産会社が資料送付・電子メール送信・電話連絡などの目的で保管する可能性があります。お問合せ先不動産会社が保管する個人情報の取扱いについては、各不動産会社に直接お問合せください
- ※株式会社LIFULLでは本サービスを円滑に運用するために、お客様の発信者番号をサービスご利用の控えとして一定期間保管いたします
- ※上記および株式会社LIFULLの個人情報の取扱い方針に同意のうえ、お電話ください
【LIFULL HOME'S物件番号】0138141-0155464【自社管理番号】03212-305-25
初期費用・月額費用をあわせて確認!この物件に住んだときの費用めやす
めやすを見るこの物件に住んだときの費用めやす
- 初期費用
- 月額費用
- 追加費用※ご確認ください
追加で費用が
かかる場合があります
必ずご確認ください
初期費用めやす約0円
追加で費用がかかります(※)敷金
0
- 礼金
77,000
賃料+共益費・管理費の1ヶ月分として換算
賃料の1ヶ月分+税として換算。不動産会社によって金額が異なるため正確な金額は不動産会社にお問合せください
※追加費用もチェック!
これらの項目以外にも費用がかかる場合があります。正確な金額は不動産会社にお問合せください。
- 初期費用
- 鍵交換費:不動産会社に要確認
- 室内清掃費:33,000円
- 火災保険費:不動産会社に要確認
- 月額費用
- 駐車場費:13,200円(税込)※契約任意
- その他
- スマイルパック:15000円
- 保証会社
- 初回:月額賃料等の50%、更新時:月額賃料等の50%(初回保証料および更新保証料ともに最低保証料22000円)
不動産会社より
新婚様にオススメ 丹波橋でハイグレードを求める方に
丹波橋駅から北東へ、格調ある6階建てのレンガ調外観はもはやこの辺りのランドマークになってます。東向きの広々2LDKはシステムキッチン、追炊き風呂、エアコンをはじめ充実設備ぞろいです、丹波橋でハイグレードを求める方に。京都の賃貸は京都ライフまでお待ちしております。ご質問、ご不明な点等がございましたらお気軽にお電話、メールにて... 物件情報はもちろん京都のエリア情報まで幅広く対応させていただきます!
- 保存する
- 共有する
- ※各種情報と現状に差異がある場合は、現状優先となります
- ※不動産会社が入力した情報を基に物件の位置を表示しています。詳しくは不動産会社までお問合せください
- ※不動産会社の方からの上記電話番号によるお問合せはお断りしております。こちら不動産会社詳細からお問合せください
- ※LIFULL HOME'Sは物件鮮度No.1を目指していきます。閲覧中の物件が「成約済である」「実際の物件情報と異なる点がある」などの場合、「掲載110番」からお問合せください
- ※QRコードは株式会社デンソーウェーブの登録商標です
したい暮らしのタグから探す
LIFULL HOME'S 地図・周辺情報
買い物
- セブンイレブン 伏見深草墨染町店
- フレスコ 墨染店
- ココカラファインカナートモール伏見店
- ファミリーマート 伏見京町店
- 業務スーパー 深草店
グルメ
- ケンタッキーフライドチキン カナートモール伏見店
- カフェ・ド・クリエホピタル京都医療センター店
- マクドナルド 伏見桃山店
- コメダ珈琲店伏見桃山駅前店
- ドトールコーヒーショップ伏見桃山駅前店
育児・教育
- 社会福祉協会墨染保育園
- 京都市立藤ノ森小学校
- 京都市立桃山中学校
- ももやま白菊保育園
- 京都市立伏見住吉小学校
医療
- 社会医療法人岡本病院(財団)伏見岡本病院
- 医療法人清水会京都リハビリテーション病院
- 独立行政法人国立病院機構京都医療センター
- 社会福祉法人浩照会伏見桃山総合病院
- 社会医療法人弘仁会大島病院
公共施設・郵便局
- 伏見京町北郵便局
- 京都市伏見中央図書館
- 京都市伏見区役所深草支所
- 伏見郵便局
- 京都市醍醐図書館
公園
- 伏見桃山城運動公園
- 伏見北堀公園
- 竹田公園
- 深草西浦南公園
- 下鳥羽公園
利用可能な駅
- 徒歩10分以内
京阪本線
- 墨染駅徒歩6分
- 丹波橋駅徒歩9分
- 周辺情報は2023年07月21日時点のものになります。
- 周辺情報は、参考情報としてのみご利用ください(周辺情報は、株式会社LIFULLが地図情報の提供事業者から提供を受けた情報とLIFULL HOME'Sの物件情報に基づき、独自の方法で抽出し提供しているものです。周辺情報は、移転や閉鎖等により情報が最新ではない、または正しくない場合がありますが、地図情報の提供事業者から提供された情報をそのまま周辺情報として表示しているため、正確かつ最新の情報へ修正することができないことがあります。)
- 周辺情報は、株式会社LIFULLが掲載するものであり、不動産物件情報を掲載している不動産会社が掲載するものではありません
- 交通情報の一部については、株式会社LIFULLが掲載するものであり、不動産物件情報を掲載している不動産会社が掲載するものではない場合があります。交通情報に関する質問などは株式会社LIFULLにお問合せください









