LIFULL HOME'Sは物件鮮度No.1!※評価について
JR片町線(学研都市線) 大住駅 徒歩4分
7.2万円/管理費等3,000円
18時間前 更新
画像一覧
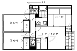
1/30間取り
間取
2/30外観
3/30外観
4/30リビング/ダイニング
明るいLDKです。
5/30リビング/ダイニング
明るい洋室です。
6/30リビング/ダイニング
明るいLDKです。
7/30リビング/ダイニング
和室です。
8/30リビング/ダイニング
日当たり良好の洋室です。
9/30リビング/ダイニング
日当たり良好の洋室です。
10/30リビング/ダイニング
日当たり良好の洋室です。
11/30リビング/ダイニング
日当たり良好の洋室です。
12/30リビング/ダイニング
カウンターあります。
13/30リビング/ダイニング
明るい和室です。
14/30キッチン
使いやすいキッチンです。
15/30キッチン
2口コンロ置けます。
16/30キッチン
使いやすいキッチンスペースです。
17/30キッチン
冷蔵庫も置けます。
18/30浴室
ゆったり入れます。
19/30トイレ
スッキリとしたトイレです。
20/30洗面
洗濯パンです。
21/30洗面
シャンプードレッサー付きです。
22/30収納
床下収納です。
23/30収納
たくさん収納あります。
24/30収納
たくさん収納あります。
25/30収納
たくさん収納あります。
26/30設備
インターホンです。
27/30玄関
スッキリとした玄関です。
28/30玄関
靴の収納もバッチリです。
29/30バルコニー
1階には専用の庭があります。
30/30周辺
ファミリーマート京田辺大住店まで334m
間取り
外観
外観
リビング/ダイニング
リビング/ダイニング
リビング/ダイニング
リビング/ダイニング
リビング/ダイニング
リビング/ダイニング
リビング/ダイニング
リビング/ダイニング
リビング/ダイニング
リビング/ダイニング
キッチン
キッチン
キッチン
キッチン
浴室
トイレ
洗面
洗面
収納
収納
収納
収納
設備
玄関
玄関
バルコニー
周辺
住まい探し特典内容
仲介手数料が家賃の半月分(消費税)です。
- 利用条件
- 株式会社京都ライフ 伏見桃山店で利用可
- 他特典との併用可
- 法人様契約、事業用物件は対象外です。積水ハウス、大東建託の管理物件は除く。
利用方法
来店時に本特典の画面をスマートフォンやタブレットでスタッフに提示、または画面印刷した用紙を提示ください。
有効期限 なし
追い焚機能付き浴槽。 お問合せは京都ライフ京田辺店0774−68−5300まで。
物件のこだわり/設備・条件
新築(非該当)
2階以上の物件(非該当)
南向き(該当)
駐車場あり(該当)
オートロック(非該当)
エアコン(非該当)
バス・トイレ別(該当)
追焚機能(非該当)
フローリング(該当)
ペット相談(非該当)
入居条件
二人入居可、即入居可キッチン/バス・トイレ
設備・サービス
公営水道、プロパンガス、下水、フローリング、バルコニー、室内洗濯機置場、南面バルコニー、駐車場あり、駐輪場ありその他
住まい探し特典あり備考
更新料なし。追炊き機能付き浴槽付きのファミリー物件です。お問合せは京都ライフ京田辺店0774−68−5300まで。 物件情報はもちろん京都のエリア情報まで幅広く対応させていただきます!
物件周辺の生活情報
買い物
- コンビニ(334m)
- スーパー(753m)
- ドラッグストア(2,000m)
その他施設
- 総合病院(1,900m)
- 銀行(643m)
- 京都田辺大住ケ丘郵便局(940m)
交通
- JR片町線(学研都市線) 大住駅 徒歩4分
- 普通(停車)
- 区間快速(停車)
- 快速(停車)
- JR片町線(学研都市線) 京田辺駅 徒歩25分
- 普通(停車)
- 区間快速(停車)
- 快速(停車)
※急行等の停車駅情報について
急行等の停車駅に関するデータは、随時更新をしておりますが、最新の内容であることを保証するものではありません。
最新かつ正確な情報につきましては、各鉄道会社のウェブサイトにてご確認ください
物件周辺の口コミ
- 京都府京田辺市大住竜王谷に住む人の口コミ30代男性
子育てには何不自由ない。車がないと買い物等不便だが自転車でもある程度は行ける。京都、大阪、奈良へのアクセスのよさ。
口コミを見る
この物件周辺に住む人の口コミ
口コミは、LIFULL HOME'Sが実際にこの物件の周辺に住む18歳~69歳の男女を対象に、WEBアンケート調査を実施しています。内容には回答者の主観的な表現が含まれる場合があるほか、事実と異なる場合もございます。ご了承ください。
- 京都府京田辺市大住竜王谷に住む人の口コミ30代男性
- 子育てには何不自由ない。車がないと買い物等不便だが自転車でもある程度は行ける。京都、大阪、奈良へのアクセスのよさ。
- 京都府京田辺市大住竜王谷に住む人の口コミ30代男性
- 静かで住みやすい。子育てにもいい、公園がある、自転車があればある程度は生活できる。
- 京都府京田辺市大住竜王谷に住む人の口コミ30代女性
- 自然が身近にあり人も変な人は今まであったことがない。が、買い物が不便なのでどちらかといえば満足にした。
- 京都府京田辺市大住竜王谷に住む人の口コミ60代男性
- まず、交通の便が良い。京都駅にも大阪梅田・奈良にも30から40分あれば行ける。高速道路もある程度完備され、一般道では渋滞する場所もあるが高速を使えばそれほど時間はかからない。
- 京都府京田辺市大住竜王谷に住む人の口コミ50代男性
- 子育てに適している町で自然も近くにあり、治安も良い。交通の便は良く京都・奈良・大阪に30分程度で出ることができる。
- 京都府京田辺市大住竜王谷に住む人の口コミ50代女性
- 緑が多くて環境が良い。買い物にも困らない。大阪にも京都にも30分くらいで行けて便利。
- 京都府京田辺市大住竜王谷に住む人の口コミ40代女性
- すごく自然豊かですが人口密集地もあり京都中心部、奈良中心部、大阪中心部も1時間以内でそれぞれの電車で出ていけます。
- 京都府京田辺市大住竜王谷に住む人の口コミ30代女性
- 子育てしやすいし不便さは感じないけど、おいしい弁当屋さんとかできてくれたら助かるのに。子連れが入りにくい店ばっかり。
- 京都府京田辺市大住竜王谷に住む人の口コミ30代男性
- これから大型商業施設や色々なお店がたくさん増えて行きそうだから。
- 京都府京田辺市大住竜王谷に住む人の口コミ60代女性
- 自然に恵まれてるが、学校、買い物などはそれほど不便ではないから
物件概要
- 建物構造
- 木造
- 駐車場
- 空有 7,700円(税込)
- 総戸数
- 8戸
- 契約形態
- -
- 契約期間
- 2年間
- 更新料
- -
- その他費用
- 室内清掃費用:49,500円、24時間サポート:1,100円、ファイテック消火剤:4,950円、書類代:5,500円
- 保証会社
加入要
保証会社:全保連
保証会社利用料:初回:月額賃料等の50%、月額:保証料1500円(学生の場合は、初回10000円)
- 住宅保険
- 要
- 管理
- 管理員:巡回
- LIFULL HOME'S
物件番号 - 0138141-0152772
- 自社管理番号
- 0523A-105-25
- 取引態様
- 仲介
- 会社名
- 株式会社京都ライフ 伏見桃山店
営業スタッフコメント

株式会社京都ライフ 伏見桃山店
奥田光貴
全力でサポート致します。
業界経験5年
- スタッフ情報
- 京都の賃貸は京都ライフまでお待ちしております。 伏見桃山に新店を出させて頂きました。新しいお店でお待ちしております。 ご質問、ご不明な点等がございましたらお気軽にお電話、メールにてお問い合わせくださいませ。
京都の賃貸は京都ライフまでお待ちしております。 伏見桃山に新店を出させて頂きました。新しいお店でお待ちしております。 ご質問、ご不明な点等がございましたらお気軽にお電話、メールにてお問い合わせくださいませ。
- 電話でお問合せ(通話無料)
お問合せ先 :株式会社京都ライフ 伏見桃山店
不動産会社情報
株式会社京都ライフ 伏見桃山店

京都府京都市伏見区観音寺町215-1 CONNECT桃山2F
近鉄京都線 桃山御陵前駅 徒歩1分
- 営業時間
- 09:30~19:00
- 定休日
- 年中無休(盆正月を除く)
優良店認定
桃山御陵前駅降りればスグ!人口の多い伏見区、沿線の多い伏見区、大阪へも出易い伏見区でお探しの方へ! もちろん京都市内どこでもご案内致します。全力でお部屋探しをサポートさせて頂きます!
- 店舗の特徴
- 賃貸管理業務
- 24時間管理物件取扱い
- リフォーム対応
- 引越し業者紹介可
- 年中無休
- 社宅・寮物件取扱い
- オンライン相談可
- 保証人不要な物件あり
- 法人契約取扱い
- 駅から歩いて3分以内
電話でお問合せお客様の電話番号は不動産会社には通知されません
- 不動産会社に
つながります
お客様の電話番号は不動産会社に通知されません
- ※光IP電話、及びIP電話からはご利用になれません
- ※お電話によるお問合せは、店舗営業時間内にお願いします。つながらない場合は、お問合せフォームよりお問合せください
- ※不動産会社がお電話に出られなかった場合、お問合せいただいた後に不動産会社より折り返しのお電話がある場合がございます(お客様が非通知設定した場合は対象外です)
- ※株式会社LIFULLは電話会社が提供するサービスを介してお客様の発信者番号を受領後、折り返し専用の電話番号を発番してお問合せの不動産会社に通知します(お客様の発信者番号がお問合せの不動産会社に通知されることはございません)
- ※携帯電話からお問合せいただいた方に対し、株式会社LIFULLは電話会社が提供するメッセ―ジサービスを介してお客様の発信者番号を受領後、ショートメッセージ(SMS)またはLINE通知メッセージによるお問合せ内容に関する通知をお届けする場合があります
- ※お客様が通話中に不動産会社にお伝えになったお客様の個人情報及び、電話会社が発番する折り返し専用の電話番号は、お問合せ先不動産会社が資料送付・電子メール送信・電話連絡などの目的で保管する可能性があります。お問合せ先不動産会社が保管する個人情報の取扱いについては、各不動産会社に直接お問合せください
- ※株式会社LIFULLでは本サービスを円滑に運用するために、お客様の発信者番号をサービスご利用の控えとして一定期間保管いたします
- ※上記および株式会社LIFULLの個人情報の取扱い方針に同意のうえ、お電話ください
【LIFULL HOME'S物件番号】0138141-0152772【自社管理番号】0523A-105-25
初期費用・月額費用をあわせて確認!この物件に住んだときの費用めやす
めやすを見るこの物件に住んだときの費用めやす
- 初期費用
- 月額費用
- 追加費用※ご確認ください
追加で費用が
かかる場合があります
必ずご確認ください
初期費用めやす約0円
追加で費用がかかります(※)敷金
72,000
- 礼金
72,000
賃料+共益費・管理費の1ヶ月分として換算
賃料の1ヶ月分+税として換算。不動産会社によって金額が異なるため正確な金額は不動産会社にお問合せください
※追加費用もチェック!
これらの項目以外にも費用がかかる場合があります。正確な金額は不動産会社にお問合せください。
- 初期費用
- 鍵交換費:不動産会社に要確認
- 室内清掃費:49,500円
- 火災保険費:不動産会社に要確認
- 月額費用
- 駐車場費:7,700円(税込)※契約任意
- その他
- 24時間サポート:1100円
- ファイテック消火剤:4950円
- 書類代:5500円
- 保証会社
- 初回:月額賃料等の50%、月額:保証料1500円(学生の場合は、初回10000円)
不動産会社より
追い焚機能付き浴槽。 お問合せは京都ライフ京田辺店0774−68−5300まで。
更新料なし。追炊き機能付き浴槽付きのファミリー物件です。お問合せは京都ライフ京田辺店0774−68−5300まで。 物件情報はもちろん京都のエリア情報まで幅広く対応させていただきます!
- 保存する
- 共有する
- ※各種情報と現状に差異がある場合は、現状優先となります
- ※不動産会社が入力した情報を基に物件の位置を表示しています。詳しくは不動産会社までお問合せください
- ※不動産会社の方からの上記電話番号によるお問合せはお断りしております。こちら不動産会社詳細からお問合せください
- ※LIFULL HOME'Sは物件鮮度No.1を目指していきます。閲覧中の物件が「成約済である」「実際の物件情報と異なる点がある」などの場合、「掲載110番」からお問合せください
- ※QRコードは株式会社デンソーウェーブの登録商標です
したい暮らしのタグから探す
この物件を取扱う他の会社
LIFULL HOME'Sでは、主要項目が同一の物件をまとめて表示しています。所在地や営業時間、掲載画像等から不動産会社を選んでお問合せください。
最近見た賃貸物件
LIFULL HOME'S 地図・周辺情報
買い物
- セブンイレブン 京田辺大住店
- スーパーストア ナカガワ大住ヶ丘店
- ダックス京田辺駅前店
- ファミリーマート 京田辺大住店
- コープ 京田辺
グルメ
- 31アイスクリーム アル・プラザ京田辺店
- ミスタードーナツ アルプラザ京田辺ショップ
- マクドナルド 京田辺アルプラザ店
- ケンタッキーフライドチキン アル・プラザ京田辺店
- ジョイフル 京都新田辺店
育児・教育
- 京田辺市立薪幼稚園
- 京田辺市立桃園小学校
- 京田辺市立大住中学校
- 京田辺市立大住幼稚園
- 京田辺市立薪小学校
医療
- 医療法人社団石鎚会京都田辺記念病院
- 医療法人社団石鎚会京都田辺中央病院
公共施設・郵便局
- 京都田辺大住ケ丘郵便局
- 京田辺市立中央図書館北部分室
- 京田辺市役所
- 大住郵便局
- 京田辺市立中央図書館
公園
- 木津川運動公園
- 諏訪ケ原公園
- 田辺公園
利用可能な駅
- 徒歩10分以内
JR片町線(学研都市線)
- 大住駅徒歩4分
- すべての駅
JR片町線(学研都市線)
- 京田辺駅徒歩25分
- 松井山手駅徒歩32分
近鉄京都線
- 新田辺駅徒歩35分
- 富野荘駅4.1km
- 周辺情報は2023年07月21日時点のものになります。
- 周辺情報は、参考情報としてのみご利用ください(周辺情報は、株式会社LIFULLが地図情報の提供事業者から提供を受けた情報とLIFULL HOME'Sの物件情報に基づき、独自の方法で抽出し提供しているものです。周辺情報は、移転や閉鎖等により情報が最新ではない、または正しくない場合がありますが、地図情報の提供事業者から提供された情報をそのまま周辺情報として表示しているため、正確かつ最新の情報へ修正することができないことがあります。)
- 周辺情報は、株式会社LIFULLが掲載するものであり、不動産物件情報を掲載している不動産会社が掲載するものではありません
- 交通情報の一部については、株式会社LIFULLが掲載するものであり、不動産物件情報を掲載している不動産会社が掲載するものではない場合があります。交通情報に関する質問などは株式会社LIFULLにお問合せください












































