LIFULL HOME'Sは物件鮮度No.1!※評価について
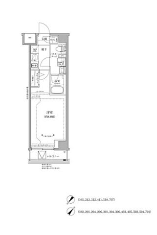
RELUXIA GRANDE 川崎大師公園(1階/105/1K/25.81m²)
RELUXIA GRANDE 川崎大師公園(1階/105/1K/25.81m²)
9.3万円/管理費等10,000円
2時間前 更新
お問合せ先 :ハウスコム東神奈川株式会社 武蔵小杉店
1〜3月は引越しシーズンのピークです。お問合せはお早めに!
住まい探し特典内容
ご契約者様特典BOOKOFF宅配買取の買取価格10%UPサービス
- 利用条件
- ハウスコム東神奈川株式会社 武蔵小杉店で利用可
- 他特典との併用可
- 弊社でご契約頂いたお客様全ての方が対象です
利用方法
来店時に本特典の画面をスマートフォンやタブレットでスタッフに提示、または画面印刷した用紙を提示ください。
有効期限 なし
共用部にはゴミ出し24時間OK・宅配ボックスなどが揃っており、とても充実しています。
基本情報
不動産用語- 賃料
- 9.3万円
- 管理費等
- 10,000円
初期費用などお気軽にお問合せください
- 敷金/礼金
- 無/1ヶ月
- 保証金/敷引・償却金
- -/-
- 交通
京急大師線 東門前駅 徒歩10分
京急大師線 大師橋駅 徒歩13分
- 所在地
神奈川県川崎市川崎区昭和2丁目4-15
地図を見る- 築年月
- 2026年3月(新築)
- 主要採光面
- 北西
- 専有面積
- 25.81㎡
- バルコニー面積
- -
- 所在階/階数
- 1階/7階建
入居可能日などお気軽にお問合せください
- 現況
- 未完成
- 入居可能時期
- 2026年04月 上旬

人気物件はすぐに埋まってしまいます。
気になったらお早めにお問合せください。
- 情報公開日
2026/01/31
本日 公開
- 情報更新日
2026/01/31
2時間前 更新
- 次回更新
予定日 - 2026/02/07
物件のこだわり/設備・条件
新築(該当)
2階以上の物件(非該当)
南向き(非該当)
駐車場(非該当)
オートロック(該当)
エアコン(該当)
バス・トイレ別(該当)
追焚機能(非該当)
フローリング(該当)
ペット相談(非該当)
位置
角部屋入居条件
保証人不要キッチン/バス・トイレ
設備・サービス
オートロック、防犯カメラ、TVモニタ付インターホン、エアコン、クローゼット、シューズボックス、CS対応、BS対応、インターネット対応、インターネット使用料無料、都市ガス、フローリング、バルコニー、室内洗濯機置場、タイル貼り、エレベーター、ゴミ出し24時間OK、宅配ボックス、バイク置き場あり、駐輪場ありその他
住まい探し特典あり備考
バイク置き場:有料 駐輪場:有料
物件周辺の生活情報
買い物
- スーパー(550m)
交通
- 京急大師線 東門前駅 徒歩10分
- 普通(停車)
- 京急大師線 大師橋駅 徒歩13分
- 普通(停車)
※急行等の停車駅情報について
急行等の停車駅に関するデータは、随時更新をしておりますが、最新の内容であることを保証するものではありません。
最新かつ正確な情報につきましては、各鉄道会社のウェブサイトにてご確認ください
物件周辺の口コミ
- 神奈川県川崎市川崎区塩浜に住む人の口コミ20代女性
ご近所さんがとてもいい人たちであること。近くに幼稚園、小学校、中学校とが揃っていること。買い物に徒歩でも行けること
口コミを見る
この物件周辺に住む人の口コミ
口コミは、LIFULL HOME'Sが実際にこの物件の周辺に住む18歳~69歳の男女を対象に、WEBアンケート調査を実施しています。内容には回答者の主観的な表現が含まれる場合があるほか、事実と異なる場合もございます。ご了承ください。
- 神奈川県川崎市川崎区塩浜に住む人の口コミ20代女性
- ご近所さんがとてもいい人たちであること。近くに幼稚園、小学校、中学校とが揃っていること。買い物に徒歩でも行けること
- 神奈川県川崎市川崎区大師本町に住む人の口コミ20代男性
- 繁華街からは離れた場所で静かな街。大型スーパーやホームセンターが近くにあり便利な点
- 神奈川県川崎市川崎区殿町に住む人の口コミ20代女性
- 終電が早いのが少し不満ですが、近くに商業施設やコンビニがあって暮らしやすいのでそのように回答しました。
- 神奈川県川崎市川崎区観音に住む人の口コミ30代女性
- 交通の便が発達しているのと、買い物できるところがたくさんあるから
- 神奈川県川崎市川崎区川中島に住む人の口コミ20代女性
- 欲を言えば色々出て来ますが、それがなくても生活に支障なく過ごせるので良いかなと思っています。
- 神奈川県川崎市川崎区中瀬に住む人の口コミ20代女性
- 静かな住宅街だが、有名な神社や大きな公園があり、活気もある雰囲気。交通の利便性がよく首都圏まで出やすい点も満足している。
- 神奈川県川崎市川崎区川中島に住む人の口コミ30代女性
- スーパーも複数あり、生活には困らない。近くに大きな川があるので災害時の不安は拭いきれない。
- 神奈川県川崎市川崎区中瀬に住む人の口コミ30代男性
- 日常生活に便利であり、高級店などを利用したい時もすぐ移動できる
- 神奈川県川崎市川崎区観音に住む人の口コミ30代女性
- 静かでありながら便利。大阪、神戸へのアクセスも良い。また買い物も便利でスーパー、ドラッグストア、GSなど生活に必要なものも充実している。少し足を伸ばせば、西宮の浜、宝塚も近く快適です。
- 神奈川県川崎市川崎区大師駅前に住む人の口コミ30代女性
- 自分の住んでいる街は、住宅街で落ち着いていて、生活するのに必要な低価格なスーパーや、コンビニもちょうど良い距離にある。また、数駅先には大きな商業施設があるので、週末などに遊ぶのには十分。
物件概要
- 建物構造
- RC(鉄筋コンクリート)
- 駐車場
- -
- 総戸数
- -
- 契約形態
- -
- 契約期間
- 2年間
- 更新料
- 新賃料の1ヶ月分
- その他費用
- 顔認証登録費:7,700円、安心入居サポート:18,700円
- 保証会社
加入要
保証会社:ジェイリース
保証会社利用料: 賃料等50%
- 住宅保険
- 要
- 管理
- -
- LIFULL HOME'S
物件番号 - 3701039-0382393
- 自社管理番号
- HC2-5359512-105-0053
- 取引態様
- 仲介
- 会社名
- ハウスコム東神奈川株式会社 武蔵小杉店
営業スタッフコメント

ハウスコム東神奈川株式会社 武蔵小杉店担当
堀篤仁
お客様目線でご入居後の生活スタイルも一緒のご提案させていただきます。
業界経験14年
資格少額短期保険募集人
- スタッフ情報
- お客様が最幸の物件に巡り会えるよう、全力でご対応させていただくことをお約束いたします。 皆様のご来店を心よりお待ちしておりますのでどうぞ宜しくお願いいたします。
お客様が最幸の物件に巡り会えるよう、全力でご対応させていただくことをお約束いたします。 皆様のご来店を心よりお待ちしておりますのでどうぞ宜しくお願いいたします。
- プロの意見がもらえる
- 最新情報が手に入る
- 他の物件も紹介してもらえる
- 電話でお問合せ(通話無料)
お問合せ先 :ハウスコム東神奈川株式会社 武蔵小杉店
不動産会社情報
ハウスコム東神奈川株式会社 武蔵小杉店
神奈川県川崎市中原区新丸子町922 レイロービル2階
JR南武線 武蔵小杉駅 徒歩1分
- 営業時間
- 10:00~18:00
- 定休日
- 年末年始「年末年始12/26~1/3」
日管協加盟
「武蔵小杉エリア」を中心とした東急東横線・JR各路線・横須賀線など多数路線・多数エリアお任せください!お客様のニーズに合わせてご紹介致します。
- 店舗の特徴
- 賃貸管理業務
- リフォーム対応
- 引越し業者紹介可
- 年中無休
- 保証人不要な物件あり
- 入居ローンあり
- 法人契約取扱い
- 女性スタッフ対応可
- 駅から歩いて3分以内
- 外国語を話せるスタッフ在籍
- プロの意見がもらえる
- 最新情報が手に入る
- 他の物件も紹介してもらえる
電話でお問合せお客様の電話番号は不動産会社には通知されません
- 不動産会社に
つながります
お客様の電話番号は不動産会社に通知されません
- ※光IP電話、及びIP電話からはご利用になれません
- ※お電話によるお問合せは、店舗営業時間内にお願いします。つながらない場合は、お問合せフォームよりお問合せください
- ※不動産会社がお電話に出られなかった場合、お問合せいただいた後に不動産会社より折り返しのお電話がある場合がございます(お客様が非通知設定した場合は対象外です)
- ※株式会社LIFULLは電話会社が提供するサービスを介してお客様の発信者番号を受領後、折り返し専用の電話番号を発番してお問合せの不動産会社に通知します(お客様の発信者番号がお問合せの不動産会社に通知されることはございません)
- ※携帯電話からお問合せいただいた方に対し、株式会社LIFULLは電話会社が提供するメッセ―ジサービスを介してお客様の発信者番号を受領後、ショートメッセージ(SMS)またはLINE通知メッセージによるお問合せ内容に関する通知をお届けする場合があります
- ※お客様が通話中に不動産会社にお伝えになったお客様の個人情報及び、電話会社が発番する折り返し専用の電話番号は、お問合せ先不動産会社が資料送付・電子メール送信・電話連絡などの目的で保管する可能性があります。お問合せ先不動産会社が保管する個人情報の取扱いについては、各不動産会社に直接お問合せください
- ※株式会社LIFULLでは本サービスを円滑に運用するために、お客様の発信者番号をサービスご利用の控えとして一定期間保管いたします
- ※上記および株式会社LIFULLの個人情報の取扱い方針に同意のうえ、お電話ください
【LIFULL HOME'S物件番号】3701039-0382393【自社管理番号】HC2-5359512-105-0053
オンライン対応
オンライン相談に対応している物件です

「オンライン内見」「オンライン相談」「IT重説」とは?
物件の内見や不動産会社スタッフとの相談、契約前の重要事項説明をオンライン(ビデオ通話)で行うことができるサービスです。
オンライン内見
ビデオ通話で現地(物件)にいる不動産会社スタッフと映像・音声を使ってリアルタイムで会話しながら内見ができます。
オンライン相談
「物件について聞きたいことがある」など不動産会社スタッフへの相談もビデオ通話で行うことができます。
IT重説
契約前の重要事項説明(重説)をビデオ通話で行うことができます。
利用時の注意事項
- ビデオ通話については各不動産会社指定のものとなります。
- ビデオ通話利用時には通信が発生します。従量課金制通信サービスや通信量に上限があるネット回線・プランを利用する場合は、通信量にご注意ください。
- 通信速度やアプリの設定によってはビデオ通話の画質が低下することがあります。安定した画質で利用するためにも、Wi-Fi環境下での利用を推奨します。
- ご利用のビデオ通話アプリによっては、対象のOSやブラウザに制限がある場合があります。詳しくはお問合せ先不動産会社にご確認ください。
初期費用・月額費用をあわせて確認!この物件に住んだときの費用めやす
めやすを見るこの物件に住んだときの費用めやす
- 初期費用
- 月額費用
- 追加費用※ご確認ください
追加で費用が
かかる場合があります
必ずご確認ください
初期費用めやす約0円
追加で費用がかかります(※)敷金
0
- 礼金
93,000
賃料+共益費・管理費の1ヶ月分として換算
賃料の1ヶ月分+税として換算。不動産会社によって金額が異なるため正確な金額は不動産会社にお問合せください
※追加費用もチェック!
これらの項目以外にも費用がかかる場合があります。正確な金額は不動産会社にお問合せください。
- 初期費用
- 鍵交換費:不動産会社に要確認
- 室内清掃費:不動産会社に要確認
- 火災保険費:不動産会社に要確認
- その他
- 顔認証登録費:7700円
- 安心入居サポート:18700円
- 保証会社
- 賃料等50%
不動産会社より
共用部にはゴミ出し24時間OK・宅配ボックスなどが揃っており、とても充実しています。
バイク置き場:有料 駐輪場:有料
- 保存する
- 共有する
- ※各種情報と現状に差異がある場合は、現状優先となります
- ※不動産会社が入力した情報を基に物件の位置を表示しています。詳しくは不動産会社までお問合せください
- ※不動産会社の方からの上記電話番号によるお問合せはお断りしております。こちら不動産会社詳細からお問合せください
- ※LIFULL HOME'Sは物件鮮度No.1を目指していきます。閲覧中の物件が「成約済である」「実際の物件情報と異なる点がある」などの場合、「掲載110番」からお問合せください
- ※QRコードは株式会社デンソーウェーブの登録商標です
この物件を取扱う他の会社
LIFULL HOME'Sでは、主要項目が同一の物件をまとめて表示しています。所在地や営業時間、掲載画像等から不動産会社を選んでお問合せください。
ハウスコム東神奈川株式会社 川崎駅前店
優良店認定
神奈川県川崎市川崎区駅前本町11-1パシフィックマークス川崎5F
JR京浜東北・根岸線 川崎駅 徒歩2分
- 営業時間
- 10:00~18:00
- 定休日
- 無し 年末年始休あり
株式会社ネクストライフ 川崎店
優良店認定
神奈川県川崎市川崎区駅前本町11-1 パシフィックマークス川崎ビル6階
JR京浜東北・根岸線 川崎駅 徒歩4分
- 営業時間
- 10:00~18:30(※電話でのお問い合わせは8時30分から21時00分まで対応可能)
- 定休日
- 年末年始を除き無休
株式会社タウンハウジング神奈川 鶴見店
優良店認定
神奈川県横浜市鶴見区豊岡町17-5 中野ビル1階D号室
JR京浜東北・根岸線 鶴見駅 徒歩1分
- 営業時間
- 10:00~19:00
- 定休日
- 水曜日
株式会社タウンハウジング神奈川 川崎店
優良店認定
神奈川県川崎市川崎区駅前本町12-1 川崎駅前タワー・リバーク1階
JR京浜東北・根岸線 川崎駅 徒歩2分
- 営業時間
- 10:00~19:00
- 定休日
- 毎週水曜日
株式会社ミニミニ神奈川 川崎店
優良店認定
神奈川県川崎市川崎区駅前本町15−5 十五番館302号
JR京浜東北・根岸線 川崎駅 徒歩3分
- 営業時間
- 10:00~18:00
- 定休日
- 毎週水曜日 (4月〜12月)・年末年始・GW・夏季休暇
LIFULL HOME'S 地図・周辺情報
買い物
- セブンイレブン 川崎四谷上町北店
- まいばすけっと東門前3丁目店
- ココカラファイン川崎四谷上町店
- ローソン 川崎台町店
- マルエツ 出来野店
グルメ
- カフェコロラド川崎大師店
- リンガーハット 川崎塩浜店
- 華屋与兵衛 川崎大師店
- マクドナルド 川崎出来野マルエツ店
- ジョナサン 川崎塩浜店
育児・教育
- 川崎さくら幼稚園
- 川崎市立大師小学校
- 川崎市立南大師中学校
- つめくさ保育園
- 川崎市立四谷小学校
医療
- 医療法人社団葵会AOI国際病院
- 医療法人誠医会宮川病院
- 川崎医療生活協同組合川崎協同病院
- 医療法人社団和光会総合川崎臨港病院
- 医療法人社団槿仁会なかじまクリニック
公共施設・郵便局
- 川崎昭和郵便局
- 川崎市立川崎図書館大師分館
- 川崎市川崎区役所大師支所
- 川崎大師郵便局
- 川崎市立川崎図書館田島分館
公園
- 大師公園
- 中浜公園
- 池上新田公園
- 桜川公園
- 萩中公園
利用可能な駅
- 徒歩10分以内
京急大師線
- 東門前駅徒歩10分
- すべての駅
京急大師線
- 大師橋駅徒歩13分
- 周辺情報は2023年07月21日時点のものになります。
- 周辺情報は、参考情報としてのみご利用ください(周辺情報は、株式会社LIFULLが地図情報の提供事業者から提供を受けた情報とLIFULL HOME'Sの物件情報に基づき、独自の方法で抽出し提供しているものです。周辺情報は、移転や閉鎖等により情報が最新ではない、または正しくない場合がありますが、地図情報の提供事業者から提供された情報をそのまま周辺情報として表示しているため、正確かつ最新の情報へ修正することができないことがあります。)
- 周辺情報は、株式会社LIFULLが掲載するものであり、不動産物件情報を掲載している不動産会社が掲載するものではありません
- 交通情報の一部については、株式会社LIFULLが掲載するものであり、不動産物件情報を掲載している不動産会社が掲載するものではない場合があります。交通情報に関する質問などは株式会社LIFULLにお問合せください



































