LIFULL HOME'Sは物件鮮度No.1!※評価について
グランバード西野II 3階/0301
8.5万円/管理費等4,000円
6時間前 更新
画像一覧
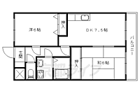
1/17間取り
2/17外観
3/17外観
4/17リビング/ダイニング
【LDK】窓から明るい光が入るリビング
5/17リビング/ダイニング
【LDK】ゆったりとした13.7帖のLDK
6/17リビング/ダイニング
【LDK】壁紙にアクセントを施し、落ち着いたおしゃれな雰囲気をコーディネートしました
7/17室内
【洋室】2面に窓があり風通しの良い洋室
8/17キッチン
【キッチン】3口ガスコンロ付きシステムキッチンで料理もはかどります♪
9/17浴室
【浴室】オシャレなアクセントを施した浴室。リラックスタイムにゆったりとご利用下さい。
10/17トイレ
【トイレ】うれしい洗浄機能付き暖房便座です。上部にはトイレットペーパーなどをストックできる棚がついています
11/17洗面
【洗面】洗面化粧台と、洗濯機置き場のある洗面所です!
12/17収納
【収納】ハンガーパイプ・仕切り棚があり収納力効率を高めた設計です
13/17設備
【エアコン】エアコンを設置しているため初期費用を軽減できます
14/17設備
【設備】雨の日にも洗濯物を乾かせる浴室乾燥機付きです
15/17玄関
【玄関】便利な下駄箱収納付き♪
16/17玄関
【玄関】玄関から室内を見た光景です
17/17バルコニー
【バルコニー】バルコニーがありますので、お洗濯の際に便利です
間取り
外観
外観
リビング/ダイニング
リビング/ダイニング
リビング/ダイニング
室内
キッチン
浴室
トイレ
洗面
収納
設備
設備
玄関
玄関
バルコニー
お問合せ先 :シャーメゾンショップ 株式会社Y’s
2025年10月間取・設備入替変更工事完成。2DKから1LDKへ間取変更。
紹介ムービー
動画の読み込みに失敗しました。
再読み込みしてください。
設備の故障やトラブルのご連絡はアプリひとつで完結できます。さらに、住むほど貯まるシャーメゾンライフPOINTで住み替え時もお得に。ほかにも、さまざまな入居者サービスをご用意しております。
物件のこだわり/設備・条件
新築(非該当)
2階以上の物件(該当)
南向き(該当)
駐車場あり(該当)
オートロック(非該当)
エアコン(該当)
バス・トイレ別(該当)
追焚機能(非該当)
フローリング(非該当)
ペット相談(非該当)
入居条件
楽器不可、ペット不可、保証人不要、即入居可、LGBTQフレンドリーキッチン/バス・トイレ
設備・サービス
防犯カメラ、エアコン、CATV、BS対応、都市ガス、バルコニー、室内洗濯機置場、南面バルコニー、駐車場ありその他
初期費用カード決済可備考
施工会社:積水ハウス株式会社
142000-4003520-0301 内覧、契約については、貸主の指定する仲介業者を介して行いますので、所定の仲介手数料が必要となります。/シャーメゾンライフSUPPORT24(月額1,320円税込)加入要/諸費用及びその他契約費用は別途打合せ/※家具や車は配置イメージであり、賃貸物件には含まれません(家具家電付等を除く)。
物件周辺の生活情報
交通
- 京都地下鉄東西線 東野駅 徒歩13分
- 普通(停車)
- 京都地下鉄東西線 椥辻駅 徒歩20分
- 普通(停車)
※急行等の停車駅情報について
急行等の停車駅に関するデータは、随時更新をしておりますが、最新の内容であることを保証するものではありません。
最新かつ正確な情報につきましては、各鉄道会社のウェブサイトにてご確認ください
物件概要
- 建物構造
- RC(鉄筋コンクリート)
- 駐車場
- 空有 料金:賃料に含む
- 総戸数
- 12戸
- 契約形態
- -
- 契約期間
- 2年間
- 更新料
- 新賃料の1ヶ月分
- その他費用
- 仲介手数料:賃料1ヶ月分に対する110%、鍵交換費用:13,200円、クリーニング特約料:55,000円、シャーメゾンライフSUPPORT24月額/月:1,320円
- 保証会社
加入要
保証会社利用料:【個人契約】 初回契約事務手数料:33,000円(税込)、月額保証料:賃料等の2%、保証会社:積水ハウスシャーメゾンパートナーズ
- 住宅保険
- 要
- 管理
- -
- LIFULL HOME'S
物件番号 - 3723360-0000004
- 自社管理番号
- 142000-4003520-0301
- 取引態様
- 一般媒介★
- 会社名
- シャーメゾンショップ 株式会社Y’s
- 電話でお問合せ(通話無料)
お問合せ先 :シャーメゾンショップ 株式会社Y’s
不動産会社情報
電話でお問合せお客様の電話番号は不動産会社には通知されません
- 不動産会社に
つながります
お客様の電話番号は不動産会社に通知されません
- ※光IP電話、及びIP電話からはご利用になれません
- ※お電話によるお問合せは、店舗営業時間内にお願いします。つながらない場合は、お問合せフォームよりお問合せください
- ※不動産会社がお電話に出られなかった場合、お問合せいただいた後に不動産会社より折り返しのお電話がある場合がございます(お客様が非通知設定した場合は対象外です)
- ※株式会社LIFULLは電話会社が提供するサービスを介してお客様の発信者番号を受領後、折り返し専用の電話番号を発番してお問合せの不動産会社に通知します(お客様の発信者番号がお問合せの不動産会社に通知されることはございません)
- ※携帯電話からお問合せいただいた方に対し、株式会社LIFULLは電話会社が提供するメッセ―ジサービスを介してお客様の発信者番号を受領後、ショートメッセージ(SMS)またはLINE通知メッセージによるお問合せ内容に関する通知をお届けする場合があります
- ※お客様が通話中に不動産会社にお伝えになったお客様の個人情報及び、電話会社が発番する折り返し専用の電話番号は、お問合せ先不動産会社が資料送付・電子メール送信・電話連絡などの目的で保管する可能性があります。お問合せ先不動産会社が保管する個人情報の取扱いについては、各不動産会社に直接お問合せください
- ※株式会社LIFULLでは本サービスを円滑に運用するために、お客様の発信者番号をサービスご利用の控えとして一定期間保管いたします
- ※上記および株式会社LIFULLの個人情報の取扱い方針に同意のうえ、お電話ください
【LIFULL HOME'S物件番号】3723360-0000004【自社管理番号】142000-4003520-0301
初期費用・月額費用をあわせて確認!この物件に住んだときの費用めやす
めやすを見るこの物件に住んだときの費用めやす
- 初期費用
- 月額費用
- 追加費用※ご確認ください
追加で費用が
かかる場合があります
必ずご確認ください
※追加費用もチェック!
これらの項目以外にも費用がかかる場合があります。正確な金額は不動産会社にお問合せください。
- 初期費用
- 鍵交換費:不動産会社に要確認
- 室内清掃費:不動産会社に要確認
- 火災保険費:不動産会社に要確認
- 月額費用
- 駐車場費:賃料に含む
- その他
- 鍵交換費用:13200円
- クリーニング特約料:55000円
- シャーメゾンライフSUPPORT24月額/月:1320円
- 保証会社
- 【個人契約】 初回契約事務手数料:33,000円(税込)、月額保証料:賃料等の2%、保証会社:積水ハウスシャーメゾンパートナーズ
不動産会社より
2025年10月間取・設備入替変更工事完成。2DKから1LDKへ間取変更。
142000-4003520-0301 内覧、契約については、貸主の指定する仲介業者を介して行いますので、所定の仲介手数料が必要となります。/シャーメゾンライフSUPPORT24(月額1,320円税込)加入要/諸費用及びその他契約費用は別途打合せ/※家具や車は配置イメージであり、賃貸物件には含まれません(家具家電付等を除く)。
- 保存する
- 共有する
- ※各種情報と現状に差異がある場合は、現状優先となります
- ※不動産会社が入力した情報を基に物件の位置を表示しています。詳しくは不動産会社までお問合せください
- ※不動産会社の方からの上記電話番号によるお問合せはお断りしております。こちら不動産会社詳細からお問合せください
- ※LIFULL HOME'Sは物件鮮度No.1を目指していきます。閲覧中の物件が「成約済である」「実際の物件情報と異なる点がある」などの場合、「掲載110番」からお問合せください
- ※QRコードは株式会社デンソーウェーブの登録商標です
LIFULL HOME'S 地図・周辺情報
買い物
- ローソン 国道西野店
- ハッピーテラダ山科西店
- ドラッグユタカ山科西野店
- ローソン 山科左義長店
- ジャパン 山科店
グルメ
- 無添くら寿司 山科店
- ケンタッキーフライドチキン R1山科店
- すき家 1国山科西野店
- ロイヤルホスト 山科西野店
- スシロー 山科店
育児・教育
- 学校法人佛教教育学園東山幼稚園
- 京都市立山階南小学校
- 京都市立山科中学校
- まんいんじこども園
- 京都市立西野小学校
医療
- 加藤山科病院
- 恵仁会なぎ辻病院
- 一般社団法人愛生会山科病院
- 医療法人社団洛和会洛和会音羽病院
- 医療法人社団洛和会洛和会音羽リハビリテーション病院
公共施設・郵便局
- 京都東野郵便局
- 京都市山科図書館
- 京都市山科区役所
- 山科郵便局
- 山科警察署
公園
- 東山山頂公園
利用可能な駅
- すべての駅
京都地下鉄東西線
- 東野駅徒歩13分
- 椥辻駅徒歩20分
- 小野駅徒歩34分
京阪京津線
- 御陵駅徒歩27分
- 京阪山科駅徒歩28分
- 四宮駅徒歩35分
JR東海道・山陽本線
- 山科駅徒歩29分
- 周辺情報は2023年07月21日時点のものになります。
- 周辺情報は、参考情報としてのみご利用ください(周辺情報は、株式会社LIFULLが地図情報の提供事業者から提供を受けた情報とLIFULL HOME'Sの物件情報に基づき、独自の方法で抽出し提供しているものです。周辺情報は、移転や閉鎖等により情報が最新ではない、または正しくない場合がありますが、地図情報の提供事業者から提供された情報をそのまま周辺情報として表示しているため、正確かつ最新の情報へ修正することができないことがあります。)
- 周辺情報は、株式会社LIFULLが掲載するものであり、不動産物件情報を掲載している不動産会社が掲載するものではありません
- 交通情報の一部については、株式会社LIFULLが掲載するものであり、不動産物件情報を掲載している不動産会社が掲載するものではない場合があります。交通情報に関する質問などは株式会社LIFULLにお問合せください








