LIFULL HOME'Sは物件鮮度No.1!※評価について
過去掲載時の参考情報
以下の物件情報は広告情報ではありません。LIFULL HOME'Sが過去に掲載された物件情報を元に作成した参考情報です。
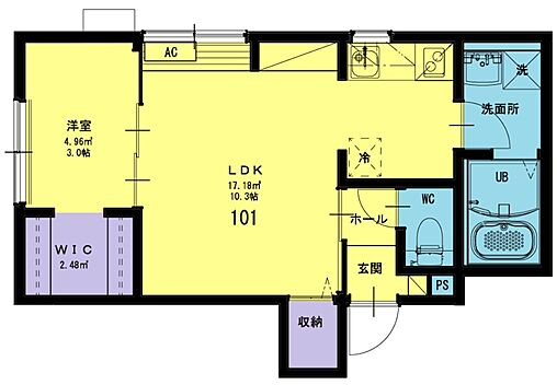
賃貸アパートサイプレス(2階/201/1LDK/40.09m²)
物件概要
- お問合せ状況
- 現在この物件はお問合せできません
- 交通
名鉄犬山線 柏森駅 徒歩15分
名鉄犬山線 扶桑駅 徒歩35分
- 所在地
愛知県丹羽郡大口町余野5丁目164番地
- 築年月
- 2018年3月(築9年)
- 間取り
- 1LDK
- 主要採光面
- 南
- 専有面積
- 40.09㎡
- 所在階/階数
- 2階/2階建
- 建物構造
- 木造
物件のこだわり/設備・条件
新築(非該当)
2階以上の物件(該当)
南向き(該当)
駐車場あり(該当)
オートロック(非該当)
エアコン(該当)
バス・トイレ別(該当)
追焚機能(該当)
フローリング(該当)
ペット相談(非該当)
位置
角部屋入居条件
二人入居可キッチン/バス・トイレ
ガスコンロ設置済、コンロ二口、給湯、専用バス、専用トイレ、バス・トイレ別、追焚機能、シャワー、シャワー付洗面化粧台、温水洗浄便座、浴室乾燥機、洗面所独立、オートバス設備・サービス
TVモニタ付インターホン、エアコン、クローゼット、シューズボックス、BS対応、光ファイバー、公営水道、都市ガス、フローリング、バルコニー、室内洗濯機置場、照明器具付き、南面バルコニー、駐車場あり、駐輪場ありその他
住まい探し特典あり
物件周辺の生活情報
買い物
- コンビニ(330m)
- スーパー(490m)
その他施設
- カネスエ 大口店(490m)
交通
- 名鉄犬山線 柏森駅 徒歩15分
- 普通(停車)
- 準急(停車)
- 急行(停車)
- 快速急行(停車)
- 特急(停車)
- 快速特急(停車)
※急行等の停車駅情報について
急行等の停車駅に関するデータは、随時更新をしておりますが、最新の内容であることを保証するものではありません。
最新かつ正確な情報につきましては、各鉄道会社のウェブサイトにてご確認ください














































