LIFULL HOME'Sは物件鮮度No.1!※評価について
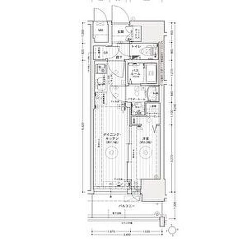
名古屋市営名城線 東別院駅 徒歩7分(3階/1DK/28.01m²)
名古屋市営名城線 東別院駅 徒歩7分(3階/1DK/28.01m²)
7.5万円/管理費等5,340円
4時間前 更新
お問合せ先 :大東建託リーシング株式会社 中村公園店
1〜3月は引越しシーズンのピークです。お問合せはお早めに!
引越し料金割引
提携引越業者様の割引適用
- 利用条件
- 大東建託リーシング株式会社 中村公園店で利用可
- 他特典との併用可
利用方法
来店時に本特典の画面をスマートフォンやタブレットでスタッフに提示、または画面印刷した用紙を提示ください。
有効期限 なし
お部屋探しはいい部屋ネット 中村公園店へお問合せ下さい
基本情報
不動産用語- 賃料
- 7.5万円
- 管理費等
- 5,340円
初期費用などお気軽にお問合せください
- 敷金/礼金
- 無/無
- 保証金/敷引・償却金
- -/-
- 交通
名古屋市営名城線 東別院駅 徒歩7分
名古屋市営鶴舞線 上前津駅 徒歩9分
- 所在地
愛知県名古屋市中区富士見町718(地番)
地図を見る- 築年月
- 2026年1月(新築)
- 主要採光面
- 北
- 専有面積
- 28.01㎡
- バルコニー面積
- 4.42㎡
- 所在階/階数
- 3階/15階建
入居可能日などお気軽にお問合せください
- 現況
- -
- 入居可能時期
- 2026年02月 上旬

人気物件はすぐに埋まってしまいます。
気になったらお早めにお問合せください。
- 情報公開日
2025/11/03
88日前 公開
- 情報更新日
2026/01/30
4時間前 更新
- 次回更新
予定日 - 2026/02/13
物件のこだわり/設備・条件
新築(該当)
2階以上の物件(該当)
南向き(非該当)
駐車場あり(該当)
オートロック(該当)
エアコン(該当)
バス・トイレ別(該当)
追焚機能(非該当)
フローリング(該当)
ペット相談可(該当)
入居条件
二人入居可、ペット可、保証人不要キッチン/バス・トイレ
ガスコンロ設置済、コンロ二口、給湯、専用トイレ、バス・トイレ別、温水洗浄便座、浴室乾燥機、洗面所独立設備・サービス
オートロック、防犯カメラ、TVモニタ付インターホン、エアコン、ウォークインクローゼット、シューズボックス、CATV、CS対応、BS対応、インターネット対応、インターネット使用料無料、公営水道、都市ガス、下水、フローリング、バルコニー、室内洗濯機置場、エレベーター、宅配ボックス、駐車場あり、駐輪場ありその他
分譲賃貸、住まい探し特典あり備考
1年未満の解約は違約金として家賃・共益費の1ヶ月分が必要です。 小型犬2匹まで飼育可。月額550円/退去時消毒費2.2万円が必要です。 解約予告 2ヶ月前(最終月日割精算無) エステム安心クラブの加入費用として 初回5、500円 月額990円を頂きます。
物件周辺の生活情報
買い物
- コンビニ(559m)
- スーパー(462m)
交通
- 名古屋市営名城線 東別院駅 徒歩7分
- 普通(停車)
- 名古屋市営鶴舞線 上前津駅 徒歩9分
- 普通(停車)
※急行等の停車駅情報について
急行等の停車駅に関するデータは、随時更新をしておりますが、最新の内容であることを保証するものではありません。
最新かつ正確な情報につきましては、各鉄道会社のウェブサイトにてご確認ください
物件周辺の口コミ
- 愛知県名古屋市中区千代田に住む人の口コミ20代女性
商店街や商業施設が近くにあるのは嬉しいが、夜中うるさかったりするから
口コミを見る
この物件周辺に住む人の口コミ
口コミは、LIFULL HOME'Sが実際にこの物件の周辺に住む18歳~69歳の男女を対象に、WEBアンケート調査を実施しています。内容には回答者の主観的な表現が含まれる場合があるほか、事実と異なる場合もございます。ご了承ください。
- 愛知県名古屋市中区千代田に住む人の口コミ20代女性
- 商店街や商業施設が近くにあるのは嬉しいが、夜中うるさかったりするから
- 愛知県名古屋市中川区松重町に住む人の口コミ20代女性
- バス停や高速道路入口はすぐ近くにあるが、最寄りの駅まで徒歩で15分かかるので。
- 愛知県名古屋市中区大須に住む人の口コミ20代女性
- 交通アクセスが便利。繁華街まで徒歩でいける。近隣ではないが、少し歩けば百貨店や映画館などがある。大型スーパーが近くにないことは不便。大通りに面しているのに、バスの本数が少ない。
- 愛知県名古屋市中区正木に住む人の口コミ30代女性
- これといった特徴がある訳ではないが、交通などの便がいい割に、そこまで都会でなく静かに暮らせるところがいいと思っている。
- 愛知県名古屋市中区千代田に住む人の口コミ30代女性
- 数年間住むには便利で良いところ。ただずっと住みたいかというと、そうではない。
- 愛知県名古屋市中区千代田に住む人の口コミ30代女性
- 繁華街まで歩いていけるし、道中危なくない。車がなくても生活できる。病院、公園、図書館、学校も近くにあり安心できる。また、飲食店や商店街等も近くにあり退屈しない。
- 愛知県名古屋市中区大須に住む人の口コミ30代女性
- 住宅の目の前が駅で、有料駐輪場が無いため、放置自転車が多く、歩道が狭くなっている。この一点だけ、気になる。
- 愛知県名古屋市中区金山に住む人の口コミ20代女性
- 交通の便が良い点は満足しているが、居酒屋が多く夜でも人が多いから。
- 愛知県名古屋市中区松原に住む人の口コミ30代女性
- 買い物等に便利だが、繁華街から一歩離れた場所なので静かだから
- 愛知県名古屋市中区栄に住む人の口コミ20代女性
- 治安はあまり良くないと感じる。外にゴミが多いし、ホームレスとかと多くいる
物件概要
- 建物構造
- RC(鉄筋コンクリート)
- 駐車場
- 空有 22,000円(税無)
- 総戸数
- 126戸
- 契約形態
- -
- 契約期間
- 1年間
- 更新料
- -
- その他費用
- 鍵交換費用:33,000円、室内清掃費用:43,120円、初期費用:契約事務手数料、エステム安心クラブ 入会金:16,500円、ランニング費用:更新事務手数料(更新時)、エステム安心クラブ 月額費(月額):17,490円、その他費用:エアコンクリーニング代(退去時):13,200円
- 保証会社
加入要
保証会社:オリコ
保証会社利用料:初回保証料 総賃料50% 月額保証料 総賃料1.5%
- 住宅保険
- 要
- 管理
- 管理員:巡回
- LIFULL HOME'S
物件番号 - 3700486-0050383
- 自社管理番号
- 580-5653875
- 取引態様
- 仲介
- 会社名
- 大東建託リーシング株式会社 中村公園店
- 電話でお問合せ(通話無料)
お問合せ先 :大東建託リーシング株式会社 中村公園店
不動産会社情報
大東建託リーシング株式会社 中村公園店
愛知県名古屋市中村区豊国通1丁目2 中央ビル2階
名古屋市営東山線 中村公園駅 徒歩1分
- 営業時間
- 10:00~18:00(【12:30~13:30は昼休憩】)
- 定休日
- 毎週火・水曜日
【いい部屋ネット】でおなじみの大東建託リーシング中村公園店です♪中村公園駅1番出口から南側へ徒歩1分です。オンライン接客やオンライン内覧、現地待ち合わせでのお部屋のご案内も可能です!
- 店舗の特徴
- 賃貸管理業務
- 引越し業者紹介可
- 系列店舗での対応可
- オンライン相談可
- 保証人不要な物件あり
- 法人契約取扱い
- 女性スタッフ対応可
- 駅から歩いて3分以内
電話でお問合せお客様の電話番号は不動産会社には通知されません
- 不動産会社に
つながります
お客様の電話番号は不動産会社に通知されません
- ※光IP電話、及びIP電話からはご利用になれません
- ※お電話によるお問合せは、店舗営業時間内にお願いします。つながらない場合は、お問合せフォームよりお問合せください
- ※不動産会社がお電話に出られなかった場合、お問合せいただいた後に不動産会社より折り返しのお電話がある場合がございます(お客様が非通知設定した場合は対象外です)
- ※株式会社LIFULLは電話会社が提供するサービスを介してお客様の発信者番号を受領後、折り返し専用の電話番号を発番してお問合せの不動産会社に通知します(お客様の発信者番号がお問合せの不動産会社に通知されることはございません)
- ※携帯電話からお問合せいただいた方に対し、株式会社LIFULLは電話会社が提供するメッセ―ジサービスを介してお客様の発信者番号を受領後、ショートメッセージ(SMS)またはLINE通知メッセージによるお問合せ内容に関する通知をお届けする場合があります
- ※お客様が通話中に不動産会社にお伝えになったお客様の個人情報及び、電話会社が発番する折り返し専用の電話番号は、お問合せ先不動産会社が資料送付・電子メール送信・電話連絡などの目的で保管する可能性があります。お問合せ先不動産会社が保管する個人情報の取扱いについては、各不動産会社に直接お問合せください
- ※株式会社LIFULLでは本サービスを円滑に運用するために、お客様の発信者番号をサービスご利用の控えとして一定期間保管いたします
- ※上記および株式会社LIFULLの個人情報の取扱い方針に同意のうえ、お電話ください
【LIFULL HOME'S物件番号】3700486-0050383【自社管理番号】580-5653875
オンライン対応
オンライン相談・IT重説に対応している物件です

「オンライン内見」「オンライン相談」「IT重説」とは?
物件の内見や不動産会社スタッフとの相談、契約前の重要事項説明をオンライン(ビデオ通話)で行うことができるサービスです。
オンライン内見
ビデオ通話で現地(物件)にいる不動産会社スタッフと映像・音声を使ってリアルタイムで会話しながら内見ができます。
オンライン相談
「物件について聞きたいことがある」など不動産会社スタッフへの相談もビデオ通話で行うことができます。
IT重説
契約前の重要事項説明(重説)をビデオ通話で行うことができます。
利用時の注意事項
- ビデオ通話については各不動産会社指定のものとなります。
- ビデオ通話利用時には通信が発生します。従量課金制通信サービスや通信量に上限があるネット回線・プランを利用する場合は、通信量にご注意ください。
- 通信速度やアプリの設定によってはビデオ通話の画質が低下することがあります。安定した画質で利用するためにも、Wi-Fi環境下での利用を推奨します。
- ご利用のビデオ通話アプリによっては、対象のOSやブラウザに制限がある場合があります。詳しくはお問合せ先不動産会社にご確認ください。
初期費用・月額費用をあわせて確認!この物件に住んだときの費用めやす
めやすを見るこの物件に住んだときの費用めやす
- 初期費用
- 月額費用
- 追加費用※ご確認ください
追加で費用が
かかる場合があります
必ずご確認ください
初期費用めやす約0円
追加で費用がかかります(※)敷金
0
- 礼金
0
- 保証金
0
賃料+共益費・管理費の1ヶ月分として換算
賃料の1ヶ月分+税として換算。不動産会社によって金額が異なるため正確な金額は不動産会社にお問合せください
※追加費用もチェック!
これらの項目以外にも費用がかかる場合があります。正確な金額は不動産会社にお問合せください。
- 初期費用
- 鍵交換費:33,000円
- 室内清掃費:43,120円
- 火災保険費:不動産会社に要確認
- 月額費用
- 駐車場費:22,000円※契約任意
- その他
- 初期費用:契約事務手数料、エステム安心クラブ 入会金:16500円
- ランニング費用:更新事務手数料(更新時)、エステム安心クラブ 月額費(月額):17490円
- その他費用:エアコンクリーニング代(退去時):13200円
- 保証会社
- 初回保証料 総賃料50% 月額保証料 総賃料1.5%
不動産会社より
お部屋探しはいい部屋ネット 中村公園店へお問合せ下さい
1年未満の解約は違約金として家賃・共益費の1ヶ月分が必要です。 小型犬2匹まで飼育可。月額550円/退去時消毒費2.2万円が必要です。 解約予告 2ヶ月前(最終月日割精算無) エステム安心クラブの加入費用として 初回5、500円 月額990円を頂きます。
- 保存する
- 共有する
- ※各種情報と現状に差異がある場合は、現状優先となります
- ※不動産会社が入力した情報を基に物件の位置を表示しています。詳しくは不動産会社までお問合せください
- ※不動産会社の方からの上記電話番号によるお問合せはお断りしております。こちら不動産会社詳細からお問合せください
- ※LIFULL HOME'Sは物件鮮度No.1を目指していきます。閲覧中の物件が「成約済である」「実際の物件情報と異なる点がある」などの場合、「掲載110番」からお問合せください
- ※QRコードは株式会社デンソーウェーブの登録商標です
したい暮らしのタグから探す
LIFULL HOME'S 地図・周辺情報
買い物
- ファミリーマート たちばな店
- マックスバリュ 千代田店
- スギ薬局上前津店
- ファミリーマート キャッスル記念橋南/S店
- ヤマナカ つるまい店
グルメ
- コメダ珈琲店富士見橋店
- 大戸屋 ごはん処マックスバリュ千代田店
- ザめしや 名古屋上前津店
- スターバックスコーヒー東別院店
- すき家 上前津駅南店
育児・教育
- 名古屋市中保育園
- 名古屋市立橘小学校
- 名古屋市立前津中学校
- ウィズブック保育園鶴舞
- 名古屋市立平和小学校
医療
- 医療法人聖真会横山記念病院
- 医療法人桂名会大須病院
- 眼科杉田病院
- 国立大学法人名古屋大学医学部附属病院
- 水谷病院
公共施設・郵便局
- 名古屋七本松郵便局
- 名古屋市鶴舞中央図書館
- 中警察署
- 名古屋上前津郵便局
- 名古屋市熱田図書館
公園
- 葉場公園
- 若宮大通公園
- 白川公園
- 松重閘門公園
- 高蔵公園
利用可能な駅
- 徒歩10分以内
名古屋市営名城線
- 東別院駅徒歩7分
名古屋市営鶴舞線
- 上前津駅徒歩9分
- 周辺情報は2023年07月21日時点のものになります。
- 周辺情報は、参考情報としてのみご利用ください(周辺情報は、株式会社LIFULLが地図情報の提供事業者から提供を受けた情報とLIFULL HOME'Sの物件情報に基づき、独自の方法で抽出し提供しているものです。周辺情報は、移転や閉鎖等により情報が最新ではない、または正しくない場合がありますが、地図情報の提供事業者から提供された情報をそのまま周辺情報として表示しているため、正確かつ最新の情報へ修正することができないことがあります。)
- 周辺情報は、株式会社LIFULLが掲載するものであり、不動産物件情報を掲載している不動産会社が掲載するものではありません
- 交通情報の一部については、株式会社LIFULLが掲載するものであり、不動産物件情報を掲載している不動産会社が掲載するものではない場合があります。交通情報に関する質問などは株式会社LIFULLにお問合せください

























