LIFULL HOME'Sは物件鮮度No.1!※評価について
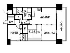
花房国分寺マンション(9階/910/3LDK/61.57m²)
花房国分寺マンション(9階/910/3LDK/61.57m²)
6.8万円/管理費等5,000円
3日前 更新
画像一覧
1/19間取り
2/19外観
3/19リビング/ダイニング
4/19室内
5/19キッチン
6/19浴室
7/19トイレ
8/19洗面
9/19収納
10/19設備
11/19玄関
12/19バルコニー
13/19エントランス
14/19その他
15/19周辺
【スーパー】マルヨシセンター 国分寺店まで1313m
16/19周辺
【コンビニエンスストア】ローソン 高松国分寺町福家店まで1602m
17/19周辺
【コンビニエンスストア】ファミリーマート 坂出府中店まで1626m
18/19周辺
【スーパー】ザ・ビッグ 国分寺店まで1396m
19/19周辺
【スーパー】マルナカ 国分寺店まで1414m
間取り
外観
リビング/ダイニング
室内
キッチン
浴室
トイレ
洗面
収納
設備
玄関
バルコニー
エントランス
その他
周辺
周辺
周辺
周辺
周辺
お問合せ先 :大東建託リーシング株式会社 高松国道11号店
1〜4月は引越しシーズンのピークです。お問合せはお早めに!
賃貸物件をお探しの方は、いい部屋ネットへお任せください。
基本情報
不動産用語- 賃料
- 6.8万円
- 管理費等
- 5,000円
初期費用などお気軽にお問合せください
- 敷金/礼金
- 1ヶ月/無
- 保証金/敷引・償却金
- -/-
- 交通
JR予讃線 国分駅 徒歩17分
JR予讃線 端岡駅 徒歩28分
- 所在地
香川県高松市国分寺町国分
地図を見る- 築年月
- 1996年3月(築31年)
- 主要採光面
- 南
- 専有面積
- 61.57㎡
- バルコニー面積
- 9.75㎡
- 所在階/階数
- 9階/9階建
入居可能日などお気軽にお問合せください
- 現況
- -
- 入居可能時期
- 相談

人気物件はすぐに埋まってしまいます。
気になったらお早めにお問合せください。
- 情報公開日
2026/04/04
12日前 公開
- 情報更新日
2026/04/13
3日前 更新
- 次回更新
予定日 - 2026/04/26
物件のこだわり/設備・条件
新築(非該当)
2階以上の物件(該当)
南向き(該当)
駐車場あり(該当)
オートロック(該当)
エアコン(該当)
バス・トイレ別(該当)
追焚機能(該当)
フローリング(該当)
ペット相談可(該当)
入居条件
楽器不可、事務所不可、二人入居可、ペット相談、保証人不要キッチン/バス・トイレ
設備・サービス
オートロック、防犯カメラ、TVモニタ付インターホン、エアコン、クローゼット、シューズボックス、光ファイバー、公営水道、プロパンガス、フローリング、バルコニー、室内洗濯機置場、照明器具付き、南面バルコニー、タイル貼り、エレベーター、駐車場あり、バイク置き場あり、駐輪場ありその他
初期費用カード決済可、リフォーム物件備考
ペット相談:1匹まで:敷金追加あり
リフォーム
- 水回り
2025年08月 実施
キッチン、浴室、トイレ、洗面所、給排水管
物件周辺の生活情報
買い物
- コンビニ(1,602m)
- スーパー(1,313m)
交通
- JR予讃線 国分駅 徒歩17分
- 普通(停車)
- サンポート(通過)
- JR予讃線 端岡駅 徒歩28分
- 普通(停車)
- サンポート(停車)
※急行等の停車駅情報について
急行等の停車駅に関するデータは、随時更新をしておりますが、最新の内容であることを保証するものではありません。
最新かつ正確な情報につきましては、各鉄道会社のウェブサイトにてご確認ください
物件周辺の口コミ
- 香川県高松市国分寺町国分に住む人の口コミ50代女性
買い物は、車で10分以内位のところに店がいくつかあり、田んぼや自然が程よくあり町の中で一応生活が成り立つから。
口コミを見る
この物件周辺に住む人の口コミ
口コミは、LIFULL HOME'Sが実際にこの物件の周辺に住む18歳~69歳の男女を対象に、WEBアンケート調査を実施しています。内容には回答者の主観的な表現が含まれる場合があるほか、事実と異なる場合もございます。ご了承ください。
- 香川県高松市国分寺町国分に住む人の口コミ50代女性
- 買い物は、車で10分以内位のところに店がいくつかあり、田んぼや自然が程よくあり町の中で一応生活が成り立つから。
- 香川県高松市国分寺町国分に住む人の口コミ40代男性
- 自然が豊かで、周囲が静かである。買い物も車で少し走れば、大型ショッピングセンターもあり、不自由はない。仕事も電車で15分程度で中心地まで行ける。
- 香川県高松市国分寺町国分に住む人の口コミ30代女性
- 小さい子どもがいるので自然がいっぱいで遊びやすいし少しでれば買い物も手短に出来る
物件概要
- 建物構造
- RC(鉄筋コンクリート)
- 駐車場
- 空有 3,300円(税込) 駐車場3、300〜5、500円
- 総戸数
- -
- 契約形態
- -
- 契約期間
- 2年間
- 更新料
- -
- その他費用
- -
- 保証会社
加入要
保証会社利用料:加入要 月額賃料の120%(初回のみ) 又は毎年プラン 月額賃料の50%(次年度より13,000円/年が必要です)
- 住宅保険
- 要
- 管理
- -
- LIFULL HOME'S
物件番号 - 3700414-0028991
- 自社管理番号
- 206-6007793
- 取引態様
- 仲介
- 会社名
- 大東建託リーシング株式会社 高松国道11号店
営業スタッフコメント

大東建託リーシング株式会社 高松国道11号店ルームアドバイザー
山本聡
まずはお気軽にお問い合わせ下さい。
業界経験9年
資格宅地建物取引士
- 会社実績や特徴・サービス情報
- 当店は高松市を中心に、一人暮らし、カップル、新婚さん、ファミリーなどいろいろなタイプのお部屋を、常時空室3,000部屋以上ご紹介しています。積和不動産(MAST)、大和リビング(D-room)、大京穴吹不動産(DAIKYO)、穴吹ハウジングサービス(部屋ナビ)、大東建託など、大手メーカー物件をはじめ、個人オーナー様所有物件も多数ご紹介可能です。キッズスペース&おむつ交換台も完備しております。小さなお子様連れのご家族もご安心してご来店くださいませ。
当店は高松市を中心に、一人暮らし、カップル、新婚さん、ファミリーなどいろいろなタイプのお部屋を、常時空室3,000部屋以上ご紹介しています。積和不動産(MAST)、大和リビング(D-room)、大京穴吹不動産(DAIKYO)、穴吹ハウジングサービス(部屋ナビ)、大東建託など、大手メーカー物件をはじめ、個人オーナー様所有物件も多数ご紹介可能です。キッズスペース&おむつ交換台も完備しております。小さなお子様連れのご家族もご安心してご来店くださいませ。
- 電話でお問合せ(通話無料)
お問合せ先 :大東建託リーシング株式会社 高松国道11号店
不動産会社情報
大東建託リーシング株式会社 高松国道11号店

香川県高松市檀紙町1576番地1
JR予讃線 鬼無駅 徒歩37分
- 営業時間
- 10:00~18:00(12:30〜13:30は昼休憩)
- 定休日
- 火曜日・水曜日、4/9(木),4/13(月)15時閉店,4/16(木)
日管協加盟
優良店認定
高松市を中心に色々なタイプのお部屋を常時空室3,000部屋以上ご紹介しています。4月13日(月)は15時閉店となります。4月16日(木)は臨時休業となります。4月23日(木)は午後より営業します。
- 店舗の特徴
- 24時間管理物件取扱い
- 引越し業者紹介可
- 駐車場あり
- 送迎あり
- バリアフリー
- 社宅・寮物件取扱い
- オンライン相談可
- 保証人不要な物件あり
- 法人契約取扱い
- 女性スタッフ対応可
電話でお問合せお客様の電話番号は不動産会社には通知されません
- 不動産会社に
つながります
お客様の電話番号は不動産会社に通知されません
- ※光IP電話、及びIP電話からはご利用になれません
- ※お電話によるお問合せは、店舗営業時間内にお願いします。つながらない場合は、お問合せフォームよりお問合せください
- ※不動産会社がお電話に出られなかった場合、お問合せいただいた後に不動産会社より折り返しのお電話がある場合がございます(お客様が非通知設定した場合は対象外です)
- ※株式会社LIFULLは電話会社が提供するサービスを介してお客様の発信者番号を受領後、折り返し専用の電話番号を発番してお問合せの不動産会社に通知します(お客様の発信者番号がお問合せの不動産会社に通知されることはございません)
- ※携帯電話からお問合せいただいた方に対し、株式会社LIFULLは電話会社が提供するメッセ―ジサービスを介してお客様の発信者番号を受領後、ショートメッセージ(SMS)またはLINE通知メッセージによるお問合せ内容に関する通知をお届けする場合があります
- ※お客様が通話中に不動産会社にお伝えになったお客様の個人情報及び、電話会社が発番する折り返し専用の電話番号は、お問合せ先不動産会社が資料送付・電子メール送信・電話連絡などの目的で保管する可能性があります。お問合せ先不動産会社が保管する個人情報の取扱いについては、各不動産会社に直接お問合せください
- ※株式会社LIFULLでは本サービスを円滑に運用するために、お客様の発信者番号をサービスご利用の控えとして一定期間保管いたします
- ※上記および株式会社LIFULLの個人情報の取扱い方針に同意のうえ、お電話ください
【LIFULL HOME'S物件番号】3700414-0028991【自社管理番号】206-6007793
オンライン対応
オンライン相談に対応している物件です

「オンライン内見」「オンライン相談」「IT重説」とは?
物件の内見や不動産会社スタッフとの相談、契約前の重要事項説明をオンライン(ビデオ通話)で行うことができるサービスです。
オンライン内見
ビデオ通話で現地(物件)にいる不動産会社スタッフと映像・音声を使ってリアルタイムで会話しながら内見ができます。
オンライン相談
「物件について聞きたいことがある」など不動産会社スタッフへの相談もビデオ通話で行うことができます。
IT重説
契約前の重要事項説明(重説)をビデオ通話で行うことができます。
利用時の注意事項
- ビデオ通話については各不動産会社指定のものとなります。
- ビデオ通話利用時には通信が発生します。従量課金制通信サービスや通信量に上限があるネット回線・プランを利用する場合は、通信量にご注意ください。
- 通信速度やアプリの設定によってはビデオ通話の画質が低下することがあります。安定した画質で利用するためにも、Wi-Fi環境下での利用を推奨します。
- ご利用のビデオ通話アプリによっては、対象のOSやブラウザに制限がある場合があります。詳しくはお問合せ先不動産会社にご確認ください。
初期費用・月額費用をあわせて確認!この物件に住んだときの費用めやす
めやすを見るこの物件に住んだときの費用めやす
- 初期費用
- 月額費用
- 追加費用※ご確認ください
追加で費用が
かかる場合があります
必ずご確認ください
初期費用めやす約0円
追加で費用がかかります(※)敷金
68,000
- 礼金
0
- 保証金
0
賃料+共益費・管理費の1ヶ月分として換算
賃料の1ヶ月分+税として換算。不動産会社によって金額が異なるため正確な金額は不動産会社にお問合せください
※追加費用もチェック!
これらの項目以外にも費用がかかる場合があります。正確な金額は不動産会社にお問合せください。
- 初期費用
- 鍵交換費:不動産会社に要確認
- 室内清掃費:不動産会社に要確認
- 火災保険費:不動産会社に要確認
- 月額費用
- 駐車場費:3,300円(税込)※契約任意
- 保証会社
- 加入要 月額賃料の120%(初回のみ) 又は毎年プラン 月額賃料の50%(次年度より13,000円/年が必要です)
不動産会社より
賃貸物件をお探しの方は、いい部屋ネットへお任せください。
ペット相談:1匹まで:敷金追加あり
- 保存する
- 共有する
- ※各種情報と現状に差異がある場合は、現状優先となります
- ※不動産会社が入力した情報を基に物件の位置を表示しています。詳しくは不動産会社までお問合せください
- ※不動産会社の方からの上記電話番号によるお問合せはお断りしております。こちら不動産会社詳細からお問合せください
- ※LIFULL HOME'Sは物件鮮度No.1を目指していきます。閲覧中の物件が「成約済である」「実際の物件情報と異なる点がある」などの場合、「掲載110番」からお問合せください
- ※QRコードは株式会社デンソーウェーブの登録商標です
したい暮らしのタグから探す
LIFULL HOME'S 地図・周辺情報
買い物
- ローソン 高松国分寺町店
- DCM国分寺店
- ディスカウントドラッグコスモス国分寺店
- ファミリーマート 国分寺町国分店
- マルヨシセンター 国分寺店
グルメ
- マクドナルド 高松国分寺店
- ガスト 香川国分寺町店(から好し取扱店)
- 大阪王将高松国分寺店
- コメダ珈琲店讃岐こくぶんじ店
- 吉野家 11号線国分寺店
育児・教育
- 幼保連携型認定こども園いずみこども園
- 高松市立国分寺北部小学校
- 高松市立国分寺中学校
- みよし保育園
- 高松市立国分寺南部小学校
医療
- 医療法人社団有吏会高畠病院
- 医療法人社団赤心会赤沢病院
公共施設・郵便局
- 国分寺郵便局
- 国分寺図書館
- 高松市国分寺総合センター
- 国分駅前簡易郵便局
- 山内郵便局
公園
- 如意輪寺公園
- 橘ノ丘公園
利用可能な駅
- すべての駅
JR予讃線
- 国分駅徒歩17分
- 端岡駅徒歩28分
- 周辺情報は2023年07月21日時点のものになります。
- 周辺情報は、参考情報としてのみご利用ください(周辺情報は、株式会社LIFULLが地図情報の提供事業者から提供を受けた情報とLIFULL HOME'Sの物件情報に基づき、独自の方法で抽出し提供しているものです。周辺情報は、移転や閉鎖等により情報が最新ではない、または正しくない場合がありますが、地図情報の提供事業者から提供された情報をそのまま周辺情報として表示しているため、正確かつ最新の情報へ修正することができないことがあります。)
- 周辺情報は、株式会社LIFULLが掲載するものであり、不動産物件情報を掲載している不動産会社が掲載するものではありません
- 交通情報の一部については、株式会社LIFULLが掲載するものであり、不動産物件情報を掲載している不動産会社が掲載するものではない場合があります。交通情報に関する質問などは株式会社LIFULLにお問合せください












