LIFULL HOME'Sは物件鮮度No.1!※評価について
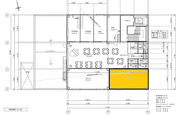
賃貸店舗事務所神宮メディカルビル 4階テナント -/テナントE
11.5万円/管理費等10,000円
18時間前 更新
お問合せ先 :株式会社カラープラス
《クリニック併設テナント》医療系・サービス業・物販・美容サロンなどにおすすめです♪
物件のこだわり/設備・条件
新築(非該当)
2階以上の物件(非該当)
駐車場あり(該当)
即引渡し可(該当)
エレベーター(該当)
設備・条件
エレベーター、駐車場あり、ペット不可、即引渡し可備考
• クリニック併設のため 安心感・清潔感のある環境 • 総合文化公園前で来客が見込める好立地 • 11〜12坪のため 初出店・サロン開業に最適 • 医療・美容・健康系サービスにおすすめ • エレベーター完備、内装相談可 • 共益費に電気・水道・ガス料金及びセキュリティー保証、共有部清掃費が含まれます。 • 軽自動車での契約の場合は2台可。
物件概要
- 建物構造
- RC(鉄筋コンクリート)
- 駐車場
- 空有 (1台)
- 総戸数
- -
- 建築面積
- -
- 敷地面積
- -
- 住宅保険
- 要
- 契約形態
- -
- 契約期間
- -
- 更新料
- -
- その他費用
- -
- 管理
- -
- 現況
- 空家
- 引渡し
- 即時
- 見学可能な物件です。希望日時を予約できます(無料)
- 見学予約をする
- LIFULL HOME'S
物件番号 - 3222199-0000010
- 自社管理番号
- 2391030004
- 取引態様
- 代理
- 情報公開日
- 2025/11/19
- 情報更新日
- 2025/11/20
- 次回更新
予定日 - 2025/11/27
- 会社名
- 株式会社カラープラス
- 電話でお問合せ(通話無料)
お問合せ先 :株式会社カラープラス
不動産会社情報
株式会社カラープラス
宮崎県宮崎市鶴島2丁目16番15号 1F
JR日豊本線 宮崎駅 松橋町下車 徒歩6分
- 営業時間
- 09:00~18:00(土日祝 10:00〜17:00)
- 定休日
- 年末年始
電話でお問合せお客様の電話番号は不動産会社には通知されません
- 不動産会社に
つながります
お客様の電話番号は不動産会社に通知されません
- ※光IP電話、及びIP電話からはご利用になれません
- ※お電話によるお問合せは、店舗営業時間内にお願いします。つながらない場合は、お問合せフォームよりお問合せください
- ※不動産会社がお電話に出られなかった場合、お問合せいただいた後に不動産会社より折り返しのお電話がある場合がございます(お客様が非通知設定した場合は対象外です)
- ※株式会社LIFULLは電話会社が提供するサービスを介してお客様の発信者番号を受領後、折り返し専用の電話番号を発番してお問合せの不動産会社に通知します(お客様の発信者番号がお問合せの不動産会社に通知されることはございません)
- ※携帯電話からお問合せいただいた方に対し、株式会社LIFULLは電話会社が提供するメッセ―ジサービスを介してお客様の発信者番号を受領後、ショートメッセージ(SMS)またはLINE通知メッセージによるお問合せ内容に関する通知をお届けする場合があります
- ※お客様が通話中に不動産会社にお伝えになったお客様の個人情報及び、電話会社が発番する折り返し専用の電話番号は、お問合せ先不動産会社が資料送付・電子メール送信・電話連絡などの目的で保管する可能性があります。お問合せ先不動産会社が保管する個人情報の取扱いについては、各不動産会社に直接お問合せください
- ※株式会社LIFULLでは本サービスを円滑に運用するために、お客様の発信者番号をサービスご利用の控えとして一定期間保管いたします
- ※上記および株式会社LIFULLの個人情報の取扱い方針に同意のうえ、お電話ください
【LIFULL HOME'S物件番号】3222199-0000010【自社管理番号】2391030004
- 保存する
- 共有する
- ※各種情報と現状に差異がある場合は、現状優先となります
- ※不動産会社が入力した情報を基に物件の位置を表示しています。詳しくは不動産会社までお問合せください
- ※不動産会社の方からの上記電話番号によるお問合せはお断りしております。こちら不動産会社詳細からお問合せください
- ※LIFULL HOME'Sは物件鮮度No.1を目指していきます。「実際の物件情報と異なる点がある」「成約済の物件が掲載されている」などの場合は、こちらのフォーム掲載110番からお問合せください
- ※QRコードは株式会社デンソーウェーブの登録商標です















