LIFULL HOME'Sは物件鮮度No.1!※評価について
過去掲載時の参考情報
以下の物件情報は広告情報ではありません。LIFULL HOME'Sが過去に掲載された物件情報を元に作成した参考情報です。
賃貸アパート物件概要
- お問合せ状況
- 現在この物件はお問合せできません
- 交通
JR信越本線 茨目駅 徒歩7分
JR越後線 東柏崎駅 3.2km
信越本線 柏崎 車3.6km
- 所在地
新潟県柏崎市茨目2丁目17番16号
地図を見る- 築年月
- 2020年3月(築6年)
- 間取り
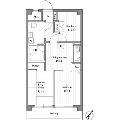
- 1LDK
- 主要採光面
- 南西
- 専有面積
- 50.24㎡
- 所在階/階数
- 1階/2階建
- 建物構造
- 木造
物件のこだわり/設備・条件
新築(非該当)
2階以上の物件(非該当)
南向き(非該当)
駐車場あり(該当)
オートロック(非該当)
エアコン(該当)
バス・トイレ別(該当)
追焚機能(該当)
フローリング(該当)
ペット相談可(該当)
入居条件
ペット相談、ルームシェア不可、小型犬相談、猫相談キッチン/バス・トイレ
専用バス、専用トイレ、バス・トイレ別、追焚機能、シャワー、シャワー付洗面化粧台、温水洗浄便座、浴室乾燥機、洗面所独立、給湯システムキッチン、カウンターキッチン、浄水器・活水器セキュリティ
防犯カメラ、TVモニタ付インターホン、防犯(雨戸)シャッター駐車・駐輪
駐車場あり、駐輪場ありテレビ・通信
BS対応電気・ガス・水道
公営水道、都市ガス、下水収納
床下収納、ウォークインクローゼット、シューズボックス室内
エアコン、フローリング、室内洗濯機置場、照明器具付き、24時間換気システム建物設備
断熱窓(複層ガラス、内窓等)、宅配ボックス
物件周辺の生活情報
買い物
- コンビニ(822m)
- スーパー(889m)
- ドラッグストア(757m)
その他施設
- アークプラザ柏崎(891m)
交通
- JR信越本線 茨目駅 徒歩7分
- 普通(停車)
- 快速(通過)
- JR越後線 東柏崎駅 3.2km
- 普通(停車)
※急行等の停車駅情報について
急行等の停車駅に関するデータは、随時更新をしておりますが、最新の内容であることを保証するものではありません。
最新かつ正確な情報につきましては、各鉄道会社のウェブサイトにてご確認ください
LIFULL HOME'S 地図・周辺情報
買い物
- ファミリーマート 柏崎城塚店
- ピアレマート柏崎店
- ココカラファイン柏崎茨目店
- セブンイレブン 柏崎茨目店
- MEGAドン・キホーテ 柏崎店
グルメ
- 焼肉屋さかい 柏崎インター店
- ケンタッキーフライドチキン MEGAドン・キホーテ柏崎店
- マクドナルド 8号線柏崎店
- からやま柏崎店
- ガスト 柏崎日吉店(から好し取扱店)
育児・教育
- 柏崎さくら保育園
- 柏崎市立半田小学校
- 柏崎市立東中学校
- 柏崎二葉幼稚園
- 柏崎市立比角小学校
医療
- 新潟県厚生農業協同組合連合会柏崎総合医療センター
- 柏崎厚生病院
- 関病院
- 柏崎中央病院
公共施設・郵便局
- 柏崎半田郵便局
- 柏崎市立図書館
- 柏崎警察署
- 田塚簡易郵便局
- 柏崎市役所
公園
- 白竜公園
- 駅前公園
- 春日公園
- 柏崎・夢の森公園
利用可能な駅
- 徒歩10分以内
JR信越本線
- 茨目駅徒歩7分
- すべての駅
JR越後線
- 東柏崎駅3.2km
- その他交通
- 信越本線 柏崎 車3.6km
- 周辺情報は2023年07月21日時点のものになります。
- 周辺情報は、参考情報としてのみご利用ください(周辺情報は、株式会社LIFULLが地図情報の提供事業者から提供を受けた情報とLIFULL HOME'Sの物件情報に基づき、独自の方法で抽出し提供しているものです。周辺情報は、移転や閉鎖等により情報が最新ではない、または正しくない場合がありますが、地図情報の提供事業者から提供された情報をそのまま周辺情報として表示しているため、正確かつ最新の情報へ修正することができないことがあります。)
- 周辺情報は、株式会社LIFULLが掲載するものであり、不動産物件情報を掲載している不動産会社が掲載するものではありません
- 交通情報の一部については、株式会社LIFULLが掲載するものであり、不動産物件情報を掲載している不動産会社が掲載するものではない場合があります。交通情報に関する質問などは株式会社LIFULLにお問合せください



















































