LIFULL HOME'Sは物件鮮度No.1!※評価について
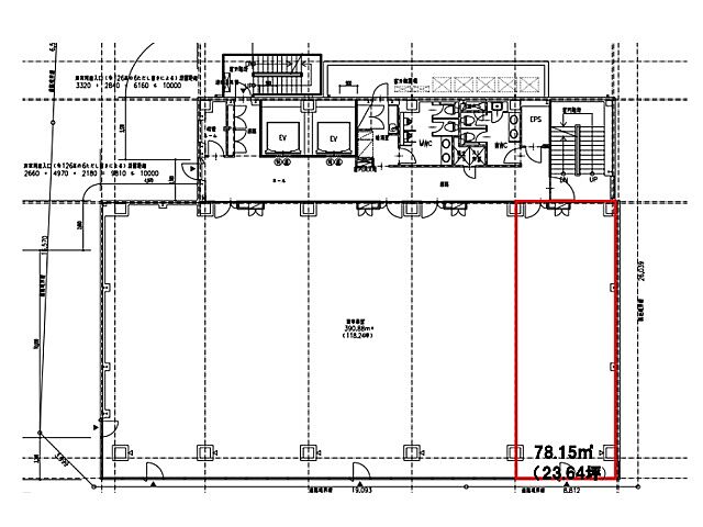
GA豊田ビル(9階/9F 904 23.64坪/78.14m²)
GA豊田ビル(9階/9F 904 23.64坪/78.14m²)
26.004万円/管理費等78,012円
2026/05/08 更新
お問合せ先 :株式会社クイックコンサルティング 名古屋支店
物件のこだわり/設備・条件
新築(非該当)
2階以上の物件(該当)
駐車場(非該当)
即引渡し可(該当)
エレベーター(該当)
設備・条件
エレベーター、即引渡し可
物件周辺の生活情報
交通
- 愛知環状鉄道 三河豊田駅 徒歩6分
- 普通(停車)
※急行等の停車駅情報について
急行等の停車駅に関するデータは、随時更新をしておりますが、最新の内容であることを保証するものではありません。
最新かつ正確な情報につきましては、各鉄道会社のウェブサイトにてご確認ください
物件周辺の口コミ
- 愛知県豊田市山之手に住む人の口コミ40代女性
交通の便がよい、普通に生活していてそれほど不便と感じない。若い人と高齢者のバランスがより
口コミを見る
この物件周辺に住む人の口コミ
口コミは、LIFULL HOME'Sが実際にこの物件の周辺に住む18歳~69歳の男女を対象に、WEBアンケート調査を実施しています。内容には回答者の主観的な表現が含まれる場合があるほか、事実と異なる場合もございます。ご了承ください。
- 愛知県豊田市山之手に住む人の口コミ40代女性
- 交通の便がよい、普通に生活していてそれほど不便と感じない。若い人と高齢者のバランスがより
- 愛知県豊田市山之手に住む人の口コミ30代女性
- 総合的には満足しているが、住宅街の中にも町工場、会社が多く、日常的に車が多いので、小さい子を持つ親としては少し心配
- 愛知県豊田市金谷町に住む人の口コミ20代女性
- 昔から住んでいる方や、また小さな子供がいるファミリー層なども多く、治安が良い。公園などもあり、子供を遊ばせられる場所も充実している。ただ子供が小さいと、公園などに出かけるのも車が必須だと思います。
- 愛知県豊田市明和町に住む人の口コミ20代女性
- お店も充実していて、車さえあればま生活しやすい街だと思っているから。
- 愛知県豊田市秋葉町に住む人の口コミ40代男性
- 比較的地域住民とのコミュニティが成り立っていて、程よい自然があり住みやすい
- 愛知県豊田市美山町に住む人の口コミ20代男性
- 通勤もしやすく、程よく自然もあり。都心部のアクセスも悪くない
- 愛知県豊田市御幸本町に住む人の口コミ40代男性
- 都会過ぎず、田舎すぎない。住むのに困ることない。ほぼ!なんでもある。名古屋にすぐ行ける
- 愛知県豊田市河合町に住む人の口コミ40代女性
- 都会過ぎず、少し行けば山も川もある。名古屋まで出なくても不自由しない。
- 愛知県豊田市明和町に住む人の口コミ40代女性
- 治安もよく、安心できる。田舎すぎず、都会すぎずなところが気に入っている。
- 愛知県豊田市竜神町に住む人の口コミ30代女性
- 小さい子供がいる環境の中で支援センターや保育園が近くにあるから便利
物件概要
- 建物構造
- 鉄骨造
- 駐車場
- 空無 駐車場は流動的なため、都度空き状況をお問合せください。
- 総戸数
- -
- 建築面積
- -
- 敷地面積
- -
- 住宅保険
- 要
- 契約形態
- -
- 契約期間
- 2年間
- 更新料
- -
- その他費用
- -
- 管理
- -
- 現況
- 空家
- 引渡し
- 即時
- 見学可能な物件です。希望日時を予約できます(無料)
- 見学予約をする
- LIFULL HOME'S
物件番号 - 0155176-0000015
- 自社管理番号
- -
- 取引態様
- 仲介
- 情報公開日
- 2025/06/17
- 情報更新日
- 2026/05/08
- 次回更新
予定日 - 2026/05/22
- 会社名
- 株式会社クイックコンサルティング 名古屋支店
- 電話でお問合せ(通話無料)
お問合せ先 :株式会社クイックコンサルティング 名古屋支店
不動産会社情報
株式会社クイックコンサルティング 名古屋支店
愛知県名古屋市中区錦1丁目6-18 J・伊藤ビル7F
名古屋市営東山線 伏見駅 徒歩5分
- 営業時間
- 09:30~18:30
- 定休日
- 土日祝 年末年始 お盆休み
オフィス・店舗物件の賃貸仲介専門会社、クイックコンサルティング名古屋支店です。経験豊富なスタッフがお客様のニーズに合わせて「素早く丁寧に」対応いたします◎
- 店舗の特徴
- オンライン相談可
- 法人契約取扱い
- 女性スタッフ対応可
電話でお問合せお客様の電話番号は不動産会社には通知されません
- 不動産会社に
つながります
お客様の電話番号は不動産会社に通知されません
- ※光IP電話、及びIP電話からはご利用になれません
- ※お電話によるお問合せは、店舗営業時間内にお願いします。つながらない場合は、お問合せフォームよりお問合せください
- ※不動産会社がお電話に出られなかった場合、お問合せいただいた後に不動産会社より折り返しのお電話がある場合がございます(お客様が非通知設定した場合は対象外です)
- ※株式会社LIFULLは電話会社が提供するサービスを介してお客様の発信者番号を受領後、折り返し専用の電話番号を発番してお問合せの不動産会社に通知します(お客様の発信者番号がお問合せの不動産会社に通知されることはございません)
- ※携帯電話からお問合せいただいた方に対し、株式会社LIFULLは電話会社が提供するメッセ―ジサービスを介してお客様の発信者番号を受領後、ショートメッセージ(SMS)またはLINE通知メッセージによるお問合せ内容に関する通知をお届けする場合があります
- ※お客様が通話中に不動産会社にお伝えになったお客様の個人情報及び、電話会社が発番する折り返し専用の電話番号は、お問合せ先不動産会社が資料送付・電子メール送信・電話連絡などの目的で保管する可能性があります。お問合せ先不動産会社が保管する個人情報の取扱いについては、各不動産会社に直接お問合せください
- ※株式会社LIFULLでは本サービスを円滑に運用するために、お客様の発信者番号をサービスご利用の控えとして一定期間保管いたします
- ※上記および株式会社LIFULLの個人情報の取扱い方針に同意のうえ、お電話ください
【LIFULL HOME'S物件番号】0155176-0000015
- 保存する
- 共有する
- ※各種情報と現状に差異がある場合は、現状優先となります
- ※不動産会社が入力した情報を基に物件の位置を表示しています。詳しくは不動産会社までお問合せください
- ※不動産会社の方からの上記電話番号によるお問合せはお断りしております。こちら不動産会社詳細からお問合せください
- ※LIFULL HOME'Sは物件鮮度No.1を目指していきます。閲覧中の物件が「成約済である」「実際の物件情報と異なる点がある」などの場合、「掲載110番」からお問合せください
- ※QRコードは株式会社デンソーウェーブの登録商標です






