LIFULL HOME'Sは物件鮮度No.1!※評価について
グランK’s−ジオ(4階/3LDK/64.98m²)
グランK’s−ジオ(4階/3LDK/64.98m²)
8.5万円/管理費等8,000円
6時間前 更新
画像一覧
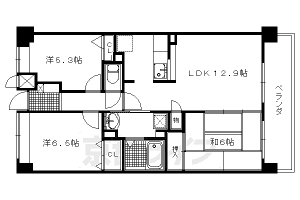
1/30間取り
間取
2/30外観
3/30外観
4/30リビング/ダイニング
12.9帖の広々リビングです
5/30リビング/ダイニング
明るく日当たりの良い和室です
6/30リビング/ダイニング
5.3帖の洋室です
7/30リビング/ダイニング
6.5帖の洋室です
8/30リビング/ダイニング
6.5帖の洋室です
9/30リビング/ダイニング
5.3帖の洋室です
10/30リビング/ダイニング
12.9帖の明るいリビングです
11/30リビング/ダイニング
12.9帖の広々リビングです
12/30リビング/ダイニング
明るい和室です
13/30キッチン
オシャレで調理スペースも広いキッチンです
14/30キッチン
オシャレなカウンターキッチンです
15/30浴室
オシャレで高級感のあるお風呂です
16/30トイレ
清潔感のあるトイレです
17/30洗面
清潔感のある洗面所です
18/30収納
収納力のあるシューズボックスです
19/30収納
6.5帖洋室の収納です
20/30収納
5.3帖洋室の収納です
21/30収納
和室の広々収納です
22/30設備
独立洗面台です
23/30設備
洗濯機置き場と棚です
24/30設備
浴室乾燥機です
25/30設備
インターフォン受話器です
26/30玄関
広く、段差も低い玄関です
27/30バルコニー
日当たり良好のバルコニーです
28/30その他
バルコニーからの風景です
29/30その他
玄関から見た長い廊下です
30/30周辺
セブンイレブン宇治伊勢田中山店まで88m
間取り
外観
外観
リビング/ダイニング
リビング/ダイニング
リビング/ダイニング
リビング/ダイニング
リビング/ダイニング
リビング/ダイニング
リビング/ダイニング
リビング/ダイニング
リビング/ダイニング
キッチン
キッチン
浴室
トイレ
洗面
収納
収納
収納
収納
設備
設備
設備
設備
玄関
バルコニー
その他
その他
周辺
お問合せ先 :株式会社京都ライフ 京都ライフ西大路店
1〜4月は引越しシーズンのピークです。お問合せはお早めに!
仲介手数料割引
仲介手数料50%(税別、個人居住用に限り)
- 利用条件
- 株式会社京都ライフ 京都ライフ西大路店で利用可
- 他特典との併用可
- 積水ハウス、大東建託管理物件は除く。
利用方法
来店時に本特典の画面をスマートフォンやタブレットでスタッフに提示、または画面印刷した用紙を提示ください。
有効期限 なし
エントランスからもう既に一級品の風格が漂ってきます。
物件のこだわり/設備・条件
新築(非該当)
2階以上の物件(該当)
南向き(非該当)
駐車場あり(該当)
オートロック(該当)
エアコン(該当)
バス・トイレ別(該当)
追焚機能(該当)
フローリング(該当)
ペット相談(非該当)
入居条件
二人入居可キッチン/バス・トイレ
設備・サービス
オートロック、TVモニタ付インターホン、エアコン、シューズボックス、BS対応、光ファイバー、公営水道、都市ガス、下水、フローリング、バルコニー、室内洗濯機置場、エレベーター、宅配ボックス、駐車場あり、駐輪場ありその他
住まい探し特典あり備考
近鉄京都線伊勢田駅まで徒歩5分です。スーパーが多い地域になりますのでお買い物の心配はなく入居頂けると考えております。宇治・城陽エリアで対抗できるマンションは他に無いと言えるぐらいのマンションとなっております まさに伊勢田の王様と言えるかも知れませんね。 物件情報はもちろん京都のエリア情報まで幅広く対応させていただきます!
物件周辺の生活情報
学校
- 伊勢田小学校(380m)
買い物
- コンビニ(88m)
- スーパー(779m)
- ドラッグストア(350m)
その他施設
- 総合病院(3,700m)
- 銀行(342m)
- コーナンPRO宇治大久保店(1,300m)
交通
- 近鉄京都線 伊勢田駅 徒歩5分
- 普通(停車)
- 準急(停車)
- 急行(通過)
- 近鉄京都線 小倉駅 徒歩14分
- 普通(停車)
- 準急(停車)
- 急行(通過)
※急行等の停車駅情報について
急行等の停車駅に関するデータは、随時更新をしておりますが、最新の内容であることを保証するものではありません。
最新かつ正確な情報につきましては、各鉄道会社のウェブサイトにてご確認ください
物件周辺の口コミ
- 京都府宇治市伊勢田町に住む人の口コミ60代男性
治安が良い、買い物に24時間困らない。病院も近くに複数ある。駅から近い。
口コミを見る
この物件周辺に住む人の口コミ
口コミは、LIFULL HOME'Sが実際にこの物件の周辺に住む18歳~69歳の男女を対象に、WEBアンケート調査を実施しています。内容には回答者の主観的な表現が含まれる場合があるほか、事実と異なる場合もございます。ご了承ください。
- 京都府宇治市伊勢田町に住む人の口コミ60代男性
- 治安が良い、買い物に24時間困らない。病院も近くに複数ある。駅から近い。
- 京都府宇治市伊勢田町に住む人の口コミ30代女性
- 京都市内にも30分以内に行ける。スーパー激戦区があり価格競争で安く買えている。平等院もあり世界遺産がある。宇治抹茶で有名な土地に生活ができて、有名な抹茶スイーツがたくさん食べられる。
- 京都府宇治市伊勢田町に住む人の口コミ50代女性
- スーパーなどの買い物がとても充実している。ただし衣料品やホームセンターなどはないので食料品以外のものは買い物がしにくい。
- 京都府宇治市伊勢田町に住む人の口コミ30代女性
- 買い物などのスーパーや薬局、コンビニなども多いので便利。病院も多いので不便は少ない。電車も通っており、市内に出るにもべんりだから。
- 京都府宇治市伊勢田町に住む人の口コミ40代男性
- 駅から近い。近所にスーパーマーケットやドラッグストアが複数ある。
- 京都府宇治市伊勢田町に住む人の口コミ60代女性
- 近くに沢山スーパーがあり、売り出しを次々として、安くて生活しやすい。
- 京都府宇治市伊勢田町に住む人の口コミ40代男性
- あまり都会すぎないので人は多くないので落ちつく。またある程度、店なども充実しているので不便を感じることがない。
- 京都府宇治市伊勢田町に住む人の口コミ30代女性
- 郊外で交通も電車が通ってるので不便ではない。車でも電車でも市内にいきやすい。買い物にも便利でスーパーやドラックストアもたくさんある。小さい病院も総合病院もある。
- 京都府宇治市伊勢田町に住む人の口コミ40代男性
- 郊外なのでのんびりしています。寺もあるし森もあるのでほっとします。かといってイオンもあるし、スーパーも近くにあるので田舎過ぎず、都会過ぎず、ちょうどいい場所だと思います。
- 京都府宇治市伊勢田町に住む人の口コミ60代男性
- 治安が良い、病院が複数ある、買い物が便利なので高齢者でも暮らしやすい
物件概要
- 建物構造
- RC(鉄筋コンクリート)
- 駐車場
- 空有 10,000円(税込) 駐車料金:10000円〜12000円
- 総戸数
- 70戸
- 契約形態
- -
- 契約期間
- 2年間
- 更新料
- -
- その他費用
- 室内清掃費用:55,000円、退去時事務手数料:11,000円、害虫駆除費:22,000円、ファイテック:4,950円
- 保証会社
加入要
保証会社:日本セーフティー
保証会社利用料:初回:月額賃料等の50%、月額:800円+330円
- 住宅保険
- 要
- 管理
- 管理員:巡回
- LIFULL HOME'S
物件番号 - 0150828-0104434
- 自社管理番号
- 26264-411-29
- 取引態様
- 仲介
- 会社名
- 株式会社京都ライフ 京都ライフ西大路店
営業スタッフコメント

株式会社京都ライフ 京都ライフ西大路店営業主任
原田亮輔
丁寧な応対を心がけております。
業界経験10年
資格宅地建物取引士
- 会社実績や特徴・サービス情報
- 京都駅の一駅隣にあるJR西大路駅、そこから徒歩1分のところに京都ライフ西大路店がございます。西大路、吉祥院、唐橋エリアは単身からファミリー層まで幅広くニーズがあり、京都ライフの豊富な取り扱い物件からお客様に合った物件をご提案いたします。住まいに関することなら、小さなことでもご相談ください。 店内にはキッズスペースも設けておりますので、小さなお子様のいらっしゃる方もどうぞ気軽にご来店ください。 スタッフ一同、ご来店をお待ちしております。
京都駅の一駅隣にあるJR西大路駅、そこから徒歩1分のところに京都ライフ西大路店がございます。西大路、吉祥院、唐橋エリアは単身からファミリー層まで幅広くニーズがあり、京都ライフの豊富な取り扱い物件からお客様に合った物件をご提案いたします。住まいに関することなら、小さなことでもご相談ください。 店内にはキッズスペースも設けておりますので、小さなお子様のいらっしゃる方もどうぞ気軽にご来店ください。 スタッフ一同、ご来店をお待ちしております。
- 電話でお問合せ(通話無料)
お問合せ先 :株式会社京都ライフ 京都ライフ西大路店
不動産会社情報
株式会社京都ライフ 京都ライフ西大路店

京都府京都市南区唐橋西平垣町38-1 ルミエール唐橋1階
JR東海道・山陽本線 西大路駅 徒歩2分
- 営業時間
- 09:30~19:00
- 定休日
- -
優良店認定
- 店舗の特徴
- 引越し業者紹介可
- 年中無休
- 系列店舗での対応可
- オンライン相談可
- 保証人不要な物件あり
- 法人契約取扱い
- 女性スタッフ対応可
- 駅から歩いて3分以内
電話でお問合せお客様の電話番号は不動産会社には通知されません
- 不動産会社に
つながります
お客様の電話番号は不動産会社に通知されません
- ※光IP電話、及びIP電話からはご利用になれません
- ※お電話によるお問合せは、店舗営業時間内にお願いします。つながらない場合は、お問合せフォームよりお問合せください
- ※不動産会社がお電話に出られなかった場合、お問合せいただいた後に不動産会社より折り返しのお電話がある場合がございます(お客様が非通知設定した場合は対象外です)
- ※株式会社LIFULLは電話会社が提供するサービスを介してお客様の発信者番号を受領後、折り返し専用の電話番号を発番してお問合せの不動産会社に通知します(お客様の発信者番号がお問合せの不動産会社に通知されることはございません)
- ※携帯電話からお問合せいただいた方に対し、株式会社LIFULLは電話会社が提供するメッセ―ジサービスを介してお客様の発信者番号を受領後、ショートメッセージ(SMS)またはLINE通知メッセージによるお問合せ内容に関する通知をお届けする場合があります
- ※お客様が通話中に不動産会社にお伝えになったお客様の個人情報及び、電話会社が発番する折り返し専用の電話番号は、お問合せ先不動産会社が資料送付・電子メール送信・電話連絡などの目的で保管する可能性があります。お問合せ先不動産会社が保管する個人情報の取扱いについては、各不動産会社に直接お問合せください
- ※株式会社LIFULLでは本サービスを円滑に運用するために、お客様の発信者番号をサービスご利用の控えとして一定期間保管いたします
- ※上記および株式会社LIFULLの個人情報の取扱い方針に同意のうえ、お電話ください
【LIFULL HOME'S物件番号】0150828-0104434【自社管理番号】26264-411-29
オンライン対応
オンライン相談に対応している物件です

「オンライン内見」「オンライン相談」「IT重説」とは?
物件の内見や不動産会社スタッフとの相談、契約前の重要事項説明をオンライン(ビデオ通話)で行うことができるサービスです。
オンライン内見
ビデオ通話で現地(物件)にいる不動産会社スタッフと映像・音声を使ってリアルタイムで会話しながら内見ができます。
オンライン相談
「物件について聞きたいことがある」など不動産会社スタッフへの相談もビデオ通話で行うことができます。
IT重説
契約前の重要事項説明(重説)をビデオ通話で行うことができます。
利用時の注意事項
- ビデオ通話については各不動産会社指定のものとなります。
- ビデオ通話利用時には通信が発生します。従量課金制通信サービスや通信量に上限があるネット回線・プランを利用する場合は、通信量にご注意ください。
- 通信速度やアプリの設定によってはビデオ通話の画質が低下することがあります。安定した画質で利用するためにも、Wi-Fi環境下での利用を推奨します。
- ご利用のビデオ通話アプリによっては、対象のOSやブラウザに制限がある場合があります。詳しくはお問合せ先不動産会社にご確認ください。
初期費用・月額費用をあわせて確認!この物件に住んだときの費用めやす
めやすを見るこの物件に住んだときの費用めやす
- 初期費用
- 月額費用
- 追加費用※ご確認ください
追加で費用が
かかる場合があります
必ずご確認ください
初期費用めやす約0円
追加で費用がかかります(※)敷金
100,000
- 礼金
100,000
賃料+共益費・管理費の1ヶ月分として換算
賃料の1ヶ月分+税として換算。不動産会社によって金額が異なるため正確な金額は不動産会社にお問合せください
※追加費用もチェック!
これらの項目以外にも費用がかかる場合があります。正確な金額は不動産会社にお問合せください。
- 初期費用
- 鍵交換費:不動産会社に要確認
- 室内清掃費:55,000円
- 火災保険費:不動産会社に要確認
- 月額費用
- 駐車場費:10,000円(税込)※契約任意
- その他
- 退去時事務手数料:11000円
- 害虫駆除費:22000円
- ファイテック:4950円
- 保証会社
- 初回:月額賃料等の50%、月額:800円+330円
不動産会社より
エントランスからもう既に一級品の風格が漂ってきます。
近鉄京都線伊勢田駅まで徒歩5分です。スーパーが多い地域になりますのでお買い物の心配はなく入居頂けると考えております。宇治・城陽エリアで対抗できるマンションは他に無いと言えるぐらいのマンションとなっております まさに伊勢田の王様と言えるかも知れませんね。 物件情報はもちろん京都のエリア情報まで幅広く対応させていただきます!
- 保存する
- 共有する
- ※各種情報と現状に差異がある場合は、現状優先となります
- ※不動産会社が入力した情報を基に物件の位置を表示しています。詳しくは不動産会社までお問合せください
- ※不動産会社の方からの上記電話番号によるお問合せはお断りしております。こちら不動産会社詳細からお問合せください
- ※LIFULL HOME'Sは物件鮮度No.1を目指していきます。閲覧中の物件が「成約済である」「実際の物件情報と異なる点がある」などの場合、「掲載110番」からお問合せください
- ※QRコードは株式会社デンソーウェーブの登録商標です
LIFULL HOME'S 地図・周辺情報
買い物
- セブンイレブン 宇治伊勢田中山店
- 新鮮激安市場!宇治店
- ウエルシア宇治伊勢田店
- ファミリーマート 宇治伊勢田北山店
- コープ 宇治神明
グルメ
- まいどおおきに食堂 京宇治食堂
- ブロンコビリー宇治店
- CoCo壱番屋 宇治伊勢田店
- 天下一品宇治小倉店
- CoCo壱番屋 宇治小倉店
育児・教育
- 伊勢田こども園
- 宇治市立伊勢田小学校
- 宇治市立西宇治中学校
- 南浦幼保連携型認定こども園
- 宇治市立小倉小学校
医療
- 医療法人仁心会宇治川病院
- 医療法人長安会中村病院
- 医療法人徳洲会宇治徳洲会病院
- 宇治武田病院
- 医療法人啓信会京都きづ川病院
公共施設・郵便局
- 宇治伊勢田郵便局
- 宇治市西宇治図書館
- 宇治市役所
- 宇治南陵郵便局
- 久御山町立図書館
公園
- 城南荘児童公園
- 西宇治公園
- 宇治市植物公園
- 東山緑地
- お茶と宇治のまち歴史公園
利用可能な駅
- 徒歩10分以内
近鉄京都線
- 伊勢田駅徒歩5分
- すべての駅
近鉄京都線
- 小倉駅徒歩14分
- 大久保駅徒歩18分
- 久津川駅徒歩33分
JR奈良線
- JR小倉駅徒歩16分
- 新田駅徒歩18分
- 宇治駅徒歩34分
京阪宇治線
- 宇治駅3.6km
- 周辺情報は2023年07月21日時点のものになります。
- 周辺情報は、参考情報としてのみご利用ください(周辺情報は、株式会社LIFULLが地図情報の提供事業者から提供を受けた情報とLIFULL HOME'Sの物件情報に基づき、独自の方法で抽出し提供しているものです。周辺情報は、移転や閉鎖等により情報が最新ではない、または正しくない場合がありますが、地図情報の提供事業者から提供された情報をそのまま周辺情報として表示しているため、正確かつ最新の情報へ修正することができないことがあります。)
- 周辺情報は、株式会社LIFULLが掲載するものであり、不動産物件情報を掲載している不動産会社が掲載するものではありません
- 交通情報の一部については、株式会社LIFULLが掲載するものであり、不動産物件情報を掲載している不動産会社が掲載するものではない場合があります。交通情報に関する質問などは株式会社LIFULLにお問合せください






