LIFULL HOME'Sは物件鮮度No.1!※評価について
伸晃マンション(1階/2LDK/60m²)
伸晃マンション(1階/2LDK/60m²)
5.5万円/管理費等-
8時間前 更新
画像一覧
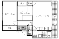
1/30間取り
間取
2/30外観
3/30外観
4/30外観
5/30リビング/ダイニング
6/30リビング/ダイニング
7/30リビング/ダイニング
8/30リビング/ダイニング
9/30キッチン
10/30キッチン
11/30キッチン
12/30浴室
13/30トイレ
14/30洗面
15/30洗面
16/30収納
17/30収納
18/30収納
19/30収納
20/30設備
21/30設備
22/30設備
23/30玄関
24/30バルコニー
25/30エントランス
26/30その他
27/30その他
28/30その他
29/30その他
30/30周辺
キリン堂 男山泉店まで212m
間取り
外観
外観
外観
リビング/ダイニング
リビング/ダイニング
リビング/ダイニング
リビング/ダイニング
キッチン
キッチン
キッチン
浴室
トイレ
洗面
洗面
収納
収納
収納
収納
設備
設備
設備
玄関
バルコニー
エントランス
その他
その他
その他
その他
周辺
お問合せ先 :株式会社京都ライフ 京都ライフ西大路店
1〜4月は引越しシーズンのピークです。お問合せはお早めに!
仲介手数料割引
仲介手数料50%(税別、個人居住用に限り)
- 利用条件
- 株式会社京都ライフ 京都ライフ西大路店で利用可
- 他特典との併用可
- 積水ハウス、大東建託管理物件は除く。
利用方法
来店時に本特典の画面をスマートフォンやタブレットでスタッフに提示、または画面印刷した用紙を提示ください。
有効期限 なし
閑静な住宅街。 お問い合わせは京都ライフ京田辺店0774−68−5300まで
物件のこだわり/設備・条件
新築(非該当)
2階以上の物件(非該当)
南向き(該当)
駐車場あり(該当)
オートロック(非該当)
エアコン(非該当)
バス・トイレ別(該当)
追焚機能(非該当)
フローリング(該当)
ペット相談(非該当)
入居条件
二人入居可、即入居可キッチン/バス・トイレ
設備・サービス
光ファイバー、公営水道、都市ガス、下水、フローリング、バルコニー、室内洗濯機置場、南面バルコニー、駐車場あり、駐輪場ありその他
住まい探し特典あり備考
八幡エリアの2LDKマンションです。礼金、更新料ナシ。嬉しい3点セパレートなど充実の設備。お問い合わせは京都ライフ京田辺店0774−68−5300まで。 物件情報はもちろん京都のエリア情報まで幅広く対応させていただきます!
物件周辺の生活情報
買い物
- コンビニ(324m)
- スーパー(614m)
- ドラッグストア(212m)
その他施設
- 総合病院(464m)
- 銀行(434m)
- 八幡市役所(1,597m)
交通
- 京阪本線 樟葉駅 徒歩27分
- 普通(停車)
- 区間急行(停車)
- 急行(停車)
- 特急(停車)
- 通勤準急・準急(停車)
- 快速特急 洛楽(通過)
- 通勤快急・快速急行(停車)
- 京阪本線 橋本駅 徒歩28分
- 普通(停車)
- 区間急行(通過)
- 急行(通過)
- 特急(通過)
- 通勤準急・準急(停車)
- 快速特急 洛楽(通過)
- 通勤快急・快速急行(通過)
※急行等の停車駅情報について
急行等の停車駅に関するデータは、随時更新をしておりますが、最新の内容であることを保証するものではありません。
最新かつ正確な情報につきましては、各鉄道会社のウェブサイトにてご確認ください
物件周辺の口コミ
- 京都府八幡市男山長沢に住む人の口コミ30代女性
坂が多く、駅からも多少距離があるので、車などの足がない時は不便だがそれ以外は不満がないため。
口コミを見る
この物件周辺に住む人の口コミ
口コミは、LIFULL HOME'Sが実際にこの物件の周辺に住む18歳~69歳の男女を対象に、WEBアンケート調査を実施しています。内容には回答者の主観的な表現が含まれる場合があるほか、事実と異なる場合もございます。ご了承ください。
- 京都府八幡市男山長沢に住む人の口コミ30代女性
- 坂が多く、駅からも多少距離があるので、車などの足がない時は不便だがそれ以外は不満がないため。
- 京都府八幡市男山長沢に住む人の口コミ40代女性
- 子供の医療費が中学校卒業まで月200円でいけるところがすごく助かっています。
- 京都府八幡市男山長沢に住む人の口コミ60代男性
- 旧の住宅都市整備公団が開発した地域で街並みが綺麗に整備されているため、素晴らしいです。
- 京都府八幡市男山長沢に住む人の口コミ60代女性
- 病院 スーパー バス亭が 近くにあり 静かで住むのに困らない
- 京都府八幡市男山長沢に住む人の口コミ30代女性
- 住みやすいから。都会すぎず、田舎すぎず、どちらかといえば田舎でのんびりできるから。
物件概要
- 建物構造
- RC(鉄筋コンクリート)
- 駐車場
- 空有 8,800円(税込)
- 総戸数
- 22戸
- 契約形態
- -
- 契約期間
- 2年間
- 更新料
- -
- その他費用
- -
- 保証会社
- -
- 住宅保険
- 要
- 管理
- -
- LIFULL HOME'S
物件番号 - 0150828-0099696
- 自社管理番号
- 05D1A-102-29
- 取引態様
- 仲介
- 会社名
- 株式会社京都ライフ 京都ライフ西大路店
営業スタッフコメント

株式会社京都ライフ 京都ライフ西大路店営業主任
原田亮輔
丁寧な応対を心がけております。
業界経験10年
資格宅地建物取引士
- 会社実績や特徴・サービス情報
- 京都駅の一駅隣にあるJR西大路駅、そこから徒歩1分のところに京都ライフ西大路店がございます。西大路、吉祥院、唐橋エリアは単身からファミリー層まで幅広くニーズがあり、京都ライフの豊富な取り扱い物件からお客様に合った物件をご提案いたします。住まいに関することなら、小さなことでもご相談ください。 店内にはキッズスペースも設けておりますので、小さなお子様のいらっしゃる方もどうぞ気軽にご来店ください。 スタッフ一同、ご来店をお待ちしております。
京都駅の一駅隣にあるJR西大路駅、そこから徒歩1分のところに京都ライフ西大路店がございます。西大路、吉祥院、唐橋エリアは単身からファミリー層まで幅広くニーズがあり、京都ライフの豊富な取り扱い物件からお客様に合った物件をご提案いたします。住まいに関することなら、小さなことでもご相談ください。 店内にはキッズスペースも設けておりますので、小さなお子様のいらっしゃる方もどうぞ気軽にご来店ください。 スタッフ一同、ご来店をお待ちしております。
- 電話でお問合せ(通話無料)
お問合せ先 :株式会社京都ライフ 京都ライフ西大路店
不動産会社情報
株式会社京都ライフ 京都ライフ西大路店

京都府京都市南区唐橋西平垣町38-1 ルミエール唐橋1階
JR東海道・山陽本線 西大路駅 徒歩2分
- 営業時間
- 09:30~19:00
- 定休日
- -
優良店認定
- 店舗の特徴
- 引越し業者紹介可
- 年中無休
- 系列店舗での対応可
- オンライン相談可
- 保証人不要な物件あり
- 法人契約取扱い
- 女性スタッフ対応可
- 駅から歩いて3分以内
電話でお問合せお客様の電話番号は不動産会社には通知されません
- 不動産会社に
つながります
お客様の電話番号は不動産会社に通知されません
- ※光IP電話、及びIP電話からはご利用になれません
- ※お電話によるお問合せは、店舗営業時間内にお願いします。つながらない場合は、お問合せフォームよりお問合せください
- ※不動産会社がお電話に出られなかった場合、お問合せいただいた後に不動産会社より折り返しのお電話がある場合がございます(お客様が非通知設定した場合は対象外です)
- ※株式会社LIFULLは電話会社が提供するサービスを介してお客様の発信者番号を受領後、折り返し専用の電話番号を発番してお問合せの不動産会社に通知します(お客様の発信者番号がお問合せの不動産会社に通知されることはございません)
- ※携帯電話からお問合せいただいた方に対し、株式会社LIFULLは電話会社が提供するメッセ―ジサービスを介してお客様の発信者番号を受領後、ショートメッセージ(SMS)またはLINE通知メッセージによるお問合せ内容に関する通知をお届けする場合があります
- ※お客様が通話中に不動産会社にお伝えになったお客様の個人情報及び、電話会社が発番する折り返し専用の電話番号は、お問合せ先不動産会社が資料送付・電子メール送信・電話連絡などの目的で保管する可能性があります。お問合せ先不動産会社が保管する個人情報の取扱いについては、各不動産会社に直接お問合せください
- ※株式会社LIFULLでは本サービスを円滑に運用するために、お客様の発信者番号をサービスご利用の控えとして一定期間保管いたします
- ※上記および株式会社LIFULLの個人情報の取扱い方針に同意のうえ、お電話ください
【LIFULL HOME'S物件番号】0150828-0099696【自社管理番号】05D1A-102-29
オンライン対応
オンライン相談に対応している物件です

「オンライン内見」「オンライン相談」「IT重説」とは?
物件の内見や不動産会社スタッフとの相談、契約前の重要事項説明をオンライン(ビデオ通話)で行うことができるサービスです。
オンライン内見
ビデオ通話で現地(物件)にいる不動産会社スタッフと映像・音声を使ってリアルタイムで会話しながら内見ができます。
オンライン相談
「物件について聞きたいことがある」など不動産会社スタッフへの相談もビデオ通話で行うことができます。
IT重説
契約前の重要事項説明(重説)をビデオ通話で行うことができます。
利用時の注意事項
- ビデオ通話については各不動産会社指定のものとなります。
- ビデオ通話利用時には通信が発生します。従量課金制通信サービスや通信量に上限があるネット回線・プランを利用する場合は、通信量にご注意ください。
- 通信速度やアプリの設定によってはビデオ通話の画質が低下することがあります。安定した画質で利用するためにも、Wi-Fi環境下での利用を推奨します。
- ご利用のビデオ通話アプリによっては、対象のOSやブラウザに制限がある場合があります。詳しくはお問合せ先不動産会社にご確認ください。
初期費用・月額費用をあわせて確認!この物件に住んだときの費用めやす
めやすを見るこの物件に住んだときの費用めやす
- 初期費用
- 月額費用
- 追加費用※ご確認ください
追加で費用が
かかる場合があります
必ずご確認ください
初期費用めやす約0円
追加で費用がかかります(※)敷金
0
- 礼金
0
賃料+共益費・管理費の1ヶ月分として換算
賃料の1ヶ月分+税として換算。不動産会社によって金額が異なるため正確な金額は不動産会社にお問合せください
※追加費用もチェック!
これらの項目以外にも費用がかかる場合があります。正確な金額は不動産会社にお問合せください。
- 初期費用
- 鍵交換費:不動産会社に要確認
- 室内清掃費:不動産会社に要確認
- 火災保険費:不動産会社に要確認
- 月額費用
- 駐車場費:8,800円(税込)※契約任意
- 保証会社
- 不動産会社に要確認
不動産会社より
閑静な住宅街。 お問い合わせは京都ライフ京田辺店0774−68−5300まで
八幡エリアの2LDKマンションです。礼金、更新料ナシ。嬉しい3点セパレートなど充実の設備。お問い合わせは京都ライフ京田辺店0774−68−5300まで。 物件情報はもちろん京都のエリア情報まで幅広く対応させていただきます!
- 保存する
- 共有する
- ※各種情報と現状に差異がある場合は、現状優先となります
- ※不動産会社が入力した情報を基に物件の位置を表示しています。詳しくは不動産会社までお問合せください
- ※不動産会社の方からの上記電話番号によるお問合せはお断りしております。こちら不動産会社詳細からお問合せください
- ※LIFULL HOME'Sは物件鮮度No.1を目指していきます。閲覧中の物件が「成約済である」「実際の物件情報と異なる点がある」などの場合、「掲載110番」からお問合せください
- ※QRコードは株式会社デンソーウェーブの登録商標です
したい暮らしのタグから探す
LIFULL HOME'S 地図・周辺情報
買い物
- ローソン 男山長沢店
- コープ 男山
- キリン堂男山泉店
- ローソン 八幡男山石城店
- ライフ 男山店
グルメ
- スターバックスコーヒーくずは美咲店
- マクドナルド 枚方くずは店
- 吉野家 八幡久保田店
- かっぱ寿司 八幡店
- 大阪王将くずは朝日店
育児・教育
- わかたけ保育園
- 八幡市立さくら小学校
- 八幡市立男山第三中学校
- ぶどうの木保育園
- 枚方市立樟葉北小学校
医療
- 社会医療法人美杉会男山病院
- 医療法人社団医聖会八幡中央病院
- 関西医科大学くずは病院
- 医療法人社団医聖会京都八幡病院
- 医療法人亀廣記念医学会関西記念病院
公共施設・郵便局
- 八幡美桜郵便局
- 八幡市立男山市民図書館
- 八幡警察署
- 八幡男山郵便局
- 枚方市立楠葉図書館
公園
- さくら近隣公園
- 楠葉東公園
- 足立寺史跡公園
- 松花堂公園
- くすのき近隣公園
利用可能な駅
- すべての駅
京阪本線
- 樟葉駅徒歩27分
- 橋本駅徒歩28分
- 石清水八幡宮駅3.2km
京阪電鉄ケーブル線
- ケーブル八幡宮山上駅徒歩31分
- 周辺情報は2023年07月21日時点のものになります。
- 周辺情報は、参考情報としてのみご利用ください(周辺情報は、株式会社LIFULLが地図情報の提供事業者から提供を受けた情報とLIFULL HOME'Sの物件情報に基づき、独自の方法で抽出し提供しているものです。周辺情報は、移転や閉鎖等により情報が最新ではない、または正しくない場合がありますが、地図情報の提供事業者から提供された情報をそのまま周辺情報として表示しているため、正確かつ最新の情報へ修正することができないことがあります。)
- 周辺情報は、株式会社LIFULLが掲載するものであり、不動産物件情報を掲載している不動産会社が掲載するものではありません
- 交通情報の一部については、株式会社LIFULLが掲載するものであり、不動産物件情報を掲載している不動産会社が掲載するものではない場合があります。交通情報に関する質問などは株式会社LIFULLにお問合せください









