LIFULL HOME'Sは物件鮮度No.1!※評価について
京都市営烏丸線 鞍馬口駅 徒歩18分ワンルーム/31.24㎡
京都市営烏丸線 鞍馬口駅 徒歩18分ワンルーム/31.24㎡
5.5万円/管理費等5,000円
7時間前 更新
画像一覧
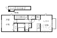
1/30間取り
間取
2/30外観
落ち着いた外観です。
3/30外観
完成が楽しみですね
4/30リビング/ダイニング
5/30リビング/ダイニング
6/30リビング/ダイニング
7/30リビング/ダイニング
8/30リビング/ダイニング
9/30室内
10/30キッチン
11/30キッチン
12/30キッチン
13/30キッチン
14/30キッチン
15/30浴室
16/30浴室
17/30トイレ
18/30洗面
19/30収納
20/30収納
21/30収納
22/30設備
23/30設備
24/30設備
25/30玄関
26/30バルコニー
27/30エントランス
近くにはスーパーがあります
28/30その他
TVモニターホンです。
29/30その他
駐輪スペースです。
30/30周辺
京都千本寺之内郵便局まで326m 千本通り沿い 周辺にドラッグストアやスーパーもあり。
間取り
外観
外観
リビング/ダイニング
リビング/ダイニング
リビング/ダイニング
リビング/ダイニング
リビング/ダイニング
室内
キッチン
キッチン
キッチン
キッチン
キッチン
浴室
浴室
トイレ
洗面
収納
収納
収納
設備
設備
設備
玄関
バルコニー
エントランス
その他
その他
周辺
お問合せ先 :株式会社京都ライフ 立命館大学前店
仲介手数料割引
ご成約時仲介手数料は賃料50%(外税)です。 ※一部除外有り。
- 利用条件
- 株式会社京都ライフ 立命館大学前店で利用可
- 他特典との併用可
- 法人契約、事業用物件は除きます。 大東建託、積水ハウス物件は除きます。
利用方法
来店時に本特典の画面をスマートフォンやタブレットでスタッフに提示、または画面印刷した用紙を提示ください。
有効期限 なし
紫野の閑静なエリアに大手ハウスメーカーの最新賃貸アパートが6月に完成致します。 間取りはワンル...
物件のこだわり/設備・条件
新築(非該当)
2階以上の物件(非該当)
南向き(非該当)
駐車場(非該当)
オートロック(非該当)
エアコン(該当)
バス・トイレ別(該当)
追焚機能(該当)
フローリング(該当)
ペット相談(非該当)
位置
角部屋入居条件
二人入居可、保証人不要キッチン/バス・トイレ
設備・サービス
TVモニタ付インターホン、エアコン、床下収納、シューズボックス、光ファイバー、公営水道、都市ガス、下水、フローリング、バルコニー、室内洗濯機置場、駐輪場ありその他
家賃カード決済可、住まい探し特典あり備考
ーム、1LDKの両タイプをご用意しており、単身さん、新婚さんにもオススメです。 環境も良好ですが・・・ 従来ながらの追炊き機能付バスルームやシャンプードレッサー、カウンターキッチンと 設備も充実しております。 物件情報はもちろん京都のエリア情報まで幅広く対応させていただきます!
物件周辺の生活情報
買い物
- コンビニ(364m)
- スーパー(361m)
- ドラッグストア(261m)
その他施設
- 総合病院(1,400m)
- 銀行(550m)
- ホームセンターコーナン西陣上七軒店(962m)
交通
- 京都市営烏丸線 鞍馬口駅 徒歩18分
- 普通(停車)
- 急行(停車)
- 京福電気鉄道北野線 北野白梅町駅 徒歩18分
- 普通(停車)
※急行等の停車駅情報について
急行等の停車駅に関するデータは、随時更新をしておりますが、最新の内容であることを保証するものではありません。
最新かつ正確な情報につきましては、各鉄道会社のウェブサイトにてご確認ください
物件周辺の口コミ
- 京都府京都市北区紫野南舟岡町に住む人の口コミ20代男性
スーパーやコンビニ、病院など生活する上で必要なものは揃っている。ただ子どもの声がうるさいときもある。
口コミを見る
この物件周辺に住む人の口コミ
口コミは、LIFULL HOME'Sが実際にこの物件の周辺に住む18歳~69歳の男女を対象に、WEBアンケート調査を実施しています。内容には回答者の主観的な表現が含まれる場合があるほか、事実と異なる場合もございます。ご了承ください。
- 京都府京都市北区紫野南舟岡町に住む人の口コミ20代男性
- スーパーやコンビニ、病院など生活する上で必要なものは揃っている。ただ子どもの声がうるさいときもある。
- 京都府京都市北区紫野南舟岡町に住む人の口コミ20代女性
- バス以外の交通機関が少し遠くて不便だけど、自転車があればまあまあなんとかなるのと、スーパーが多いので買い物は便利。オシャレなカフェや食べログ掲載店も多いので。
- 京都府京都市北区紫野南舟岡町に住む人の口コミ20代女性
- スーパーが近くにあり、買い物が便利であり、近くに世界遺産もあるため、リフレッシュもできる
- 京都府京都市北区紫野南舟岡町に住む人の口コミ20代男性
- スーパーが近くにいくつかあり、とても便利。おしゃれなカフェが多く、休日は近場で出掛けられる。物価が高いのが少し残念。
物件概要
- 建物構造
- 木造
- 駐車場
- 無
- 総戸数
- 4戸
- 契約形態
- -
- 契約期間
- 2年間
- 更新料
- -
- その他費用
- 鍵交換費用:19,800円、スマイルサポート:1,100円、コールセンター:990円
- 保証会社
加入要
保証会社:エイト賃貸保証
保証会社利用料:初回:月額賃料等の50%、更新時:1.1万円/1年
- 住宅保険
- 要
- 管理
- 管理員:巡回
- LIFULL HOME'S
物件番号 - 0143972-0097079
- 自社管理番号
- 49730-101-14
- 取引態様
- 仲介
- 会社名
- 株式会社京都ライフ 立命館大学前店
営業スタッフコメント

株式会社京都ライフ 立命館大学前店
田邉みらい
笑顔で頑張ります!
業界経験1年
- 会社実績や特徴・サービス情報
- 京都ライフは40年以上京都に根付いている老舗仲介店舗です。長年培った物件情報は3万戸以上。地元密着企業ならではの情報力を元にお客様に喜んでいただけるお部屋探しを提供いたします。
京都ライフは40年以上京都に根付いている老舗仲介店舗です。長年培った物件情報は3万戸以上。地元密着企業ならではの情報力を元にお客様に喜んでいただけるお部屋探しを提供いたします。
- 電話でお問合せ(通話無料)
お問合せ先 :株式会社京都ライフ 立命館大学前店
不動産会社情報
株式会社京都ライフ 立命館大学前店

京都府京都市北区小松原北町26-5
京福電気鉄道北野線 等持院・立命館大学衣笠キャンパス前駅 徒歩8分
- 営業時間
- 09:30~19:00
- 定休日
- 水曜定休(4/21〜9/20の期間)、盆・正月
優良店認定
立命館大学衣笠キャンパス東門を出てすぐ。立命館大学から気軽にお立ち寄り頂けます。立命館大学周辺、衣笠エリアのお部屋探しは京都ライフ立命館大学前店へお任せ下さい。スタッフ一同ご来店をお待ちしております。
- 店舗の特徴
- 賃貸管理業務
- 24時間管理物件取扱い
- リフォーム対応
- 引越し業者紹介可
- 年中無休
- 送迎あり
- 系列店舗での対応可
- オンライン相談可
- 保証人不要な物件あり
- 法人契約取扱い
電話でお問合せお客様の電話番号は不動産会社には通知されません
- 不動産会社に
つながります
お客様の電話番号は不動産会社に通知されません
- ※光IP電話、及びIP電話からはご利用になれません
- ※お電話によるお問合せは、店舗営業時間内にお願いします。つながらない場合は、お問合せフォームよりお問合せください
- ※不動産会社がお電話に出られなかった場合、お問合せいただいた後に不動産会社より折り返しのお電話がある場合がございます(お客様が非通知設定した場合は対象外です)
- ※株式会社LIFULLは電話会社が提供するサービスを介してお客様の発信者番号を受領後、折り返し専用の電話番号を発番してお問合せの不動産会社に通知します(お客様の発信者番号がお問合せの不動産会社に通知されることはございません)
- ※携帯電話からお問合せいただいた方に対し、株式会社LIFULLは電話会社が提供するメッセ―ジサービスを介してお客様の発信者番号を受領後、ショートメッセージ(SMS)またはLINE通知メッセージによるお問合せ内容に関する通知をお届けする場合があります
- ※お客様が通話中に不動産会社にお伝えになったお客様の個人情報及び、電話会社が発番する折り返し専用の電話番号は、お問合せ先不動産会社が資料送付・電子メール送信・電話連絡などの目的で保管する可能性があります。お問合せ先不動産会社が保管する個人情報の取扱いについては、各不動産会社に直接お問合せください
- ※株式会社LIFULLでは本サービスを円滑に運用するために、お客様の発信者番号をサービスご利用の控えとして一定期間保管いたします
- ※上記および株式会社LIFULLの個人情報の取扱い方針に同意のうえ、お電話ください
【LIFULL HOME'S物件番号】0143972-0097079【自社管理番号】49730-101-14
オンライン対応
オンライン相談に対応している物件です

「オンライン内見」「オンライン相談」「IT重説」とは?
物件の内見や不動産会社スタッフとの相談、契約前の重要事項説明をオンライン(ビデオ通話)で行うことができるサービスです。
オンライン内見
ビデオ通話で現地(物件)にいる不動産会社スタッフと映像・音声を使ってリアルタイムで会話しながら内見ができます。
オンライン相談
「物件について聞きたいことがある」など不動産会社スタッフへの相談もビデオ通話で行うことができます。
IT重説
契約前の重要事項説明(重説)をビデオ通話で行うことができます。
利用時の注意事項
- ビデオ通話については各不動産会社指定のものとなります。
- ビデオ通話利用時には通信が発生します。従量課金制通信サービスや通信量に上限があるネット回線・プランを利用する場合は、通信量にご注意ください。
- 通信速度やアプリの設定によってはビデオ通話の画質が低下することがあります。安定した画質で利用するためにも、Wi-Fi環境下での利用を推奨します。
- ご利用のビデオ通話アプリによっては、対象のOSやブラウザに制限がある場合があります。詳しくはお問合せ先不動産会社にご確認ください。
初期費用・月額費用をあわせて確認!この物件に住んだときの費用めやす
めやすを見るこの物件に住んだときの費用めやす
- 初期費用
- 月額費用
- 追加費用※ご確認ください
追加で費用が
かかる場合があります
必ずご確認ください
初期費用めやす約0円
追加で費用がかかります(※)敷金
0
- 礼金
100,000
賃料+共益費・管理費の1ヶ月分として換算
賃料の1ヶ月分+税として換算。不動産会社によって金額が異なるため正確な金額は不動産会社にお問合せください
※追加費用もチェック!
これらの項目以外にも費用がかかる場合があります。正確な金額は不動産会社にお問合せください。
- 初期費用
- 鍵交換費:19,800円
- 室内清掃費:不動産会社に要確認
- 火災保険費:不動産会社に要確認
- その他
- スマイルサポート:1100円
- コールセンター:990円
- 保証会社
- 初回:月額賃料等の50%、更新時:1.1万円/1年
不動産会社より
紫野の閑静なエリアに大手ハウスメーカーの最新賃貸アパートが6月に完成致します。 間取りはワンル...
ーム、1LDKの両タイプをご用意しており、単身さん、新婚さんにもオススメです。 環境も良好ですが・・・ 従来ながらの追炊き機能付バスルームやシャンプードレッサー、カウンターキッチンと 設備も充実しております。 物件情報はもちろん京都のエリア情報まで幅広く対応させていただきます!
- 保存する
- 共有する
- ※各種情報と現状に差異がある場合は、現状優先となります
- ※不動産会社が入力した情報を基に物件の位置を表示しています。詳しくは不動産会社までお問合せください
- ※不動産会社の方からの上記電話番号によるお問合せはお断りしております。こちら不動産会社詳細からお問合せください
- ※LIFULL HOME'Sは物件鮮度No.1を目指していきます。閲覧中の物件が「成約済である」「実際の物件情報と異なる点がある」などの場合、「掲載110番」からお問合せください
- ※QRコードは株式会社デンソーウェーブの登録商標です
LIFULL HOME'S 地図・周辺情報
買い物
- ローソンストア100 千本寺之内店
- FOOD SHOPエムジー 鞍馬口店
- ドラッグひかり千本今出川店
- ファミリーマート 千本鞍馬口店
- シルク千本寺之内店
グルメ
- 無添くら寿司 西陣店
- 天下一品佛大前店
- 焼肉酒家牛角衣笠店
- マクドナルド 金閣寺店
- はま寿司金閣寺店
育児・教育
- 京都市立乾隆幼稚園
- 京都市立乾隆小学校
- 京都市立嘉楽中学校
- 洛陽保育園
- 京都市立紫野小学校
医療
- 社会福祉法人京都社会事業財団西陣病院
- 社会医療法人西陣健康会堀川病院
- 医療法人相馬病院
- 社会福祉法人聖ヨゼフ会聖ヨゼフ医療福祉センター
- 室町病院
公共施設・郵便局
- 京都千本寺之内郵便局
- 京都市北図書館
- 京都府上京警察署
- 京都大宮鞍馬口郵便局
- 京都市中央図書館
公園
- 船岡山公園
- 大宮交通公園
- 京都御苑
- 梅屋広場公園
- 土堂公園
利用可能な駅
- すべての駅
京都市営烏丸線
- 鞍馬口駅徒歩18分
- 北大路駅徒歩26分
- 今出川駅徒歩27分
- 北山駅3.5km
- 丸太町駅3.7km
京福電気鉄道北野線
- 北野白梅町駅徒歩18分
- 等持院・立命館大学衣笠キャンパス前駅徒歩32分
- 龍安寺駅徒歩36分
- 妙心寺駅3.2km
- 御室仁和寺駅3.6km
JR山陰本線
- 二条駅徒歩36分
- 円町駅徒歩37分
京阪本線
- 出町柳駅3.5km
京都地下鉄東西線
- 二条城前駅3.5km
- 西大路御池駅3.7km
- 周辺情報は2023年07月21日時点のものになります。
- 周辺情報は、参考情報としてのみご利用ください(周辺情報は、株式会社LIFULLが地図情報の提供事業者から提供を受けた情報とLIFULL HOME'Sの物件情報に基づき、独自の方法で抽出し提供しているものです。周辺情報は、移転や閉鎖等により情報が最新ではない、または正しくない場合がありますが、地図情報の提供事業者から提供された情報をそのまま周辺情報として表示しているため、正確かつ最新の情報へ修正することができないことがあります。)
- 周辺情報は、株式会社LIFULLが掲載するものであり、不動産物件情報を掲載している不動産会社が掲載するものではありません
- 交通情報の一部については、株式会社LIFULLが掲載するものであり、不動産物件情報を掲載している不動産会社が掲載するものではない場合があります。交通情報に関する質問などは株式会社LIFULLにお問合せください








