LIFULL HOME'Sは物件鮮度No.1!※評価について
HILL TOP(3階/2LDK/53.46m²)
HILL TOP(3階/2LDK/53.46m²)
6.9万円/管理費等8,000円
2026/04/02 更新
画像一覧
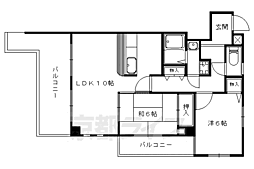
1/30間取り
間取
2/30外観
3/30外観
4/30リビング/ダイニング
開放感のある広い室内です・
5/30リビング/ダイニング
6帖の洋室です
6/30リビング/ダイニング
10帖の横長LDKです
7/30リビング/ダイニング
6帖の和室です
8/30リビング/ダイニング
落ち着く畳のお部屋です~
9/30キッチン
広くて使いやすいキッチンです・
10/30キッチン
作業スペースもきちんとあります
11/30キッチン
3口コンロです
12/30キッチン
換気扇付いてます
13/30浴室
ゆっくり浸かれます・
14/30浴室
浴室内です
15/30トイレ
独立水洗トイレです
16/30洗面
収納の多い洗面台です
17/30洗面
洗面台の向かいに置けます
18/30収納
WIC・
19/30収納
廊下にも押入れあります
20/30収納
押入れも付いてます
21/30設備
エアコン付き・
22/30設備
カラーモニター
23/30設備
ワンタッチ
24/30設備
カウンターキッチン
25/30玄関
広め玄関です
26/30玄関
シューズボックス付き
27/30バルコニー
和室側バルコニーです
28/30バルコニー
LDK側バルコニーです
29/30その他
まっすぐ
30/30周辺
北醍醐小学校まで120m
間取り
外観
外観
リビング/ダイニング
リビング/ダイニング
リビング/ダイニング
リビング/ダイニング
リビング/ダイニング
キッチン
キッチン
キッチン
キッチン
浴室
浴室
トイレ
洗面
洗面
収納
収納
収納
設備
設備
設備
設備
玄関
玄関
バルコニー
バルコニー
その他
周辺
1〜4月は引越しシーズンのピークです。お問合せはお早めに!
仲介手数料割引
ご成約時、仲介手数料は賃料50%(外税)です。
- 利用条件
- 株式会社京都ライフ 二条駅前店で利用可
- 他特典との併用可
- ・法人契約、事業用物件は除きます。 ・積水ハウス、大東建託の管理物件は除きます。
利用方法
来店時に本特典の画面をスマートフォンやタブレットでスタッフに提示、または画面印刷した用紙を提示ください。
有効期限 なし
高級感漂うRCマンション 北醍醐小学区。高級感漂う低層のRCマンション
基本情報
不動産用語- 賃料
- 6.9万円
- 管理費等
- 8,000円
初期費用などお気軽にお問合せください
- 敷金/礼金
- 5万円/無
- 保証金/敷引・償却金
- -/-
- 交通
京都地下鉄東西線 小野駅 徒歩14分
京都地下鉄東西線 醍醐駅 徒歩18分
- 所在地
京都府京都市伏見区醍醐烏橋町
地図を見る- 築年月
- 1989年3月(築38年)
- 主要採光面
- 東
- 専有面積
- 53.46㎡
- バルコニー面積
- -
- 所在階/階数
- 3階/3階建
見学可能な物件です。希望日時を予約できます(無料)
- 現況
- 空家
- 入居可能時期
- 即時

人気物件はすぐに埋まってしまいます。
気になったらお早めにお問合せください。
- 情報公開日
2026/04/02
6日前 公開
- 情報更新日
2026/04/02
6日前 更新
- 次回更新
予定日 - 2026/04/16
物件のこだわり/設備・条件
新築(非該当)
2階以上の物件(該当)
南向き(非該当)
駐車場あり(該当)
オートロック(該当)
エアコン(該当)
バス・トイレ別(該当)
追焚機能(非該当)
フローリング(該当)
ペット相談(非該当)
入居条件
二人入居可、即入居可キッチン/バス・トイレ
設備・サービス
オートロック、TVモニタ付インターホン、エアコン、CATV、BS対応、公営水道、都市ガス、下水、フローリング、バルコニー、室内洗濯機置場、エレベーター、駐車場あり、バイク置き場あり、駐輪場ありその他
住まい探し特典あり備考
京都市伏見区 醍醐エリアの2LDKマンションです。礼金ナシ。嬉しい3点セパレートなど充実の設備。オートロックでセキュリティも安心です。 物件情報はもちろん京都のエリア情報まで幅広く対応させていただきます!
物件周辺の生活情報
学校
- 北醍醐小学校(120m)
- 醍醐中学校(1,300m)
買い物
- コンビニ(906m)
- スーパー(268m)
- ドラッグストア(994m)
その他施設
- 総合病院(1,900m)
- 銀行(828m)
- ロイヤルホームセンター醍醐店(1,700m)
交通
- 京都地下鉄東西線 小野駅 徒歩14分
- 普通(停車)
- 京都地下鉄東西線 醍醐駅 徒歩18分
- 普通(停車)
※急行等の停車駅情報について
急行等の停車駅に関するデータは、随時更新をしておりますが、最新の内容であることを保証するものではありません。
最新かつ正確な情報につきましては、各鉄道会社のウェブサイトにてご確認ください
物件概要
- 建物構造
- RC(鉄筋コンクリート)
- 駐車場
- 空有 9,900円(税込) 駐車料金:9900円〜12100円
- 総戸数
- 12戸
- 契約形態
- -
- 契約期間
- 2年間
- 更新料
- 新賃料の1ヶ月分
- その他費用
- 室内清掃費用:42,350円、駐輪登録料:1,100円、鍵作成費3本目〜:4,840円
- 保証会社
加入要
保証会社:全保連
保証会社利用料:初回:月額賃料等の50%、更新時:1.3万円/1年(初回保証料 総賃料120% 更新保証料なしプランあり)
- 住宅保険
- 要
- 管理
- -
- LIFULL HOME'S
物件番号 - 0142941-0207350
- 自社管理番号
- 16692-301-27
- 取引態様
- 仲介
- 会社名
- 株式会社京都ライフ 二条駅前店
営業スタッフコメント

株式会社京都ライフ 二条駅前店
酒井栞
素晴らしいお部屋に出会えるまで全力でサポート致します!
業界経験2年
資格少額短期保険募集人
- 会社実績や特徴・サービス情報
- 京都市内部屋付け数3年連続1位。(株式会社全国賃貸住宅新聞調べ) 当店はJR山陰線、地下鉄東西線の二条駅から3分に立地し、通勤・通学のアクセスの良さ、近隣施設の充実から近年住みたい街と言われる二条駅すぐの所に店舗を構えております。 各エリア専門のスタッフが揃っておりますので、二条駅周辺だけでなく、京都市全域、向日市・長岡京市・宇治市など幅広くご紹介させて頂きます。 社会人のご単身・ファミリー様をはじめ、先端科学大学・同志社大学・立命館大学・京都大学など大学生のお部屋探しも全力でサポートさせて頂きます。 創業40年、地域密着に拘らせて頂いた京都最大級の物件情報をもとに、 誠心誠意、ご満足頂けるお部屋をご紹介させて頂きます。 お部屋を探しは京都ライフ 二条駅前店へ、お気軽にお立ち寄りください
京都市内部屋付け数3年連続1位。(株式会社全国賃貸住宅新聞調べ) 当店はJR山陰線、地下鉄東西線の二条駅から3分に立地し、通勤・通学のアクセスの良さ、近隣施設の充実から近年住みたい街と言われる二条駅すぐの所に店舗を構えております。 各エリア専門のスタッフが揃っておりますので、二条駅周辺だけでなく、京都市全域、向日市・長岡京市・宇治市など幅広くご紹介させて頂きます。 社会人のご単身・ファミリー様をはじめ、先端科学大学・同志社大学・立命館大学・京都大学など大学生のお部屋探しも全力でサポートさせて頂きます。 創業40年、地域密着に拘らせて頂いた京都最大級の物件情報をもとに、 誠心誠意、ご満足頂けるお部屋をご紹介させて頂きます。 お部屋を探しは京都ライフ 二条駅前店へ、お気軽にお立ち寄りください
- 電話でお問合せ(通話無料)
お問合せ先 :株式会社京都ライフ 二条駅前店
不動産会社情報
株式会社京都ライフ 二条駅前店

京都府京都市中京区西ノ京職司町72 ウエストフィールド1階
京都地下鉄東西線 二条駅 徒歩3分
- 営業時間
- 09:30~19:00
- 定休日
- 年中無休(盆正月を除く)
優良店認定
JR、地下鉄とアクセスの良さで人気の二条エリアはもちろん、京都中心地エリア、大宮エリア、西院エリア、円町エリア、北野白梅町エリアなど幅広いエリアでのお部屋探しをサポートいたします。
- 店舗の特徴
- 賃貸管理業務
- 24時間管理物件取扱い
- リフォーム対応
- 引越し業者紹介可
- バリアフリー
- 系列店舗での対応可
- 保証人不要な物件あり
- 法人契約取扱い
- 駅から歩いて3分以内
電話でお問合せお客様の電話番号は不動産会社には通知されません
- 不動産会社に
つながります
お客様の電話番号は不動産会社に通知されません
- ※光IP電話、及びIP電話からはご利用になれません
- ※お電話によるお問合せは、店舗営業時間内にお願いします。つながらない場合は、お問合せフォームよりお問合せください
- ※不動産会社がお電話に出られなかった場合、お問合せいただいた後に不動産会社より折り返しのお電話がある場合がございます(お客様が非通知設定した場合は対象外です)
- ※株式会社LIFULLは電話会社が提供するサービスを介してお客様の発信者番号を受領後、折り返し専用の電話番号を発番してお問合せの不動産会社に通知します(お客様の発信者番号がお問合せの不動産会社に通知されることはございません)
- ※携帯電話からお問合せいただいた方に対し、株式会社LIFULLは電話会社が提供するメッセ―ジサービスを介してお客様の発信者番号を受領後、ショートメッセージ(SMS)またはLINE通知メッセージによるお問合せ内容に関する通知をお届けする場合があります
- ※お客様が通話中に不動産会社にお伝えになったお客様の個人情報及び、電話会社が発番する折り返し専用の電話番号は、お問合せ先不動産会社が資料送付・電子メール送信・電話連絡などの目的で保管する可能性があります。お問合せ先不動産会社が保管する個人情報の取扱いについては、各不動産会社に直接お問合せください
- ※株式会社LIFULLでは本サービスを円滑に運用するために、お客様の発信者番号をサービスご利用の控えとして一定期間保管いたします
- ※上記および株式会社LIFULLの個人情報の取扱い方針に同意のうえ、お電話ください
【LIFULL HOME'S物件番号】0142941-0207350【自社管理番号】16692-301-27
初期費用・月額費用をあわせて確認!この物件に住んだときの費用めやす
めやすを見るこの物件に住んだときの費用めやす
- 初期費用
- 月額費用
- 追加費用※ご確認ください
追加で費用が
かかる場合があります
必ずご確認ください
初期費用めやす約0円
追加で費用がかかります(※)敷金
50,000
- 礼金
0
賃料+共益費・管理費の1ヶ月分として換算
賃料の1ヶ月分+税として換算。不動産会社によって金額が異なるため正確な金額は不動産会社にお問合せください
※追加費用もチェック!
これらの項目以外にも費用がかかる場合があります。正確な金額は不動産会社にお問合せください。
- 初期費用
- 鍵交換費:不動産会社に要確認
- 室内清掃費:42,350円
- 火災保険費:不動産会社に要確認
- 月額費用
- 駐車場費:9,900円(税込)※契約任意
- その他
- 駐輪登録料:1100円
- 鍵作成費3本目〜:4840円
- 保証会社
- 初回:月額賃料等の50%、更新時:1.3万円/1年(初回保証料 総賃料120% 更新保証料なしプランあり)
不動産会社より
高級感漂うRCマンション 北醍醐小学区。高級感漂う低層のRCマンション
京都市伏見区 醍醐エリアの2LDKマンションです。礼金ナシ。嬉しい3点セパレートなど充実の設備。オートロックでセキュリティも安心です。 物件情報はもちろん京都のエリア情報まで幅広く対応させていただきます!
- 保存する
- 共有する
- ※各種情報と現状に差異がある場合は、現状優先となります
- ※不動産会社が入力した情報を基に物件の位置を表示しています。詳しくは不動産会社までお問合せください
- ※不動産会社の方からの上記電話番号によるお問合せはお断りしております。こちら不動産会社詳細からお問合せください
- ※LIFULL HOME'Sは物件鮮度No.1を目指していきます。閲覧中の物件が「成約済である」「実際の物件情報と異なる点がある」などの場合、「掲載110番」からお問合せください
- ※QRコードは株式会社デンソーウェーブの登録商標です
LIFULL HOME'S 地図・周辺情報
買い物
- セブンイレブン 山科外環小野店
- 業務スーパー 山科店
- スギドラッグ醍醐店
- ローソン 山科外環小野店
- ダイソー京都山科勧修寺店
グルメ
- マクドナルド 外環勧修寺店
- なか卯 醍醐店
- 餃子の王将 醍醐店
- ガスト 京都醍醐店(から好し取扱店)
- CoCo壱番屋 山科小野店
育児・教育
- 小野幼稚園
- 京都市立北醍醐小学校
- 京都市立大宅中学校
- 社会福祉法人醍醐福祉会中山保育園
- 京都市立醍醐小学校
医療
- 医療法人松寿会共和病院
- 恵仁会なぎ辻病院
- 医療法人新生十全会なごみの里病院
- 医療法人医仁会武田総合病院
- 医療法人財団桜花会醍醐病院
公共施設・郵便局
- 京都醍醐北郵便局
- 京都市醍醐中央図書館
- 山科警察署
- 伏見醍醐郵便局
- 京都市醍醐図書館
公園
利用可能な駅
- すべての駅
京都地下鉄東西線
- 小野駅徒歩14分
- 醍醐駅徒歩18分
- 周辺情報は2023年07月21日時点のものになります。
- 周辺情報は、参考情報としてのみご利用ください(周辺情報は、株式会社LIFULLが地図情報の提供事業者から提供を受けた情報とLIFULL HOME'Sの物件情報に基づき、独自の方法で抽出し提供しているものです。周辺情報は、移転や閉鎖等により情報が最新ではない、または正しくない場合がありますが、地図情報の提供事業者から提供された情報をそのまま周辺情報として表示しているため、正確かつ最新の情報へ修正することができないことがあります。)
- 周辺情報は、株式会社LIFULLが掲載するものであり、不動産物件情報を掲載している不動産会社が掲載するものではありません
- 交通情報の一部については、株式会社LIFULLが掲載するものであり、不動産物件情報を掲載している不動産会社が掲載するものではない場合があります。交通情報に関する質問などは株式会社LIFULLにお問合せください








