LIFULL HOME'Sは物件鮮度No.1!※評価について
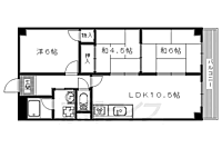
エクレール・やぐら(3階/3LDK/61.6m²)
エクレール・やぐら(3階/3LDK/61.6m²)
6.9万円/管理費等-
16時間前 更新
画像一覧
1/30間取り
間取
2/30外観
3/30外観
4/30リビング/ダイニング
5/30リビング/ダイニング
6/30リビング/ダイニング
7/30リビング/ダイニング
8/30キッチン
9/30キッチン
10/30キッチン
11/30キッチン
12/30浴室
13/30浴室
14/30トイレ
15/30洗面
16/30洗面
17/30洗面
18/30収納
19/30収納
20/30設備
21/30設備
22/30設備
23/30玄関
24/30バルコニー
25/30バルコニー
26/30その他
27/30その他
28/30その他
29/30その他
30/30周辺
デイリーヤマザキ 枚方長尾北町店まで165m
間取り
外観
外観
リビング/ダイニング
リビング/ダイニング
リビング/ダイニング
リビング/ダイニング
キッチン
キッチン
キッチン
キッチン
浴室
浴室
トイレ
洗面
洗面
洗面
収納
収納
設備
設備
設備
玄関
バルコニー
バルコニー
その他
その他
その他
その他
周辺
1〜4月は引越しシーズンのピークです。お問合せはお早めに!
仲介手数料割引
京都ライフなら、ご成約時に仲介手数料が家賃の50%(外税)です。
- 利用条件
- 株式会社京都ライフ 河原町四条店で利用可
- 他特典との併用可
- .法人契約、事業用物件は除く .積水ハウス、大東建託の管理物件は除く
利用方法
来店時に本特典の画面をスマートフォンやタブレットでスタッフに提示、または画面印刷した用紙を提示ください。
有効期限 なし
外国籍相談可能です。 枚方市のお部屋探しは京都ライフ0774−68−5300まで。
基本情報
不動産用語- 賃料
- 6.9万円
- 管理費等
- -
初期費用などお気軽にお問合せください
- 敷金/礼金
- 無/10万円
- 保証金/敷引・償却金
- -/-
- 交通
JR片町線(学研都市線) 長尾駅 徒歩15分
JR片町線(学研都市線) 藤阪駅 徒歩32分
JR片町線(学研都市線) 松井山手駅 徒歩33分
- 所在地
大阪府枚方市長尾元町7丁目
地図を見る- 築年月
- 1990年10月(築36年)
- 主要採光面
- 南西
- 専有面積
- 61.6㎡
- バルコニー面積
- -
- 所在階/階数
- 3階/3階建
見学可能な物件です。希望日時を予約できます(無料)
- 現況
- 空家
- 入居可能時期
- 即時

人気物件はすぐに埋まってしまいます。
気になったらお早めにお問合せください。
- 情報公開日
2026/03/09
16日前 公開
- 情報更新日
2026/03/24
16時間前 更新
- 次回更新
予定日 - 2026/04/04
物件のこだわり/設備・条件
新築(非該当)
2階以上の物件(該当)
南向き(非該当)
駐車場あり(該当)
オートロック(非該当)
エアコン(非該当)
バス・トイレ別(該当)
追焚機能(非該当)
フローリング(該当)
ペット相談(非該当)
入居条件
二人入居可、即入居可キッチン/バス・トイレ
設備・サービス
シューズボックス、光ファイバー、公営水道、都市ガス、下水、フローリング、バルコニー、室内洗濯機置場、駐車場あり、駐輪場ありその他
住まい探し特典あり備考
枚方市の3LDKです。敷金、更新料ナシ。光ファイバー対応しています。枚方市でのお部屋探しは京都ライフ京田辺店0774−68−5300まで。 物件情報はもちろん京都のエリア情報まで幅広く対応させていただきます!
物件周辺の生活情報
買い物
- コンビニ(165m)
- スーパー(836m)
その他施設
- 総合病院(945m)
- 銀行(994m)
- 枚方市立菅原図書館(1,144m)
交通
- JR片町線(学研都市線) 長尾駅 徒歩15分
- 普通(停車)
- 区間快速(停車)
- 快速(停車)
- JR片町線(学研都市線) 藤阪駅 徒歩32分
- 普通(停車)
- 区間快速(停車)
- 快速(通過)
※急行等の停車駅情報について
急行等の停車駅に関するデータは、随時更新をしておりますが、最新の内容であることを保証するものではありません。
最新かつ正確な情報につきましては、各鉄道会社のウェブサイトにてご確認ください
物件周辺の口コミ
- 大阪府枚方市長尾元町に住む人の口コミ40代男性
住み慣れているし、近くの公園や河川敷でジョギングができ、近くの山ではハイキングコースが整備されてるから。
口コミを見る
この物件周辺に住む人の口コミ
口コミは、LIFULL HOME'Sが実際にこの物件の周辺に住む18歳~69歳の男女を対象に、WEBアンケート調査を実施しています。内容には回答者の主観的な表現が含まれる場合があるほか、事実と異なる場合もございます。ご了承ください。
- 大阪府枚方市長尾元町に住む人の口コミ40代男性
- 住み慣れているし、近くの公園や河川敷でジョギングができ、近くの山ではハイキングコースが整備されてるから。
- 大阪府枚方市長尾元町に住む人の口コミ50代女性
- 買物、交通も便利で病院も充実していて住みやすいか、駅前に商店街がなく活気がない。子供が安心して遊べる広く遊具の整った公園が少ない。
- 大阪府枚方市長尾元町に住む人の口コミ40代女性
- JRの駅が近くにあり、バスを使えば京阪沿線にも出れるので。スーパーも何軒かあり、買い物もしやすい。
- 大阪府枚方市長尾元町に住む人の口コミ30代女性
- スーパーや病院などが近くにあって住みやすい。市内までの交通費が少し高い。
- 大阪府枚方市長尾元町に住む人の口コミ40代女性
- 大阪の中心部にも京都にも行きやすく、住民が多すぎないところが良い。
- 大阪府枚方市長尾元町に住む人の口コミ50代男性
- 適度に自然があり、不便でない程度に店舗があり、道路整備が進み、便利が良くなった。
- 大阪府枚方市長尾元町に住む人の口コミ60代女性
- 交通の便がよく、医療も充実しており買い物も便利。ただレストラン、カフェなどの飲食店が少ない。書籍や衣料品を扱う店がない。
- 大阪府枚方市長尾元町に住む人の口コミ60代男性
- 定年退職者としては、ほどほどの商業施設があって閑静な住宅街があるから。
- 大阪府枚方市長尾元町に住む人の口コミ50代女性
- 坂道が多く移動が少し面倒ではあるが、大型商業施設もあり買い物は比較的便利。JRがすぐ止まるが振り替え輸送がなく不便。降水量がとても多い時も何の被害もない。
- 大阪府枚方市長尾元町に住む人の口コミ40代男性
- 閑静な住宅街の為、生活しやすい環境である。住人も良い人が多く、住みやすい環境だと思うから。
物件概要
- 建物構造
- RC(鉄筋コンクリート)
- 駐車場
- 空有 11,000円(税込)
- 総戸数
- 9戸
- 契約形態
- -
- 契約期間
- 2年間
- 更新料
- -
- その他費用
- 鍵交換費用:7,700円、害虫駆除費:22,000円、LIFE SUPPORT:16,500円、ファイテック消火剤:4,950円
- 保証会社
加入要
保証会社:VISA
保証会社利用料:初回:月額賃料等の50%、月額:支払い手数料600円
- 住宅保険
- 要
- 管理
- -
- LIFULL HOME'S
物件番号 - 0140999-0240825
- 自社管理番号
- 04BE8-303-26
- 取引態様
- 仲介
- 会社名
- 株式会社京都ライフ 河原町四条店
営業スタッフコメント

株式会社京都ライフ 河原町四条店
田中宏樹
お客様満足度100%を目標にしております!
業界経験1年
資格少額短期保険募集人
- 会社実績や特徴・サービス情報
- 京都市のお部屋探しは「創業40年以上。老舗の京都ライフ」へおまかせ下さい。 その他非掲載物件も多数ございます。ぜひ自社HPもご覧ください。 「京都ライフ」で検索でOK。京都ライフでは仲介手数料は家賃の半月分です。
京都市のお部屋探しは「創業40年以上。老舗の京都ライフ」へおまかせ下さい。 その他非掲載物件も多数ございます。ぜひ自社HPもご覧ください。 「京都ライフ」で検索でOK。京都ライフでは仲介手数料は家賃の半月分です。
- 電話でお問合せ(通話無料)
お問合せ先 :株式会社京都ライフ 河原町四条店
不動産会社情報
株式会社京都ライフ 河原町四条店
京都府京都市中京区奈良屋町291-2 wise core BLD.1階
阪急京都本線 京都河原町駅 徒歩4分
- 営業時間
- 09:30~19:00
- 定休日
- 年中無休(盆正月を除く)
京都市の中心街である河原町エリアは、様々なお店で賑わう京都屈指の繁華街です。このエリアでのお部屋探しは京都ライフ河原町四条店へお任せください!
- 店舗の特徴
- 賃貸管理業務
- 24時間管理物件取扱い
- 引越し業者紹介可
- 年中無休
- 社宅・寮物件取扱い
- オンライン相談可
- 保証人不要な物件あり
- 法人契約取扱い
- 女性スタッフ対応可
- 19時以降も営業
電話でお問合せお客様の電話番号は不動産会社には通知されません
- 不動産会社に
つながります
お客様の電話番号は不動産会社に通知されません
- ※光IP電話、及びIP電話からはご利用になれません
- ※お電話によるお問合せは、店舗営業時間内にお願いします。つながらない場合は、お問合せフォームよりお問合せください
- ※不動産会社がお電話に出られなかった場合、お問合せいただいた後に不動産会社より折り返しのお電話がある場合がございます(お客様が非通知設定した場合は対象外です)
- ※株式会社LIFULLは電話会社が提供するサービスを介してお客様の発信者番号を受領後、折り返し専用の電話番号を発番してお問合せの不動産会社に通知します(お客様の発信者番号がお問合せの不動産会社に通知されることはございません)
- ※携帯電話からお問合せいただいた方に対し、株式会社LIFULLは電話会社が提供するメッセ―ジサービスを介してお客様の発信者番号を受領後、ショートメッセージ(SMS)またはLINE通知メッセージによるお問合せ内容に関する通知をお届けする場合があります
- ※お客様が通話中に不動産会社にお伝えになったお客様の個人情報及び、電話会社が発番する折り返し専用の電話番号は、お問合せ先不動産会社が資料送付・電子メール送信・電話連絡などの目的で保管する可能性があります。お問合せ先不動産会社が保管する個人情報の取扱いについては、各不動産会社に直接お問合せください
- ※株式会社LIFULLでは本サービスを円滑に運用するために、お客様の発信者番号をサービスご利用の控えとして一定期間保管いたします
- ※上記および株式会社LIFULLの個人情報の取扱い方針に同意のうえ、お電話ください
【LIFULL HOME'S物件番号】0140999-0240825【自社管理番号】04BE8-303-26
オンライン対応
オンライン相談に対応している物件です

「オンライン内見」「オンライン相談」「IT重説」とは?
物件の内見や不動産会社スタッフとの相談、契約前の重要事項説明をオンライン(ビデオ通話)で行うことができるサービスです。
オンライン内見
ビデオ通話で現地(物件)にいる不動産会社スタッフと映像・音声を使ってリアルタイムで会話しながら内見ができます。
オンライン相談
「物件について聞きたいことがある」など不動産会社スタッフへの相談もビデオ通話で行うことができます。
IT重説
契約前の重要事項説明(重説)をビデオ通話で行うことができます。
利用時の注意事項
- ビデオ通話については各不動産会社指定のものとなります。
- ビデオ通話利用時には通信が発生します。従量課金制通信サービスや通信量に上限があるネット回線・プランを利用する場合は、通信量にご注意ください。
- 通信速度やアプリの設定によってはビデオ通話の画質が低下することがあります。安定した画質で利用するためにも、Wi-Fi環境下での利用を推奨します。
- ご利用のビデオ通話アプリによっては、対象のOSやブラウザに制限がある場合があります。詳しくはお問合せ先不動産会社にご確認ください。
初期費用・月額費用をあわせて確認!この物件に住んだときの費用めやす
めやすを見るこの物件に住んだときの費用めやす
- 初期費用
- 月額費用
- 追加費用※ご確認ください
追加で費用が
かかる場合があります
必ずご確認ください
初期費用めやす約0円
追加で費用がかかります(※)敷金
0
- 礼金
100,000
賃料+共益費・管理費の1ヶ月分として換算
賃料の1ヶ月分+税として換算。不動産会社によって金額が異なるため正確な金額は不動産会社にお問合せください
※追加費用もチェック!
これらの項目以外にも費用がかかる場合があります。正確な金額は不動産会社にお問合せください。
- 初期費用
- 鍵交換費:7,700円
- 室内清掃費:不動産会社に要確認
- 火災保険費:不動産会社に要確認
- 月額費用
- 駐車場費:11,000円(税込)※契約任意
- その他
- 害虫駆除費:22000円
- LIFE SUPPORT:16500円
- ファイテック消火剤:4950円
- 保証会社
- 初回:月額賃料等の50%、月額:支払い手数料600円
不動産会社より
外国籍相談可能です。 枚方市のお部屋探しは京都ライフ0774−68−5300まで。
枚方市の3LDKです。敷金、更新料ナシ。光ファイバー対応しています。枚方市でのお部屋探しは京都ライフ京田辺店0774−68−5300まで。 物件情報はもちろん京都のエリア情報まで幅広く対応させていただきます!
- 保存する
- 共有する
- ※各種情報と現状に差異がある場合は、現状優先となります
- ※不動産会社が入力した情報を基に物件の位置を表示しています。詳しくは不動産会社までお問合せください
- ※不動産会社の方からの上記電話番号によるお問合せはお断りしております。こちら不動産会社詳細からお問合せください
- ※LIFULL HOME'Sは物件鮮度No.1を目指していきます。閲覧中の物件が「成約済である」「実際の物件情報と異なる点がある」などの場合、「掲載110番」からお問合せください
- ※QRコードは株式会社デンソーウェーブの登録商標です
したい暮らしのタグから探す
LIFULL HOME'S 地図・周辺情報
買い物
- デイリーヤマザキ 枚方長尾北町店
- 万代 長尾西店
- ディスカウントドラッグコスモス北山店
- ファミリーマート 枚方長尾家具町店
- 産直市場よってって枚方北山店
グルメ
- モスバーガー ニトリモール枚方店
- いきなりステーキニトリモール枚方店
- ペッパーランチ ニトリモール枚方店
- ミスタードーナツ ニトリモール枚方ショップ
- 餃子の王将 長尾店
育児・教育
- 第2長尾保育園
- 枚方市立長尾小学校
- 枚方市立長尾中学校
- マツガ保育園
- 枚方市立西長尾小学校
医療
- 医療法人みどり会中村病院
- みのやま病院
- 枚方公済病院
- 医療法人りんどう会向山病院
- 医療法人愛和会新世病院
公共施設・郵便局
- 菅原郵便局
- 枚方市立菅原図書館
- 枚方長尾家具郵便局
- 八幡市立男山市民図書館
- 枚方長尾台郵便局
公園
- きんめい近隣公園
- 北山公園
- 王仁公園
- 山田池公園
- 東二子塚史跡公園
利用可能な駅
- すべての駅
JR片町線(学研都市線)
- 長尾駅徒歩15分
- 藤阪駅徒歩32分
- 松井山手駅徒歩33分
- 周辺情報は2023年07月21日時点のものになります。
- 周辺情報は、参考情報としてのみご利用ください(周辺情報は、株式会社LIFULLが地図情報の提供事業者から提供を受けた情報とLIFULL HOME'Sの物件情報に基づき、独自の方法で抽出し提供しているものです。周辺情報は、移転や閉鎖等により情報が最新ではない、または正しくない場合がありますが、地図情報の提供事業者から提供された情報をそのまま周辺情報として表示しているため、正確かつ最新の情報へ修正することができないことがあります。)
- 周辺情報は、株式会社LIFULLが掲載するものであり、不動産物件情報を掲載している不動産会社が掲載するものではありません
- 交通情報の一部については、株式会社LIFULLが掲載するものであり、不動産物件情報を掲載している不動産会社が掲載するものではない場合があります。交通情報に関する質問などは株式会社LIFULLにお問合せください










