LIFULL HOME'Sは物件鮮度No.1!※評価について
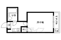
N.N.house(3階/1K/17.61m²)
N.N.house(3階/1K/17.61m²)
4.3万円/管理費等5,000円
2026/03/07 更新
画像一覧
1/30間取り
間取
2/30外観
閑静な住宅街です。
3/30外観
近くの大通りは生活に便利です。
4/30リビング/ダイニング
広々とした洋室です。
5/30リビング/ダイニング
使い勝手ある間取りです。
6/30リビング/ダイニング
風通しが良いです。
7/30リビング/ダイニング
日当たり良好です。
8/30リビング/ダイニング
広く開放感があります。
9/30キッチン
使い勝手良好のキッチンです。
10/30キッチン
収納が多いキッチンです。
11/30キッチン
キッチン上の収納です。
12/30浴室
キレイで清潔感があります。
13/30収納
いっぱい入る収納です。
14/30設備
ベランダに洗濯機が置けます。
15/30設備
使い勝手ある下駄箱です。
16/30設備
防犯面は安心です。
17/30設備
キレイな冷暖房です。
18/30設備
防犯面は安心です。
19/30玄関
広い玄関です。
20/30バルコニー
広いバルコニーです。
21/30エントランス
日当たりが良好です。
22/30エントランス
お部屋ごとの入口です。
23/30その他
ゆとりある廊下です。
24/30その他
風通しが良いです。
25/30その他
階段下に設置されています。
26/30その他
広い駐輪スペースです。
27/30その他
共同の階段です。
28/30その他
防犯面は安心です。
29/30周辺
静かで環境も良好です。
30/30周辺
柏野小学校まで280m 静かな住宅街に立地した小学校です。
間取り
外観
外観
リビング/ダイニング
リビング/ダイニング
リビング/ダイニング
リビング/ダイニング
リビング/ダイニング
キッチン
キッチン
キッチン
浴室
収納
設備
設備
設備
設備
設備
玄関
バルコニー
エントランス
エントランス
その他
その他
その他
その他
その他
その他
周辺
周辺
1〜4月は引越しシーズンのピークです。お問合せはお早めに!
仲介手数料割引
京都ライフなら、ご成約時に仲介手数料が家賃の50%(外税)です。
- 利用条件
- 株式会社京都ライフ 河原町四条店で利用可
- 他特典との併用可
- .法人契約、事業用物件は除く .積水ハウス、大東建託の管理物件は除く
利用方法
来店時に本特典の画面をスマートフォンやタブレットでスタッフに提示、または画面印刷した用紙を提示ください。
有効期限 なし
大型バイク駐輪無料 カードキーにTVホンでセキュリティ面も安心。大型バイク無料
物件のこだわり/設備・条件
新築(非該当)
2階以上の物件(該当)
南向き(非該当)
駐車場(非該当)
オートロック(非該当)
エアコン(該当)
バス・トイレ別(非該当)
追焚機能(非該当)
フローリング(非該当)
ペット相談(非該当)
位置
角部屋入居条件
即入居可キッチン/バス・トイレ
設備・サービス
TVモニタ付インターホン、エアコン、インターネット使用料無料、公営水道、都市ガス、下水、バルコニー、バイク置き場あり、駐輪場ありその他
住まい探し特典あり備考
京都市北区 紫野エリアの1Kです。敷金、礼金、更新料ナシ。TVホンでセキュリティも安心です。コンビニ、スーパー、ドラッグストア、ホームセンターなど近くにあって便利ですよ。 物件情報はもちろん京都のエリア情報まで幅広く対応させていただきます!
物件周辺の生活情報
学校
- 衣笠中学校(994m)
買い物
- コンビニ(288m)
- スーパー(400m)
- 商店街(350m)
- ドラッグストア(600m)
その他施設
- 総合病院(2,000m)
- 公園(600m)
- 銀行(444m)
- ホームセンターコーナン西陣上七軒店(800m)
交通
- 京福電気鉄道北野線 北野白梅町駅 徒歩15分
- 普通(停車)
- 京都市営烏丸線 鞍馬口駅 徒歩26分
- 普通(停車)
- 急行(停車)
※急行等の停車駅情報について
急行等の停車駅に関するデータは、随時更新をしておりますが、最新の内容であることを保証するものではありません。
最新かつ正確な情報につきましては、各鉄道会社のウェブサイトにてご確認ください
物件概要
- 建物構造
- ALC造
- 駐車場
- 無
- 総戸数
- 5戸
- 契約形態
- -
- 契約期間
- 2年間
- 更新料
- 新賃料の1ヶ月分
- その他費用
- 室内清掃費用:27,500円、水道代:2,000円、LIFE SUPPORT:1,100円、害虫駆除費:19,800円
- 保証会社
加入要
保証会社:あんしんプラス
保証会社利用料:初回:月額賃料等の40%、月額:支払い手数料880円、更新時:月額賃料等の20%/2年
- 住宅保険
- 要
- 管理
- -
- LIFULL HOME'S
物件番号 - 0140999-0237395
- 自社管理番号
- 21658-301-26
- 取引態様
- 専属専任媒介
- 会社名
- 株式会社京都ライフ 河原町四条店
営業スタッフコメント

株式会社京都ライフ 河原町四条店
田中宏樹
お客様満足度100%を目標にしております!
業界経験1年
資格少額短期保険募集人
- 会社実績や特徴・サービス情報
- 京都市のお部屋探しは「創業40年以上。老舗の京都ライフ」へおまかせ下さい。 その他非掲載物件も多数ございます。ぜひ自社HPもご覧ください。 「京都ライフ」で検索でOK。京都ライフでは仲介手数料は家賃の半月分です。
京都市のお部屋探しは「創業40年以上。老舗の京都ライフ」へおまかせ下さい。 その他非掲載物件も多数ございます。ぜひ自社HPもご覧ください。 「京都ライフ」で検索でOK。京都ライフでは仲介手数料は家賃の半月分です。
- 電話でお問合せ(通話無料)
お問合せ先 :株式会社京都ライフ 河原町四条店
不動産会社情報
株式会社京都ライフ 河原町四条店
京都府京都市中京区奈良屋町291-2 wise core BLD.1階
阪急京都本線 京都河原町駅 徒歩4分
- 営業時間
- 09:30~19:00
- 定休日
- 年中無休(盆正月を除く)
京都市の中心街である河原町エリアは、様々なお店で賑わう京都屈指の繁華街です。このエリアでのお部屋探しは京都ライフ河原町四条店へお任せください!
- 店舗の特徴
- 賃貸管理業務
- 24時間管理物件取扱い
- 引越し業者紹介可
- 年中無休
- 社宅・寮物件取扱い
- オンライン相談可
- 保証人不要な物件あり
- 法人契約取扱い
- 女性スタッフ対応可
- 19時以降も営業
電話でお問合せお客様の電話番号は不動産会社には通知されません
- 不動産会社に
つながります
お客様の電話番号は不動産会社に通知されません
- ※光IP電話、及びIP電話からはご利用になれません
- ※お電話によるお問合せは、店舗営業時間内にお願いします。つながらない場合は、お問合せフォームよりお問合せください
- ※不動産会社がお電話に出られなかった場合、お問合せいただいた後に不動産会社より折り返しのお電話がある場合がございます(お客様が非通知設定した場合は対象外です)
- ※株式会社LIFULLは電話会社が提供するサービスを介してお客様の発信者番号を受領後、折り返し専用の電話番号を発番してお問合せの不動産会社に通知します(お客様の発信者番号がお問合せの不動産会社に通知されることはございません)
- ※携帯電話からお問合せいただいた方に対し、株式会社LIFULLは電話会社が提供するメッセ―ジサービスを介してお客様の発信者番号を受領後、ショートメッセージ(SMS)またはLINE通知メッセージによるお問合せ内容に関する通知をお届けする場合があります
- ※お客様が通話中に不動産会社にお伝えになったお客様の個人情報及び、電話会社が発番する折り返し専用の電話番号は、お問合せ先不動産会社が資料送付・電子メール送信・電話連絡などの目的で保管する可能性があります。お問合せ先不動産会社が保管する個人情報の取扱いについては、各不動産会社に直接お問合せください
- ※株式会社LIFULLでは本サービスを円滑に運用するために、お客様の発信者番号をサービスご利用の控えとして一定期間保管いたします
- ※上記および株式会社LIFULLの個人情報の取扱い方針に同意のうえ、お電話ください
【LIFULL HOME'S物件番号】0140999-0237395【自社管理番号】21658-301-26
オンライン対応
オンライン内見・オンライン相談・IT重説に対応している物件です

「オンライン内見」「オンライン相談」「IT重説」とは?
物件の内見や不動産会社スタッフとの相談、契約前の重要事項説明をオンライン(ビデオ通話)で行うことができるサービスです。
オンライン内見
ビデオ通話で現地(物件)にいる不動産会社スタッフと映像・音声を使ってリアルタイムで会話しながら内見ができます。
オンライン相談
「物件について聞きたいことがある」など不動産会社スタッフへの相談もビデオ通話で行うことができます。
IT重説
契約前の重要事項説明(重説)をビデオ通話で行うことができます。
利用時の注意事項
- ビデオ通話については各不動産会社指定のものとなります。
- ビデオ通話利用時には通信が発生します。従量課金制通信サービスや通信量に上限があるネット回線・プランを利用する場合は、通信量にご注意ください。
- 通信速度やアプリの設定によってはビデオ通話の画質が低下することがあります。安定した画質で利用するためにも、Wi-Fi環境下での利用を推奨します。
- ご利用のビデオ通話アプリによっては、対象のOSやブラウザに制限がある場合があります。詳しくはお問合せ先不動産会社にご確認ください。
初期費用・月額費用をあわせて確認!この物件に住んだときの費用めやす
めやすを見るこの物件に住んだときの費用めやす
- 初期費用
- 月額費用
- 追加費用※ご確認ください
追加で費用が
かかる場合があります
必ずご確認ください
初期費用めやす約0円
追加で費用がかかります(※)敷金
0
- 礼金
0
賃料+共益費・管理費の1ヶ月分として換算
賃料の1ヶ月分+税として換算。不動産会社によって金額が異なるため正確な金額は不動産会社にお問合せください
※追加費用もチェック!
これらの項目以外にも費用がかかる場合があります。正確な金額は不動産会社にお問合せください。
- 初期費用
- 鍵交換費:不動産会社に要確認
- 室内清掃費:27,500円
- 火災保険費:不動産会社に要確認
- その他
- 水道代:2000円
- LIFE SUPPORT:1100円
- 害虫駆除費:19800円
- 保証会社
- 初回:月額賃料等の40%、月額:支払い手数料880円、更新時:月額賃料等の20%/2年
不動産会社より
大型バイク駐輪無料 カードキーにTVホンでセキュリティ面も安心。大型バイク無料
京都市北区 紫野エリアの1Kです。敷金、礼金、更新料ナシ。TVホンでセキュリティも安心です。コンビニ、スーパー、ドラッグストア、ホームセンターなど近くにあって便利ですよ。 物件情報はもちろん京都のエリア情報まで幅広く対応させていただきます!
- 保存する
- 共有する
- ※各種情報と現状に差異がある場合は、現状優先となります
- ※不動産会社が入力した情報を基に物件の位置を表示しています。詳しくは不動産会社までお問合せください
- ※不動産会社の方からの上記電話番号によるお問合せはお断りしております。こちら不動産会社詳細からお問合せください
- ※LIFULL HOME'Sは物件鮮度No.1を目指していきます。閲覧中の物件が「成約済である」「実際の物件情報と異なる点がある」などの場合、「掲載110番」からお問合せください
- ※QRコードは株式会社デンソーウェーブの登録商標です
LIFULL HOME'S 地図・周辺情報
買い物
- ファミリーマート 千本鞍馬口店
- シルク千本寺之内店
- ドラッグひかり千本今出川店
- ローソンストア100 千本寺之内店
- コープ きぬがさ
グルメ
- 焼肉酒家牛角衣笠店
- マクドナルド 金閣寺店
- はま寿司金閣寺店
- 松屋 立命館大前店
- 和食さと 平野神社店
育児・教育
- 白い鳩保育園
- 京都市立柏野小学校
- 京都市立嘉楽中学校
- 洛陽保育園
- 京都市立翔鸞小学校
医療
- 社会福祉法人京都社会事業財団西陣病院
- 医療法人相馬病院
- 社会福祉法人聖ヨゼフ会聖ヨゼフ医療福祉センター
- 社会医療法人西陣健康会堀川病院
- 医療法人愛智会京都北野病院
公共施設・郵便局
- 京都千本寺之内郵便局
- 京都市北図書館
- 京都府上京警察署
- 金閣寺郵便局
- 京都市中央図書館
公園
- 船岡山公園
- 大宮交通公園
- 土堂公園
- 梅屋広場公園
- 京都御苑
利用可能な駅
- すべての駅
京福電気鉄道北野線
- 北野白梅町駅徒歩15分
- 等持院・立命館大学衣笠キャンパス前駅徒歩26分
- 龍安寺駅徒歩30分
- 妙心寺駅徒歩35分
- 御室仁和寺駅徒歩37分
- 宇多野駅3.3km
京都市営烏丸線
- 鞍馬口駅徒歩26分
- 北大路駅徒歩32分
- 今出川駅徒歩33分
- 丸太町駅4km
JR山陰本線
- 円町駅徒歩31分
- 二条駅徒歩37分
- 花園駅3.5km
京都地下鉄東西線
- 西大路御池駅3.3km
- 二条城前駅3.6km
- 周辺情報は2023年07月21日時点のものになります。
- 周辺情報は、参考情報としてのみご利用ください(周辺情報は、株式会社LIFULLが地図情報の提供事業者から提供を受けた情報とLIFULL HOME'Sの物件情報に基づき、独自の方法で抽出し提供しているものです。周辺情報は、移転や閉鎖等により情報が最新ではない、または正しくない場合がありますが、地図情報の提供事業者から提供された情報をそのまま周辺情報として表示しているため、正確かつ最新の情報へ修正することができないことがあります。)
- 周辺情報は、株式会社LIFULLが掲載するものであり、不動産物件情報を掲載している不動産会社が掲載するものではありません
- 交通情報の一部については、株式会社LIFULLが掲載するものであり、不動産物件情報を掲載している不動産会社が掲載するものではない場合があります。交通情報に関する質問などは株式会社LIFULLにお問合せください









