LIFULL HOME'Sは物件鮮度No.1!※評価について
スワンズ京都五条大宮(4階/406/1K/21.66m²)
スワンズ京都五条大宮(4階/406/1K/21.66m²)
5.758万円/管理費等9,420円
2日前 更新
画像一覧
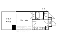
1/30間取り
間取
2/30外観
3/30外観
4/30リビング/ダイニング
5/30リビング/ダイニング
6/30リビング/ダイニング
7/30リビング/ダイニング
8/30キッチン
9/30キッチン
10/30キッチン
11/30キッチン
12/30浴室
13/30浴室
14/30トイレ
15/30洗面
16/30洗面
17/30収納
18/30収納
19/30設備
20/30設備
21/30設備
22/30設備
23/30設備
24/30玄関
25/30玄関
26/30バルコニー
27/30その他
28/30その他
・406号室からの眺望です
29/30その他
30/30周辺
マツモト五条店まで820m JR丹波口駅の東向かいにあるスーパー。営業時間午前9:00~午後11:00。
間取り
外観
外観
リビング/ダイニング
リビング/ダイニング
リビング/ダイニング
リビング/ダイニング
キッチン
キッチン
キッチン
キッチン
浴室
浴室
トイレ
洗面
洗面
収納
収納
設備
設備
設備
設備
設備
玄関
玄関
バルコニー
その他
その他
その他
周辺
LINEチャットでも 相談できます
お問合せ先 :株式会社京都ライフ 河原町四条店
1〜4月は引越しシーズンのピークです。お問合せはお早めに!
仲介手数料割引
京都ライフなら、ご成約時に仲介手数料が家賃の50%(外税)です。
- 利用条件
- 株式会社京都ライフ 河原町四条店で利用可
- 他特典との併用可
- .法人契約、事業用物件は除く .積水ハウス、大東建託の管理物件は除く
利用方法
来店時に本特典の画面をスマートフォンやタブレットでスタッフに提示、または画面印刷した用紙を提示ください。
有効期限 なし
ネット無料。分譲賃貸。 インターネット無料、分譲マンションリース
基本情報
不動産用語- 賃料
- 5.758万円
- 管理費等
- 9,420円
初期費用などお気軽にお問合せください
- 敷金/礼金
- 無/6.7万円
- 保証金/敷引・償却金
- -/-
- 交通
JR山陰本線 丹波口駅 徒歩9分
京都市営烏丸線 五条駅 徒歩14分
- 所在地
京都府京都市下京区大宮通五条下る1丁目堀之上町
地図を見る- 築年月
- 2010年11月(築16年)
- 主要採光面
- 東
- 専有面積
- 21.66㎡
- バルコニー面積
- -
- 所在階/階数
- 4階/7階建
入居可能日などお気軽にお問合せください
- 現況
- 賃貸中
- 入居可能時期
- 2026年05月 中旬

人気物件はすぐに埋まってしまいます。
気になったらお早めにお問合せください。
- 情報公開日
2026/03/02
44日前 公開
- 情報更新日
2026/04/13
2日前 更新
- 次回更新
予定日 - 2026/04/27
物件のこだわり/設備・条件
新築(非該当)
2階以上の物件(該当)
南向き(非該当)
駐車場(非該当)
オートロック(該当)
エアコン(該当)
バス・トイレ別(該当)
追焚機能(非該当)
フローリング(該当)
ペット相談(非該当)
入居条件
保証人不要キッチン/バス・トイレ
設備・サービス
オートロック、防犯カメラ、TVモニタ付インターホン、エアコン、シューズボックス、CS対応、BS対応、光ファイバー、インターネット使用料無料、公営水道、都市ガス、下水、フローリング、バルコニー、室内洗濯機置場、エレベーター、ゴミ出し24時間OK、宅配ボックス、駐輪場ありその他
分譲賃貸、住まい探し特典あり備考
高級賃貸マンション、スワンズの登場です。高級感のある室内デザイン、独立洗面台や2口システムキッチン、セキュリティー性も高く、女性の方も安心して生活いただける事でしょう。インターネットは無料ですので、ネット利用者におすすめです。 物件情報はもちろん京都のエリア情報まで幅広く対応させていただきます!
物件周辺の生活情報
買い物
- コンビニ(170m)
- スーパー(820m)
その他施設
- 公園(928m)
- 銀行(397m)
- スターバックスコーヒーリサーチパーク店(1,151m)
交通
- JR山陰本線 丹波口駅 徒歩9分
- 普通(停車)
- 快速とっとりライナー(通過)
- 快速通勤ライナー(通過)
- 快速(通過)
- 京都市営烏丸線 五条駅 徒歩14分
- 普通(停車)
- 急行(停車)
※急行等の停車駅情報について
急行等の停車駅に関するデータは、随時更新をしておりますが、最新の内容であることを保証するものではありません。
最新かつ正確な情報につきましては、各鉄道会社のウェブサイトにてご確認ください
物件周辺の口コミ
- 京都府京都市下京区西七条名倉町に住む人の口コミ20代女性
居心地の良さ、住みやすさでは満足している。もう少しオシャレな喫茶店が増えたり夜道を子供一人で歩けるぐらいの治安の良さがほしい。
口コミを見る
この物件周辺に住む人の口コミ
口コミは、LIFULL HOME'Sが実際にこの物件の周辺に住む18歳~69歳の男女を対象に、WEBアンケート調査を実施しています。内容には回答者の主観的な表現が含まれる場合があるほか、事実と異なる場合もございます。ご了承ください。
- 京都府京都市下京区西七条名倉町に住む人の口コミ20代女性
- 居心地の良さ、住みやすさでは満足している。もう少しオシャレな喫茶店が増えたり夜道を子供一人で歩けるぐらいの治安の良さがほしい。
- 京都府京都市下京区大宮通松原下る西側に住む人の口コミ30代男性
- 京都が好きだから。寺社と都会が程よく調和している。自然は少ないが、個人的には自然は特に評価対象ではないため。
- 京都府京都市中京区壬生賀陽御所町に住む人の口コミ30代男性
- 生活に必要なお店や公共交通機関が充実しており、住みやすい。お金がない若い世代の夫婦が住みやすい物件は少ないと思う。
- 京都府京都市右京区高辻通西大路西入に住む人の口コミ30代女性
- 駅から5分圏内に住んでいるが、北側駅前の飲み屋街を抜けると住宅街。南に行けば大型ショッピングモール、東に大学病院、西に児童館や公園。便利で住みやすいから。
- 京都府京都市下京区西七条西石ケ坪町に住む人の口コミ30代女性
- 買い物がしやすく、街にも出やすい。これと言った迷惑行為も目につかない。学校が近い。鉄道駅からはやや距離があるがバスが充実しており京都駅にも行きやすい。
- 京都府京都市下京区中堂寺壬生川町に住む人の口コミ20代女性
- 生活に必要なものは近くですぐに揃うし、営業時間も長く便利。近くには広い公園や交番、学校などがあり、活気や安心感もあるから。
- 京都府京都市中京区壬生森町に住む人の口コミ30代男性
- 基本的に都会なので、不便は無い。強いて言うなら高速がどこを使うにも遠い
- 京都府京都市下京区西七条比輪田町に住む人の口コミ30代女性
- 小学校や幼稚園、児童館など子育てがしやすい環境なので満足しています
- 京都府京都市中京区壬生西檜町に住む人の口コミ30代女性
- 自転車でどこでも行けるし、遅くまで飲めるお店がたくさんあるから
- 京都府京都市下京区西新屋敷中之町に住む人の口コミ20代女性
- スーパーやコンビニが近くにあるので便利。また、大きめの駐輪場が設備されているので嬉しい。
物件概要
- 建物構造
- RC(鉄筋コンクリート)
- 駐車場
- 無
- 総戸数
- 44戸
- 契約形態
- -
- 契約期間
- 2年間
- 更新料
- -
- その他費用
- 室内清掃費用:27,500円
- 保証会社
加入要
保証会社:日本セーフティー
保証会社利用料:初回:月額賃料等の50%、更新時:1万円/1年(賃料振替手数料として300円(税別)/月)
- 住宅保険
- 要
- 管理
- 管理員:巡回
- LIFULL HOME'S
物件番号 - 0140999-0236104
- 自社管理番号
- 24942-406-26
- 取引態様
- 仲介
- 会社名
- 株式会社京都ライフ 河原町四条店
営業スタッフコメント

株式会社京都ライフ 河原町四条店
田中宏樹
お客様満足度100%を目標にしております!
業界経験1年
資格少額短期保険募集人
- 会社実績や特徴・サービス情報
- 京都市のお部屋探しは「創業40年以上。老舗の京都ライフ」へおまかせ下さい。 その他非掲載物件も多数ございます。ぜひ自社HPもご覧ください。 「京都ライフ」で検索でOK。京都ライフでは仲介手数料は家賃の半月分です。
京都市のお部屋探しは「創業40年以上。老舗の京都ライフ」へおまかせ下さい。 その他非掲載物件も多数ございます。ぜひ自社HPもご覧ください。 「京都ライフ」で検索でOK。京都ライフでは仲介手数料は家賃の半月分です。
- 電話でお問合せ(通話無料)
お問合せ先 :株式会社京都ライフ 河原町四条店
不動産会社情報
株式会社京都ライフ 河原町四条店
京都府京都市中京区奈良屋町291-2 wise core BLD.1階
阪急京都本線 京都河原町駅 徒歩4分
- 営業時間
- 09:30~19:00
- 定休日
- 年中無休(盆正月を除く)
京都市の中心街である河原町エリアは、様々なお店で賑わう京都屈指の繁華街です。このエリアでのお部屋探しは京都ライフ河原町四条店へお任せください!
- 店舗の特徴
- 賃貸管理業務
- 24時間管理物件取扱い
- 引越し業者紹介可
- 年中無休
- 社宅・寮物件取扱い
- オンライン相談可
- 保証人不要な物件あり
- 法人契約取扱い
- 女性スタッフ対応可
- 19時以降も営業
電話でお問合せお客様の電話番号は不動産会社には通知されません
- 不動産会社に
つながります
お客様の電話番号は不動産会社に通知されません
- ※光IP電話、及びIP電話からはご利用になれません
- ※お電話によるお問合せは、店舗営業時間内にお願いします。つながらない場合は、お問合せフォームよりお問合せください
- ※不動産会社がお電話に出られなかった場合、お問合せいただいた後に不動産会社より折り返しのお電話がある場合がございます(お客様が非通知設定した場合は対象外です)
- ※株式会社LIFULLは電話会社が提供するサービスを介してお客様の発信者番号を受領後、折り返し専用の電話番号を発番してお問合せの不動産会社に通知します(お客様の発信者番号がお問合せの不動産会社に通知されることはございません)
- ※携帯電話からお問合せいただいた方に対し、株式会社LIFULLは電話会社が提供するメッセ―ジサービスを介してお客様の発信者番号を受領後、ショートメッセージ(SMS)またはLINE通知メッセージによるお問合せ内容に関する通知をお届けする場合があります
- ※お客様が通話中に不動産会社にお伝えになったお客様の個人情報及び、電話会社が発番する折り返し専用の電話番号は、お問合せ先不動産会社が資料送付・電子メール送信・電話連絡などの目的で保管する可能性があります。お問合せ先不動産会社が保管する個人情報の取扱いについては、各不動産会社に直接お問合せください
- ※株式会社LIFULLでは本サービスを円滑に運用するために、お客様の発信者番号をサービスご利用の控えとして一定期間保管いたします
- ※上記および株式会社LIFULLの個人情報の取扱い方針に同意のうえ、お電話ください
【LIFULL HOME'S物件番号】0140999-0236104【自社管理番号】24942-406-26
オンライン対応
オンライン相談に対応している物件です

「オンライン内見」「オンライン相談」「IT重説」とは?
物件の内見や不動産会社スタッフとの相談、契約前の重要事項説明をオンライン(ビデオ通話)で行うことができるサービスです。
オンライン内見
ビデオ通話で現地(物件)にいる不動産会社スタッフと映像・音声を使ってリアルタイムで会話しながら内見ができます。
オンライン相談
「物件について聞きたいことがある」など不動産会社スタッフへの相談もビデオ通話で行うことができます。
IT重説
契約前の重要事項説明(重説)をビデオ通話で行うことができます。
利用時の注意事項
- ビデオ通話については各不動産会社指定のものとなります。
- ビデオ通話利用時には通信が発生します。従量課金制通信サービスや通信量に上限があるネット回線・プランを利用する場合は、通信量にご注意ください。
- 通信速度やアプリの設定によってはビデオ通話の画質が低下することがあります。安定した画質で利用するためにも、Wi-Fi環境下での利用を推奨します。
- ご利用のビデオ通話アプリによっては、対象のOSやブラウザに制限がある場合があります。詳しくはお問合せ先不動産会社にご確認ください。
初期費用・月額費用をあわせて確認!この物件に住んだときの費用めやす
めやすを見るこの物件に住んだときの費用めやす
- 初期費用
- 月額費用
- 追加費用※ご確認ください
追加で費用が
かかる場合があります
必ずご確認ください
初期費用めやす約0円
追加で費用がかかります(※)敷金
0
- 礼金
67,000
賃料+共益費・管理費の1ヶ月分として換算
賃料の1ヶ月分+税として換算。不動産会社によって金額が異なるため正確な金額は不動産会社にお問合せください
※追加費用もチェック!
これらの項目以外にも費用がかかる場合があります。正確な金額は不動産会社にお問合せください。
- 初期費用
- 鍵交換費:不動産会社に要確認
- 室内清掃費:27,500円
- 火災保険費:不動産会社に要確認
- 保証会社
- 初回:月額賃料等の50%、更新時:1万円/1年(賃料振替手数料として300円(税別)/月)
不動産会社より
ネット無料。分譲賃貸。 インターネット無料、分譲マンションリース
高級賃貸マンション、スワンズの登場です。高級感のある室内デザイン、独立洗面台や2口システムキッチン、セキュリティー性も高く、女性の方も安心して生活いただける事でしょう。インターネットは無料ですので、ネット利用者におすすめです。 物件情報はもちろん京都のエリア情報まで幅広く対応させていただきます!
- 保存する
- 共有する
- ※各種情報と現状に差異がある場合は、現状優先となります
- ※不動産会社が入力した情報を基に物件の位置を表示しています。詳しくは不動産会社までお問合せください
- ※不動産会社の方からの上記電話番号によるお問合せはお断りしております。こちら不動産会社詳細からお問合せください
- ※LIFULL HOME'Sは物件鮮度No.1を目指していきます。閲覧中の物件が「成約済である」「実際の物件情報と異なる点がある」などの場合、「掲載110番」からお問合せください
- ※QRコードは株式会社デンソーウェーブの登録商標です
したい暮らしのタグから探す
LIFULL HOME'S 地図・周辺情報
買い物
- ファミリーマート 五条大宮店
- フレスコ 五条壬生川店
- ココカラファイン新町店
- ローソン 大宮五条店
- フレスコ 五条西洞院店
グルメ
- ロイヤルホスト 堀川五条店
- CoCo壱番屋 京都四条大宮店
- スシロー 五条七本松店
- モスバーガー 五条七本松店
- なか卯 七条新町店
育児・教育
- 下京ひかり保育園
- 京都市立下京雅小学校
- 私立龍谷大学付属平安中学校
- 五条愛児園
- 京都市立光徳小学校
医療
- 医療法人令寿会しまばら病院
- 木津屋橋武田病院
- 医療法人回生会京都回生病院
- 医療法人財団康生会武田病院
- 山元病院
公共施設・郵便局
- 京都島原郵便局
- 京都市下京図書館
- 京都市下京区役所
- 京都大宮松原郵便局
- 京都市南図書館
公園
- 光徳公園
- 梅小路公園
- 梅小路公園
- 唐橋西寺公園
- 東大丸公園
利用可能な駅
- 徒歩10分以内
JR山陰本線
- 丹波口駅徒歩9分
- すべての駅
京都市営烏丸線
- 五条駅徒歩14分
- 周辺情報は2023年07月21日時点のものになります。
- 周辺情報は、参考情報としてのみご利用ください(周辺情報は、株式会社LIFULLが地図情報の提供事業者から提供を受けた情報とLIFULL HOME'Sの物件情報に基づき、独自の方法で抽出し提供しているものです。周辺情報は、移転や閉鎖等により情報が最新ではない、または正しくない場合がありますが、地図情報の提供事業者から提供された情報をそのまま周辺情報として表示しているため、正確かつ最新の情報へ修正することができないことがあります。)
- 周辺情報は、株式会社LIFULLが掲載するものであり、不動産物件情報を掲載している不動産会社が掲載するものではありません
- 交通情報の一部については、株式会社LIFULLが掲載するものであり、不動産物件情報を掲載している不動産会社が掲載するものではない場合があります。交通情報に関する質問などは株式会社LIFULLにお問合せください













