LIFULL HOME'Sは物件鮮度No.1!※評価について
睦コーポ(2階/2DK/35m²)
睦コーポ(2階/2DK/35m²)
6.2万円/管理費等3,000円
2日前 更新
画像一覧
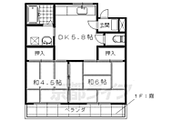
1/30間取り
間取
2/30外観
3/30外観
4/30外観
5/30外観
6/30リビング/ダイニング
ダイニングはテーブルがきちんと置ける広さです。
7/30リビング/ダイニング
お部屋は広く使えそうです。
8/30リビング/ダイニング
収納が大きいですよ。
9/30リビング/ダイニング
洗面所は入れ替えてあります。
10/30リビング/ダイニング
フローリングのお部屋は張り替えたところなので綺麗ですよ。
11/30リビング/ダイニング
2部屋繋げて使う事も出来ます。
12/30キッチン
窓付きキッチンで明るいですよ
13/30キッチン
キッチンは収納が充実しています
14/30浴室
お風呂に窓が付いていると換気がしやすいですよ。
15/30トイレ
ウォシュレット付きのトイレです
16/30収納
収納はそれぞれのお部屋にあります
17/30玄関
玄関には靴箱があります。
18/30バルコニー
1階のお部屋は庭つきです
19/30エントランス
20/30駐車場
21/30その他
22/30その他
23/30その他
24/30その他
25/30その他
26/30その他
27/30その他
28/30周辺
29/30周辺
コンビニまで307m
30/30周辺
小学校まで430m
間取り
外観
外観
外観
外観
リビング/ダイニング
リビング/ダイニング
リビング/ダイニング
リビング/ダイニング
リビング/ダイニング
リビング/ダイニング
キッチン
キッチン
浴室
トイレ
収納
玄関
バルコニー
エントランス
駐車場
その他
その他
その他
その他
その他
その他
その他
周辺
周辺
周辺
LINEチャットでも
相談できます
お問合せ先 :株式会社京都ライフ 河原町四条店
1〜4月は引越しシーズンのピークです。お問合せはお早めに!
仲介手数料割引
京都ライフなら、ご成約時に仲介手数料が家賃の50%(外税)です。
- 利用条件
- 株式会社京都ライフ 河原町四条店で利用可
- 他特典との併用可
- .法人契約、事業用物件は除く .積水ハウス、大東建託の管理物件は除く
利用方法
来店時に本特典の画面をスマートフォンやタブレットでスタッフに提示、または画面印刷した用紙を提示ください。
有効期限 なし
竹田駅近くです。 地下鉄・近鉄の両方が使えて便利な竹田駅が、徒歩圏内です。
物件のこだわり/設備・条件
新築(非該当)
2階以上の物件(該当)
南向き(該当)
駐車場あり(該当)
オートロック(非該当)
エアコン(非該当)
バス・トイレ別(該当)
追焚機能(該当)
フローリング(該当)
ペット相談(非該当)
位置
角部屋入居条件
二人入居可キッチン/バス・トイレ
設備・サービス
シューズボックス、CATV、インターネット対応、公営水道、都市ガス、下水、フローリング、室内洗濯機置場、駐車場あり、駐輪場ありその他
住まい探し特典あり備考
地下鉄・近鉄の両方が使えてとても便利な竹田駅が、徒歩圏内にあります。昭和61年築ですが、綺麗に改装されているので、築年数の割に綺麗なお部屋となっております。収納も充実いており、荷物の多い方でも大丈夫ですよ。是非一度ご覧下さいませ。京都の賃貸は京都ライフまでお待ちしております。ご質問、ご不明な点等がございましたらお気軽にお電... 物件情報はもちろん京都のエリア情報まで幅広く対応させていただきます!
物件周辺の生活情報
買い物
- コンビニ(419m)
- スーパー(1,000m)
その他施設
- 総合病院(1,900m)
- 銀行(642m)
- 京都竹田郵便局(282m)
交通
- 京都市営烏丸線 竹田駅 徒歩4分
- 普通(停車)
- 急行(停車)
- 近鉄京都線 竹田駅 徒歩4分
- 普通(停車)
- 準急(停車)
- 急行(停車)
※急行等の停車駅情報について
急行等の停車駅に関するデータは、随時更新をしておりますが、最新の内容であることを保証するものではありません。
最新かつ正確な情報につきましては、各鉄道会社のウェブサイトにてご確認ください
物件周辺の口コミ
- 京都府京都市伏見区深草西浦町8丁目に住む人の口コミ50代男性
公園がたくさんあり、近くに大学のキャンパスもあり、スーパーやコンビニも充実して利便性が良く住みやすい。ただファッション系の店舗が少ないのが難点。
口コミを見る
この物件周辺に住む人の口コミ
口コミは、LIFULL HOME'Sが実際にこの物件の周辺に住む18歳~69歳の男女を対象に、WEBアンケート調査を実施しています。内容には回答者の主観的な表現が含まれる場合があるほか、事実と異なる場合もございます。ご了承ください。
- 京都府京都市伏見区深草西浦町8丁目に住む人の口コミ50代男性
- 公園がたくさんあり、近くに大学のキャンパスもあり、スーパーやコンビニも充実して利便性が良く住みやすい。ただファッション系の店舗が少ないのが難点。
- 京都府京都市伏見区竹田七瀬川町に住む人の口コミ30代女性
- 交通の便がとてもよく、スーパーもたくさんあり買い物がしやすい。学校も近く通学もしやすい。少し離れると歴史的な建物や場所もたくさんある。
- 京都府京都市伏見区竹田田中宮町に住む人の口コミ30代女性
- 行きたい美容院などが近く無いので、不便なのと道が危ない所が多い
- 京都府京都市伏見区竹田西内畑町に住む人の口コミ40代男性
- もう少し大きなスーパーがあれば便利だが、静けさを維持するためには程よいから
- 京都府京都市伏見区竹田桶ノ井町に住む人の口コミ50代男性
- 交通の便は良いが、買い物はコンビニが徒歩5分以上、スーパーが10分以上かかる点がやや、難である。
- 京都府京都市伏見区竹田久保町に住む人の口コミ40代女性
- スーパーやホームセンター、ドラッグストアが揃っていて、買い物に便利。
- 京都府京都市伏見区中島河原田町に住む人の口コミ60代男性
- マンション周辺が、緑地公園で鴨川も流れていて、野鳥のさえずりが心を癒してくれます。
- 京都府京都市伏見区竹田桶ノ井町に住む人の口コミ30代女性
- 四条や京都駅ほどはオシャレなお店はないけど、電車でわりとすぐ行ける。食品や日用品などは近くでそろえられるし、それ以外も特に困ったことはないから。
- 京都府京都市伏見区竹田三ツ杭町に住む人の口コミ40代女性
- 交通の利便性がよい。車や電車、自転車等ですぐに京都駅まで行ける立地であるにもかかわらず、周辺には畑や神社等もあり、自然も感じられるので、とても満足しています。
- 京都府京都市南区上鳥羽八王神町に住む人の口コミ40代女性
- 交通の便は悪いが、車や自転車があれば近隣にスーパーもあるし、遠くに行かなくてもある程度揃う。ファミリー層が多く、公園も近くにいくつかあるので住み心地がいい。
物件概要
- 建物構造
- 鉄骨造
- 駐車場
- 空有 16,500円(税込)
- 総戸数
- 8戸
- 契約形態
- -
- 契約期間
- 2年間
- 更新料
- -
- その他費用
- -
- 保証会社
加入要
保証会社:全保連
保証会社利用料:初回:月額賃料等の50%、更新時:1.3万円/1年
- 住宅保険
- 要
- 管理
- -
- LIFULL HOME'S
物件番号 - 0140999-0235489
- 自社管理番号
- 46717-205-26
- 取引態様
- 仲介
- 会社名
- 株式会社京都ライフ 河原町四条店
営業スタッフコメント

株式会社京都ライフ 河原町四条店
田中宏樹
お客様満足度100%を目標にしております!
業界経験1年
資格少額短期保険募集人
- 会社実績や特徴・サービス情報
- 京都市のお部屋探しは「創業40年以上。老舗の京都ライフ」へおまかせ下さい。 その他非掲載物件も多数ございます。ぜひ自社HPもご覧ください。 「京都ライフ」で検索でOK。京都ライフでは仲介手数料は家賃の半月分です。
京都市のお部屋探しは「創業40年以上。老舗の京都ライフ」へおまかせ下さい。 その他非掲載物件も多数ございます。ぜひ自社HPもご覧ください。 「京都ライフ」で検索でOK。京都ライフでは仲介手数料は家賃の半月分です。
- 電話でお問合せ(通話無料)
お問合せ先 :株式会社京都ライフ 河原町四条店
不動産会社情報
株式会社京都ライフ 河原町四条店
京都府京都市中京区奈良屋町291-2 wise core BLD.1階
阪急京都本線 京都河原町駅 徒歩4分
- 営業時間
- 09:30~19:00
- 定休日
- 年中無休(盆正月を除く)
京都市の中心街である河原町エリアは、様々なお店で賑わう京都屈指の繁華街です。このエリアでのお部屋探しは京都ライフ河原町四条店へお任せください!
- 店舗の特徴
- 賃貸管理業務
- 24時間管理物件取扱い
- 引越し業者紹介可
- 年中無休
- 社宅・寮物件取扱い
- オンライン相談可
- 保証人不要な物件あり
- 法人契約取扱い
- 女性スタッフ対応可
- 19時以降も営業
電話でお問合せお客様の電話番号は不動産会社には通知されません
- 不動産会社に
つながります
お客様の電話番号は不動産会社に通知されません
- ※光IP電話、及びIP電話からはご利用になれません
- ※お電話によるお問合せは、店舗営業時間内にお願いします。つながらない場合は、お問合せフォームよりお問合せください
- ※不動産会社がお電話に出られなかった場合、お問合せいただいた後に不動産会社より折り返しのお電話がある場合がございます(お客様が非通知設定した場合は対象外です)
- ※株式会社LIFULLは電話会社が提供するサービスを介してお客様の発信者番号を受領後、折り返し専用の電話番号を発番してお問合せの不動産会社に通知します(お客様の発信者番号がお問合せの不動産会社に通知されることはございません)
- ※携帯電話からお問合せいただいた方に対し、株式会社LIFULLは電話会社が提供するメッセ―ジサービスを介してお客様の発信者番号を受領後、ショートメッセージ(SMS)またはLINE通知メッセージによるお問合せ内容に関する通知をお届けする場合があります
- ※お客様が通話中に不動産会社にお伝えになったお客様の個人情報及び、電話会社が発番する折り返し専用の電話番号は、お問合せ先不動産会社が資料送付・電子メール送信・電話連絡などの目的で保管する可能性があります。お問合せ先不動産会社が保管する個人情報の取扱いについては、各不動産会社に直接お問合せください
- ※株式会社LIFULLでは本サービスを円滑に運用するために、お客様の発信者番号をサービスご利用の控えとして一定期間保管いたします
- ※上記および株式会社LIFULLの個人情報の取扱い方針に同意のうえ、お電話ください
【LIFULL HOME'S物件番号】0140999-0235489【自社管理番号】46717-205-26
オンライン対応
オンライン相談に対応している物件です

「オンライン内見」「オンライン相談」「IT重説」とは?
物件の内見や不動産会社スタッフとの相談、契約前の重要事項説明をオンライン(ビデオ通話)で行うことができるサービスです。
オンライン内見
ビデオ通話で現地(物件)にいる不動産会社スタッフと映像・音声を使ってリアルタイムで会話しながら内見ができます。
オンライン相談
「物件について聞きたいことがある」など不動産会社スタッフへの相談もビデオ通話で行うことができます。
IT重説
契約前の重要事項説明(重説)をビデオ通話で行うことができます。
利用時の注意事項
- ビデオ通話については各不動産会社指定のものとなります。
- ビデオ通話利用時には通信が発生します。従量課金制通信サービスや通信量に上限があるネット回線・プランを利用する場合は、通信量にご注意ください。
- 通信速度やアプリの設定によってはビデオ通話の画質が低下することがあります。安定した画質で利用するためにも、Wi-Fi環境下での利用を推奨します。
- ご利用のビデオ通話アプリによっては、対象のOSやブラウザに制限がある場合があります。詳しくはお問合せ先不動産会社にご確認ください。
初期費用・月額費用をあわせて確認!この物件に住んだときの費用めやす
めやすを見るこの物件に住んだときの費用めやす
- 初期費用
- 月額費用
- 追加費用※ご確認ください
追加で費用が
かかる場合があります
必ずご確認ください
初期費用めやす約0円
追加で費用がかかります(※)敷金
0
- 礼金
0
- 保証金
100,000
賃料+共益費・管理費の1ヶ月分として換算
賃料の1ヶ月分+税として換算。不動産会社によって金額が異なるため正確な金額は不動産会社にお問合せください
※追加費用もチェック!
これらの項目以外にも費用がかかる場合があります。正確な金額は不動産会社にお問合せください。
- 初期費用
- 鍵交換費:不動産会社に要確認
- 室内清掃費:不動産会社に要確認
- 火災保険費:不動産会社に要確認
- 月額費用
- 駐車場費:16,500円(税込)※契約任意
- 保証会社
- 初回:月額賃料等の50%、更新時:1.3万円/1年
不動産会社より
竹田駅近くです。 地下鉄・近鉄の両方が使えて便利な竹田駅が、徒歩圏内です。
地下鉄・近鉄の両方が使えてとても便利な竹田駅が、徒歩圏内にあります。昭和61年築ですが、綺麗に改装されているので、築年数の割に綺麗なお部屋となっております。収納も充実いており、荷物の多い方でも大丈夫ですよ。是非一度ご覧下さいませ。京都の賃貸は京都ライフまでお待ちしております。ご質問、ご不明な点等がございましたらお気軽にお電... 物件情報はもちろん京都のエリア情報まで幅広く対応させていただきます!
- 保存する
- 共有する
- ※各種情報と現状に差異がある場合は、現状優先となります
- ※不動産会社が入力した情報を基に物件の位置を表示しています。詳しくは不動産会社までお問合せください
- ※不動産会社の方からの上記電話番号によるお問合せはお断りしております。こちら不動産会社詳細からお問合せください
- ※LIFULL HOME'Sは物件鮮度No.1を目指していきます。閲覧中の物件が「成約済である」「実際の物件情報と異なる点がある」などの場合、「掲載110番」からお問合せください
- ※QRコードは株式会社デンソーウェーブの登録商標です
したい暮らしのタグから探す
LIFULL HOME'S 地図・周辺情報
買い物
- セブンイレブン 京都竹田西内畑町店
- FLET’S竹田店
- ダックス伏見新堀川店
- ファミリーマート 竹田駅前店
- フレスコ 竹田店
グルメ
- 和食さと 竹田店
- にぎり長次郎 竹田店
- マクドナルド 1号線上鳥羽店
- 吉野家 1号線京都南インター店
- 餃子の王将 上鳥羽店
育児・教育
- 京都市立竹田幼稚園
- 京都市立竹田小学校
- 京都市立藤森中学校
- モーツァルトしずかこども園
- 京都市立上鳥羽小学校
医療
- 医療法人五木田病院介護医療院
- 医療法人清水会京都リハビリテーション病院
- 社会医療法人岡本病院(財団)伏見岡本病院
- 独立行政法人国立病院機構京都医療センター
- 医療法人社団育生会京都久野病院
公共施設・郵便局
- 京都竹田郵便局
- 京都市吉祥院図書館
- 京都市伏見区役所深草支所
- 京都小久保郵便局
- 京都市伏見中央図書館
公園
- 竹田公園
- 深草西浦南公園
- 鳥羽離宮跡公園
- 東向公園
- 下鳥羽公園
利用可能な駅
- 徒歩10分以内
京都市営烏丸線
- 竹田駅徒歩4分
近鉄京都線
- 竹田駅徒歩4分
- すべての駅
京都市営烏丸線
- くいな橋駅徒歩15分
- 十条駅徒歩29分
- 九条駅3.2km
近鉄京都線
- 上鳥羽口駅徒歩17分
- 伏見駅徒歩21分
- 十条駅徒歩30分
- 近鉄丹波橋駅徒歩37分
- 東寺駅3.1km
- 桃山御陵前駅3.5km
京阪本線
- 藤森駅徒歩25分
- 墨染駅徒歩27分
- 龍谷大前深草駅徒歩31分
- 丹波橋駅徒歩35分
- 伏見稲荷駅徒歩36分
- 鳥羽街道駅3.2km
- 伏見桃山駅3.4km
JR奈良線
- JR藤森駅徒歩35分
- 稲荷駅徒歩36分
- 桃山駅3.8km
- 周辺情報は2023年07月21日時点のものになります。
- 周辺情報は、参考情報としてのみご利用ください(周辺情報は、株式会社LIFULLが地図情報の提供事業者から提供を受けた情報とLIFULL HOME'Sの物件情報に基づき、独自の方法で抽出し提供しているものです。周辺情報は、移転や閉鎖等により情報が最新ではない、または正しくない場合がありますが、地図情報の提供事業者から提供された情報をそのまま周辺情報として表示しているため、正確かつ最新の情報へ修正することができないことがあります。)
- 周辺情報は、株式会社LIFULLが掲載するものであり、不動産物件情報を掲載している不動産会社が掲載するものではありません
- 交通情報の一部については、株式会社LIFULLが掲載するものであり、不動産物件情報を掲載している不動産会社が掲載するものではない場合があります。交通情報に関する質問などは株式会社LIFULLにお問合せください















