LIFULL HOME'Sは物件鮮度No.1!※評価について
グリーンヴィラ上関B1(3階/302/ワンルーム/27.72m²)
グリーンヴィラ上関B1(3階/302/ワンルーム/27.72m²)
3.5万円/管理費等3,000円
6時間前 更新
画像一覧
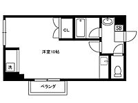
1/18間取り
2/18外観
3/18リビング/ダイニング
洋室10帖。照明付き
4/18キッチン
5/18浴室
6/18トイレ
洗浄暖房便座付き
7/18洗面
独立洗面台あり
8/18収納
9/18設備
エアコン付き
10/18玄関
大容量のミラー付きシューズボックスあり
11/18その他
12/18その他
カラーTVモニターホン付き
13/18その他
洗濯機置場
14/18周辺
サンコー京田店(1000m)
15/18周辺
クスリのアオキ京田店(1000m)
16/18周辺
新高岡駅(900m)
17/18周辺
済生会高岡病院(1700m)
18/18周辺
イオンモール高岡(1600m)
間取り
外観
リビング/ダイニング
キッチン
浴室
トイレ
洗面
収納
設備
玄関
その他
その他
その他
周辺
周辺
周辺
周辺
周辺
LINEチャットでも
相談できます
お問合せ先 :株式会社高岡不動産センター
1〜4月は引越しシーズンのピークです。お問合せはお早めに!
引越し料金割引
提携引越し業者を基本料金割引価格にてご紹介させていただきます!
- 利用条件
- 株式会社高岡不動産センターで利用可
- 他特典との併用はできませんので、ご注意ください。
利用方法
来店時に本特典の画面をスマートフォンやタブレットでスタッフに提示、または画面印刷した用紙を提示ください。
有効期限 なし
エアコン、照明付き、独立洗面台あり・インターネット無料!融雪付き駐車場♪南向きで日当たり良好です。
基本情報
不動産用語- 賃料
- 3.5万円
- 管理費等
- 3,000円
初期費用などお気軽にお問合せください
- 敷金/礼金
- 無/無
- 保証金/敷引・償却金
- -/-
- 交通
JR城端線 新高岡駅 徒歩13分
あいの風とやま鉄道 高岡駅 徒歩20分
- 所在地
富山県高岡市上関町723-1
地図を見る- 築年月
- 1991年11月(築35年)
- 主要採光面
- 南
- 専有面積
- 27.72㎡
- バルコニー面積
- -
- 所在階/階数
- 3階/3階建
入居可能日などお気軽にお問合せください
- 現況
- 居住中
- 入居可能時期
- 相談

人気物件はすぐに埋まってしまいます。
気になったらお早めにお問合せください。
- 情報公開日
2026/02/04
31日前 公開
- 情報更新日
2026/03/07
6時間前 更新
- 次回更新
予定日 - 2026/03/14
物件のこだわり/設備・条件
新築(非該当)
2階以上の物件(該当)
南向き(該当)
駐車場あり(該当)
オートロック(非該当)
エアコン(該当)
バス・トイレ別(該当)
追焚機能(非該当)
フローリング(該当)
ペット相談(非該当)
入居条件
事務所不可、ペット不可、フリーレント1ヶ月(入居月家賃サービス☆)、保証人不要キッチン/バス・トイレ
設備・サービス
TVモニタ付インターホン、エアコン、クローゼット、シューズボックス、インターネット使用料無料、公営水道、プロパンガス、下水、フローリング、バルコニー、室内洗濯機置場、照明器具付き、南面バルコニー、ゴミ出し24時間OK、駐車場ありその他
家賃カード決済可、リフォーム物件、住まい探し特典あり備考
★初期費用は5万円+次月分家賃のみ★※1年未満の解約は1か月分の違約金が発生します。
リフォーム
- 備考
2024/01 床張り替え
物件周辺の生活情報
買い物
- スーパー(1,000m)
- ドラッグストア(1,000m)
その他施設
- 総合病院(1,700m)
- 新高岡駅(900m)
交通
- あいの風とやま鉄道 高岡駅 徒歩20分
- 普通(停車)
- JR城端線 新高岡駅 徒歩13分
- 普通(停車)
※急行等の停車駅情報について
急行等の停車駅に関するデータは、随時更新をしておりますが、最新の内容であることを保証するものではありません。
最新かつ正確な情報につきましては、各鉄道会社のウェブサイトにてご確認ください
物件概要
- 建物構造
- 鉄骨造
- 駐車場
- 空有 3,300円
- 総戸数
- 14戸
- 契約形態
- -
- 契約期間
- 2年間
- 更新料
- -
- その他費用
- 月額保証料:421円、火災保険:1,000円、安心入居サポート:880円
- 保証会社
加入要
保証会社:オリコフォレントインシュア
保証会社利用料:※初回保証料は5万円キャンペーンに含まれます。月額1%、更新料なし
- 住宅保険
- 要
- 管理
- -
- LIFULL HOME'S
物件番号 - 0138730-0001101
- 自社管理番号
- 1114092455120000000389
- 取引態様
- 一般媒介★
- 会社名
- 株式会社高岡不動産センター
営業スタッフコメント

株式会社高岡不動産センター
株式会社高岡不動産センター
お部屋探しお手伝いします!
業界経験7年
- 会社実績や特徴・サービス情報
- より安心で快適な住まい探しをしていただけるように、しっかりサポートさせていただきます!どうぞお気軽にお問い合わせ、ご来店ください。
より安心で快適な住まい探しをしていただけるように、しっかりサポートさせていただきます!どうぞお気軽にお問い合わせ、ご来店ください。
- 電話でお問合せ(通話無料)
お問合せ先 :株式会社高岡不動産センター
不動産会社情報
株式会社高岡不動産センター

富山県高岡市清水町3丁目3-63
あいの風とやま鉄道 高岡駅 徒歩20分
- 営業時間
- 09:30~18:00
- 定休日
- 日曜・祝日 年末年始
- 担当者
- (株)高岡不動産センター事務所
優良店認定
高岡市・砺波市・小矢部市など、人気エリアの賃貸物件を数多くご紹介しております。お気軽にご相談ください!
- 店舗の特徴
- 引越し業者紹介可
- 保証人不要な物件あり
- 法人契約取扱い
- 女性スタッフ対応可
電話でお問合せお客様の電話番号は不動産会社には通知されません
- 不動産会社に
つながります
お客様の電話番号は不動産会社に通知されません
- ※光IP電話、及びIP電話からはご利用になれません
- ※お電話によるお問合せは、店舗営業時間内にお願いします。つながらない場合は、お問合せフォームよりお問合せください
- ※不動産会社がお電話に出られなかった場合、お問合せいただいた後に不動産会社より折り返しのお電話がある場合がございます(お客様が非通知設定した場合は対象外です)
- ※株式会社LIFULLは電話会社が提供するサービスを介してお客様の発信者番号を受領後、折り返し専用の電話番号を発番してお問合せの不動産会社に通知します(お客様の発信者番号がお問合せの不動産会社に通知されることはございません)
- ※携帯電話からお問合せいただいた方に対し、株式会社LIFULLは電話会社が提供するメッセ―ジサービスを介してお客様の発信者番号を受領後、ショートメッセージ(SMS)またはLINE通知メッセージによるお問合せ内容に関する通知をお届けする場合があります
- ※お客様が通話中に不動産会社にお伝えになったお客様の個人情報及び、電話会社が発番する折り返し専用の電話番号は、お問合せ先不動産会社が資料送付・電子メール送信・電話連絡などの目的で保管する可能性があります。お問合せ先不動産会社が保管する個人情報の取扱いについては、各不動産会社に直接お問合せください
- ※株式会社LIFULLでは本サービスを円滑に運用するために、お客様の発信者番号をサービスご利用の控えとして一定期間保管いたします
- ※上記および株式会社LIFULLの個人情報の取扱い方針に同意のうえ、お電話ください
【LIFULL HOME'S物件番号】0138730-0001101【自社管理番号】1114092455120000000389
- 保存する
- 共有する
- ※各種情報と現状に差異がある場合は、現状優先となります
- ※不動産会社が入力した情報を基に物件の位置を表示しています。詳しくは不動産会社までお問合せください
- ※不動産会社の方からの上記電話番号によるお問合せはお断りしております。こちら不動産会社詳細からお問合せください
- ※LIFULL HOME'Sは物件鮮度No.1を目指していきます。閲覧中の物件が「成約済である」「実際の物件情報と異なる点がある」などの場合、「掲載110番」からお問合せください
- ※QRコードは株式会社デンソーウェーブの登録商標です
したい暮らしのタグから探す
LIFULL HOME'S 地図・周辺情報
買い物
- セブンイレブン おみやげ処高岡店
- サンコー 京田店
- V・drug高岡京田店
- ファミリーマート 高岡卸売市場前店
- ダイソーイオンモール高岡店
グルメ
- 焼肉酒家牛角高岡駅南店
- モスバーガー 高岡南店
- ガスト 高岡木津新店(から好し取扱店)
- すき家 高岡南店
- 天麩羅えびのや高岡赤祖父店
育児・教育
- さくら保育園
- 高岡市立下関小学校
- 高岡市立南星中学校
- 上関保育園
- 高岡市立博労小学校
医療
- 社会福祉法人恩賜財団済生会富山県済生会高岡病院
- 医療法人社団整志会沢田記念高岡整志会病院
- 明心会柴田病院
- 医療法人社団あずさ会駅南あずさ病院
- 富山県厚生農業協同組合連合会高岡病院
公共施設・郵便局
- 高岡駅南郵便局
- 高岡市立中央図書館
- 高岡警察署
- 高岡芳野郵便局
- (財)眉丈文庫
公園
- おとぎの森公園
- 前田公園
- 高岡古城公園
- 大坪公園
利用可能な駅
- すべての駅
JR城端線
- 新高岡駅徒歩13分
あいの風とやま鉄道
- 高岡駅徒歩20分
- 周辺情報は2023年07月21日時点のものになります。
- 周辺情報は、参考情報としてのみご利用ください(周辺情報は、株式会社LIFULLが地図情報の提供事業者から提供を受けた情報とLIFULL HOME'Sの物件情報に基づき、独自の方法で抽出し提供しているものです。周辺情報は、移転や閉鎖等により情報が最新ではない、または正しくない場合がありますが、地図情報の提供事業者から提供された情報をそのまま周辺情報として表示しているため、正確かつ最新の情報へ修正することができないことがあります。)
- 周辺情報は、株式会社LIFULLが掲載するものであり、不動産物件情報を掲載している不動産会社が掲載するものではありません
- 交通情報の一部については、株式会社LIFULLが掲載するものであり、不動産物件情報を掲載している不動産会社が掲載するものではない場合があります。交通情報に関する質問などは株式会社LIFULLにお問合せください







