LIFULL HOME'Sは物件鮮度No.1!※評価について
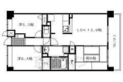
グランK’s−ジオ(4階/3LDK/64.98m²)
グランK’s−ジオ(4階/3LDK/64.98m²)
8.5万円/管理費等8,000円
2日前 更新
画像一覧
1/30間取り
間取
2/30外観
3/30外観
4/30リビング/ダイニング
12.9帖の広々リビングです
5/30リビング/ダイニング
明るく日当たりの良い和室です
6/30リビング/ダイニング
5.3帖の洋室です
7/30リビング/ダイニング
6.5帖の洋室です
8/30リビング/ダイニング
6.5帖の洋室です
9/30リビング/ダイニング
5.3帖の洋室です
10/30リビング/ダイニング
12.9帖の明るいリビングです
11/30リビング/ダイニング
12.9帖の広々リビングです
12/30リビング/ダイニング
明るい和室です
13/30キッチン
オシャレで調理スペースも広いキッチンです
14/30キッチン
オシャレなカウンターキッチンです
15/30浴室
オシャレで高級感のあるお風呂です
16/30トイレ
清潔感のあるトイレです
17/30洗面
清潔感のある洗面所です
18/30収納
収納力のあるシューズボックスです
19/30収納
6.5帖洋室の収納です
20/30収納
5.3帖洋室の収納です
21/30収納
和室の広々収納です
22/30設備
独立洗面台です
23/30設備
洗濯機置き場と棚です
24/30設備
浴室乾燥機です
25/30設備
インターフォン受話器です
26/30玄関
広く、段差も低い玄関です
27/30バルコニー
日当たり良好のバルコニーです
28/30その他
バルコニーからの風景です
29/30その他
玄関から見た長い廊下です
30/30周辺
セブンイレブン宇治伊勢田中山店まで88m
間取り
外観
外観
リビング/ダイニング
リビング/ダイニング
リビング/ダイニング
リビング/ダイニング
リビング/ダイニング
リビング/ダイニング
リビング/ダイニング
リビング/ダイニング
リビング/ダイニング
キッチン
キッチン
浴室
トイレ
洗面
収納
収納
収納
収納
設備
設備
設備
設備
玄関
バルコニー
その他
その他
周辺
LINEチャットでも 相談できます
お問合せ先 :株式会社京都ライフ 伏見桃山店
1〜4月は引越しシーズンのピークです。お問合せはお早めに!
住まい探し特典内容
仲介手数料が家賃の半月分(消費税)です。
- 利用条件
- 株式会社京都ライフ 伏見桃山店で利用可
- 他特典との併用可
- 法人様契約、事業用物件は対象外です。積水ハウス、大東建託の管理物件は除く。
利用方法
来店時に本特典の画面をスマートフォンやタブレットでスタッフに提示、または画面印刷した用紙を提示ください。
有効期限 なし
エントランスからもう既に一級品の風格が漂ってきます。
物件のこだわり/設備・条件
新築(非該当)
2階以上の物件(該当)
南向き(非該当)
駐車場あり(該当)
オートロック(該当)
エアコン(該当)
バス・トイレ別(該当)
追焚機能(該当)
フローリング(該当)
ペット相談(非該当)
入居条件
二人入居可キッチン/バス・トイレ
設備・サービス
オートロック、TVモニタ付インターホン、エアコン、シューズボックス、BS対応、光ファイバー、公営水道、都市ガス、下水、フローリング、バルコニー、室内洗濯機置場、エレベーター、宅配ボックス、駐車場あり、駐輪場ありその他
住まい探し特典あり備考
近鉄京都線伊勢田駅まで徒歩5分です。スーパーが多い地域になりますのでお買い物の心配はなく入居頂けると考えております。宇治・城陽エリアで対抗できるマンションは他に無いと言えるぐらいのマンションとなっております まさに伊勢田の王様と言えるかも知れませんね。 物件情報はもちろん京都のエリア情報まで幅広く対応させていただきます!
物件周辺の生活情報
学校
- 伊勢田小学校(380m)
買い物
- コンビニ(88m)
- スーパー(779m)
- ドラッグストア(350m)
その他施設
- 総合病院(3,700m)
- 銀行(342m)
- コーナンPRO宇治大久保店(1,300m)
交通
- 近鉄京都線 伊勢田駅 徒歩5分
- 普通(停車)
- 準急(停車)
- 急行(通過)
- 近鉄京都線 小倉駅 徒歩14分
- 普通(停車)
- 準急(停車)
- 急行(通過)
※急行等の停車駅情報について
急行等の停車駅に関するデータは、随時更新をしておりますが、最新の内容であることを保証するものではありません。
最新かつ正確な情報につきましては、各鉄道会社のウェブサイトにてご確認ください
物件周辺の口コミ
- 京都府宇治市伊勢田町に住む人の口コミ50代女性
スーパーなどの買い物がとても充実している。ただし衣料品やホームセンターなどはないので食料品以外のものは買い物がしにくい。
口コミを見る
この物件周辺に住む人の口コミ
口コミは、LIFULL HOME'Sが実際にこの物件の周辺に住む18歳~69歳の男女を対象に、WEBアンケート調査を実施しています。内容には回答者の主観的な表現が含まれる場合があるほか、事実と異なる場合もございます。ご了承ください。
- 京都府宇治市伊勢田町に住む人の口コミ50代女性
- スーパーなどの買い物がとても充実している。ただし衣料品やホームセンターなどはないので食料品以外のものは買い物がしにくい。
- 京都府宇治市伊勢田町に住む人の口コミ40代女性
- 近所にスーパーが3軒あり、ドラッグストアも3軒あり、コンビニもあり買い物はとても便利だが、飲食店が少ない為。
- 京都府宇治市伊勢田町に住む人の口コミ40代女性
- 治安がよく自然も多い 警備もしっかりしていて コロナ禍で公園には手洗い場も新しく設置されるなど 対応が早い
- 京都府宇治市伊勢田町に住む人の口コミ60代女性
- 食料品の買い物や医院も多い。二つの鉄道が使える。ホームセンターや服とかを買うお店馬ない。
- 京都府宇治市伊勢田町に住む人の口コミ30代女性
- スーパーが複数あるため、買い物に困らないのと、いろいろな病院が近いため、体調不良の際も困らない。
- 京都府宇治市伊勢田町に住む人の口コミ60代女性
- 郊外で、自然が豊かで、近くに小さいスーパーがあり、年配の物でも買いやすく価格も安い。
- 京都府宇治市伊勢田町に住む人の口コミ30代女性
- 交通もべんりで、車も電車もつかいやすい。スーパーやコンビニも多くて、買い物も便利。郊外だから、うるさくもないけど、夜は暗め。
- 京都府宇治市伊勢田町に住む人の口コミ30代男性
- スーパーもドラッグストアも近い。遊びに行くところはないけど、それなりにいい。
- 京都府宇治市伊勢田町に住む人の口コミ40代男性
- 治安も悪くないし、スーパーも多い。車がなくても生活は可能なところがいい。
- 京都府宇治市伊勢田町に住む人の口コミ30代女性
- 買い物などのスーパーや薬局、コンビニなども多いので便利。病院も多いので不便は少ない。電車も通っており、市内に出るにもべんりだから。
物件概要
- 建物構造
- RC(鉄筋コンクリート)
- 駐車場
- 空有 10,000円(税込) 駐車料金:10000円〜12000円
- 総戸数
- 70戸
- 契約形態
- -
- 契約期間
- 2年間
- 更新料
- -
- その他費用
- 室内清掃費用:55,000円、退去時事務手数料:11,000円、害虫駆除費:22,000円、ファイテック:4,950円
- 保証会社
加入要
保証会社:日本セーフティー
保証会社利用料:初回:月額賃料等の50%、月額:800円+330円
- 住宅保険
- 要
- 管理
- 管理員:巡回
- LIFULL HOME'S
物件番号 - 0138141-0177443
- 自社管理番号
- 26264-411-25
- 取引態様
- 仲介
- 会社名
- 株式会社京都ライフ 伏見桃山店
営業スタッフコメント

株式会社京都ライフ 伏見桃山店
奥田光貴
全力でサポート致します。
業界経験5年
- スタッフ情報
- 京都の賃貸は京都ライフまでお待ちしております。 伏見桃山に新店を出させて頂きました。新しいお店でお待ちしております。 ご質問、ご不明な点等がございましたらお気軽にお電話、メールにてお問い合わせくださいませ。
京都の賃貸は京都ライフまでお待ちしております。 伏見桃山に新店を出させて頂きました。新しいお店でお待ちしております。 ご質問、ご不明な点等がございましたらお気軽にお電話、メールにてお問い合わせくださいませ。
- 電話でお問合せ(通話無料)
お問合せ先 :株式会社京都ライフ 伏見桃山店
不動産会社情報
株式会社京都ライフ 伏見桃山店
京都府京都市伏見区観音寺町215-1 CONNECT桃山2F
近鉄京都線 桃山御陵前駅 徒歩1分
- 営業時間
- 09:30~19:00
- 定休日
- 年中無休(盆正月を除く)
桃山御陵前駅降りればスグ!人口の多い伏見区、沿線の多い伏見区、大阪へも出易い伏見区でお探しの方へ! もちろん京都市内どこでもご案内致します。全力でお部屋探しをサポートさせて頂きます!
- 店舗の特徴
- 賃貸管理業務
- 24時間管理物件取扱い
- リフォーム対応
- 引越し業者紹介可
- 年中無休
- 社宅・寮物件取扱い
- オンライン相談可
- 保証人不要な物件あり
- 法人契約取扱い
- 駅から歩いて3分以内
電話でお問合せお客様の電話番号は不動産会社には通知されません
- 不動産会社に
つながります
お客様の電話番号は不動産会社に通知されません
- ※光IP電話、及びIP電話からはご利用になれません
- ※お電話によるお問合せは、店舗営業時間内にお願いします。つながらない場合は、お問合せフォームよりお問合せください
- ※不動産会社がお電話に出られなかった場合、お問合せいただいた後に不動産会社より折り返しのお電話がある場合がございます(お客様が非通知設定した場合は対象外です)
- ※株式会社LIFULLは電話会社が提供するサービスを介してお客様の発信者番号を受領後、折り返し専用の電話番号を発番してお問合せの不動産会社に通知します(お客様の発信者番号がお問合せの不動産会社に通知されることはございません)
- ※携帯電話からお問合せいただいた方に対し、株式会社LIFULLは電話会社が提供するメッセ―ジサービスを介してお客様の発信者番号を受領後、ショートメッセージ(SMS)またはLINE通知メッセージによるお問合せ内容に関する通知をお届けする場合があります
- ※お客様が通話中に不動産会社にお伝えになったお客様の個人情報及び、電話会社が発番する折り返し専用の電話番号は、お問合せ先不動産会社が資料送付・電子メール送信・電話連絡などの目的で保管する可能性があります。お問合せ先不動産会社が保管する個人情報の取扱いについては、各不動産会社に直接お問合せください
- ※株式会社LIFULLでは本サービスを円滑に運用するために、お客様の発信者番号をサービスご利用の控えとして一定期間保管いたします
- ※上記および株式会社LIFULLの個人情報の取扱い方針に同意のうえ、お電話ください
【LIFULL HOME'S物件番号】0138141-0177443【自社管理番号】26264-411-25
初期費用・月額費用をあわせて確認!この物件に住んだときの費用めやす
めやすを見るこの物件に住んだときの費用めやす
- 初期費用
- 月額費用
- 追加費用※ご確認ください
追加で費用が
かかる場合があります
必ずご確認ください
初期費用めやす約0円
追加で費用がかかります(※)敷金
100,000
- 礼金
100,000
賃料+共益費・管理費の1ヶ月分として換算
賃料の1ヶ月分+税として換算。不動産会社によって金額が異なるため正確な金額は不動産会社にお問合せください
※追加費用もチェック!
これらの項目以外にも費用がかかる場合があります。正確な金額は不動産会社にお問合せください。
- 初期費用
- 鍵交換費:不動産会社に要確認
- 室内清掃費:55,000円
- 火災保険費:不動産会社に要確認
- 月額費用
- 駐車場費:10,000円(税込)※契約任意
- その他
- 退去時事務手数料:11000円
- 害虫駆除費:22000円
- ファイテック:4950円
- 保証会社
- 初回:月額賃料等の50%、月額:800円+330円
不動産会社より
エントランスからもう既に一級品の風格が漂ってきます。
近鉄京都線伊勢田駅まで徒歩5分です。スーパーが多い地域になりますのでお買い物の心配はなく入居頂けると考えております。宇治・城陽エリアで対抗できるマンションは他に無いと言えるぐらいのマンションとなっております まさに伊勢田の王様と言えるかも知れませんね。 物件情報はもちろん京都のエリア情報まで幅広く対応させていただきます!
- 保存する
- 共有する
- ※各種情報と現状に差異がある場合は、現状優先となります
- ※不動産会社が入力した情報を基に物件の位置を表示しています。詳しくは不動産会社までお問合せください
- ※不動産会社の方からの上記電話番号によるお問合せはお断りしております。こちら不動産会社詳細からお問合せください
- ※LIFULL HOME'Sは物件鮮度No.1を目指していきます。閲覧中の物件が「成約済である」「実際の物件情報と異なる点がある」などの場合、「掲載110番」からお問合せください
- ※QRコードは株式会社デンソーウェーブの登録商標です
したい暮らしのタグから探す
LIFULL HOME'S 地図・周辺情報
買い物
- セブンイレブン 宇治伊勢田中山店
- 新鮮激安市場!宇治店
- ウエルシア宇治伊勢田店
- ファミリーマート 宇治伊勢田北山店
- コープ 宇治神明
グルメ
- まいどおおきに食堂 京宇治食堂
- ブロンコビリー宇治店
- CoCo壱番屋 宇治伊勢田店
- 天下一品宇治小倉店
- CoCo壱番屋 宇治小倉店
育児・教育
- 伊勢田こども園
- 宇治市立伊勢田小学校
- 宇治市立西宇治中学校
- 南浦幼保連携型認定こども園
- 宇治市立小倉小学校
医療
- 医療法人仁心会宇治川病院
- 医療法人長安会中村病院
- 医療法人徳洲会宇治徳洲会病院
- 宇治武田病院
- 医療法人啓信会京都きづ川病院
公共施設・郵便局
- 宇治伊勢田郵便局
- 宇治市西宇治図書館
- 宇治市役所
- 宇治南陵郵便局
- 久御山町立図書館
公園
- 城南荘児童公園
- 西宇治公園
- 宇治市植物公園
- 東山緑地
- お茶と宇治のまち歴史公園
利用可能な駅
- 徒歩10分以内
近鉄京都線
- 伊勢田駅徒歩5分
- すべての駅
近鉄京都線
- 小倉駅徒歩14分
- 大久保駅徒歩18分
- 久津川駅徒歩33分
JR奈良線
- JR小倉駅徒歩16分
- 新田駅徒歩18分
- 宇治駅徒歩34分
京阪宇治線
- 宇治駅3.6km
- 周辺情報は2023年07月21日時点のものになります。
- 周辺情報は、参考情報としてのみご利用ください(周辺情報は、株式会社LIFULLが地図情報の提供事業者から提供を受けた情報とLIFULL HOME'Sの物件情報に基づき、独自の方法で抽出し提供しているものです。周辺情報は、移転や閉鎖等により情報が最新ではない、または正しくない場合がありますが、地図情報の提供事業者から提供された情報をそのまま周辺情報として表示しているため、正確かつ最新の情報へ修正することができないことがあります。)
- 周辺情報は、株式会社LIFULLが掲載するものであり、不動産物件情報を掲載している不動産会社が掲載するものではありません
- 交通情報の一部については、株式会社LIFULLが掲載するものであり、不動産物件情報を掲載している不動産会社が掲載するものではない場合があります。交通情報に関する質問などは株式会社LIFULLにお問合せください









