LIFULL HOME'Sは物件鮮度No.1!※評価について
TUJIGAHANA淀 2階
6.4万円/管理費等4,000円
13時間前 更新
画像一覧
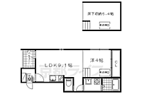
1/30間取り
間取
2/30外観
3/30外観
4/30外観
5/30リビング/ダイニング
白が基調のお部屋です。
6/30リビング/ダイニング
7/30リビング/ダイニング
8/30リビング/ダイニング
9/30室内
10/30室内
11/30室内
12/30キッチン
2口コンロ付きです。
13/30キッチン
14/30キッチン
15/30浴室
ゆったりとした浴槽。
16/30浴室
17/30浴室
18/30トイレ
ウォシュレット付きトイレ。
19/30トイレ
20/30洗面
大きな独立洗面台。
21/30洗面
22/30洗面
23/30収納
大きなクローゼット。
24/30設備
25/30設備
26/30玄関
シューズオックス付きです。
27/30玄関
28/30バルコニー
日当たり良好です。
29/30エントランス
30/30周辺
京都淀池上郵便局まで19m すぐそこに京都競馬場。町の郵便局です。
間取り
外観
外観
外観
リビング/ダイニング
リビング/ダイニング
リビング/ダイニング
リビング/ダイニング
室内
室内
室内
キッチン
キッチン
キッチン
浴室
浴室
浴室
トイレ
トイレ
洗面
洗面
洗面
収納
設備
設備
玄関
玄関
バルコニー
エントランス
周辺
LINEチャットでも 相談できます
お問合せ先 :株式会社京都ライフ 伏見桃山店
住まい探し特典内容
仲介手数料が家賃の半月分(消費税)です。
- 利用条件
- 株式会社京都ライフ 伏見桃山店で利用可
- 他特典との併用可
- 法人様契約、事業用物件は対象外です。積水ハウス、大東建託の管理物件は除く。
利用方法
来店時に本特典の画面をスマートフォンやタブレットでスタッフに提示、または画面印刷した用紙を提示ください。
有効期限 なし
ちょっと変わったお部屋 浴室乾燥機、システムキッチン、温水洗浄便座など充実
基本情報
不動産用語- 賃料
- 6.4万円
- 管理費等
- 4,000円
初期費用などお気軽にお問合せください
- 敷金/礼金
- 無/6.4万円
- 保証金/敷引・償却金
- -/-
- 交通
京阪本線 淀駅 徒歩4分
JR東海道・山陽本線 長岡京駅 3.6km
- 所在地
京都府京都市伏見区淀池上町
地図を見る- 築年月
- 2019年10月(築7年)
- 主要採光面
- 西
- 専有面積
- 32.18㎡
- バルコニー面積
- -
- 所在階/階数
- 2階/3階建
入居可能日などお気軽にお問合せください
- 現況
- 賃貸中
- 入居可能時期
- 2026年02月 中旬

人気物件はすぐに埋まってしまいます。
気になったらお早めにお問合せください。
- 情報公開日
2025/12/04
38日前 公開
- 情報更新日
2026/01/11
13時間前 更新
- 次回更新
予定日 - 2026/01/24
物件のこだわり/設備・条件
新築(非該当)
2階以上の物件(該当)
南向き(非該当)
駐車場(非該当)
オートロック(該当)
エアコン(該当)
バス・トイレ別(該当)
追焚機能(該当)
フローリング(該当)
ペット相談(非該当)
位置
角部屋入居条件
二人入居可キッチン/バス・トイレ
設備・サービス
オートロック、TVモニタ付インターホン、エアコン、床下収納、シューズボックス、BS対応、インターネット対応、インターネット使用料無料、公営水道、プロパンガス、下水、メゾネット、フローリング、バルコニー、ロフト付き、室内洗濯機置場、照明器具付き、宅配ボックス、駐輪場ありその他
デザイナーズ、住まい探し特典あり備考
2019年10月完成の1SLDKです。京阪淀駅まで徒歩4分。敷金ナシです。嬉しい3点セパレートに浴室乾燥機、システムキッチン、ウォシュレットトイレなど充実の設備。オートロック、TVホンでセキュリティも安心です。コンビニ、スーパーなど近くにあって便利ですよ。光ファイバー対応しています。京都の賃貸は京都ライフまでお待ちしており... 物件情報はもちろん京都のエリア情報まで幅広く対応させていただきます!
物件周辺の生活情報
学校
- 明親小学校(110m)
- 大淀中学校(359m)
買い物
- コンビニ(29m)
- スーパー(114m)
その他施設
- 総合病院(487m)
- 銀行(135m)
- 京都淀池上郵便局(19m)
交通
- 京阪本線 淀駅 徒歩4分
- 普通(停車)
- 区間急行(通過)
- 急行(停車)
- 特急(通過)
- 通勤準急・準急(停車)
- 快速特急 洛楽(通過)
- 通勤快急・快速急行(通過)
- JR東海道・山陽本線 長岡京駅 3.6km
- 普通(停車)
- 新快速(通過)
- 快速(停車)
- 緩行電車(停車)
- 特別快速(通過)
- 区間快速(通過)
※急行等の停車駅情報について
急行等の停車駅に関するデータは、随時更新をしておりますが、最新の内容であることを保証するものではありません。
最新かつ正確な情報につきましては、各鉄道会社のウェブサイトにてご確認ください
物件周辺の口コミ
- 京都府京都市伏見区淀池上町に住む人の口コミ40代男性
昔ながらの雰囲気と地域住民の繋がりが強い。都心まで遠からず近からず。
口コミを見る
この物件周辺に住む人の口コミ
口コミは、LIFULL HOME'Sが実際にこの物件の周辺に住む18歳~69歳の男女を対象に、WEBアンケート調査を実施しています。内容には回答者の主観的な表現が含まれる場合があるほか、事実と異なる場合もございます。ご了承ください。
- 京都府京都市伏見区淀池上町に住む人の口コミ40代男性
- 昔ながらの雰囲気と地域住民の繋がりが強い。都心まで遠からず近からず。
- 京都府京都市伏見区納所町に住む人の口コミ30代女性
- 自然が身近にあって散歩しやすい。ただ、車の抜け道があってスピードをだしすぎる車が多いので子ども一人で歩かせるのは心配になる。児童館はあるが、保育園しかない。商店街があるが、活気がなくお店が少ない。
- 京都府長岡京市神足に住む人の口コミ30代男性
- 街自体もいろいろと充実していて便利だし、電車に乗ってすぐに京都市内にも、大阪方面にも向かえる場所にあり、どこへ行くにも便利である。
- 京都府長岡京市久貝に住む人の口コミ40代女性
- 大阪に行くのも京都市内に行くのも電車ですぐ行けるところがいいかなと。
- 京都府久世郡久御山町東一口に住む人の口コミ40代男性
- 色々な施設があり、これからも発展していく予定みたいだからです。
- 京都府長岡京市城の里に住む人の口コミ40代男性
- 突出した良いところが思い浮かばないが悪いところもなく都市圏には車や電車で移動がたやすくおおよそ足りる生活ができていると思う
- 京都府長岡京市東和苑に住む人の口コミ50代女性
- 遊ぶところはないが、スーパーや病院など生活に必要なものは揃っていて京都市内や大阪へのアクセスも良い
- 京都府長岡京市神足に住む人の口コミ40代女性
- スーパーもたくさんあるし、交通機関も豊富。田舎ではないが自然もあるし、とても住みやすい
- 京都府乙訓郡大山崎町字下植野に住む人の口コミ60代男性
- インターがすぐ近くにあり車での移動が便利。JRと阪急どちらも使えて便利
- 京都府長岡京市神足に住む人の口コミ40代女性
- スーパーもたくさんあり、程よく田舎だけど、京都にも大阪にも行きやすい。
物件概要
- 建物構造
- 木造
- 駐車場
- 無
- 総戸数
- 6戸
- 契約形態
- -
- 契約期間
- 2年間
- 更新料
- -
- その他費用
- 鍵交換費用:16,500円、水道代:2,750円、ファイテック(消火剤):4,950円、アルコール殺菌・消毒:22,000円
- 保証会社
加入要
保証会社利用料:初回:月額賃料等の30%/1年、更新時:1万円/1年
- 住宅保険
- 要
- 管理
- -
- LIFULL HOME'S
物件番号 - 0138141-0157002
- 自社管理番号
- 68862-202
- 取引態様
- 仲介
- 会社名
- 株式会社京都ライフ 伏見桃山店
営業スタッフコメント

株式会社京都ライフ 伏見桃山店
奥田光貴
全力でサポート致します。
業界経験5年
- スタッフ情報
- 京都の賃貸は京都ライフまでお待ちしております。 伏見桃山に新店を出させて頂きました。新しいお店でお待ちしております。 ご質問、ご不明な点等がございましたらお気軽にお電話、メールにてお問い合わせくださいませ。
京都の賃貸は京都ライフまでお待ちしております。 伏見桃山に新店を出させて頂きました。新しいお店でお待ちしております。 ご質問、ご不明な点等がございましたらお気軽にお電話、メールにてお問い合わせくださいませ。
- 電話でお問合せ(通話無料)
お問合せ先 :株式会社京都ライフ 伏見桃山店
不動産会社情報
株式会社京都ライフ 伏見桃山店

京都府京都市伏見区観音寺町215-1 CONNECT桃山2F
近鉄京都線 桃山御陵前駅 徒歩1分
- 営業時間
- 09:30~19:00
- 定休日
- 年中無休(盆正月を除く)
優良店認定
桃山御陵前駅降りればスグ!人口の多い伏見区、沿線の多い伏見区、大阪へも出易い伏見区でお探しの方へ! もちろん京都市内どこでもご案内致します。全力でお部屋探しをサポートさせて頂きます!
- 店舗の特徴
- 賃貸管理業務
- 24時間管理物件取扱い
- リフォーム対応
- 引越し業者紹介可
- 年中無休
- 社宅・寮物件取扱い
- オンライン相談可
- 保証人不要な物件あり
- 法人契約取扱い
- 駅から歩いて3分以内
電話でお問合せお客様の電話番号は不動産会社には通知されません
- 不動産会社に
つながります
お客様の電話番号は不動産会社に通知されません
- ※光IP電話、及びIP電話からはご利用になれません
- ※お電話によるお問合せは、店舗営業時間内にお願いします。つながらない場合は、お問合せフォームよりお問合せください
- ※不動産会社がお電話に出られなかった場合、お問合せいただいた後に不動産会社より折り返しのお電話がある場合がございます(お客様が非通知設定した場合は対象外です)
- ※株式会社LIFULLは電話会社が提供するサービスを介してお客様の発信者番号を受領後、折り返し専用の電話番号を発番してお問合せの不動産会社に通知します(お客様の発信者番号がお問合せの不動産会社に通知されることはございません)
- ※携帯電話からお問合せいただいた方に対し、株式会社LIFULLは電話会社が提供するメッセ―ジサービスを介してお客様の発信者番号を受領後、ショートメッセージ(SMS)またはLINE通知メッセージによるお問合せ内容に関する通知をお届けする場合があります
- ※お客様が通話中に不動産会社にお伝えになったお客様の個人情報及び、電話会社が発番する折り返し専用の電話番号は、お問合せ先不動産会社が資料送付・電子メール送信・電話連絡などの目的で保管する可能性があります。お問合せ先不動産会社が保管する個人情報の取扱いについては、各不動産会社に直接お問合せください
- ※株式会社LIFULLでは本サービスを円滑に運用するために、お客様の発信者番号をサービスご利用の控えとして一定期間保管いたします
- ※上記および株式会社LIFULLの個人情報の取扱い方針に同意のうえ、お電話ください
【LIFULL HOME'S物件番号】0138141-0157002【自社管理番号】68862-202
初期費用・月額費用をあわせて確認!この物件に住んだときの費用めやす
めやすを見るこの物件に住んだときの費用めやす
- 初期費用
- 月額費用
- 追加費用※ご確認ください
追加で費用が
かかる場合があります
必ずご確認ください
初期費用めやす約0円
追加で費用がかかります(※)敷金
0
- 礼金
64,000
賃料+共益費・管理費の1ヶ月分として換算
賃料の1ヶ月分+税として換算。不動産会社によって金額が異なるため正確な金額は不動産会社にお問合せください
※追加費用もチェック!
これらの項目以外にも費用がかかる場合があります。正確な金額は不動産会社にお問合せください。
- 初期費用
- 鍵交換費:16,500円
- 室内清掃費:不動産会社に要確認
- 火災保険費:不動産会社に要確認
- その他
- 水道代:2750円
- ファイテック(消火剤):4950円
- アルコール殺菌・消毒:22000円
- 保証会社
- 初回:月額賃料等の30%/1年、更新時:1万円/1年
不動産会社より
ちょっと変わったお部屋 浴室乾燥機、システムキッチン、温水洗浄便座など充実
2019年10月完成の1SLDKです。京阪淀駅まで徒歩4分。敷金ナシです。嬉しい3点セパレートに浴室乾燥機、システムキッチン、ウォシュレットトイレなど充実の設備。オートロック、TVホンでセキュリティも安心です。コンビニ、スーパーなど近くにあって便利ですよ。光ファイバー対応しています。京都の賃貸は京都ライフまでお待ちしており... 物件情報はもちろん京都のエリア情報まで幅広く対応させていただきます!
- 保存する
- 共有する
- ※各種情報と現状に差異がある場合は、現状優先となります
- ※不動産会社が入力した情報を基に物件の位置を表示しています。詳しくは不動産会社までお問合せください
- ※不動産会社の方からの上記電話番号によるお問合せはお断りしております。こちら不動産会社詳細からお問合せください
- ※LIFULL HOME'Sは物件鮮度No.1を目指していきます。閲覧中の物件が「成約済である」「実際の物件情報と異なる点がある」などの場合、「掲載110番」からお問合せください
- ※QRコードは株式会社デンソーウェーブの登録商標です
LIFULL HOME'S 地図・周辺情報
買い物
- ローソン 淀下津店
- フードネットマート淀店
- 薬ヒグチ淀店
- セブンイレブン 淀池上町店
- TOAmart京都淀店
グルメ
- ケンタッキーフライドチキン JRA京都競馬場店
- 吉野家 京都競馬場店
- 和食さと 城ノ里店
- すき家 大山崎IC店
- 焼肉でん 長岡京店
育児・教育
- 淀白鳥保育園分園
- 京都市立明親小学校
- 京都市立大淀中学校
- 淀白鳥保育園
- 京都市立納所小学校
医療
- 医療法人社団淀さんせん会金井病院
- 医療法人社団洛和会介護医療院洛和ヴィラよつば
- 医療法人八仁会久御山南病院
- (財)長岡記念財団長岡ヘルスケアセンター(長岡病院)
- 医療法人社団千春会千春会病院
公共施設・郵便局
- 京都淀池上郵便局
- 大山崎町役場
- 御牧郵便局
- 久御山町役場
- 京都納所郵便局
公園
- 淀城跡公園
- 横大路運動公園
- かわきた自然運動公園
- 勝竜寺城公園
- 勝竜寺城公園
利用可能な駅
- 徒歩10分以内
京阪本線
- 淀駅徒歩4分
- すべての駅
JR東海道・山陽本線
- 長岡京駅3.6km
- 周辺情報は2023年07月21日時点のものになります。
- 周辺情報は、参考情報としてのみご利用ください(周辺情報は、株式会社LIFULLが地図情報の提供事業者から提供を受けた情報とLIFULL HOME'Sの物件情報に基づき、独自の方法で抽出し提供しているものです。周辺情報は、移転や閉鎖等により情報が最新ではない、または正しくない場合がありますが、地図情報の提供事業者から提供された情報をそのまま周辺情報として表示しているため、正確かつ最新の情報へ修正することができないことがあります。)
- 周辺情報は、株式会社LIFULLが掲載するものであり、不動産物件情報を掲載している不動産会社が掲載するものではありません
- 交通情報の一部については、株式会社LIFULLが掲載するものであり、不動産物件情報を掲載している不動産会社が掲載するものではない場合があります。交通情報に関する質問などは株式会社LIFULLにお問合せください







