LIFULL HOME'Sは物件鮮度No.1!※評価について
メゾン・ド・セレサ(1階/1LDK/50.22m²)
メゾン・ド・セレサ(1階/1LDK/50.22m²)
7.4万円/管理費等5,000円
10時間前 更新
画像一覧
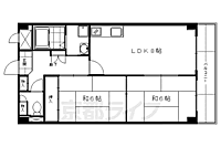
1/30間取り
間取
2/30外観
3/30外観
4/30リビング/ダイニング
5/30リビング/ダイニング
6/30リビング/ダイニング
7/30リビング/ダイニング
8/30リビング/ダイニング
9/30リビング/ダイニング
10/30リビング/ダイニング
11/30キッチン
12/30キッチン
13/30キッチン
14/30浴室
15/30トイレ
16/30洗面
17/30収納
18/30設備
19/30設備
20/30設備
21/30玄関
22/30エントランス
23/30その他
24/30その他
25/30その他
26/30その他
27/30その他
28/30その他
29/30その他
30/30周辺
竹田交番まで180m 近鉄竹田駅近くの交番です。
間取り
外観
外観
リビング/ダイニング
リビング/ダイニング
リビング/ダイニング
リビング/ダイニング
リビング/ダイニング
リビング/ダイニング
リビング/ダイニング
キッチン
キッチン
キッチン
浴室
トイレ
洗面
収納
設備
設備
設備
玄関
エントランス
その他
その他
その他
その他
その他
その他
その他
周辺
1〜4月は引越しシーズンのピークです。お問合せはお早めに!
住まい探し特典内容
仲介手数料が家賃の半月分(消費税)です。
- 利用条件
- 株式会社京都ライフ 伏見桃山店で利用可
- 他特典との併用可
- 法人様契約、事業用物件は対象外です。積水ハウス、大東建託の管理物件は除く。
利用方法
来店時に本特典の画面をスマートフォンやタブレットでスタッフに提示、または画面印刷した用紙を提示ください。
有効期限 なし
全室ベランダ南向き 近鉄・地下鉄2WAYアクセス可能な竹田駅まで徒歩約3分
基本情報
不動産用語- 賃料
- 7.4万円
- 管理費等
- 5,000円
初期費用などお気軽にお問合せください
- 敷金/礼金
- 無/10万円
- 保証金/敷引・償却金
- -/-
- 交通
近鉄京都線 竹田駅 徒歩3分
京都市営烏丸線 竹田駅 徒歩3分
- 所在地
京都府京都市伏見区竹田段川原町
地図を見る- 築年月
- 1994年3月(築33年)
- 主要採光面
- 南
- 専有面積
- 50.22㎡
- バルコニー面積
- -
- 所在階/階数
- 1階/4階建
見学可能な物件です。希望日時を予約できます(無料)
- 現況
- 空家
- 入居可能時期
- 即時

人気物件はすぐに埋まってしまいます。
気になったらお早めにお問合せください。
- 情報公開日
2026/02/09
46日前 公開
- 情報更新日
2026/03/27
10時間前 更新
- 次回更新
予定日 - 2026/04/01
物件のこだわり/設備・条件
新築(非該当)
2階以上の物件(非該当)
南向き(該当)
駐車場(非該当)
オートロック(非該当)
エアコン(該当)
バス・トイレ別(該当)
追焚機能(非該当)
フローリング(該当)
ペット相談(非該当)
入居条件
即入居可キッチン/バス・トイレ
設備・サービス
エアコン、CATV、BS対応、光ファイバー、公営水道、都市ガス、下水、フローリング、バルコニー、室内洗濯機置場、南面バルコニー、駐輪場ありその他
住まい探し特典あり備考
近鉄・地下鉄2WAYアクセス可能な竹田駅まで、徒歩約3分。駅に近いので通勤・通学にとても便利ですよ。システムキッチンですので、料理も楽しくなりますね。全室南向きで日当たり良好です。京都の賃貸は京都ライフまでお待ちしております。ご質問、ご不明な点等がございましたらお気軽にお電話、メールにてお問い合わせくださいませ。 物件情報はもちろん京都のエリア情報まで幅広く対応させていただきます!
物件周辺の生活情報
学校
- 竹田小学校(374m)
- 藤森中学校(1,000m)
買い物
- コンビニ(381m)
その他施設
- 総合病院(2,180m)
- 銀行(786m)
- イズミヤ伏見店(1,300m)
交通
- 近鉄京都線 竹田駅 徒歩3分
- 普通(停車)
- 準急(停車)
- 急行(停車)
- 京都市営烏丸線 竹田駅 徒歩3分
- 普通(停車)
- 急行(停車)
※急行等の停車駅情報について
急行等の停車駅に関するデータは、随時更新をしておりますが、最新の内容であることを保証するものではありません。
最新かつ正確な情報につきましては、各鉄道会社のウェブサイトにてご確認ください
物件周辺の口コミ
- 京都府京都市伏見区竹田段川原町に住む人の口コミ30代女性
交通の便がよく最寄り駅まで数分で行けるので通勤、通学はもちろんどこに行くにも便利だから。
口コミを見る
この物件周辺に住む人の口コミ
口コミは、LIFULL HOME'Sが実際にこの物件の周辺に住む18歳~69歳の男女を対象に、WEBアンケート調査を実施しています。内容には回答者の主観的な表現が含まれる場合があるほか、事実と異なる場合もございます。ご了承ください。
- 京都府京都市伏見区竹田段川原町に住む人の口コミ30代女性
- 交通の便がよく最寄り駅まで数分で行けるので通勤、通学はもちろんどこに行くにも便利だから。
- 京都府京都市伏見区竹田段川原町に住む人の口コミ30代男性
- 学生時代から過ごしてきて、一度も今の地域から出たいと思ったことがないから
- 京都府京都市伏見区竹田段川原町に住む人の口コミ30代男性
- 15年ほど住んでいるが、せいかつするのに困ったことがほとんどない。
- 京都府京都市伏見区竹田段川原町に住む人の口コミ30代女性
- 地下鉄や京阪へのアクセスは抜群で、交通がかなり便利です。ドラッグストア、コンビニ、スーパーへのアクセスも徒歩圏内なので生活には困りません。ただ、繁華街ではないので飲食店の数も限られています。
- 京都府京都市南区上鳥羽北島田町に住む人の口コミ20代女性
- 引っ越してきたばかりですが便利です。まだお店の開拓などはできてないですが目につく場所に飲食店があるイメージです。車通りが多い一本道なので、信号が少ないのがマイナスポイントです。
- 京都府京都市伏見区竹田桶ノ井町に住む人の口コミ50代男性
- 交通の便は良いが、買い物はコンビニが徒歩5分以上、スーパーが10分以上かかる点がやや、難である。
- 京都府京都市伏見区竹田三ツ杭町に住む人の口コミ40代女性
- 交通の利便性がよい。車や電車、自転車等ですぐに京都駅まで行ける立地であるにもかかわらず、周辺には畑や神社等もあり、自然も感じられるので、とても満足しています。
- 京都府京都市伏見区久我本町に住む人の口コミ50代女性
- 駅近ではないが車やバイク自転車があれば便利です。徒歩圏内に病院やコンビニクリーニング屋などがあり便利です。また、二つの国道が近くなので、飲食店や娯楽施設もスーパーも深夜まで営業しています。
- 京都府京都市伏見区竹田桶ノ井町に住む人の口コミ30代女性
- 治安がいいとは言えないが、家賃の安さと交通の便の良さは気に入っているため。
- 京都府京都市伏見区深草西浦町8丁目に住む人の口コミ50代男性
- 特別に秀でるものは無いが、住むに苦労する環境では無いことが何よりだと思うから
物件概要
- 建物構造
- RC(鉄筋コンクリート)
- 駐車場
- 空無
- 総戸数
- 19戸
- 契約形態
- -
- 契約期間
- 2年間
- 更新料
- 新賃料の1ヶ月分
- その他費用
- 室内清掃費用:38,500円、入居者サポート:16,500円
- 保証会社
加入要
保証会社:オリコフォレント
保証会社利用料:初回:月額賃料等の50%、月額:システム利用料330円、更新時:1万円/1年
- 住宅保険
- 要
- 管理
- -
- LIFULL HOME'S
物件番号 - 0138141-0155200
- 自社管理番号
- 03546-103-25
- 取引態様
- 仲介
- 会社名
- 株式会社京都ライフ 伏見桃山店
営業スタッフコメント

株式会社京都ライフ 伏見桃山店
奥田光貴
全力でサポート致します。
業界経験5年
- スタッフ情報
- 京都の賃貸は京都ライフまでお待ちしております。 伏見桃山に新店を出させて頂きました。新しいお店でお待ちしております。 ご質問、ご不明な点等がございましたらお気軽にお電話、メールにてお問い合わせくださいませ。
京都の賃貸は京都ライフまでお待ちしております。 伏見桃山に新店を出させて頂きました。新しいお店でお待ちしております。 ご質問、ご不明な点等がございましたらお気軽にお電話、メールにてお問い合わせくださいませ。
- 電話でお問合せ(通話無料)
お問合せ先 :株式会社京都ライフ 伏見桃山店
不動産会社情報
株式会社京都ライフ 伏見桃山店
京都府京都市伏見区観音寺町215-1 CONNECT桃山2F
近鉄京都線 桃山御陵前駅 徒歩1分
- 営業時間
- 09:30~19:00
- 定休日
- 年中無休(盆正月を除く)
桃山御陵前駅降りればスグ!人口の多い伏見区、沿線の多い伏見区、大阪へも出易い伏見区でお探しの方へ! もちろん京都市内どこでもご案内致します。全力でお部屋探しをサポートさせて頂きます!
- 店舗の特徴
- 賃貸管理業務
- 24時間管理物件取扱い
- リフォーム対応
- 引越し業者紹介可
- 年中無休
- 社宅・寮物件取扱い
- オンライン相談可
- 保証人不要な物件あり
- 法人契約取扱い
- 駅から歩いて3分以内
電話でお問合せお客様の電話番号は不動産会社には通知されません
- 不動産会社に
つながります
お客様の電話番号は不動産会社に通知されません
- ※光IP電話、及びIP電話からはご利用になれません
- ※お電話によるお問合せは、店舗営業時間内にお願いします。つながらない場合は、お問合せフォームよりお問合せください
- ※不動産会社がお電話に出られなかった場合、お問合せいただいた後に不動産会社より折り返しのお電話がある場合がございます(お客様が非通知設定した場合は対象外です)
- ※株式会社LIFULLは電話会社が提供するサービスを介してお客様の発信者番号を受領後、折り返し専用の電話番号を発番してお問合せの不動産会社に通知します(お客様の発信者番号がお問合せの不動産会社に通知されることはございません)
- ※携帯電話からお問合せいただいた方に対し、株式会社LIFULLは電話会社が提供するメッセ―ジサービスを介してお客様の発信者番号を受領後、ショートメッセージ(SMS)またはLINE通知メッセージによるお問合せ内容に関する通知をお届けする場合があります
- ※お客様が通話中に不動産会社にお伝えになったお客様の個人情報及び、電話会社が発番する折り返し専用の電話番号は、お問合せ先不動産会社が資料送付・電子メール送信・電話連絡などの目的で保管する可能性があります。お問合せ先不動産会社が保管する個人情報の取扱いについては、各不動産会社に直接お問合せください
- ※株式会社LIFULLでは本サービスを円滑に運用するために、お客様の発信者番号をサービスご利用の控えとして一定期間保管いたします
- ※上記および株式会社LIFULLの個人情報の取扱い方針に同意のうえ、お電話ください
【LIFULL HOME'S物件番号】0138141-0155200【自社管理番号】03546-103-25
初期費用・月額費用をあわせて確認!この物件に住んだときの費用めやす
めやすを見るこの物件に住んだときの費用めやす
- 初期費用
- 月額費用
- 追加費用※ご確認ください
追加で費用が
かかる場合があります
必ずご確認ください
初期費用めやす約0円
追加で費用がかかります(※)敷金
0
- 礼金
100,000
賃料+共益費・管理費の1ヶ月分として換算
賃料の1ヶ月分+税として換算。不動産会社によって金額が異なるため正確な金額は不動産会社にお問合せください
※追加費用もチェック!
これらの項目以外にも費用がかかる場合があります。正確な金額は不動産会社にお問合せください。
- 初期費用
- 鍵交換費:不動産会社に要確認
- 室内清掃費:38,500円
- 火災保険費:不動産会社に要確認
- その他
- 入居者サポート:16500円
- 保証会社
- 初回:月額賃料等の50%、月額:システム利用料330円、更新時:1万円/1年
不動産会社より
全室ベランダ南向き 近鉄・地下鉄2WAYアクセス可能な竹田駅まで徒歩約3分
近鉄・地下鉄2WAYアクセス可能な竹田駅まで、徒歩約3分。駅に近いので通勤・通学にとても便利ですよ。システムキッチンですので、料理も楽しくなりますね。全室南向きで日当たり良好です。京都の賃貸は京都ライフまでお待ちしております。ご質問、ご不明な点等がございましたらお気軽にお電話、メールにてお問い合わせくださいませ。 物件情報はもちろん京都のエリア情報まで幅広く対応させていただきます!
- 保存する
- 共有する
- ※各種情報と現状に差異がある場合は、現状優先となります
- ※不動産会社が入力した情報を基に物件の位置を表示しています。詳しくは不動産会社までお問合せください
- ※不動産会社の方からの上記電話番号によるお問合せはお断りしております。こちら不動産会社詳細からお問合せください
- ※LIFULL HOME'Sは物件鮮度No.1を目指していきます。閲覧中の物件が「成約済である」「実際の物件情報と異なる点がある」などの場合、「掲載110番」からお問合せください
- ※QRコードは株式会社デンソーウェーブの登録商標です
したい暮らしのタグから探す
LIFULL HOME'S 地図・周辺情報
買い物
- セブンイレブン 伏見竹田中島町店
- FLET’S竹田店
- キリン堂くいな橋店
- ファミリーマート 竹田駅前店
- フレスコ 竹田店
グルメ
- 餃子の王将 深草竹田店
- にぎり長次郎 竹田店
- 和食さと 竹田店
- ロッテリア 京都伏見マツモト店
- 吉野家 24号線竹田久保町店
育児・教育
- 京都市立竹田幼稚園
- 京都市立竹田小学校
- 京都市立藤森中学校
- 青風幼稚園
- 京都市立砂川小学校
医療
- 医療法人五木田病院介護医療院
- 医療法人清水会京都リハビリテーション病院
- 独立行政法人国立病院機構京都医療センター
- 社会医療法人岡本病院(財団)伏見岡本病院
- 医療法人社団育生会京都久野病院
公共施設・郵便局
- 京都竹田郵便局
- 京都市吉祥院図書館
- 京都市伏見区役所深草支所
- 京都小久保郵便局
- 京都市伏見中央図書館
公園
- 深草西浦南公園
- 竹田公園
- 鳥羽離宮跡公園
- 東向公園
- 深草墓園
利用可能な駅
- 徒歩10分以内
近鉄京都線
- 竹田駅徒歩3分
京都市営烏丸線
- 竹田駅徒歩3分
- 周辺情報は2023年07月21日時点のものになります。
- 周辺情報は、参考情報としてのみご利用ください(周辺情報は、株式会社LIFULLが地図情報の提供事業者から提供を受けた情報とLIFULL HOME'Sの物件情報に基づき、独自の方法で抽出し提供しているものです。周辺情報は、移転や閉鎖等により情報が最新ではない、または正しくない場合がありますが、地図情報の提供事業者から提供された情報をそのまま周辺情報として表示しているため、正確かつ最新の情報へ修正することができないことがあります。)
- 周辺情報は、株式会社LIFULLが掲載するものであり、不動産物件情報を掲載している不動産会社が掲載するものではありません
- 交通情報の一部については、株式会社LIFULLが掲載するものであり、不動産物件情報を掲載している不動産会社が掲載するものではない場合があります。交通情報に関する質問などは株式会社LIFULLにお問合せください










