LIFULL HOME'Sは物件鮮度No.1!※評価について
九段北TLビル(3階/95.67m²)
九段北TLビル(3階/95.67m²)
41.3842万円/管理費等111,419円
2026/03/16 更新
お問合せ先 :株式会社Base
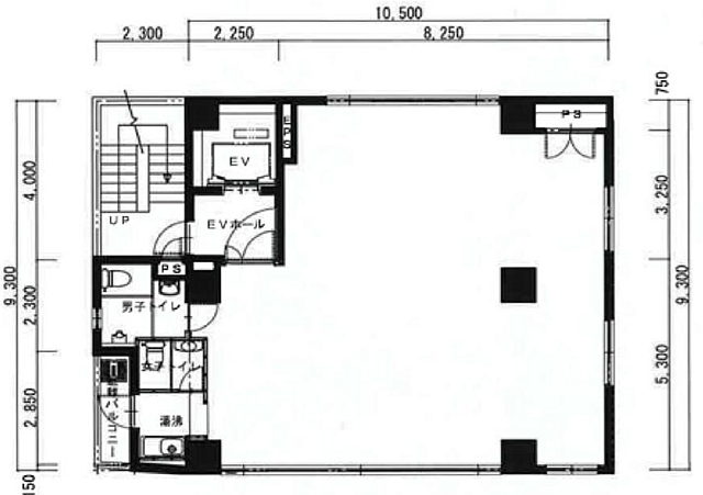
複数路線利用可能となる立地です。トイレは男女別に分かれています。
物件のこだわり/設備・条件
新築(非該当)
2階以上の物件(非該当)
駐車場(非該当)
即引渡し可(該当)
エレベーター(該当)
設備・条件
エレベーター、即引渡し可
物件周辺の生活情報
交通
- JR総武線 市ケ谷駅 徒歩4分
- 普通(停車)
- 都営新宿線 市ヶ谷駅 徒歩2分
- 普通(停車)
- 急行(停車)
※急行等の停車駅情報について
急行等の停車駅に関するデータは、随時更新をしておりますが、最新の内容であることを保証するものではありません。
最新かつ正確な情報につきましては、各鉄道会社のウェブサイトにてご確認ください
物件周辺の口コミ
- 東京都千代田区九段北に住む人の口コミ40代女性
病院学校が近い 交番が近所にあり警察官の巡回が多い交通機関が便利 地下鉄3線 あるけばJRまで10分 区役所が近所 こんびにが徒歩圏内に4件
口コミを見る
この物件周辺に住む人の口コミ
口コミは、LIFULL HOME'Sが実際にこの物件の周辺に住む18歳~69歳の男女を対象に、WEBアンケート調査を実施しています。内容には回答者の主観的な表現が含まれる場合があるほか、事実と異なる場合もございます。ご了承ください。
- 東京都千代田区九段北に住む人の口コミ40代女性
- 病院学校が近い 交番が近所にあり警察官の巡回が多い交通機関が便利 地下鉄3線 あるけばJRまで10分 区役所が近所 こんびにが徒歩圏内に4件
- 東京都千代田区九段北に住む人の口コミ40代女性
- 交通の便が良い。繁華街からタクシーで3000円で帰ってこられる。いつも明るい。大きな病院がある。コンビニが全店舗そろっている。スタバが駅周辺に2店舗ある
- 東京都千代田区九段北に住む人の口コミ50代女性
- 現在は仕事をしているので都心暮らしでよく満足していますが、買い物がしづらい面もあります。仕事を辞めたら引っ越すつもりで、ずっと住み続ける街では無いと思っています。
- 東京都千代田区九段北に住む人の口コミ50代女性
- 交通至便で病院、金融機関、行政機関が充実している点は大変満足しています。深夜でも買い物ができて治安も良いです。昼間は学生さん、ビジネスパーソンが多く、落ち着かなく感じることもあります。
- 東京都千代田区九段北に住む人の口コミ40代女性
- 皇居と靖国神社が近くにあるので治安はよい。コンビニは大手5社すべてそろっている。病院、区役所、交番等が近所にある。電車は3線乗り入れしている。都バスと千代田区のコミュニティーバスがある。
- 東京都新宿区市谷薬王寺町に住む人の口コミ40代女性
- 複数の路線の電車が利用でき、どこにでも行きやすいです。教育に熱心で上品な人が多いです。近所の公立学校に行かせてもレベルが高いです。
- 東京都新宿区四谷坂町に住む人の口コミ30代女性
- 交通の便がよく、都会でありながら自然も多く落ち着いて暮らせる。
- 東京都新宿区市谷加賀町に住む人の口コミ40代女性
- 2歳児の子育てについて、公園、母子支援施設、保健センターでの支援などとても充実していると思う。ファミレスなどの家族で行ける安価なレストランやカフェなどがあまりないのがたまにキズ。
- 東京都新宿区払方町に住む人の口コミ60代男性
- ヘリコプターや軽飛行機の騒音、防衛省の大型ヘリの騒音が醜悪で日中ストレスとなるが、その他は満足してます。
- 東京都千代田区四番町に住む人の口コミ60代男性
- 治安が良く、東西南北どちらに行くにも交通の便も良い。近隣には公園や大きな神社などがあり、緑豊かである。平日はビジネス街としてにぎわい、飲食店も充実しているが、週末は一転して静かな街になり過ごしやすい。
物件概要
- 建物構造
- SRC(鉄骨鉄筋コンクリート)
- 駐車場
- -
- 総戸数
- -
- 建築面積
- -
- 敷地面積
- -
- 住宅保険
- 要
- 契約形態
- -
- 契約期間
- 2年間
- 更新料
- 新賃料の1ヶ月分
- その他費用
- 仲介手数料:賃料1ヶ月分に対する110%
- 管理
- -
- 現況
- -
- 引渡し
- 即時
- 見学可能な物件です。希望日時を予約できます(無料)
- 見学予約をする
- LIFULL HOME'S
物件番号 - 0137019-0019479
- 自社管理番号
- -
- 取引態様
- 仲介
- 情報公開日
- 2025/01/23
- 情報更新日
- 2026/03/16
- 次回更新
予定日 - 2026/03/30
- 会社名
- 株式会社Base
- 電話でお問合せ(通話無料)
お問合せ先 :株式会社Base
不動産会社情報
電話でお問合せお客様の電話番号は不動産会社には通知されません
- 不動産会社に
つながります
お客様の電話番号は不動産会社に通知されません
- ※光IP電話、及びIP電話からはご利用になれません
- ※お電話によるお問合せは、店舗営業時間内にお願いします。つながらない場合は、お問合せフォームよりお問合せください
- ※不動産会社がお電話に出られなかった場合、お問合せいただいた後に不動産会社より折り返しのお電話がある場合がございます(お客様が非通知設定した場合は対象外です)
- ※株式会社LIFULLは電話会社が提供するサービスを介してお客様の発信者番号を受領後、折り返し専用の電話番号を発番してお問合せの不動産会社に通知します(お客様の発信者番号がお問合せの不動産会社に通知されることはございません)
- ※携帯電話からお問合せいただいた方に対し、株式会社LIFULLは電話会社が提供するメッセ―ジサービスを介してお客様の発信者番号を受領後、ショートメッセージ(SMS)またはLINE通知メッセージによるお問合せ内容に関する通知をお届けする場合があります
- ※お客様が通話中に不動産会社にお伝えになったお客様の個人情報及び、電話会社が発番する折り返し専用の電話番号は、お問合せ先不動産会社が資料送付・電子メール送信・電話連絡などの目的で保管する可能性があります。お問合せ先不動産会社が保管する個人情報の取扱いについては、各不動産会社に直接お問合せください
- ※株式会社LIFULLでは本サービスを円滑に運用するために、お客様の発信者番号をサービスご利用の控えとして一定期間保管いたします
- ※上記および株式会社LIFULLの個人情報の取扱い方針に同意のうえ、お電話ください
【LIFULL HOME'S物件番号】0137019-0019479
- 保存する
- 共有する
- ※各種情報と現状に差異がある場合は、現状優先となります
- ※不動産会社が入力した情報を基に物件の位置を表示しています。詳しくは不動産会社までお問合せください
- ※不動産会社の方からの上記電話番号によるお問合せはお断りしております。こちら不動産会社詳細からお問合せください
- ※LIFULL HOME'Sは物件鮮度No.1を目指していきます。「実際の物件情報と異なる点がある」「成約済の物件が掲載されている」などの場合は、こちらのフォーム掲載110番からお問合せください
- ※QRコードは株式会社デンソーウェーブの登録商標です




