LIFULL HOME'Sは物件鮮度No.1!※評価について
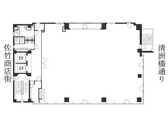
中央法規ビル(2階/2F/309.46m²)
中央法規ビル(2階/2F/309.46m²)
164.7536万円/管理費等-
1時間前 更新
お問合せ先 :株式会社クイックコンサルティング
清洲橋通り沿い。ガラス張りの外観で明るく開放感があります。間取りが整形でレイアウトがしやすいです。
物件のこだわり/設備・条件
新築(非該当)
2階以上の物件(該当)
駐車場(非該当)
即引渡し(非該当)
エレベーター(該当)
設備・条件
給湯、冷房、光ファイバー、フリーアクセス、エレベーター、耐震構造(新耐震基準適合)
物件周辺の生活情報
交通
- 都営大江戸線 新御徒町駅 徒歩4分
- 普通(停車)
- 東京メトロ日比谷線 仲御徒町駅 徒歩7分
- 普通(停車)
※急行等の停車駅情報について
急行等の停車駅に関するデータは、随時更新をしておりますが、最新の内容であることを保証するものではありません。
最新かつ正確な情報につきましては、各鉄道会社のウェブサイトにてご確認ください
物件周辺の口コミ
- 東京都台東区台東に住む人の口コミ60代男性
都心なのに物価が安い店が多い。繁華街と下町のミックスで賑やか。交通の便とてもよく、車でも電車でも徒歩でも便利。年寄でも安心して暮らせる。高級住宅地の肩ぐるしさがなく、気軽に安心して暮らせる。
口コミを見る
この物件周辺に住む人の口コミ
口コミは、LIFULL HOME'Sが実際にこの物件の周辺に住む18歳~69歳の男女を対象に、WEBアンケート調査を実施しています。内容には回答者の主観的な表現が含まれる場合があるほか、事実と異なる場合もございます。ご了承ください。
- 東京都台東区台東に住む人の口コミ60代男性
- 都心なのに物価が安い店が多い。繁華街と下町のミックスで賑やか。交通の便とてもよく、車でも電車でも徒歩でも便利。年寄でも安心して暮らせる。高級住宅地の肩ぐるしさがなく、気軽に安心して暮らせる。
- 東京都台東区台東に住む人の口コミ50代女性
- どこへ行くにも便利でデパートやスーパーもあり日常の買い物も便利で飲食店も数多くある
- 東京都台東区台東に住む人の口コミ40代女性
- 交通の便が良く、どこへ出るにも便利。駅から離れると下町っぽくて喧噪も少なくて良い。
- 東京都台東区台東に住む人の口コミ60代女性
- 生まれ育った土地でも有り兄弟、子供達も近くに住んでいる為安心感が有る為
- 東京都台東区台東に住む人の口コミ40代男性
- 使用できる路線が多く、買い物は上野を中心に色々可能だが、駐車場代や家賃など毎月かかる固定費は割と高めだったり、便利な分、お金もそれなりにかかるから。
- 東京都台東区台東に住む人の口コミ40代女性
- どこへ出るのにも交通の便が良い。一通りの物が買い揃えられる店舗が多い。賑やかな通りが近いが、住宅街は静かで住み易い。
- 東京都台東区台東に住む人の口コミ60代女性
- どこへ行くにも交通の便が良い。映画館・百貨店もあり買い物も便利。庶民的で居心地が良い
- 東京都台東区台東に住む人の口コミ20代女性
- 都内に徒歩でいけることや複数路線があり交通の便が良く、都内で仕事をする同年代のような夫婦は大変おすすめ。ただし、子育てに向いているかといえばそうではなく、もう少し閑静で緑のある方が好きだから。
- 東京都台東区台東に住む人の口コミ40代女性
- どの駅からも少し遠いが、徒歩圏内で不便ではない割に騒音は少なく、治安は悪くない。
- 東京都台東区台東に住む人の口コミ20代女性
- アクセスや買い物には不便ありませんが、やはり都会ならではで自然はあまりないので、心休まる場所があまりないかなと思います。
物件概要
- 建物構造
- SRC(鉄骨鉄筋コンクリート)
- 駐車場
- 無
- 総戸数
- -
- 建築面積
- -
- 敷地面積
- -
- 住宅保険
- 不要
- 契約形態
- -
- 契約期間
- 2年間
- 更新料
- 新賃料の1ヶ月分
- その他費用
- 仲介手数料:1,647,536円
- 管理
- -
- 現況
- 賃貸中
- 引渡し
- 2026年08月 上旬
- LIFULL HOME'S
物件番号 - 0131519-0012584
- 自社管理番号
- 3598846
- 取引態様
- 仲介
- 情報公開日
- 2026/02/26
- 情報更新日
- 2026/04/05
- 次回更新
予定日 - 2026/04/12
- 会社名
- 株式会社クイックコンサルティング
営業スタッフコメント

株式会社クイックコンサルティング主任
八木憲政
素早く丁寧な対応を心がけます!
業界経験4年
資格宅地建物取引士
- 会社実績や特徴・サービス情報
- 株式会社クイックコンサルティングは、素早く丁寧をモットーに全国のオフィス移転に対応しております。 お問合せ頂いてからのレスポンスの早さにも自信がございますのでお急ぎの方は是非ご用命下さい。 勿論その後の粘り強さにも自信がございます。 ご希望の物件が見つかるまで、粘り強く何度でも物件をご提案致します。 また、単に物件を紹介するだけでなく、内装の提案などオフィスに関わる様々なお悩みにお答えしております。 その為、移転を任されるのが初めてのご担当者様やオフィスに関してお悩みをお持ちの経営者様などからご好評を頂いております。 なお弊社は東京本社に加えて、大阪、名古屋、広島、福岡に5つの支店がございます。 全国展開する事で地方に居を構える貸主様との関係が強化出来たり全国展開をされている企業様のご移転をより密にサポートさせて頂く事が可能です。
株式会社クイックコンサルティングは、素早く丁寧をモットーに全国のオフィス移転に対応しております。 お問合せ頂いてからのレスポンスの早さにも自信がございますのでお急ぎの方は是非ご用命下さい。 勿論その後の粘り強さにも自信がございます。 ご希望の物件が見つかるまで、粘り強く何度でも物件をご提案致します。 また、単に物件を紹介するだけでなく、内装の提案などオフィスに関わる様々なお悩みにお答えしております。 その為、移転を任されるのが初めてのご担当者様やオフィスに関してお悩みをお持ちの経営者様などからご好評を頂いております。 なお弊社は東京本社に加えて、大阪、名古屋、広島、福岡に5つの支店がございます。 全国展開する事で地方に居を構える貸主様との関係が強化出来たり全国展開をされている企業様のご移転をより密にサポートさせて頂く事が可能です。
- 電話でお問合せ(通話無料)
お問合せ先 :株式会社クイックコンサルティング
不動産会社情報
株式会社クイックコンサルティング株式会社クイックコンサルティング
東京都中央区日本橋3丁目8-16 ぶよおビル5F
東京メトロ東西線 日本橋駅 徒歩3分
- 営業時間
- 09:30~18:30
- 定休日
- 土日祝 年末年始 お盆休み
電話でお問合せお客様の電話番号は不動産会社には通知されません
- 不動産会社に
つながります
お客様の電話番号は不動産会社に通知されません
- ※光IP電話、及びIP電話からはご利用になれません
- ※お電話によるお問合せは、店舗営業時間内にお願いします。つながらない場合は、お問合せフォームよりお問合せください
- ※不動産会社がお電話に出られなかった場合、お問合せいただいた後に不動産会社より折り返しのお電話がある場合がございます(お客様が非通知設定した場合は対象外です)
- ※株式会社LIFULLは電話会社が提供するサービスを介してお客様の発信者番号を受領後、折り返し専用の電話番号を発番してお問合せの不動産会社に通知します(お客様の発信者番号がお問合せの不動産会社に通知されることはございません)
- ※携帯電話からお問合せいただいた方に対し、株式会社LIFULLは電話会社が提供するメッセ―ジサービスを介してお客様の発信者番号を受領後、ショートメッセージ(SMS)またはLINE通知メッセージによるお問合せ内容に関する通知をお届けする場合があります
- ※お客様が通話中に不動産会社にお伝えになったお客様の個人情報及び、電話会社が発番する折り返し専用の電話番号は、お問合せ先不動産会社が資料送付・電子メール送信・電話連絡などの目的で保管する可能性があります。お問合せ先不動産会社が保管する個人情報の取扱いについては、各不動産会社に直接お問合せください
- ※株式会社LIFULLでは本サービスを円滑に運用するために、お客様の発信者番号をサービスご利用の控えとして一定期間保管いたします
- ※上記および株式会社LIFULLの個人情報の取扱い方針に同意のうえ、お電話ください
【LIFULL HOME'S物件番号】0131519-0012584【自社管理番号】3598846
- 保存する
- 共有する
- ※各種情報と現状に差異がある場合は、現状優先となります
- ※不動産会社が入力した情報を基に物件の位置を表示しています。詳しくは不動産会社までお問合せください
- ※不動産会社の方からの上記電話番号によるお問合せはお断りしております。こちら不動産会社詳細からお問合せください
- ※LIFULL HOME'Sは物件鮮度No.1を目指していきます。「実際の物件情報と異なる点がある」「成約済の物件が掲載されている」などの場合は、こちらのフォーム掲載110番からお問合せください
- ※QRコードは株式会社デンソーウェーブの登録商標です










