LIFULL HOME'Sは物件鮮度No.1!※評価について
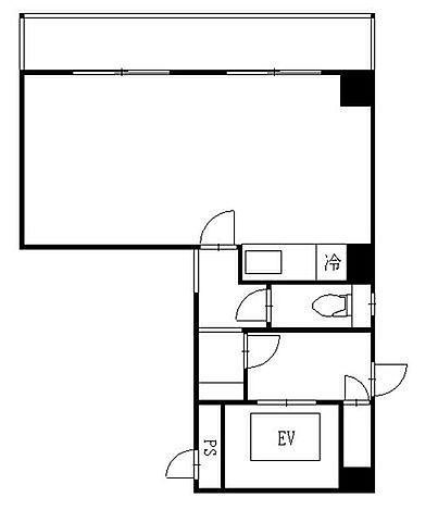
賃貸店舗事務所八木ビル 5階/501
18.7万円/管理費等33,000円
1時間前 更新
お問合せ先 :株式会社タウンハウジング ビル事業部
3路線利用可能。室内はリノベーション済み、事務所仕様となります。
物件のこだわり/設備・条件
新築(非該当)
2階以上の物件(該当)
駐車場(非該当)
即引渡し可(該当)
エレベーター(該当)
設備・条件
給湯、専用トイレ、オートロック、24時間セキュリティ、光ファイバー、フリーアクセス、エレベーター、即引渡し可
物件周辺の生活情報
交通
- 東京メトロ有楽町線 新富町駅 徒歩1分
- 普通(停車)
- 通勤急行(通過)
- 急行(通過)
- 東京メトロ日比谷線 築地駅 徒歩5分
- 普通(停車)
※急行等の停車駅情報について
急行等の停車駅に関するデータは、随時更新をしておりますが、最新の内容であることを保証するものではありません。
最新かつ正確な情報につきましては、各鉄道会社のウェブサイトにてご確認ください
物件周辺の口コミ
- 東京都中央区湊に住む人の口コミ30代女性
治安は悪くないし、交通の便がいい。地下鉄でベビーカーを持って乗るのは難しい。
口コミを見る
この物件周辺に住む人の口コミ
口コミは、LIFULL HOME'Sが実際にこの物件の周辺に住む18歳~69歳の男女を対象に、WEBアンケート調査を実施しています。内容には回答者の主観的な表現が含まれる場合があるほか、事実と異なる場合もございます。ご了承ください。
- 東京都中央区湊に住む人の口コミ30代女性
- 治安は悪くないし、交通の便がいい。地下鉄でベビーカーを持って乗るのは難しい。
- 東京都中央区銀座に住む人の口コミ50代男性
- 日本で一番有名な高級商業地域である。それにしては住みやすい。
- 東京都中央区新川に住む人の口コミ30代女性
- 都心のため交通の便がよく、生活には困らないため。また、治安も良く夜でも安心して出歩くことができるため。
- 東京都中央区八丁堀に住む人の口コミ40代女性
- オフィス街の雰囲気で住宅街にあるようなお店が少ない。東京駅、日本橋、築地、銀座、デパートなどにも徒歩で行けるがうれしい。静かで過ごしやすい。警察の方や警備の方の巡回も見かけるので治安もよさそう。
- 東京都中央区新富に住む人の口コミ20代女性
- 交通の利便性が良い。都心部でありながら、治安も良く比較的静か。買い物ができるスーパーや個人商店が複数ある。
- 東京都中央区八丁堀に住む人の口コミ40代女性
- 利便性が非常に高く、買い物も不自由はしない。公立の学校も教育内容がよく、治安がよい。外食や中食を行うにも大変便利。通勤時間も短い。
- 東京都中央区新川に住む人の口コミ40代男性
- 基本的に静かで治安の良さがあり安心感がある。バスや複数の路線が利用できて各方面へのアクセスも良い。買い物や飲食店や医療機関も充実している印象で住むに困らない。
- 東京都中央区築地に住む人の口コミ50代女性
- 大型スーパーがないので、食料品を買うのは不便だが、歩いて銀座に行くことができるのは便利だと感じている。
- 東京都中央区銀座に住む人の口コミ60代女性
- 物価は高いが良い品が揃えられる。交通の利便性が最高。スーパーマーケットがあったら、どんなにいいかと思う。
- 東京都中央区八丁堀に住む人の口コミ30代男性
- まず何より交通の便がよく、東京駅や銀座にすぐ行けるのは魅力的である。子育て世帯にも優しく医療費は中学校までタダだし、出産後のお母さんが安心して職場復帰できるよう保育園なども充実している。
物件概要
- 建物構造
- RC(鉄筋コンクリート)
- 駐車場
- -
- 総戸数
- -
- 建築面積
- -
- 敷地面積
- -
- 住宅保険
- 不要
- 契約形態
- -
- 契約期間
- 2年間
- 更新料
- 新賃料の1ヶ月分
- その他費用
- 仲介手数料:賃料1ヶ月分に対する110%
- 管理
- -
- 現況
- 空家
- 引渡し
- 即時
- 見学可能な物件です。希望日時を予約できます(無料)
- 見学予約をする
- LIFULL HOME'S
物件番号 - 0131037-0027051
- 自社管理番号
- R01402-174215
- 取引態様
- 一般媒介★
- 情報公開日
- 2025/09/30
- 情報更新日
- 2026/01/08
- 次回更新
予定日 - 2026/01/15
- 会社名
- 株式会社タウンハウジング ビル事業部
- 電話でお問合せ(通話無料)
お問合せ先 :株式会社タウンハウジング ビル事業部
不動産会社情報
電話でお問合せお客様の電話番号は不動産会社には通知されません
- 不動産会社に
つながります
お客様の電話番号は不動産会社に通知されません
- ※光IP電話、及びIP電話からはご利用になれません
- ※お電話によるお問合せは、店舗営業時間内にお願いします。つながらない場合は、お問合せフォームよりお問合せください
- ※不動産会社がお電話に出られなかった場合、お問合せいただいた後に不動産会社より折り返しのお電話がある場合がございます(お客様が非通知設定した場合は対象外です)
- ※株式会社LIFULLは電話会社が提供するサービスを介してお客様の発信者番号を受領後、折り返し専用の電話番号を発番してお問合せの不動産会社に通知します(お客様の発信者番号がお問合せの不動産会社に通知されることはございません)
- ※携帯電話からお問合せいただいた方に対し、株式会社LIFULLは電話会社が提供するメッセ―ジサービスを介してお客様の発信者番号を受領後、ショートメッセージ(SMS)またはLINE通知メッセージによるお問合せ内容に関する通知をお届けする場合があります
- ※お客様が通話中に不動産会社にお伝えになったお客様の個人情報及び、電話会社が発番する折り返し専用の電話番号は、お問合せ先不動産会社が資料送付・電子メール送信・電話連絡などの目的で保管する可能性があります。お問合せ先不動産会社が保管する個人情報の取扱いについては、各不動産会社に直接お問合せください
- ※株式会社LIFULLでは本サービスを円滑に運用するために、お客様の発信者番号をサービスご利用の控えとして一定期間保管いたします
- ※上記および株式会社LIFULLの個人情報の取扱い方針に同意のうえ、お電話ください
【LIFULL HOME'S物件番号】0131037-0027051【自社管理番号】R01402-174215
- 保存する
- 共有する
- ※各種情報と現状に差異がある場合は、現状優先となります
- ※不動産会社が入力した情報を基に物件の位置を表示しています。詳しくは不動産会社までお問合せください
- ※不動産会社の方からの上記電話番号によるお問合せはお断りしております。こちら不動産会社詳細からお問合せください
- ※LIFULL HOME'Sは物件鮮度No.1を目指していきます。「実際の物件情報と異なる点がある」「成約済の物件が掲載されている」などの場合は、こちらのフォーム掲載110番からお問合せください
- ※QRコードは株式会社デンソーウェーブの登録商標です


















