LIFULL HOME'Sは物件鮮度No.1!※評価について
物件のこだわり/設備・条件
新築(非該当)
2階以上の物件(該当)
駐車場(非該当)
即引渡し可(該当)
エレベーター(該当)
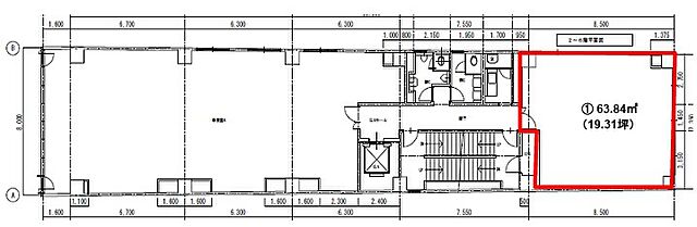
設備・条件
温水洗浄便座、光ファイバー、エレベーター、即引渡し可備考
【業種不可:就労支援・飲食・民泊・レンタルオフィス・会議室・トランクルーム】それ以外のサロンや来店型オフィス利用についてはお問い合わせください。また、オフィス街の主要な物件は全て網羅しておりますので掲載物件以外に非公開物件からもご紹介可能です。
物件周辺の生活情報
交通
- Osaka Metro堺筋線 北浜駅 徒歩3分
- 普通(停車)
- 準急(停車)
- Osaka Metro御堂筋線 淀屋橋駅 徒歩7分
- 普通(停車)
※急行等の停車駅情報について
急行等の停車駅に関するデータは、随時更新をしておりますが、最新の内容であることを保証するものではありません。
最新かつ正確な情報につきましては、各鉄道会社のウェブサイトにてご確認ください
物件周辺の口コミ
- 大阪府大阪市西区江戸堀に住む人の口コミ60代男性
鉄道の駅から近く日常の食品、日用品用の買い物も近くにあり便利。
口コミを見る
この物件周辺に住む人の口コミ
口コミは、LIFULL HOME'Sが実際にこの物件の周辺に住む18歳~69歳の男女を対象に、WEBアンケート調査を実施しています。内容には回答者の主観的な表現が含まれる場合があるほか、事実と異なる場合もございます。ご了承ください。
- 大阪府大阪市西区江戸堀に住む人の口コミ60代男性
- 鉄道の駅から近く日常の食品、日用品用の買い物も近くにあり便利。
- 大阪府大阪市北区西天満に住む人の口コミ20代女性
- 交通の便もよく、中心地に近い割には閑静な住宅地もあり、地元の人も上品な人が多く治安がよいから。
- 大阪府大阪市西区江戸堀に住む人の口コミ50代男性
- 大きな公園もありテニスのイベントもあり近年お洒落な店もふえてますが中国大使館があるので週末はうるさいのと若い人が町を汚してる
- 大阪府大阪市北区西天満に住む人の口コミ20代女性
- 多少家賃は高いが、交通、買い物、遊びのどれに関しても立地がいい。治安もわりとよい。とくに不満に思う事がない。
- 大阪府大阪市北区菅原町に住む人の口コミ60代女性
- 都会の中に中之島公園があり、交通が便利で静か、北浜に近く、歴史ある街だと思うから。
- 大阪府大阪市中央区淡路町に住む人の口コミ40代女性
- 複数の鉄道路線が利用できる。歴史ある建造物と新しいビルが混在していて面白い。緑豊かな公園がある。飲食店、コンビニが多い。治安が良い。
- 大阪府大阪市北区堂島に住む人の口コミ40代女性
- 近くに百貨店が何件もあるのでなんでも揃うし、ファッションビルや大型書店など、物を揃えるのに苦労しない。靱公園も近いので、自然もある。大阪駅まで歩いていけるので、電車どの沿線にも利用可能。
- 大阪府大阪市北区中之島に住む人の口コミ60代女性
- 都会の割りには静かだし文化レベルの高い地域なので良いと思います。
- 大阪府大阪市北区中之島に住む人の口コミ20代女性
- 治安が良く、スーパーも近い。また駅もバス停も近くにあるので都市部に行くのも楽。高収入の人が多いのか、自分も頑張らないとと励まされる。
- 大阪府大阪市西区江戸堀に住む人の口コミ40代女性
- 治安が良く、学校も落ち着いているところが、満足しているが、物価が高めなのが、少し不満です。
物件概要
- 建物構造
- SRC(鉄骨鉄筋コンクリート)
- 駐車場
- 空無
- 総戸数
- -
- 建築面積
- -
- 敷地面積
- -
- 住宅保険
- 要
- 契約形態
- -
- 契約期間
- 2年間
- 更新料
- -
- その他費用
- -
- 管理
- -
- 現況
- 空家
- 引渡し
- 即時
- LIFULL HOME'S
物件番号 - 0128493-0058535
- 自社管理番号
- biz-111122
- 取引態様
- 一般媒介
- 情報公開日
- 2025/11/19
- 情報更新日
- 2026/05/18
- 次回更新
予定日 - 2026/05/25
- 会社名
- 株式会社エステートエージェンシー
営業スタッフコメント

株式会社エステートエージェンシー
武内
皆さんこんにちは、営業の武内です!
業界経験3年
資格宅地建物取引士
- 会社実績や特徴・サービス情報
- オフィス専門の不動産会社ですので、大阪の主要な物件は全て取り扱っております。非公開物件多数。
オフィス専門の不動産会社ですので、大阪の主要な物件は全て取り扱っております。非公開物件多数。
- 電話でお問合せ(通話無料)
お問合せ先 :株式会社エステートエージェンシー
不動産会社情報
株式会社エステートエージェンシー

大阪府大阪市中央区南本町4丁目5-7 東亜ビル 5階
Osaka Metro御堂筋線 本町駅 徒歩1分
- 営業時間
- 09:00~18:00
- 定休日
- 日・祝日
優良店認定
【賃貸オフィス専門】累計契約件数2000件突破。大阪・東京の主要な物件はすべてご紹介可能です。オーナ様のご意向によりネット掲載不可の物件が多数ございますので、お気軽にお問い合わせください。
- 店舗の特徴
- 賃貸管理業務
- リフォーム対応
- 引越し業者紹介可
- オンライン相談可
- 法人契約取扱い
- 女性スタッフ対応可
- 駅から歩いて3分以内
電話でお問合せお客様の電話番号は不動産会社には通知されません
- 不動産会社に
つながります
お客様の電話番号は不動産会社に通知されません
- ※光IP電話、及びIP電話からはご利用になれません
- ※お電話によるお問合せは、店舗営業時間内にお願いします。つながらない場合は、お問合せフォームよりお問合せください
- ※不動産会社がお電話に出られなかった場合、お問合せいただいた後に不動産会社より折り返しのお電話がある場合がございます(お客様が非通知設定した場合は対象外です)
- ※株式会社LIFULLは電話会社が提供するサービスを介してお客様の発信者番号を受領後、折り返し専用の電話番号を発番してお問合せの不動産会社に通知します(お客様の発信者番号がお問合せの不動産会社に通知されることはございません)
- ※携帯電話からお問合せいただいた方に対し、株式会社LIFULLは電話会社が提供するメッセ―ジサービスを介してお客様の発信者番号を受領後、ショートメッセージ(SMS)またはLINE通知メッセージによるお問合せ内容に関する通知をお届けする場合があります
- ※お客様が通話中に不動産会社にお伝えになったお客様の個人情報及び、電話会社が発番する折り返し専用の電話番号は、お問合せ先不動産会社が資料送付・電子メール送信・電話連絡などの目的で保管する可能性があります。お問合せ先不動産会社が保管する個人情報の取扱いについては、各不動産会社に直接お問合せください
- ※株式会社LIFULLでは本サービスを円滑に運用するために、お客様の発信者番号をサービスご利用の控えとして一定期間保管いたします
- ※上記および株式会社LIFULLの個人情報の取扱い方針に同意のうえ、お電話ください
【LIFULL HOME'S物件番号】0128493-0058535【自社管理番号】biz-111122
- 保存する
- 共有する
- ※各種情報と現状に差異がある場合は、現状優先となります
- ※不動産会社が入力した情報を基に物件の位置を表示しています。詳しくは不動産会社までお問合せください
- ※不動産会社の方からの上記電話番号によるお問合せはお断りしております。こちら不動産会社詳細からお問合せください
- ※LIFULL HOME'Sは物件鮮度No.1を目指していきます。閲覧中の物件が「成約済である」「実際の物件情報と異なる点がある」などの場合、「掲載110番」からお問合せください
- ※QRコードは株式会社デンソーウェーブの登録商標です


















