LIFULL HOME'Sは物件鮮度No.1!※評価について
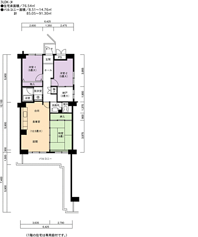
UR白鳥パークハイツ神宮西(4階/3LDK/76.54m²)
UR白鳥パークハイツ神宮西(4階/3LDK/76.54m²)
10.04万円/管理費等2,900円
15時間前 更新
画像一覧
1/19間取り
2/19外観
3/19リビング/ダイニング
4/19室内
5/19室内
6/19室内
7/19室内
8/19キッチン
9/19浴室
10/19玄関
11/19その他
12/19その他
13/19その他
14/19周辺
コンビニ「セブンイレブン名古屋旗屋町2丁目店まで450m」
15/19周辺
スーパー「ヤマナカ日比野店まで1200m」
16/19周辺
小学校「旗屋小学校まで1000m」
17/19周辺
中学校「沢上中学校まで1500m」
18/19周辺
病院「重工記念病院まで848m」
19/19周辺
幼稚園・保育園「白鳥幼稚園まで650m」
間取り
外観
リビング/ダイニング
室内
室内
室内
室内
キッチン
浴室
玄関
その他
その他
その他
周辺
周辺
周辺
周辺
周辺
周辺
お問合せ先 :独立行政法人都市再生機構 UR賃貸ショップ金山
UR賃貸住宅は、礼金・仲介手数料・更新料・保証人不要!
基本情報
不動産用語- 賃料
- 10.04万円
- 管理費等
- 2,900円
初期費用などお気軽にお問合せください
- 敷金/礼金
- 2ヶ月/無
- 保証金/敷引・償却金
- -/-
- 交通
名古屋市営名城線 熱田神宮西駅 徒歩7分
JR東海道本線 熱田駅 徒歩13分
- 所在地
愛知県名古屋市熱田区旗屋2丁目
地図を見る- 築年月
- 1989年4月(築38年)
- 主要採光面
- 南
- 専有面積
- 76.54㎡
- バルコニー面積
- -
- 所在階/階数
- 4階/8階建
見学可能な物件です。希望日時を予約できます(無料)
- 現況
- 空家
- 入居可能時期
- 即時

人気物件はすぐに埋まってしまいます。
気になったらお早めにお問合せください。
- 情報公開日
2026/03/08
70日前 公開
- 情報更新日
2026/05/16
15時間前 更新
- 次回更新
予定日 - 2026/05/23
物件周辺の生活情報
学校
- 旗屋小学校(1,000m)
- 沢上中学校(1,500m)
買い物
- コンビニ(450m)
- スーパー(1,200m)
- 商店街(0m)
- ドラッグストア(0m)
その他施設
- 総合病院(848m)
- 公園(100m)
- 銀行(518m)
- 白鳥公園(100m)
交通
- 名古屋市営名城線 熱田神宮西駅 徒歩7分
- 普通(停車)
- JR東海道本線 熱田駅 徒歩13分
- 普通(停車)
- 快速(通過)
- 区間快速(通過)
- 特別快速(通過)
- 新快速(通過)
※急行等の停車駅情報について
急行等の停車駅に関するデータは、随時更新をしておりますが、最新の内容であることを保証するものではありません。
最新かつ正確な情報につきましては、各鉄道会社のウェブサイトにてご確認ください
物件周辺の口コミ
- 愛知県名古屋市熱田区旗屋に住む人の口コミ30代女性
駅が近くて便利なのに、公園や森や神社などの緑もバランスよくあるから。
口コミを見る
この物件周辺に住む人の口コミ
口コミは、LIFULL HOME'Sが実際にこの物件の周辺に住む18歳~69歳の男女を対象に、WEBアンケート調査を実施しています。内容には回答者の主観的な表現が含まれる場合があるほか、事実と異なる場合もございます。ご了承ください。
- 愛知県名古屋市熱田区旗屋に住む人の口コミ30代女性
- 駅が近くて便利なのに、公園や森や神社などの緑もバランスよくあるから。
- 愛知県名古屋市熱田区旗屋に住む人の口コミ30代女性
- 改善してほしい点もあるが、長く住んでいるので慣れてしまって満足している
- 愛知県名古屋市熱田区大宝に住む人の口コミ30代女性
- 街がきれいで気持ちがよい、住んでいるかたが、上品なかたがおおく、みなさん挨拶など必ずしてくれ、親切
- 愛知県名古屋市熱田区外土居町に住む人の口コミ40代女性
- 閑静な住宅街、マンションが多く、交通機関が充実している。少し電車に乗ればにデパートにもすぐ行ける。
- 愛知県名古屋市熱田区六野に住む人の口コミ50代男性
- 歴史的な熱田神宮や、近くに大型ショッピングモールが有り交通の便利さ等で満足しています
- 愛知県名古屋市熱田区沢上に住む人の口コミ60代男性
- 総合駅が近くにありバス停があるため市内移動がスムース国際空港にも列車やバスが出ている。乗り換えれば新幹線、夏祭りでは花火大会が見え買い物はバスまたは車で大型複合施設に行ける。
- 愛知県名古屋市熱田区一番に住む人の口コミ30代女性
- 近くの住民とも挨拶が出来、助け合っていけるし、バスも地下鉄も近く、平坦で自転車もスムーズ。
- 愛知県名古屋市熱田区大宝に住む人の口コミ30代女性
- 日常生活を送るのに必要な物を揃えやすい環境だと思う。治安は、満足とは言えないが、良いほうだと思う。交通の便は良いと思う
- 愛知県名古屋市熱田区池内町に住む人の口コミ60代女性
- 徒歩圏内に大型商業施設があり、交通の便も良いただ、病院が近くにあまりない
- 愛知県名古屋市熱田区玉の井町に住む人の口コミ50代女性
- 交通が便利な点。バス停まで徒歩二分。他にも三つの鉄道があり非常に便利
物件概要
- 建物構造
- RC(鉄筋コンクリート)
- 駐車場
- 空有 (4台) 13,860円(税無)
- 総戸数
- 88戸
- 契約形態
- -
- 契約期間
- 1年間
- 更新料
- -
- その他費用
- -
- 保証会社
- -
- 住宅保険
- 不要
- 管理
- -
- LIFULL HOME'S
物件番号 - 0126957-0006482
- 自社管理番号
- 3-564-27-0410
- 取引態様
- 貸主★
- 会社名
- 独立行政法人都市再生機構 UR賃貸ショップ金山
- 電話でお問合せ(通話無料)
お問合せ先 :独立行政法人都市再生機構 UR賃貸ショップ金山
不動産会社情報
独立行政法人都市再生機構 UR賃貸ショップ金山

愛知県名古屋市熱田区金山町1丁目5‐3 ト‐ワ金山ビル1階
JR中央本線 金山駅 徒歩1分
- 営業時間
- 09:30~18:00
- 定休日
- 毎週水曜日・年末年始
優良店認定
電話でお問合せお客様の電話番号は不動産会社には通知されません
- 不動産会社に
つながります
お客様の電話番号は不動産会社に通知されません
- ※光IP電話、及びIP電話からはご利用になれません
- ※お電話によるお問合せは、店舗営業時間内にお願いします。つながらない場合は、お問合せフォームよりお問合せください
- ※不動産会社がお電話に出られなかった場合、お問合せいただいた後に不動産会社より折り返しのお電話がある場合がございます(お客様が非通知設定した場合は対象外です)
- ※株式会社LIFULLは電話会社が提供するサービスを介してお客様の発信者番号を受領後、折り返し専用の電話番号を発番してお問合せの不動産会社に通知します(お客様の発信者番号がお問合せの不動産会社に通知されることはございません)
- ※携帯電話からお問合せいただいた方に対し、株式会社LIFULLは電話会社が提供するメッセ―ジサービスを介してお客様の発信者番号を受領後、ショートメッセージ(SMS)またはLINE通知メッセージによるお問合せ内容に関する通知をお届けする場合があります
- ※お客様が通話中に不動産会社にお伝えになったお客様の個人情報及び、電話会社が発番する折り返し専用の電話番号は、お問合せ先不動産会社が資料送付・電子メール送信・電話連絡などの目的で保管する可能性があります。お問合せ先不動産会社が保管する個人情報の取扱いについては、各不動産会社に直接お問合せください
- ※株式会社LIFULLでは本サービスを円滑に運用するために、お客様の発信者番号をサービスご利用の控えとして一定期間保管いたします
- ※上記および株式会社LIFULLの個人情報の取扱い方針に同意のうえ、お電話ください
【LIFULL HOME'S物件番号】
初期費用・月額費用をあわせて確認!この物件に住んだときの費用めやす
めやすを見るこの物件に住んだときの費用めやす
- 初期費用
- 月額費用
- 追加費用※ご確認ください
追加で費用が
かかる場合があります
必ずご確認ください
※追加費用もチェック!
これらの項目以外にも費用がかかる場合があります。正確な金額は不動産会社にお問合せください。
- 初期費用
- 鍵交換費:不動産会社に要確認
- 室内清掃費:不動産会社に要確認
- 火災保険費:不動産会社に要確認
- 月額費用
- 駐車場費:13,860円※契約任意
- 保証会社
- 不動産会社に要確認
不動産会社より
UR賃貸住宅は、礼金・仲介手数料・更新料・保証人不要!
- 保存する
- 共有する
- ※各種情報と現状に差異がある場合は、現状優先となります
- ※不動産会社が入力した情報を基に物件の位置を表示しています。詳しくは不動産会社までお問合せください
- ※不動産会社の方からの上記電話番号によるお問合せはお断りしております。こちら不動産会社詳細からお問合せください
- ※LIFULL HOME'Sは物件鮮度No.1を目指していきます。閲覧中の物件が「成約済である」「実際の物件情報と異なる点がある」などの場合、「掲載110番」からお問合せください
- ※QRコードは株式会社デンソーウェーブの登録商標です
したい暮らしのタグから探す
LIFULL HOME'S 地図・周辺情報
買い物
- セブンイレブン 名古屋旗屋2丁目店
- ヤマナカ 日比野店
- ウエルシア熱田大宝店
- ミニストップ 神宮西駅前店
- パレマルシェ 神宮前店
グルメ
- ガスト 熱田一番店(から好し取扱店)
- コメダ珈琲店西高蔵店
- コメダ珈琲店日比野店
- 街かど屋熱田一番店
- スターバックスコーヒーミュープラット神宮前店
育児・教育
- 一番町保育園
- 名古屋市立白鳥小学校
- 名古屋市立宮中学校
- 白鳥幼稚園
- 名古屋市立旗屋小学校
医療
- 医療法人桂名会重工記念病院
- 医療法人杏園会熱田リハビリテーション病院
- 医療法人三恵会服部病院
- 水谷病院
- みなと医療生活協同組合協立総合病院
公共施設・郵便局
- 名古屋熱田神宮西郵便局
- 名古屋市熱田図書館
- 熱田警察署
- 名古屋熱田駅前郵便局
- 名古屋市港図書館
公園
- 白鳥公園
- 熱田公園
- 大瀬子公園
- 高蔵公園
- 神宮東公園
利用可能な駅
- 徒歩10分以内
名古屋市営名城線
- 熱田神宮西駅徒歩7分
- すべての駅
JR東海道本線
- 熱田駅徒歩13分
- 周辺情報は2023年07月21日時点のものになります。
- 周辺情報は、参考情報としてのみご利用ください(周辺情報は、株式会社LIFULLが地図情報の提供事業者から提供を受けた情報とLIFULL HOME'Sの物件情報に基づき、独自の方法で抽出し提供しているものです。周辺情報は、移転や閉鎖等により情報が最新ではない、または正しくない場合がありますが、地図情報の提供事業者から提供された情報をそのまま周辺情報として表示しているため、正確かつ最新の情報へ修正することができないことがあります。)
- 周辺情報は、株式会社LIFULLが掲載するものであり、不動産物件情報を掲載している不動産会社が掲載するものではありません
- 交通情報の一部については、株式会社LIFULLが掲載するものであり、不動産物件情報を掲載している不動産会社が掲載するものではない場合があります。交通情報に関する質問などは株式会社LIFULLにお問合せください




