LIFULL HOME'Sは物件鮮度No.1!※評価について
阪急京都本線 西院駅 徒歩10分(3階/1LDK/31.84m²)
阪急京都本線 西院駅 徒歩10分(3階/1LDK/31.84m²)
5.6万円/管理費等5,000円
16時間前 更新
画像一覧
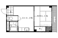
1/30間取り
間取
2/30外観
3/30外観
4/30リビング/ダイニング
落ち着いた雰囲気のお部屋です
5/30リビング/ダイニング
6/30リビング/ダイニング
7/30リビング/ダイニング
8/30リビング/ダイニング
9/30リビング/ダイニング
10/30寝室
11/30寝室
12/30キッチン
ガスコンロ設置可
13/30キッチン
14/30キッチン
小物も整理できます
15/30キッチン
小物も整理できます
16/30キッチン
ガスコンロ設置可
17/30浴室
2点セパレート
18/30浴室
2点セパレート
19/30トイレ
2点セパレート
20/30洗面
2点セパレート
21/30収納
たっぷり収納できます
22/30設備
設備充実物件
23/30設備
24/30玄関
大きな段差がありません
25/30バルコニー
26/30バルコニー
27/30その他
28/30その他
29/30その他
30/30周辺
サンディ京都山ノ内店まで160m
間取り
外観
外観
リビング/ダイニング
リビング/ダイニング
リビング/ダイニング
リビング/ダイニング
リビング/ダイニング
リビング/ダイニング
寝室
寝室
キッチン
キッチン
キッチン
キッチン
キッチン
浴室
浴室
トイレ
洗面
収納
設備
設備
玄関
バルコニー
バルコニー
その他
その他
その他
周辺
1〜3月は引越しシーズンのピークです。お問合せはお早めに!
仲介手数料割引
仲介手数料50%(税別)でご成約頂けます。
- 利用条件
- 株式会社京都ライフ 烏丸五条店で利用可
- 他特典との併用可
- ※法人契約、積水ハウス、大東建託の管理物件は家賃1か月分の仲介手数料要。
利用方法
来店時に本特典の画面をスマートフォンやタブレットでスタッフに提示、または画面印刷した用紙を提示ください。
有効期限 なし
部屋も収納も大です。 西院駅徒歩10分。閑静な住宅街にある1LDK。
物件のこだわり/設備・条件
新築(非該当)
2階以上の物件(該当)
南向き(該当)
駐車場(非該当)
オートロック(非該当)
エアコン(該当)
バス・トイレ別(該当)
追焚機能(非該当)
フローリング(該当)
ペット相談(非該当)
位置
角部屋入居条件
二人入居可、即入居可キッチン/バス・トイレ
設備・サービス
TVモニタ付インターホン、エアコン、CATV、BS対応、インターネット使用料無料、公営水道、都市ガス、下水、フローリング、バルコニー、南面バルコニー、ゴミ出し24時間OK、駐輪場ありその他
住まい探し特典あり備考
西院駅まで徒歩10分の1LDK。お2人暮らしにもお1人暮らしにも。寝食しっかり分けられるのが嬉しいですね。静かな住宅街ながら近くにスーパー・コンビニ・ドラッグストアが充実しているのがポイント高め。礼金無しのうれしい条件です。落ち着いた環境で新生活を始めたい方、ぜひいかがでしょうか。右京区のお部屋探しを京都ライフまで。 物件情報はもちろん京都のエリア情報まで幅広く対応させていただきます!
物件周辺の生活情報
買い物
- コンビニ(308m)
- スーパー(160m)
- ドラッグストア(219m)
その他施設
- 総合病院(1,319m)
- 銀行(426m)
- 京都四条乾郵便局(338m)
交通
- 阪急京都本線 西院駅 徒歩10分
- 普通(停車)
- 準急(停車)
- 堺筋準急(停車)
- 通勤特急(停車)
- 特急(通過)
- 急行(停車)
- 準特急(停車)
- 京都地下鉄東西線 太秦天神川駅 徒歩14分
- 普通(停車)
※急行等の停車駅情報について
急行等の停車駅に関するデータは、随時更新をしておりますが、最新の内容であることを保証するものではありません。
最新かつ正確な情報につきましては、各鉄道会社のウェブサイトにてご確認ください
物件周辺の口コミ
- 京都府京都市右京区西院春栄町に住む人の口コミ30代女性
車が多い地域なので、子供1人で外に行ったりはできないが、近くに公園もあり、児童館や保育園もあるので、不便はない。バスもたくさんあり、電車もあるので、交通の便に関してはたいへん満足している。
口コミを見る
この物件周辺に住む人の口コミ
口コミは、LIFULL HOME'Sが実際にこの物件の周辺に住む18歳~69歳の男女を対象に、WEBアンケート調査を実施しています。内容には回答者の主観的な表現が含まれる場合があるほか、事実と異なる場合もございます。ご了承ください。
- 京都府京都市右京区西院春栄町に住む人の口コミ30代女性
- 車が多い地域なので、子供1人で外に行ったりはできないが、近くに公園もあり、児童館や保育園もあるので、不便はない。バスもたくさんあり、電車もあるので、交通の便に関してはたいへん満足している。
- 京都府京都市右京区西院春栄町に住む人の口コミ20代女性
- 暮らしていく中で必要なものは手近でてに入り、電車やバスですぐ街中にでられるところ。
- 京都府京都市右京区西院春栄町に住む人の口コミ20代女性
- 最寄り駅からの交通アクセスも良く、飲食店も多いので生活には困らないです。
- 京都府京都市右京区西院春栄町に住む人の口コミ40代女性
- 住宅街なので夜暗いところがある。道路が極端に狭いところがあり、車と人と行き来がし辛い箇所も。一方通行や通り抜けできないところ、地理を把握していないと住み辛い。
- 京都府京都市右京区西院春栄町に住む人の口コミ60代男性
- 買い物も夜遅くまであいているスーパーがあり人通りもあり夜も安心
- 京都府京都市右京区西院春栄町に住む人の口コミ30代女性
- 近くになんでもあるし、繁華街まですぐ出れるのにごちゃごちゃしていない
- 京都府京都市右京区西院春栄町に住む人の口コミ20代女性
- ファーストフード店がたくさんありコンビニもたくさんあるから何かと便利。
- 京都府京都市中京区西ノ京島ノ内町に住む人の口コミ20代女性
- 子供・お年寄りが多いので遊んでいても気兼ねなく外で遊べる。交通の利便性が良い。スーパーや保育所が近くにあるので子育てしやすい
- 京都府京都市右京区山ノ内山ノ下町に住む人の口コミ30代男性
- 買い物の便利さと駅から少し離れた住宅街で過ごしやすい。役所も近いので手続きも便利。
- 京都府京都市右京区西院松井町に住む人の口コミ30代女性
- 交通アクセスもよく買い物もしやすくよいが、治安が良いとまでは言えない
物件概要
- 建物構造
- ALC造
- 駐車場
- 近隣 16,500円(税込) 物件からの距離200m
- 総戸数
- 8戸
- 契約形態
- -
- 契約期間
- 2年間
- 更新料
- 新賃料の1ヶ月分
- その他費用
- 室内清掃費用:41,800円、RANZ CLUB:1,320円、書類代:11,000円
- 保証会社
加入要
保証会社:オリコフォレント
保証会社利用料:初回:月額賃料等の50%、月額:システム利用料330円、更新時:1万円/1年
- 住宅保険
- 要
- 管理
- 管理員:巡回
- LIFULL HOME'S
物件番号 - 0126938-0258120
- 自社管理番号
- 06716-302-23
- 取引態様
- 仲介
- 会社名
- 株式会社京都ライフ 烏丸五条店
営業スタッフコメント

株式会社京都ライフ 烏丸五条店賃貸仲介営業
中山登夢
お部屋探しは、私にお任せを!
業界経験2年
資格宅地建物取引士
- 会社実績や特徴・サービス情報
- この度は物件情報のご閲覧ありがとうございます。 ご案内ご希望の際は店頭・現地・最寄り駅等、 お客様のご都合に合わせお待ち合わせも可能です。 お気軽におっしゃってくださいませ。 お問い合わせを心よりお待ちしております。
この度は物件情報のご閲覧ありがとうございます。 ご案内ご希望の際は店頭・現地・最寄り駅等、 お客様のご都合に合わせお待ち合わせも可能です。 お気軽におっしゃってくださいませ。 お問い合わせを心よりお待ちしております。
- 電話でお問合せ(通話無料)
お問合せ先 :株式会社京都ライフ 烏丸五条店
不動産会社情報
京都の情報を熟知した店舗スタッフが、豊富な物件量で皆様のお部屋探しを全力でサポートさせていただきます!お客様からのお問い合わせ・ご来店、烏丸五条店スタッフ一同心よりお待ちしております。
- 店舗の特徴
- 引越し業者紹介可
- 系列店舗での対応可
- 社宅・寮物件取扱い
- オンライン相談可
- 保証人不要な物件あり
- 法人契約取扱い
- 女性スタッフ対応可
- 駅から歩いて3分以内
電話でお問合せお客様の電話番号は不動産会社には通知されません
- 不動産会社に
つながります
お客様の電話番号は不動産会社に通知されません
- ※光IP電話、及びIP電話からはご利用になれません
- ※お電話によるお問合せは、店舗営業時間内にお願いします。つながらない場合は、お問合せフォームよりお問合せください
- ※不動産会社がお電話に出られなかった場合、お問合せいただいた後に不動産会社より折り返しのお電話がある場合がございます(お客様が非通知設定した場合は対象外です)
- ※株式会社LIFULLは電話会社が提供するサービスを介してお客様の発信者番号を受領後、折り返し専用の電話番号を発番してお問合せの不動産会社に通知します(お客様の発信者番号がお問合せの不動産会社に通知されることはございません)
- ※携帯電話からお問合せいただいた方に対し、株式会社LIFULLは電話会社が提供するメッセ―ジサービスを介してお客様の発信者番号を受領後、ショートメッセージ(SMS)またはLINE通知メッセージによるお問合せ内容に関する通知をお届けする場合があります
- ※お客様が通話中に不動産会社にお伝えになったお客様の個人情報及び、電話会社が発番する折り返し専用の電話番号は、お問合せ先不動産会社が資料送付・電子メール送信・電話連絡などの目的で保管する可能性があります。お問合せ先不動産会社が保管する個人情報の取扱いについては、各不動産会社に直接お問合せください
- ※株式会社LIFULLでは本サービスを円滑に運用するために、お客様の発信者番号をサービスご利用の控えとして一定期間保管いたします
- ※上記および株式会社LIFULLの個人情報の取扱い方針に同意のうえ、お電話ください
【LIFULL HOME'S物件番号】0126938-0258120【自社管理番号】06716-302-23
オンライン対応
オンライン内見・オンライン相談・IT重説に対応している物件です

「オンライン内見」「オンライン相談」「IT重説」とは?
物件の内見や不動産会社スタッフとの相談、契約前の重要事項説明をオンライン(ビデオ通話)で行うことができるサービスです。
オンライン内見
ビデオ通話で現地(物件)にいる不動産会社スタッフと映像・音声を使ってリアルタイムで会話しながら内見ができます。
オンライン相談
「物件について聞きたいことがある」など不動産会社スタッフへの相談もビデオ通話で行うことができます。
IT重説
契約前の重要事項説明(重説)をビデオ通話で行うことができます。
利用時の注意事項
- ビデオ通話については各不動産会社指定のものとなります。
- ビデオ通話利用時には通信が発生します。従量課金制通信サービスや通信量に上限があるネット回線・プランを利用する場合は、通信量にご注意ください。
- 通信速度やアプリの設定によってはビデオ通話の画質が低下することがあります。安定した画質で利用するためにも、Wi-Fi環境下での利用を推奨します。
- ご利用のビデオ通話アプリによっては、対象のOSやブラウザに制限がある場合があります。詳しくはお問合せ先不動産会社にご確認ください。
初期費用・月額費用をあわせて確認!この物件に住んだときの費用めやす
めやすを見るこの物件に住んだときの費用めやす
- 初期費用
- 月額費用
- 追加費用※ご確認ください
追加で費用が
かかる場合があります
必ずご確認ください
初期費用めやす約0円
追加で費用がかかります(※)敷金
0
- 礼金
56,000
賃料+共益費・管理費の1ヶ月分として換算
賃料の1ヶ月分+税として換算。不動産会社によって金額が異なるため正確な金額は不動産会社にお問合せください
※追加費用もチェック!
これらの項目以外にも費用がかかる場合があります。正確な金額は不動産会社にお問合せください。
- 初期費用
- 鍵交換費:不動産会社に要確認
- 室内清掃費:41,800円
- 火災保険費:不動産会社に要確認
- 月額費用
- 駐車場費:16,500円(税込)※近隣
- その他
- RANZ CLUB:1320円
- 書類代:11000円
- 保証会社
- 初回:月額賃料等の50%、月額:システム利用料330円、更新時:1万円/1年
不動産会社より
部屋も収納も大です。 西院駅徒歩10分。閑静な住宅街にある1LDK。
西院駅まで徒歩10分の1LDK。お2人暮らしにもお1人暮らしにも。寝食しっかり分けられるのが嬉しいですね。静かな住宅街ながら近くにスーパー・コンビニ・ドラッグストアが充実しているのがポイント高め。礼金無しのうれしい条件です。落ち着いた環境で新生活を始めたい方、ぜひいかがでしょうか。右京区のお部屋探しを京都ライフまで。 物件情報はもちろん京都のエリア情報まで幅広く対応させていただきます!
- 保存する
- 共有する
- ※各種情報と現状に差異がある場合は、現状優先となります
- ※不動産会社が入力した情報を基に物件の位置を表示しています。詳しくは不動産会社までお問合せください
- ※不動産会社の方からの上記電話番号によるお問合せはお断りしております。こちら不動産会社詳細からお問合せください
- ※LIFULL HOME'Sは物件鮮度No.1を目指していきます。閲覧中の物件が「成約済である」「実際の物件情報と異なる点がある」などの場合、「掲載110番」からお問合せください
- ※QRコードは株式会社デンソーウェーブの登録商標です
同じ建物の他の部屋
LIFULL HOME'S 地図・周辺情報
買い物
- セブンイレブン 京都山ノ内赤山町店
- サンディ京都山ノ内店
- スギ薬局山ノ内店
- セブンイレブン 西院春日通六角店
- フレスコ 西院店
グルメ
- なか卯 西院店
- 天下一品西院店
- マクドナルド 西院駅前店
- スシロー 京都西院店
- リンガーハット 京都ファミリー店
育児・教育
- 京都市立西院幼稚園
- 京都市立西院小学校
- 京都市立四条中学校
- 蜂ヶ岡けやき保育園分園つくし
- 京都市立山ノ内小学校
医療
- 医療法人社団京健会さいきょうクリニック
- 医療法人社団京健会介護医療院さいきょう
- 医療法人西大路病院
- 社会医療法人太秦病院
- 安威医院
公共施設・郵便局
- 京都四条乾郵便局
- 京都市右京中央図書館
- 京都市右京区役所
- 京都山ノ内郵便局
- 京都市中央図書館
公園
- 西院公園
- 東大丸公園
- 光徳公園
- 土堂公園
- 梅小路公園
利用可能な駅
- 徒歩10分以内
京福電気鉄道嵐山本線
- 山ノ内駅徒歩6分
- 西大路三条駅徒歩9分
阪急京都本線
- 西院駅徒歩10分
- すべての駅
京都地下鉄東西線
- 西大路御池駅徒歩12分
- 太秦天神川駅徒歩14分
- 二条城前駅徒歩34分
京福電気鉄道嵐山本線
- 西院駅徒歩14分
- 嵐電天神川駅徒歩17分
- 蚕ノ社駅徒歩20分
- 太秦広隆寺駅徒歩27分
- 四条大宮駅徒歩31分
- 帷子ノ辻駅徒歩36分
JR山陰本線
- 円町駅徒歩21分
- 二条駅徒歩24分
- 花園駅徒歩28分
- 丹波口駅徒歩35分
- 太秦駅徒歩37分
- 梅小路京都西駅3.8km
阪急京都本線
- 西京極駅徒歩26分
- 大宮駅徒歩31分
京福電気鉄道北野線
- 等持院・立命館大学衣笠キャンパス前駅徒歩32分
- 撮影所前駅徒歩34分
- 北野白梅町駅徒歩35分
- 妙心寺駅徒歩36分
- 龍安寺駅徒歩37分
- 常盤駅3.1km
- 御室仁和寺駅3.2km
- 鳴滝駅3.3km
- 宇多野駅3.4km
JR東海道・山陽本線
- 西大路駅3.6km
- 周辺情報は2023年07月21日時点のものになります。
- 周辺情報は、参考情報としてのみご利用ください(周辺情報は、株式会社LIFULLが地図情報の提供事業者から提供を受けた情報とLIFULL HOME'Sの物件情報に基づき、独自の方法で抽出し提供しているものです。周辺情報は、移転や閉鎖等により情報が最新ではない、または正しくない場合がありますが、地図情報の提供事業者から提供された情報をそのまま周辺情報として表示しているため、正確かつ最新の情報へ修正することができないことがあります。)
- 周辺情報は、株式会社LIFULLが掲載するものであり、不動産物件情報を掲載している不動産会社が掲載するものではありません
- 交通情報の一部については、株式会社LIFULLが掲載するものであり、不動産物件情報を掲載している不動産会社が掲載するものではない場合があります。交通情報に関する質問などは株式会社LIFULLにお問合せください








