LIFULL HOME'Sは物件鮮度No.1!※評価について
Blue Sands 1階/102
6.75万円/管理費等4,000円
18時間前 更新
LINEチャットでも 相談できます
お問合せ先 :アイレントホーム株式会社 門前仲町店
住まい探し特典内容
仲介手数料10%OFF!
- 利用条件
- アイレントホーム株式会社 門前仲町店で利用可
- 他特典との併用可
- お問合物件に限り、申込時ご提示の方が対象です。
利用方法
来店時に本特典の画面をスマートフォンやタブレットでスタッフに提示、または画面印刷した用紙を提示ください。
有効期限 なし
☆新築・防犯カメラ・宅配ボックス・インターネット無料☆
基本情報
不動産用語- 賃料
- 6.75万円
- 管理費等
- 4,000円
初期費用などお気軽にお問合せください
- 敷金/礼金
- 無/1ヶ月
- 保証金/敷引・償却金
- -/-
- 交通
東京メトロ東西線 南砂町駅 徒歩8分
東京メトロ東西線 東陽町駅 徒歩17分
東京都新宿線 西大島 徒歩25分
- 所在地
東京都江東区南砂4丁目
地図を見る- 築年月
- 2025年12月(新築)
- 主要採光面
- 西
- 専有面積
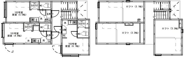
- 11.04㎡
- バルコニー面積
- -
- 所在階/階数
- 1階/2階建
入居可能日などお気軽にお問合せください
- 現況
- 未完成
- 入居可能時期
- 2026年01月 上旬

人気物件はすぐに埋まってしまいます。
気になったらお早めにお問合せください。
- 情報公開日
2025/12/12
1日前 公開
- 情報更新日
2025/12/12
18時間前 更新
- 次回更新
予定日 - 2025/12/19
物件のこだわり/設備・条件
新築(該当)
2階以上の物件(非該当)
南向き(非該当)
駐車場(非該当)
オートロック(非該当)
エアコン(該当)
バス・トイレ別(該当)
追焚機能(非該当)
フローリング(該当)
ペット相談(非該当)
入居条件
楽器不可、単身者限定、ペット不可、保証人不要キッチン/バス・トイレ
給湯、バスなし、専用トイレ、バス・トイレ別、シャワー、温水洗浄便座設備・サービス
防犯カメラ、TVモニタ付インターホン、エアコン、シューズボックス、インターネット対応、インターネット使用料無料、公営水道、プロパンガス、下水、フローリング、ロフト付き、室内洗濯機置場、照明器具付き、24時間換気システム、室内洗濯物干し、宅配ボックスその他
初期費用カード決済可、住まい探し特典あり備考
※IoT物件のためスマートフォン使用できない場合契約不可。※1年未満解約時、賃料2ヶ月分・1年以上2年未満は賃料1ヵ月の違約金あり。※解約予告2か月前。
物件周辺の生活情報
買い物
- コンビニ(333m)
- スーパー(727m)
- ドラッグストア(471m)
その他施設
- 南砂町駅(880m)
交通
- 東京メトロ東西線 南砂町駅 徒歩8分
- 普通(停車)
- 快速(通過)
- 通勤快速(停車)
- 東京メトロ東西線 東陽町駅 徒歩17分
- 普通(停車)
- 快速(停車)
- 通勤快速(停車)
※急行等の停車駅情報について
急行等の停車駅に関するデータは、随時更新をしておりますが、最新の内容であることを保証するものではありません。
最新かつ正確な情報につきましては、各鉄道会社のウェブサイトにてご確認ください
物件周辺の口コミ
- 東京都江東区南砂に住む人の口コミ20代女性
交通の弁が良い。東西線で大手町や日本橋まで一本で出られるし、バスは秋葉原、両国、錦糸町、亀戸どれも一本で行けてしまう。バスは途中で大島や西大島を経由するので都営新宿線との連携も使い勝手が良い。
口コミを見る
この物件周辺に住む人の口コミ
口コミは、LIFULL HOME'Sが実際にこの物件の周辺に住む18歳~69歳の男女を対象に、WEBアンケート調査を実施しています。内容には回答者の主観的な表現が含まれる場合があるほか、事実と異なる場合もございます。ご了承ください。
- 東京都江東区南砂に住む人の口コミ20代女性
- 交通の弁が良い。東西線で大手町や日本橋まで一本で出られるし、バスは秋葉原、両国、錦糸町、亀戸どれも一本で行けてしまう。バスは途中で大島や西大島を経由するので都営新宿線との連携も使い勝手が良い。
- 東京都江東区南砂に住む人の口コミ30代女性
- 不自由だと思うことがなく、他の街に住みたい気持ちにならないから
- 東京都江東区南砂に住む人の口コミ30代女性
- 公園、学校、病院、買い物施設など、生活に必要な施設が充実していて子育てしやすい。食料品が安く買えるスーパーもある。電車は混むが、バスでいろいろなところに行きやすい。
- 東京都江東区南砂に住む人の口コミ30代女性
- 幼少期から住んでいるが、とくに不便を感じたことがないから。地下鉄工事中で、駅前も近々再開発されるはず。
- 東京都江東区南砂に住む人の口コミ30代女性
- 公園がたくさんある。徒歩圏内に活気がる商店街・イオン・アリオ・スナモがある。安いドラックストアや100円ショップも数軒ある。天気が悪くてもイオンに行けば子供が遊べるスペースがあり便利
- 東京都江東区南砂に住む人の口コミ20代女性
- 東京の中心地へのアクセスもしやすく、また買い物できるスーパーやイオンアリオなどの商業施設がたくさんあるから。
- 東京都江東区南砂に住む人の口コミ30代女性
- 東京の主要ターミナル駅(東京、新宿、池袋、渋谷、上野、品川など)に1時間以内で行けるし、10年以上住んでいて、犯罪に巻き込まれたり、危険な目にあったりしたことはないので。
- 東京都江東区南砂に住む人の口コミ30代女性
- 安いお店はあるし、大型商業施設が数ヶ所あるし、デパートに行きたいときは電車で10分位で行けるので暮らすのに不自由しない。ただ工事中な事もあり、駅前があまり充実してないのがやや不満
- 東京都江東区南砂に住む人の口コミ30代女性
- 下町なので、子供を連れていると親切にしてもらえてとても助かる。
- 東京都江東区南砂に住む人の口コミ30代女性
- 都心へのアクセスも良い。スーパーが多数あり、安いスーパーもあるため、食費も節約できる。外食のお店もたくさんある。住宅街が多く、夜間は静かである。
物件概要
- 建物構造
- 木造
- 駐車場
- 無
- 総戸数
- 6戸
- 契約形態
- -
- 契約期間
- 2年間
- 更新料
- 新賃料の1.5ヶ月分
- その他費用
- 室内清掃費用:38,500円、その他費用(火災保険:20000円、除菌・消臭代:19800円、IoT登録利用料:16500円、他):83,800円、月額費用(24時間サポート:19800円、町会費:300円):20,100円、エアコン清掃代:13,200円
- 保証会社
加入要
保証会社:シノケンコミュニケーションズ
保証会社利用料:初回保証料 月額賃借料の30~50%(最低保証料30、000円~50、000円)手数料:660円/月
- 住宅保険
- 要
- 管理
- -
- LIFULL HOME'S
物件番号 - 0126710-0142956
- 自社管理番号
- 69144005-1
- 取引態様
- 仲介
- 会社名
- アイレントホーム株式会社 門前仲町店
営業スタッフコメント

アイレントホーム株式会社 門前仲町店事務
酒井(さかい)
新生活の大事なスタート!是非お任せ下さい!!
業界経験5年
- 会社実績や特徴・サービス情報
- 閲覧して頂きましてありがとうございます。 お部屋探しのアイレントホーム・門前仲町店です。 豊富な物件情報で皆様のお部屋探しのお手伝いを致します。 弊社は、旭化成の「ヘーベルメゾン」、ダイワハウスの賃貸住宅「D-ROOM」、提携代理店です。 新築、ペット相談可、UR賃貸、デザイナーズ、リノベーション物件、駐車場付、大型バイク可、敷金礼金なし、法人契約可(会社社宅)など豊富にご紹介可能です。 みなさまのご連絡、ご来店を心よりお待ちしております。
閲覧して頂きましてありがとうございます。 お部屋探しのアイレントホーム・門前仲町店です。 豊富な物件情報で皆様のお部屋探しのお手伝いを致します。 弊社は、旭化成の「ヘーベルメゾン」、ダイワハウスの賃貸住宅「D-ROOM」、提携代理店です。 新築、ペット相談可、UR賃貸、デザイナーズ、リノベーション物件、駐車場付、大型バイク可、敷金礼金なし、法人契約可(会社社宅)など豊富にご紹介可能です。 みなさまのご連絡、ご来店を心よりお待ちしております。
- 電話でお問合せ(通話無料)
お問合せ先 :アイレントホーム株式会社 門前仲町店
不動産会社情報
アイレントホーム株式会社 門前仲町店へようこそ!理想のお部屋を紹介させて頂きます。当社はCMでもお馴染みの「大和ハウス」や「旭化成」の特約代理店です!
- 店舗の特徴
- 賃貸管理業務
- リフォーム対応
- 引越し業者紹介可
- オンライン相談可
- 保証人不要な物件あり
- 法人契約取扱い
- 女性スタッフ対応可
- 駅から歩いて3分以内
電話でお問合せお客様の電話番号は不動産会社には通知されません
- 不動産会社に
つながります
お客様の電話番号は不動産会社に通知されません
- ※光IP電話、及びIP電話からはご利用になれません
- ※お電話によるお問合せは、店舗営業時間内にお願いします。つながらない場合は、お問合せフォームよりお問合せください
- ※不動産会社がお電話に出られなかった場合、お問合せいただいた後に不動産会社より折り返しのお電話がある場合がございます(お客様が非通知設定した場合は対象外です)
- ※株式会社LIFULLは電話会社が提供するサービスを介してお客様の発信者番号を受領後、折り返し専用の電話番号を発番してお問合せの不動産会社に通知します(お客様の発信者番号がお問合せの不動産会社に通知されることはございません)
- ※携帯電話からお問合せいただいた方に対し、株式会社LIFULLは電話会社が提供するメッセ―ジサービスを介してお客様の発信者番号を受領後、ショートメッセージ(SMS)またはLINE通知メッセージによるお問合せ内容に関する通知をお届けする場合があります
- ※お客様が通話中に不動産会社にお伝えになったお客様の個人情報及び、電話会社が発番する折り返し専用の電話番号は、お問合せ先不動産会社が資料送付・電子メール送信・電話連絡などの目的で保管する可能性があります。お問合せ先不動産会社が保管する個人情報の取扱いについては、各不動産会社に直接お問合せください
- ※株式会社LIFULLでは本サービスを円滑に運用するために、お客様の発信者番号をサービスご利用の控えとして一定期間保管いたします
- ※上記および株式会社LIFULLの個人情報の取扱い方針に同意のうえ、お電話ください
【LIFULL HOME'S物件番号】0126710-0142956【自社管理番号】69144005-1
オンライン対応
オンライン相談に対応している物件です

「オンライン内見」「オンライン相談」「IT重説」とは?
物件の内見や不動産会社スタッフとの相談、契約前の重要事項説明をオンライン(ビデオ通話)で行うことができるサービスです。
オンライン内見
ビデオ通話で現地(物件)にいる不動産会社スタッフと映像・音声を使ってリアルタイムで会話しながら内見ができます。
オンライン相談
「物件について聞きたいことがある」など不動産会社スタッフへの相談もビデオ通話で行うことができます。
IT重説
契約前の重要事項説明(重説)をビデオ通話で行うことができます。
利用時の注意事項
- ビデオ通話については各不動産会社指定のものとなります。
- ビデオ通話利用時には通信が発生します。従量課金制通信サービスや通信量に上限があるネット回線・プランを利用する場合は、通信量にご注意ください。
- 通信速度やアプリの設定によってはビデオ通話の画質が低下することがあります。安定した画質で利用するためにも、Wi-Fi環境下での利用を推奨します。
- ご利用のビデオ通話アプリによっては、対象のOSやブラウザに制限がある場合があります。詳しくはお問合せ先不動産会社にご確認ください。
初期費用・月額費用をあわせて確認!この物件に住んだときの費用めやす
めやすを見るこの物件に住んだときの費用めやす
- 初期費用
- 月額費用
- 追加費用※ご確認ください
追加で費用が
かかる場合があります
必ずご確認ください
初期費用めやす約0円
追加で費用がかかります(※)敷金
0
- 礼金
67,500
- 保証金
0
賃料+共益費・管理費の1ヶ月分として換算
賃料の1ヶ月分+税として換算。不動産会社によって金額が異なるため正確な金額は不動産会社にお問合せください
※追加費用もチェック!
これらの項目以外にも費用がかかる場合があります。正確な金額は不動産会社にお問合せください。
- 初期費用
- 鍵交換費:不動産会社に要確認
- 室内清掃費:38,500円
- 火災保険費:不動産会社に要確認
- その他
- その他費用(火災保険:20000円、除菌・消臭代:19800円、IoT登録利用料:16500円、他):83800円
- 月額費用(24時間サポート:19800円、町会費:300円):20100円
- エアコン清掃代:13200円
- 保証会社
- 初回保証料 月額賃借料の30~50%(最低保証料30、000円~50、000円)手数料:660円/月
不動産会社より
☆新築・防犯カメラ・宅配ボックス・インターネット無料☆
※IoT物件のためスマートフォン使用できない場合契約不可。※1年未満解約時、賃料2ヶ月分・1年以上2年未満は賃料1ヵ月の違約金あり。※解約予告2か月前。
- 保存する
- 共有する
- ※各種情報と現状に差異がある場合は、現状優先となります
- ※不動産会社が入力した情報を基に物件の位置を表示しています。詳しくは不動産会社までお問合せください
- ※不動産会社の方からの上記電話番号によるお問合せはお断りしております。こちら不動産会社詳細からお問合せください
- ※LIFULL HOME'Sは物件鮮度No.1を目指していきます。閲覧中の物件が「成約済である」「実際の物件情報と異なる点がある」などの場合、「掲載110番」からお問合せください
- ※QRコードは株式会社デンソーウェーブの登録商標です
LIFULL HOME'S 地図・周辺情報
買い物
- ファミリーマート 江東南砂四丁目店
- まいばすけっと南砂2丁目店
- くすりの福太郎南砂店
- ローソン 南砂葛西橋通店
- ダイソー南砂町駅前店
グルメ
- 藍屋 南砂店
- ラ・オハナ南砂店
- スシロー 南砂店
- 木曽路 南砂店
- すき家 南砂店
育児・教育
- 南砂第一保育園
- 江東区立南砂小学校
- 江東区立南砂中学校
- 太陽の子南砂2丁目保育園
- 江東区立砂町小学校
医療
- 医療法人社団藤崎病院
- 医療法人財団寿康会寿康会病院
- 医療法人社団清湘会清湘会東砂病院
- 順天堂大学医学部附属順天堂東京江東高齢者医療センター
- 医療法人社団愛育会愛和病院
公共施設・郵便局
- 江東南砂郵便局
- 江東区立江東図書館
- 城東警察署
- 江東南砂団地内郵便局
- 江東区立砂町図書館
公園
- 南砂三丁目公園
- 仙台堀川公園
- 横十間川親水公園
- 城東公園
- 豊住公園
利用可能な駅
- 徒歩10分以内
東京メトロ東西線
- 南砂町駅徒歩8分
- すべての駅
東京メトロ東西線
- 東陽町駅徒歩17分
- その他交通
- 東京都新宿線 西大島 徒歩25分
- 周辺情報は2023年07月21日時点のものになります。
- 周辺情報は、参考情報としてのみご利用ください(周辺情報は、株式会社LIFULLが地図情報の提供事業者から提供を受けた情報とLIFULL HOME'Sの物件情報に基づき、独自の方法で抽出し提供しているものです。周辺情報は、移転や閉鎖等により情報が最新ではない、または正しくない場合がありますが、地図情報の提供事業者から提供された情報をそのまま周辺情報として表示しているため、正確かつ最新の情報へ修正することができないことがあります。)
- 周辺情報は、株式会社LIFULLが掲載するものであり、不動産物件情報を掲載している不動産会社が掲載するものではありません
- 交通情報の一部については、株式会社LIFULLが掲載するものであり、不動産物件情報を掲載している不動産会社が掲載するものではない場合があります。交通情報に関する質問などは株式会社LIFULLにお問合せください

























