LIFULL HOME'Sは物件鮮度No.1!※評価について
アーバンフラッツ四条西洞院(12階/1K/25.67m²)
アーバンフラッツ四条西洞院(12階/1K/25.67m²)
8.3万円/管理費等7,000円
2日前 更新
画像一覧
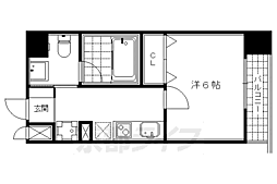
1/30間取り
間取
2/30外観
3/30外観
4/30リビング/ダイニング
5/30リビング/ダイニング
6/30リビング/ダイニング
7/30リビング/ダイニング
8/30リビング/ダイニング
9/30キッチン
10/30キッチン
11/30キッチン
12/30キッチン
13/30浴室
14/30浴室
15/30トイレ
16/30洗面
17/30収納
18/30収納
19/30収納
20/30設備
21/30設備
22/30設備
23/30設備
24/30玄関
25/30バルコニー
26/30バルコニー
27/30その他
28/30その他
29/30その他
30/30周辺
フレスコ四条店まで66m 四条通に面した24時間のスーパー
間取り
外観
外観
リビング/ダイニング
リビング/ダイニング
リビング/ダイニング
リビング/ダイニング
リビング/ダイニング
キッチン
キッチン
キッチン
キッチン
浴室
浴室
トイレ
洗面
収納
収納
収納
設備
設備
設備
設備
玄関
バルコニー
バルコニー
その他
その他
その他
周辺
LINEチャットでも 相談できます
お問合せ先 :株式会社京都ライフ 北大路店
1〜4月は引越しシーズンのピークです。お問合せはお早めに!
仲介手数料割引
仲介手数料が家賃の半月分(外税)です。
- 利用条件
- 株式会社京都ライフ 北大路店で利用可
- 他特典との併用可
- ・法人契約、事業用物件は除く。 ・積水ハウス、大東建託の管理物件は除く。
利用方法
来店時に本特典の画面をスマートフォンやタブレットでスタッフに提示、または画面印刷した用紙を提示ください。
有効期限 なし
若林広幸設計デザイン物件 若林広幸建築事務所設計デザインマンション。
基本情報
不動産用語- 賃料
- 8.3万円
- 管理費等
- 7,000円
初期費用などお気軽にお問合せください
- 敷金/礼金
- 無/無
- 保証金/敷引・償却金
- -/-
- 交通
京都市営烏丸線 四条駅 徒歩6分
阪急京都本線 大宮駅 徒歩7分
- 所在地
京都府京都市下京区西洞院通四条下ル妙伝寺町
地図を見る- 築年月
- 2008年4月(築19年)
- 主要採光面
- 南
- 専有面積
- 25.67㎡
- バルコニー面積
- -
- 所在階/階数
- 12階/12階建(地下1階)
入居可能日などお気軽にお問合せください
- 現況
- 賃貸中
- 入居可能時期
- 2026年05月 下旬

人気物件はすぐに埋まってしまいます。
気になったらお早めにお問合せください。
- 情報公開日
2026/03/25
22日前 公開
- 情報更新日
2026/04/14
2日前 更新
- 次回更新
予定日 - 2026/04/21
物件のこだわり/設備・条件
新築(非該当)
2階以上の物件(該当)
南向き(該当)
駐車場あり(該当)
オートロック(該当)
エアコン(該当)
バス・トイレ別(該当)
追焚機能(非該当)
フローリング(該当)
ペット相談(非該当)
入居条件
保証人不要キッチン/バス・トイレ
設備・サービス
オートロック、防犯カメラ、TVモニタ付インターホン、エアコン、シューズボックス、CS対応、BS対応、光ファイバー、公営水道、都市ガス、下水、フローリング、バルコニー、室内洗濯機置場、照明器具付き、南面バルコニー、エレベーター、宅配ボックス、駐車場あり、駐輪場ありその他
デザイナーズ、住まい探し特典あり備考
地下鉄四条駅まで徒歩6分のデザイナーズマンションです。阪急、地下鉄のダブルアクセス。更新料ナシです。嬉しい3点セパレートに浴室乾燥機、システムキッチン、温水洗浄便座など充実の設備。オートロック、TVホンでセキュリティも安心です。コンビニ、スーパーなど近くにあって便利ですよ。光ファイバー対応しています。 物件情報はもちろん京都のエリア情報まで幅広く対応させていただきます!
物件周辺の生活情報
学校
- 洛央小学校(661m)
- 下京中学校(917m)
買い物
- コンビニ(200m)
- スーパー(66m)
- 商店街(889m)
その他施設
- 総合病院(1,700m)
- 銀行(226m)
- 下京警察署(507m)
交通
- 京都市営烏丸線 四条駅 徒歩6分
- 普通(停車)
- 急行(停車)
- 阪急京都本線 大宮駅 徒歩7分
- 普通(停車)
- 準急(停車)
- 堺筋準急(停車)
- 通勤特急(停車)
- 特急(通過)
- 急行(停車)
- 準特急(停車)
※急行等の停車駅情報について
急行等の停車駅に関するデータは、随時更新をしておりますが、最新の内容であることを保証するものではありません。
最新かつ正確な情報につきましては、各鉄道会社のウェブサイトにてご確認ください
物件周辺の口コミ
- 京都府京都市下京区西洞院通四条下る西入に住む人の口コミ20代女性
交通の弁の良さと、買い物の便利な良さです。子どもが産まれたらもっと自然のあるところに住みたいと思うと思います。
口コミを見る
この物件周辺に住む人の口コミ
口コミは、LIFULL HOME'Sが実際にこの物件の周辺に住む18歳~69歳の男女を対象に、WEBアンケート調査を実施しています。内容には回答者の主観的な表現が含まれる場合があるほか、事実と異なる場合もございます。ご了承ください。
- 京都府京都市下京区西洞院通四条下る西入に住む人の口コミ20代女性
- 交通の弁の良さと、買い物の便利な良さです。子どもが産まれたらもっと自然のあるところに住みたいと思うと思います。
- 京都府京都市上京区智恵光院通丸太町下る4筋目東入に住む人の口コミ30代女性
- 子育てするには環境がいいし、繁華街まで出なくても生活に必要なものはたいてい揃う。複線鉄道が使えるので便利
- 京都府京都市中京区壬生天池町に住む人の口コミ30代女性
- 他に住んだ事がないのでわからないが便利な所なので、どちらかと言えばと言う回答になりました
- 京都府京都市中京区壬生馬場町に住む人の口コミ30代女性
- 都会でも田舎でもなく、車がなくても十分生活できる範囲にいろいろなものがあるから。とても便利。
- 京都府京都市下京区綾小路通新町東入に住む人の口コミ20代女性
- 一人暮らしをするには、充分に買い物ができる場所があり、治安がいい。しかし、観光客が多い、路線が地下鉄のため階段が多い、人気が少ないところがないことは少し不満に思う、
- 京都府京都市中京区御池通神泉苑西入下るに住む人の口コミ20代女性
- 複数の駅や スーパー、飲食店、病院などがあり生活に便利な機関が多いが価格が高めだったり、年齢層が合わない店も多いので完全に満足ではない。
- 京都府京都市中京区壬生朱雀町に住む人の口コミ30代女性
- 運転免許を所有していないが、不自由なく生活できる環境にある。住み始めて、時代の変化とともに空き地がなくなり、人口が増えて活気が出たが、地価が上がり経済的な面での不安が出てきた。
- 京都府京都市中京区壬生朱雀町に住む人の口コミ20代女性
- 2路線以上使え、京都にも近い、徒歩10分以内にスーパーが4つ以上あり、公園も複数ある
- 京都府京都市中京区堀川通三条東入に住む人の口コミ30代女性
- 百貨店など繁華街に徒歩でいくことができ、バスや地下鉄、私鉄があり便利。閑静な住宅街で、治安も良い。ただ保育施設までが遠く、図書館や大型のショッピングモール、ホームセンターなどはないため不便。
- 京都府京都市上京区智恵光院通丸太町下る4筋目東入に住む人の口コミ20代女性
- 田舎でもなく、栄えすぎてるわけでもないので、ちょうど良くて、駅付近にスーパーも薬局もあるため便利
物件概要
- 建物構造
- RC(鉄筋コンクリート)
- 駐車場
- 空有 22,000円(税込)
- 総戸数
- 87戸
- 契約形態
- -
- 契約期間
- 2年間
- 更新料
- 新賃料の1ヶ月分
- その他費用
- 鍵交換費用:24,200円、室内清掃費用:33,000円、水道代:2,200円、抗菌除菌処理代:22,000円、入居者サポート:16,500円
- 保証会社
加入要
保証会社:エポスカード
保証会社利用料:初回:月額賃料等の50%、月額:保証料として月額賃料等の1%
- 住宅保険
- 要
- 管理
- 管理員:巡回
- LIFULL HOME'S
物件番号 - 0124322-0227392
- 自社管理番号
- 09688-1206-22
- 取引態様
- 仲介
- 会社名
- 株式会社京都ライフ 北大路店
営業スタッフコメント

株式会社京都ライフ 北大路店営業主任
高松勇介
情けは人の為ならず
業界経験4年
資格少額短期保険募集人
- 会社実績や特徴・サービス情報
- 地下鉄烏丸線沿線を中心に京都市内全域のお部屋探しは京都ライフ北大路店にお任せください。ファミリー様向き物件、社会人様向きのお部屋はもちろん各大学の学生様向き物件も多数ございます。京都大学、同志社大学、同志社女子大学、京都産業大学、大谷大学、立命館大学、京都府立大学、ノートルダム女子大学の学生さんは当店までご相談ください。 当店では居住用物件個人契約の仲介手数料は家賃の半月分(外税)です。
地下鉄烏丸線沿線を中心に京都市内全域のお部屋探しは京都ライフ北大路店にお任せください。ファミリー様向き物件、社会人様向きのお部屋はもちろん各大学の学生様向き物件も多数ございます。京都大学、同志社大学、同志社女子大学、京都産業大学、大谷大学、立命館大学、京都府立大学、ノートルダム女子大学の学生さんは当店までご相談ください。 当店では居住用物件個人契約の仲介手数料は家賃の半月分(外税)です。
- 電話でお問合せ(通話無料)
お問合せ先 :株式会社京都ライフ 北大路店
不動産会社情報
株式会社京都ライフ 北大路店京都ライフ北大路店

京都府京都市北区小山上総町11
京都市営烏丸線 北大路駅 徒歩1分
- 営業時間
- 09:30~19:00
- 定休日
- 年中無休(盆・正月を除く)
優良店認定
創業40年以上。お部屋探しは京都ライフで。地下鉄烏丸線北大路駅から歩いてすぐ。明るくスタイリッシュな店内で、お部屋探ししていただけます。活気あふれるスタッフが皆様のご来店をお待ちしています。
- 店舗の特徴
- 賃貸管理業務
- 24時間管理物件取扱い
- リフォーム対応
- 引越し業者紹介可
- 年中無休
- オンライン相談可
- 保証人不要な物件あり
- 法人契約取扱い
- 女性スタッフ対応可
- 駅から歩いて3分以内
電話でお問合せお客様の電話番号は不動産会社には通知されません
- 不動産会社に
つながります
お客様の電話番号は不動産会社に通知されません
- ※光IP電話、及びIP電話からはご利用になれません
- ※お電話によるお問合せは、店舗営業時間内にお願いします。つながらない場合は、お問合せフォームよりお問合せください
- ※不動産会社がお電話に出られなかった場合、お問合せいただいた後に不動産会社より折り返しのお電話がある場合がございます(お客様が非通知設定した場合は対象外です)
- ※株式会社LIFULLは電話会社が提供するサービスを介してお客様の発信者番号を受領後、折り返し専用の電話番号を発番してお問合せの不動産会社に通知します(お客様の発信者番号がお問合せの不動産会社に通知されることはございません)
- ※携帯電話からお問合せいただいた方に対し、株式会社LIFULLは電話会社が提供するメッセ―ジサービスを介してお客様の発信者番号を受領後、ショートメッセージ(SMS)またはLINE通知メッセージによるお問合せ内容に関する通知をお届けする場合があります
- ※お客様が通話中に不動産会社にお伝えになったお客様の個人情報及び、電話会社が発番する折り返し専用の電話番号は、お問合せ先不動産会社が資料送付・電子メール送信・電話連絡などの目的で保管する可能性があります。お問合せ先不動産会社が保管する個人情報の取扱いについては、各不動産会社に直接お問合せください
- ※株式会社LIFULLでは本サービスを円滑に運用するために、お客様の発信者番号をサービスご利用の控えとして一定期間保管いたします
- ※上記および株式会社LIFULLの個人情報の取扱い方針に同意のうえ、お電話ください
【LIFULL HOME'S物件番号】0124322-0227392【自社管理番号】09688-1206-22
オンライン対応
オンライン相談に対応している物件です

「オンライン内見」「オンライン相談」「IT重説」とは?
物件の内見や不動産会社スタッフとの相談、契約前の重要事項説明をオンライン(ビデオ通話)で行うことができるサービスです。
オンライン内見
ビデオ通話で現地(物件)にいる不動産会社スタッフと映像・音声を使ってリアルタイムで会話しながら内見ができます。
オンライン相談
「物件について聞きたいことがある」など不動産会社スタッフへの相談もビデオ通話で行うことができます。
IT重説
契約前の重要事項説明(重説)をビデオ通話で行うことができます。
利用時の注意事項
- ビデオ通話については各不動産会社指定のものとなります。
- ビデオ通話利用時には通信が発生します。従量課金制通信サービスや通信量に上限があるネット回線・プランを利用する場合は、通信量にご注意ください。
- 通信速度やアプリの設定によってはビデオ通話の画質が低下することがあります。安定した画質で利用するためにも、Wi-Fi環境下での利用を推奨します。
- ご利用のビデオ通話アプリによっては、対象のOSやブラウザに制限がある場合があります。詳しくはお問合せ先不動産会社にご確認ください。
初期費用・月額費用をあわせて確認!この物件に住んだときの費用めやす
めやすを見るこの物件に住んだときの費用めやす
- 初期費用
- 月額費用
- 追加費用※ご確認ください
追加で費用が
かかる場合があります
必ずご確認ください
初期費用めやす約0円
追加で費用がかかります(※)敷金
0
- 礼金
0
賃料+共益費・管理費の1ヶ月分として換算
賃料の1ヶ月分+税として換算。不動産会社によって金額が異なるため正確な金額は不動産会社にお問合せください
※追加費用もチェック!
これらの項目以外にも費用がかかる場合があります。正確な金額は不動産会社にお問合せください。
- 初期費用
- 鍵交換費:24,200円
- 室内清掃費:33,000円
- 火災保険費:不動産会社に要確認
- 月額費用
- 駐車場費:22,000円(税込)※契約任意
- その他
- 水道代:2200円
- 抗菌除菌処理代:22000円
- 入居者サポート:16500円
- 保証会社
- 初回:月額賃料等の50%、月額:保証料として月額賃料等の1%
不動産会社より
若林広幸設計デザイン物件 若林広幸建築事務所設計デザインマンション。
地下鉄四条駅まで徒歩6分のデザイナーズマンションです。阪急、地下鉄のダブルアクセス。更新料ナシです。嬉しい3点セパレートに浴室乾燥機、システムキッチン、温水洗浄便座など充実の設備。オートロック、TVホンでセキュリティも安心です。コンビニ、スーパーなど近くにあって便利ですよ。光ファイバー対応しています。 物件情報はもちろん京都のエリア情報まで幅広く対応させていただきます!
- 保存する
- 共有する
- ※各種情報と現状に差異がある場合は、現状優先となります
- ※不動産会社が入力した情報を基に物件の位置を表示しています。詳しくは不動産会社までお問合せください
- ※不動産会社の方からの上記電話番号によるお問合せはお断りしております。こちら不動産会社詳細からお問合せください
- ※LIFULL HOME'Sは物件鮮度No.1を目指していきます。閲覧中の物件が「成約済である」「実際の物件情報と異なる点がある」などの場合、「掲載110番」からお問合せください
- ※QRコードは株式会社デンソーウェーブの登録商標です
したい暮らしのタグから探す
LIFULL HOME'S 地図・周辺情報
買い物
- ファミリーマート 四条西洞院店
- フレスコ 四条店
- ドラッグひかり四条堀川店
- セブンイレブン 京都四条新町店
- ライフ 四条烏丸店
グルメ
- タリーズコーヒー京都四条烏丸店
- まいどおおきに食堂 四条西洞院食堂
- やよい軒 四条烏丸店
- すき家 四条堀川店
- さち福やSUINA室町店
育児・教育
- 池坊保育園
- 京都市立下京雅小学校
- 京都市立下京中学校成徳学舎
- 光林保育園
- 京都市立洛央小学校
医療
- 医療法人知音会京都新町病院
- 山元病院
- 医療法人毛利病院
- 医療法人財団足立病院
- 医療法人令寿会しまばら病院
公共施設・郵便局
- 京都西洞院綾小路郵便局
- 京都市下京図書館
- 京都府下京警察署
- 京都堀川仏光寺郵便局
- 京都市こどもみらい館子育て図書館
公園
- 光徳公園
- 梅屋広場公園
- 梅小路公園
- 梅小路公園
- 京都御苑
利用可能な駅
- 徒歩10分以内
京都市営烏丸線
- 四条駅徒歩6分
阪急京都本線
- 大宮駅徒歩7分
- 周辺情報は2023年07月21日時点のものになります。
- 周辺情報は、参考情報としてのみご利用ください(周辺情報は、株式会社LIFULLが地図情報の提供事業者から提供を受けた情報とLIFULL HOME'Sの物件情報に基づき、独自の方法で抽出し提供しているものです。周辺情報は、移転や閉鎖等により情報が最新ではない、または正しくない場合がありますが、地図情報の提供事業者から提供された情報をそのまま周辺情報として表示しているため、正確かつ最新の情報へ修正することができないことがあります。)
- 周辺情報は、株式会社LIFULLが掲載するものであり、不動産物件情報を掲載している不動産会社が掲載するものではありません
- 交通情報の一部については、株式会社LIFULLが掲載するものであり、不動産物件情報を掲載している不動産会社が掲載するものではない場合があります。交通情報に関する質問などは株式会社LIFULLにお問合せください














