LIFULL HOME'Sは物件鮮度No.1!※評価について
近鉄京都線 伊勢田駅 徒歩3分(3階/1K/20.27m²)
近鉄京都線 伊勢田駅 徒歩3分(3階/1K/20.27m²)
3.4万円/管理費等4,000円
1日前 更新
画像一覧
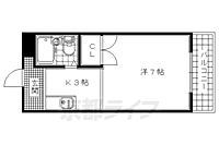
1/30間取り
間取
2/30外観
外観です。
3/30外観
外観です。
4/30外観
駐車場もあります。
5/30リビング/ダイニング
キッチンです。
6/30リビング/ダイニング
お部屋です。
7/30リビング/ダイニング
お部屋です。
8/30キッチン
部屋から見たキッチンです。
9/30キッチン
キッチンです。
10/30浴室
ユニットバスです。
11/30収納
収納です。
12/30収納
シューズ置きです。
13/30設備
エアコン付いてます。
14/30玄関
玄関です。
15/30バルコニー
ベランダです。
16/30エントランス
正面入口です。
17/30その他
屋根付き駐輪場です。
18/30その他
玄関前の通路です。
19/30その他
郵便受けです。
20/30その他
二階ヘ向かう階段です。
21/30周辺
セブンイレブン宇治伊勢田中山店まで39m
22/30周辺
京都銀行 伊勢田支店まで284m
23/30周辺
新鮮館コスモ 宇治店まで300m コスモの横にはリラクゼレーションのマッサージ、理髪店が並びます。
24/30周辺
宇治伊勢田郵便局まで302m
25/30周辺
セブンイレブン宇治開町店まで383m
26/30周辺
ウエルシア伊勢田店まで400m 朝の9時から夜12時まで営業している便利なドラッグストアです・
27/30周辺
西宇治中学校まで447m
28/30周辺
京都中央信用金庫 西小倉支店まで618m
29/30周辺
第二岡本総合病院まで641m
30/30周辺
京都文教短期大学まで3900m
間取り
外観
外観
外観
リビング/ダイニング
リビング/ダイニング
リビング/ダイニング
キッチン
キッチン
浴室
収納
収納
設備
玄関
バルコニー
エントランス
その他
その他
その他
その他
周辺
周辺
周辺
周辺
周辺
周辺
周辺
周辺
周辺
周辺
お問合せ先 :株式会社京都ライフ 三条烏丸店
1〜4月は引越しシーズンのピークです。お問合せはお早めに!
仲介手数料割引
仲介手数料 家賃の50%(税別)
- 利用条件
- 株式会社京都ライフ 三条烏丸店で利用可
- 他特典との併用可
- 法人契約、事業用物件は除く。積水ハウス管理、大東建託管理を除く。
利用方法
来店時に本特典の画面をスマートフォンやタブレットでスタッフに提示、または画面印刷した用紙を提示ください。
有効期限 なし
条件にびっくり 近鉄伊勢田駅まで徒歩3分 近鉄伊勢田駅まで徒歩3分。
物件のこだわり/設備・条件
新築(非該当)
2階以上の物件(該当)
南向き(該当)
駐車場(非該当)
オートロック(非該当)
エアコン(該当)
バス・トイレ別(非該当)
追焚機能(非該当)
フローリング(該当)
ペット相談(非該当)
入居条件
単身者限定キッチン/バス・トイレ
設備・サービス
エアコン、光ファイバー、インターネット使用料無料、公営水道、都市ガス、下水、フローリング、バルコニー、室内洗濯機置場、南面バルコニー、駐輪場ありその他
住まい探し特典あり備考
近くにはコンビニやスーパーもあり、独り暮らしにはとても便利なところです。建物内にコインランドリーがあるのでもちろんそちらもご利用頂けます。室内もキレイにしてあります。 物件情報はもちろん京都のエリア情報まで幅広く対応させていただきます!
物件周辺の生活情報
買い物
- コンビニ(39m)
- スーパー(300m)
- ドラッグストア(400m)
その他施設
- 総合病院(641m)
- 銀行(284m)
- 宇治伊勢田郵便局(302m)
交通
- 近鉄京都線 伊勢田駅 徒歩3分
- 普通(停車)
- 準急(停車)
- 急行(通過)
- JR奈良線 JR小倉駅 徒歩11分
- 普通(停車)
- 区間快速(停車)
- 快速(停車)
- みやこ路快速(通過)
※急行等の停車駅情報について
急行等の停車駅に関するデータは、随時更新をしておりますが、最新の内容であることを保証するものではありません。
最新かつ正確な情報につきましては、各鉄道会社のウェブサイトにてご確認ください
物件周辺の口コミ
- 京都府宇治市伊勢田町に住む人の口コミ30代男性
スーパーもドラッグストアも近い。遊びに行くところはないけど、それなりにいい。
口コミを見る
この物件周辺に住む人の口コミ
口コミは、LIFULL HOME'Sが実際にこの物件の周辺に住む18歳~69歳の男女を対象に、WEBアンケート調査を実施しています。内容には回答者の主観的な表現が含まれる場合があるほか、事実と異なる場合もございます。ご了承ください。
- 京都府宇治市伊勢田町に住む人の口コミ30代男性
- スーパーもドラッグストアも近い。遊びに行くところはないけど、それなりにいい。
- 京都府宇治市伊勢田町に住む人の口コミ30代女性
- スーパーが複数あるため、買い物に困らないのと、いろいろな病院が近いため、体調不良の際も困らない。
- 京都府宇治市伊勢田町に住む人の口コミ20代女性
- 買い物がしやすいところが気に入っていっます。ただ、駅が遠いので車がないと少し不便なところがやや不満です。
- 京都府宇治市伊勢田町に住む人の口コミ30代女性
- 京都市内にも30分以内に行ける。スーパー激戦区があり価格競争で安く買えている。平等院もあり世界遺産がある。宇治抹茶で有名な土地に生活ができて、有名な抹茶スイーツがたくさん食べられる。
- 京都府宇治市伊勢田町に住む人の口コミ30代男性
- 宇治川、平等院鳳凰堂があります。春は桜見物が出来て、秋は紅葉が楽しめます。古くて伝統ある街並みでとても落ち着きます。和のスイーツがとても充実していて、有名なお菓子屋さんが沢山あります。
- 京都府宇治市伊勢田町に住む人の口コミ20代女性
- 子育てがしやすい。待機児童は多いが、優遇される点があってありがたい。病院も多く、医療費負担もある。広い公園も近くにあるからのびのびと暮らせる
- 京都府宇治市伊勢田町に住む人の口コミ20代女性
- 都会でもなく田舎過ぎるわけでもなく、治安も良いので安心して生活ができる
- 京都府宇治市伊勢田町に住む人の口コミ30代女性
- 昔は娯楽や商業施設が溢れた場所が良いと思っていたが、お金には限りがあるし普段の何でもない日常を不足なく穏やかに過ごせるこの場所で今は満足。楽しみに溢れた場所へのアクセスが良いのも、不満が少ない理由
- 京都府宇治市伊勢田町に住む人の口コミ20代女性
- 買い物できるお店があって交通の便もいいと思うけどもう少しほしいなとおもう。
- 京都府宇治市伊勢田町に住む人の口コミ20代女性
- 全体的に不自由なく過ごせるので満足ではあるが、最近近所の安いスーパーがなくなってしまったのでその点が不便に感じるため。
物件概要
- 建物構造
- RC(鉄筋コンクリート)
- 駐車場
- 空無
- 総戸数
- 45戸
- 契約形態
- -
- 契約期間
- 2年間
- 更新料
- 22,000円
- その他費用
- 室内清掃費用:22,000円、スマイルパック:20,000円
- 保証会社
加入要
保証会社:全保連
保証会社利用料:初回:月額賃料等の50%、更新時:1.3万円/1年(初回保証料 総賃料120% 更新保証料なしプランあり)
- 住宅保険
- 要
- 管理
- -
- LIFULL HOME'S
物件番号 - 0122850-0304697
- 自社管理番号
- 02785-3F-21
- 取引態様
- 仲介
- 会社名
- 株式会社京都ライフ 三条烏丸店
営業スタッフコメント

株式会社京都ライフ 三条烏丸店
二宮一真
誠心誠意、お客様のお部屋探しをお手伝いします!!
業界経験5年
資格少額短期保険募集人
- 会社実績や特徴・サービス情報
- 京都市内部屋付け数3年連続1位。(株式会社全国賃貸住宅新聞調べ) 当店は京都の中心地、烏丸御池駅から徒歩3分と、地元の方以外も他府県にお住まいの方にも多数ご来店頂いております。 各エリア専門のスタッフが揃っておりますので、京都市全域、向日市・長岡京市・宇治市など幅広くご紹介させて頂きます。 社会人のご単身・ファミリー様をはじめ、先端科学大学・同志社大学・立命館大学・京都大学など大学生のお部屋探しも全力でサポートさせて頂きます。 創業40年、地域密着に拘らせて頂いた京都最大級の物件情報をもとに、 誠心誠意、ご満足頂けるお部屋をご紹介させて頂きます。 お部屋を探しは京都ライフ 三条烏丸店へ、お気軽にお立ち寄りください
京都市内部屋付け数3年連続1位。(株式会社全国賃貸住宅新聞調べ) 当店は京都の中心地、烏丸御池駅から徒歩3分と、地元の方以外も他府県にお住まいの方にも多数ご来店頂いております。 各エリア専門のスタッフが揃っておりますので、京都市全域、向日市・長岡京市・宇治市など幅広くご紹介させて頂きます。 社会人のご単身・ファミリー様をはじめ、先端科学大学・同志社大学・立命館大学・京都大学など大学生のお部屋探しも全力でサポートさせて頂きます。 創業40年、地域密着に拘らせて頂いた京都最大級の物件情報をもとに、 誠心誠意、ご満足頂けるお部屋をご紹介させて頂きます。 お部屋を探しは京都ライフ 三条烏丸店へ、お気軽にお立ち寄りください
- 電話でお問合せ(通話無料)
お問合せ先 :株式会社京都ライフ 三条烏丸店
不動産会社情報
株式会社京都ライフ 三条烏丸店

京都府京都市中京区三条通烏丸東入梅忠町24 三条COHJUBLDG 1階
京都市営烏丸線 烏丸御池駅 徒歩3分
- 営業時間
- 09:30~19:00
- 定休日
- 年中無休(夏期・年末年始を除く)
優良店認定
京都市内部屋付け数3年連続1位。当店は京都の中心地、地元の方以外も他府県にお住まいの方にも多数ご来店頂いております。各エリア専門のスタッフが揃っておりますので、皆様のお部屋探しを広くサポート致します。
- 店舗の特徴
- 賃貸管理業務
- 24時間管理物件取扱い
- 引越し業者紹介可
- 年中無休
- 社宅・寮物件取扱い
- 保証人不要な物件あり
- 法人契約取扱い
- 女性スタッフ対応可
- 駅から歩いて3分以内
- 外国語を話せるスタッフ在籍
電話でお問合せお客様の電話番号は不動産会社には通知されません
- 不動産会社に
つながります
お客様の電話番号は不動産会社に通知されません
- ※光IP電話、及びIP電話からはご利用になれません
- ※お電話によるお問合せは、店舗営業時間内にお願いします。つながらない場合は、お問合せフォームよりお問合せください
- ※不動産会社がお電話に出られなかった場合、お問合せいただいた後に不動産会社より折り返しのお電話がある場合がございます(お客様が非通知設定した場合は対象外です)
- ※株式会社LIFULLは電話会社が提供するサービスを介してお客様の発信者番号を受領後、折り返し専用の電話番号を発番してお問合せの不動産会社に通知します(お客様の発信者番号がお問合せの不動産会社に通知されることはございません)
- ※携帯電話からお問合せいただいた方に対し、株式会社LIFULLは電話会社が提供するメッセ―ジサービスを介してお客様の発信者番号を受領後、ショートメッセージ(SMS)またはLINE通知メッセージによるお問合せ内容に関する通知をお届けする場合があります
- ※お客様が通話中に不動産会社にお伝えになったお客様の個人情報及び、電話会社が発番する折り返し専用の電話番号は、お問合せ先不動産会社が資料送付・電子メール送信・電話連絡などの目的で保管する可能性があります。お問合せ先不動産会社が保管する個人情報の取扱いについては、各不動産会社に直接お問合せください
- ※株式会社LIFULLでは本サービスを円滑に運用するために、お客様の発信者番号をサービスご利用の控えとして一定期間保管いたします
- ※上記および株式会社LIFULLの個人情報の取扱い方針に同意のうえ、お電話ください
【LIFULL HOME'S物件番号】0122850-0304697【自社管理番号】02785-3F-21
オンライン対応
オンライン相談に対応している物件です

「オンライン内見」「オンライン相談」「IT重説」とは?
物件の内見や不動産会社スタッフとの相談、契約前の重要事項説明をオンライン(ビデオ通話)で行うことができるサービスです。
オンライン内見
ビデオ通話で現地(物件)にいる不動産会社スタッフと映像・音声を使ってリアルタイムで会話しながら内見ができます。
オンライン相談
「物件について聞きたいことがある」など不動産会社スタッフへの相談もビデオ通話で行うことができます。
IT重説
契約前の重要事項説明(重説)をビデオ通話で行うことができます。
利用時の注意事項
- ビデオ通話については各不動産会社指定のものとなります。
- ビデオ通話利用時には通信が発生します。従量課金制通信サービスや通信量に上限があるネット回線・プランを利用する場合は、通信量にご注意ください。
- 通信速度やアプリの設定によってはビデオ通話の画質が低下することがあります。安定した画質で利用するためにも、Wi-Fi環境下での利用を推奨します。
- ご利用のビデオ通話アプリによっては、対象のOSやブラウザに制限がある場合があります。詳しくはお問合せ先不動産会社にご確認ください。
初期費用・月額費用をあわせて確認!この物件に住んだときの費用めやす
めやすを見るこの物件に住んだときの費用めやす
- 初期費用
- 月額費用
- 追加費用※ご確認ください
追加で費用が
かかる場合があります
必ずご確認ください
初期費用めやす約0円
追加で費用がかかります(※)敷金
0
- 礼金
0
賃料+共益費・管理費の1ヶ月分として換算
賃料の1ヶ月分+税として換算。不動産会社によって金額が異なるため正確な金額は不動産会社にお問合せください
※追加費用もチェック!
これらの項目以外にも費用がかかる場合があります。正確な金額は不動産会社にお問合せください。
- 初期費用
- 鍵交換費:不動産会社に要確認
- 室内清掃費:22,000円
- 火災保険費:不動産会社に要確認
- その他
- スマイルパック:20000円
- 保証会社
- 初回:月額賃料等の50%、更新時:1.3万円/1年(初回保証料 総賃料120% 更新保証料なしプランあり)
不動産会社より
条件にびっくり 近鉄伊勢田駅まで徒歩3分 近鉄伊勢田駅まで徒歩3分。
近くにはコンビニやスーパーもあり、独り暮らしにはとても便利なところです。建物内にコインランドリーがあるのでもちろんそちらもご利用頂けます。室内もキレイにしてあります。 物件情報はもちろん京都のエリア情報まで幅広く対応させていただきます!
- 保存する
- 共有する
- ※各種情報と現状に差異がある場合は、現状優先となります
- ※不動産会社が入力した情報を基に物件の位置を表示しています。詳しくは不動産会社までお問合せください
- ※不動産会社の方からの上記電話番号によるお問合せはお断りしております。こちら不動産会社詳細からお問合せください
- ※LIFULL HOME'Sは物件鮮度No.1を目指していきます。閲覧中の物件が「成約済である」「実際の物件情報と異なる点がある」などの場合、「掲載110番」からお問合せください
- ※QRコードは株式会社デンソーウェーブの登録商標です
LIFULL HOME'S 地図・周辺情報
買い物
- セブンイレブン 宇治伊勢田中山店
- 新鮮激安市場!宇治店
- ウエルシア宇治伊勢田店
- ファミリーマート 宇治伊勢田北山店
- コープ 宇治神明
グルメ
- まいどおおきに食堂 京宇治食堂
- ブロンコビリー宇治店
- CoCo壱番屋 宇治伊勢田店
- 天下一品宇治小倉店
- CoCo壱番屋 宇治小倉店
育児・教育
- 伊勢田こども園
- 宇治市立伊勢田小学校
- 宇治市立西宇治中学校
- ひいらぎこども園
- 宇治市立小倉小学校
医療
- 医療法人仁心会宇治川病院
- 医療法人長安会中村病院
- 医療法人徳洲会宇治徳洲会病院
- 宇治武田病院
- 医療法人啓信会京都きづ川病院
公共施設・郵便局
- 宇治伊勢田郵便局
- 宇治市西宇治図書館
- 宇治市役所
- 宇治南陵郵便局
- 久御山町立図書館
公園
- 城南荘児童公園
- 西宇治公園
- 宇治市植物公園
- 東山緑地
- お茶と宇治のまち歴史公園
利用可能な駅
- 徒歩10分以内
近鉄京都線
- 伊勢田駅徒歩3分
- すべての駅
JR奈良線
- JR小倉駅徒歩11分
- 新田駅徒歩17分
- 宇治駅徒歩35分
近鉄京都線
- 小倉駅徒歩16分
- 大久保駅徒歩18分
- 久津川駅徒歩32分
京阪宇治線
- 宇治駅3.8km
- 周辺情報は2023年07月21日時点のものになります。
- 周辺情報は、参考情報としてのみご利用ください(周辺情報は、株式会社LIFULLが地図情報の提供事業者から提供を受けた情報とLIFULL HOME'Sの物件情報に基づき、独自の方法で抽出し提供しているものです。周辺情報は、移転や閉鎖等により情報が最新ではない、または正しくない場合がありますが、地図情報の提供事業者から提供された情報をそのまま周辺情報として表示しているため、正確かつ最新の情報へ修正することができないことがあります。)
- 周辺情報は、株式会社LIFULLが掲載するものであり、不動産物件情報を掲載している不動産会社が掲載するものではありません
- 交通情報の一部については、株式会社LIFULLが掲載するものであり、不動産物件情報を掲載している不動産会社が掲載するものではない場合があります。交通情報に関する質問などは株式会社LIFULLにお問合せください
















