LIFULL HOME'Sは物件鮮度No.1!※評価について
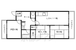
近鉄京都線 向島駅 徒歩9分(2階/3LDK/56.66m²)
近鉄京都線 向島駅 徒歩9分(2階/3LDK/56.66m²)
8.5万円/管理費等5,000円
2日前 更新
画像一覧
1/30間取り
間取
2/30外観
3/30外観
4/30リビング/ダイニング
南北両面バルコニーで風通しの良いお部屋です。
5/30リビング/ダイニング
採光面が多く明るい印象
6/30リビング/ダイニング
採光面が多く明るい印象
7/30リビング/ダイニング
使い勝手の良い洋室です。
8/30リビング/ダイニング
バルコニーに面したリビングです。
9/30リビング/ダイニング
縦に長く、レイアウトしやすい間取り
10/30リビング/ダイニング
縦に長く、レイアウトしやすい間取り
11/30リビング/ダイニング
寝るだけでは勿体ない、素足でくつろげる畳のお部屋です。
12/30リビング/ダイニング
寝るだけでは勿体ない、素足でくつろげる畳のお部屋です。
13/30キッチン
ワイドサイズが嬉しいキッチン入ってます
14/30キッチン
大きめシンクで洗い物もサッと片付く
15/30キッチン
お好きな2口コンロを置けますよ
16/30浴室
バスルームはシンプルで使いやすいつくり
17/30トイレ
トイレスペースです。
18/30洗面
身支度はこちらでどうぞ
19/30洗面
洗濯機はこちらへどうぞ
20/30収納
なんと、壁一面が収納になっています
21/30収納
収納力でいえば押入れです。
22/30設備
鍵をかけたまま応対できちゃいますよ
23/30設備
お湯の操作はこちらでどうぞ
24/30玄関
シューズボックスございます
25/30バルコニー
バルコニーがふたつ。洗濯物を干すだけではもったいない
26/30バルコニー
3階のバルコニーです。
27/30エントランス
28/30その他
3階からの眺望です。
29/30その他
30/30周辺
とりまさまで226m
間取り
外観
外観
リビング/ダイニング
リビング/ダイニング
リビング/ダイニング
リビング/ダイニング
リビング/ダイニング
リビング/ダイニング
リビング/ダイニング
リビング/ダイニング
リビング/ダイニング
キッチン
キッチン
キッチン
浴室
トイレ
洗面
洗面
収納
収納
設備
設備
玄関
バルコニー
バルコニー
エントランス
その他
その他
周辺
LINEチャットでも
相談できます
お問合せ先 :株式会社京都ライフ 北山店
1〜4月は引越しシーズンのピークです。お問合せはお早めに!
仲介手数料割引
仲介手数料が家賃の半月分(外税)です。
- 利用条件
- 株式会社京都ライフ 北山店で利用可
- 他特典との併用可
- ・法人契約、事業用物件は除く。 ・積水ハウス、大東建託の管理物件は除く。
利用方法
来店時に本特典の画面をスマートフォンやタブレットでスタッフに提示、または画面印刷した用紙を提示ください。
有効期限 なし
南北両面バルコニーが自慢 駅もコンビニもスーパーも近いので便利さも良しです。
物件のこだわり/設備・条件
新築(非該当)
2階以上の物件(該当)
南向き(該当)
駐車場あり(該当)
オートロック(非該当)
エアコン(非該当)
バス・トイレ別(該当)
追焚機能(非該当)
フローリング(該当)
ペット相談(非該当)
位置
角部屋入居条件
二人入居可、保証人不要- 上記以外や相談可の
詳細はお問合せください キッチン/バス・トイレ
設備・サービス
シューズボックス、CATV、インターネット対応、公営水道、都市ガス、下水、フローリング、バルコニー、室内洗濯機置場、南面バルコニー、駐車場あり、駐輪場ありその他
住まい探し特典あり備考
南北両面バルコニーって、なかなかないんですよ。やっぱり開放感が違います 駅もコンビニもスーパーも近いので便利さも良しです。それでいて静かな環境なのでオススメです。是非一度ご内覧下さい。京都の賃貸は京都ライフまでお待ちしております。ご質問、ご不明な点等がございましたらお気軽にお電話、メールにてお問い合わせくださいませ。 物件情報はもちろん京都のエリア情報まで幅広く対応させていただきます!
物件周辺の生活情報
買い物
- コンビニ(483m)
- スーパー(591m)
その他施設
- 総合病院(1,300m)
- 公園(896m)
- 銀行(1,100m)
- ホームセンターコーナン伏見大手筋店(1,600m)
交通
- 近鉄京都線 向島駅 徒歩9分
- 普通(停車)
- 準急(停車)
- 急行(通過)
- 京阪宇治線 観月橋駅 徒歩17分
- 普通(停車)
※急行等の停車駅情報について
急行等の停車駅に関するデータは、随時更新をしておりますが、最新の内容であることを保証するものではありません。
最新かつ正確な情報につきましては、各鉄道会社のウェブサイトにてご確認ください
物件周辺の口コミ
- 京都府京都市伏見区向島津田町に住む人の口コミ40代女性
スーパーやコンビニ、金融機関や郵便局が充実しているので。交通機関が複数沿線あるので。図書館があるので。
口コミを見る
この物件周辺に住む人の口コミ
口コミは、LIFULL HOME'Sが実際にこの物件の周辺に住む18歳~69歳の男女を対象に、WEBアンケート調査を実施しています。内容には回答者の主観的な表現が含まれる場合があるほか、事実と異なる場合もございます。ご了承ください。
- 京都府京都市伏見区向島津田町に住む人の口コミ40代女性
- スーパーやコンビニ、金融機関や郵便局が充実しているので。交通機関が複数沿線あるので。図書館があるので。
- 京都府京都市伏見区向島津田町に住む人の口コミ60代男性
- 歩いて行ける範囲で、病院(内科)、買い物に行けます。京阪、近鉄が利用でき、京都、大阪ともに、一時間位で行けます。
- 京都府京都市伏見区向島津田町に住む人の口コミ40代男性
- 当区内で治安が良いほうとは言えないが、その中でもこの近隣はまだ静かなところで住みやすい。保育園が充実していて待機児童も少ない。しかし小中学校の統廃合が進行中で子供にとっての環境は悪化しつつある。
- 京都府京都市伏見区向島津田町に住む人の口コミ50代女性
- 危険な目にあったこともないし、買い物に不自由したこともないし、病気になって困ったこともないし、案外静かだし、でも、もっと上があるのだろうと思うので、今が一番とは言い切れないから。
- 京都府京都市伏見区向島立河原町に住む人の口コミ30代女性
- 車がなくても通勤、買物など不便ないです。子どもの学校が近くにあり近所の同級生と一緒に進学できるので仲良くできる環境で良いと思います。近所にお年寄りが多いですが子どもに優しくしてくれます。
- 京都府宇治市槇島町に住む人の口コミ30代女性
- 駅から近く、スーパーや飲食店は徒歩あるいは自転車圏内に数件あるので利便性が高い。少し残念なのは子どもがいるのでもう少し子育て支援センター等が近くにあると助かる。
- 京都府京都市伏見区向島庚申町に住む人の口コミ60代男性
- 車で5分でウミエやイオンがあり、ちょっと買い物したり外食するには十分に満足している。土日は30分以内で海にも山にも遊びに行けるので繁華街と自然もあり子供達とのお出かけにも満足です!
- 京都府宇治市槇島町に住む人の口コミ40代女性
- 近くに学校や病院、コンビニがありスーパーも自転車で行ける距離にある。散歩もしやすいので得に不自由がない。
- 京都府宇治市槇島町に住む人の口コミ40代女性
- スーパーが多く、学校は近いし、病院も沢山あるので、子育て中としては不便がないから。
- 京都府宇治市槇島町に住む人の口コミ50代女性
- 駅近、スーパー目の前、コンビニ、飲食店多し、病院も割と近く。小中学校近く
物件概要
- 建物構造
- RC(鉄筋コンクリート)
- 駐車場
- 空有 11,000円(税込)
- 総戸数
- 18戸
- 契約形態
- -
- 契約期間
- 2年間
- 更新料
- 新賃料の1ヶ月分
- その他費用
- 室内清掃費用:38,500円、入居者サポート:880円、書類代:8,800円
- 保証会社
加入要
保証会社:全保連
保証会社利用料:初回:月額賃料等の50%、月額:保証料1000円
- 住宅保険
- 要
- 管理
- 管理員:巡回
- LIFULL HOME'S
物件番号 - 0119809-0237204
- 自社管理番号
- 03654-201-13
- 取引態様
- 仲介
- 会社名
- 株式会社京都ライフ 北山店
営業スタッフコメント

株式会社京都ライフ 北山店営業
松野
花道だけ歩こう
業界経験1年
資格少額短期保険募集人
- 会社実績や特徴・サービス情報
- 地下鉄烏丸線沿線を中心に京都市内全域のお部屋探しは京都ライフ北山店へお任せください。ファミリー様向き物件、社会人様向きのお部屋はもちろん各大学の学生様向き物件も多数ございます。京都大学、同志社大学、同志社女子大学、京都産業大学、大谷大学、立命館大学、京都府立大学、ノートルダム女子大学の学生さんは当店までご相談ください。 当店では居住用物件個人契約の仲介手数料は家賃の半月分(外税)です。※一部物件を除く
地下鉄烏丸線沿線を中心に京都市内全域のお部屋探しは京都ライフ北山店へお任せください。ファミリー様向き物件、社会人様向きのお部屋はもちろん各大学の学生様向き物件も多数ございます。京都大学、同志社大学、同志社女子大学、京都産業大学、大谷大学、立命館大学、京都府立大学、ノートルダム女子大学の学生さんは当店までご相談ください。 当店では居住用物件個人契約の仲介手数料は家賃の半月分(外税)です。※一部物件を除く
- 電話でお問合せ(通話無料)
お問合せ先 :株式会社京都ライフ 北山店
不動産会社情報
株式会社京都ライフ 北山店京都ライフ北山店

京都府京都市北区上賀茂岩ケ垣内町98−2
京都市営烏丸線 北山駅 徒歩1分
- 営業時間
- 09:30~19:00
- 定休日
- 年中無休(盆・正月を除く)
優良店認定
地下鉄烏丸線「北山」から徒歩1分。キッズスペースも備えた明るく綺麗な店内で、ゆっくりとお部屋探ししていただけます。活気あふれるスタッフが皆様のご来店をお待ちしています。
- 店舗の特徴
- 賃貸管理業務
- 24時間管理物件取扱い
- リフォーム対応
- 引越し業者紹介可
- 年中無休
- 系列店舗での対応可
- 保証人不要な物件あり
- 法人契約取扱い
- 駅から歩いて3分以内
電話でお問合せお客様の電話番号は不動産会社には通知されません
- 不動産会社に
つながります
お客様の電話番号は不動産会社に通知されません
- ※光IP電話、及びIP電話からはご利用になれません
- ※お電話によるお問合せは、店舗営業時間内にお願いします。つながらない場合は、お問合せフォームよりお問合せください
- ※不動産会社がお電話に出られなかった場合、お問合せいただいた後に不動産会社より折り返しのお電話がある場合がございます(お客様が非通知設定した場合は対象外です)
- ※株式会社LIFULLは電話会社が提供するサービスを介してお客様の発信者番号を受領後、折り返し専用の電話番号を発番してお問合せの不動産会社に通知します(お客様の発信者番号がお問合せの不動産会社に通知されることはございません)
- ※携帯電話からお問合せいただいた方に対し、株式会社LIFULLは電話会社が提供するメッセ―ジサービスを介してお客様の発信者番号を受領後、ショートメッセージ(SMS)またはLINE通知メッセージによるお問合せ内容に関する通知をお届けする場合があります
- ※お客様が通話中に不動産会社にお伝えになったお客様の個人情報及び、電話会社が発番する折り返し専用の電話番号は、お問合せ先不動産会社が資料送付・電子メール送信・電話連絡などの目的で保管する可能性があります。お問合せ先不動産会社が保管する個人情報の取扱いについては、各不動産会社に直接お問合せください
- ※株式会社LIFULLでは本サービスを円滑に運用するために、お客様の発信者番号をサービスご利用の控えとして一定期間保管いたします
- ※上記および株式会社LIFULLの個人情報の取扱い方針に同意のうえ、お電話ください
【LIFULL HOME'S物件番号】0119809-0237204【自社管理番号】03654-201-13
オンライン対応
オンライン相談に対応している物件です

「オンライン内見」「オンライン相談」「IT重説」とは?
物件の内見や不動産会社スタッフとの相談、契約前の重要事項説明をオンライン(ビデオ通話)で行うことができるサービスです。
オンライン内見
ビデオ通話で現地(物件)にいる不動産会社スタッフと映像・音声を使ってリアルタイムで会話しながら内見ができます。
オンライン相談
「物件について聞きたいことがある」など不動産会社スタッフへの相談もビデオ通話で行うことができます。
IT重説
契約前の重要事項説明(重説)をビデオ通話で行うことができます。
利用時の注意事項
- ビデオ通話については各不動産会社指定のものとなります。
- ビデオ通話利用時には通信が発生します。従量課金制通信サービスや通信量に上限があるネット回線・プランを利用する場合は、通信量にご注意ください。
- 通信速度やアプリの設定によってはビデオ通話の画質が低下することがあります。安定した画質で利用するためにも、Wi-Fi環境下での利用を推奨します。
- ご利用のビデオ通話アプリによっては、対象のOSやブラウザに制限がある場合があります。詳しくはお問合せ先不動産会社にご確認ください。
初期費用・月額費用をあわせて確認!この物件に住んだときの費用めやす
めやすを見るこの物件に住んだときの費用めやす
- 初期費用
- 月額費用
- 追加費用※ご確認ください
追加で費用が
かかる場合があります
必ずご確認ください
初期費用めやす約0円
追加で費用がかかります(※)敷金
0
- 礼金
0
賃料+共益費・管理費の1ヶ月分として換算
賃料の1ヶ月分+税として換算。不動産会社によって金額が異なるため正確な金額は不動産会社にお問合せください
※追加費用もチェック!
これらの項目以外にも費用がかかる場合があります。正確な金額は不動産会社にお問合せください。
- 初期費用
- 鍵交換費:不動産会社に要確認
- 室内清掃費:38,500円
- 火災保険費:不動産会社に要確認
- 月額費用
- 駐車場費:11,000円(税込)※契約任意
- その他
- 入居者サポート:880円
- 書類代:8800円
- 保証会社
- 初回:月額賃料等の50%、月額:保証料1000円
不動産会社より
南北両面バルコニーが自慢 駅もコンビニもスーパーも近いので便利さも良しです。
南北両面バルコニーって、なかなかないんですよ。やっぱり開放感が違います 駅もコンビニもスーパーも近いので便利さも良しです。それでいて静かな環境なのでオススメです。是非一度ご内覧下さい。京都の賃貸は京都ライフまでお待ちしております。ご質問、ご不明な点等がございましたらお気軽にお電話、メールにてお問い合わせくださいませ。 物件情報はもちろん京都のエリア情報まで幅広く対応させていただきます!
- 保存する
- 共有する
- ※各種情報と現状に差異がある場合は、現状優先となります
- ※不動産会社が入力した情報を基に物件の位置を表示しています。詳しくは不動産会社までお問合せください
- ※不動産会社の方からの上記電話番号によるお問合せはお断りしております。こちら不動産会社詳細からお問合せください
- ※LIFULL HOME'Sは物件鮮度No.1を目指していきます。閲覧中の物件が「成約済である」「実際の物件情報と異なる点がある」などの場合、「掲載110番」からお問合せください
- ※QRコードは株式会社デンソーウェーブの登録商標です
したい暮らしのタグから探す
LIFULL HOME'S 地図・周辺情報
買い物
- セブンイレブン 伏見向島津田町店
- フレスコ 向島店
- ドラッグユタカ向島店
- ローソン 伏見向島駅前店
- 万代 宇治槙島店
グルメ
- マクドナルド 槙島店
- コメダ珈琲店伏見桃山駅前店
- ドトールコーヒーショップ伏見桃山駅前店
- ミスタードーナツ 伏見大手筋ショップ
- なか卯 伏見桃山店
育児・教育
- 向島幼稚園
- 京都市立向島小学校
- 京都市立向島秀蓮小中学校
- 白菊こども園
- 京都市立伏見南浜小学校
医療
- 医療法人健幸会むかいじま病院
- 社会医療法人弘仁会大島病院
- 社会福祉法人浩照会伏見桃山総合病院
- 特定医療法人桃仁会桃仁会病院
- 医療法人社団蘇生会総合病院
公共施設・郵便局
- 京都向島郵便局
- 京都市向島図書館
- 京都市伏見区役所
- 京都向島四ツ谷池郵便局
- 京都市伏見中央図書館
公園
- 宇治川公園
- 向島東公園
- 三栖公園
- 西宇治公園
- 伏見桃山城運動公園
利用可能な駅
- 徒歩10分以内
近鉄京都線
- 向島駅徒歩9分
- すべての駅
京阪宇治線
- 観月橋駅徒歩17分
- 桃山南口駅徒歩36分
- 六地蔵駅3.9km
- 木幡駅4.4km
JR奈良線
- 桃山駅徒歩26分
近鉄京都線
- 桃山御陵前駅徒歩27分
- 近鉄丹波橋駅徒歩32分
京阪本線
- 伏見桃山駅徒歩27分
- 中書島駅徒歩28分
- 丹波橋駅徒歩34分
- 周辺情報は2023年07月21日時点のものになります。
- 周辺情報は、参考情報としてのみご利用ください(周辺情報は、株式会社LIFULLが地図情報の提供事業者から提供を受けた情報とLIFULL HOME'Sの物件情報に基づき、独自の方法で抽出し提供しているものです。周辺情報は、移転や閉鎖等により情報が最新ではない、または正しくない場合がありますが、地図情報の提供事業者から提供された情報をそのまま周辺情報として表示しているため、正確かつ最新の情報へ修正することができないことがあります。)
- 周辺情報は、株式会社LIFULLが掲載するものであり、不動産物件情報を掲載している不動産会社が掲載するものではありません
- 交通情報の一部については、株式会社LIFULLが掲載するものであり、不動産物件情報を掲載している不動産会社が掲載するものではない場合があります。交通情報に関する質問などは株式会社LIFULLにお問合せください









