LIFULL HOME'Sは物件鮮度No.1!※評価について
京阪本線 淀駅 徒歩3分(3階/3LDK/53.64m²)
京阪本線 淀駅 徒歩3分(3階/3LDK/53.64m²)
6.9万円/管理費等3,000円
18時間前 更新
画像一覧
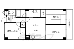
1/30間取り
間取
2/30外観
3/30外観
4/30リビング/ダイニング
5/30リビング/ダイニング
6/30リビング/ダイニング
7/30リビング/ダイニング
8/30リビング/ダイニング
9/30リビング/ダイニング
10/30室内
11/30キッチン
12/30キッチン
13/30キッチン
14/30浴室
15/30浴室
16/30トイレ
17/30洗面
18/30収納
19/30収納
20/30収納
21/30収納
22/30収納
23/30設備
24/30設備
25/30設備
26/30玄関
27/30バルコニー
28/30その他
29/30その他
30/30周辺
淀駅まで190m
間取り
外観
外観
リビング/ダイニング
リビング/ダイニング
リビング/ダイニング
リビング/ダイニング
リビング/ダイニング
リビング/ダイニング
室内
キッチン
キッチン
キッチン
浴室
浴室
トイレ
洗面
収納
収納
収納
収納
収納
設備
設備
設備
玄関
バルコニー
その他
その他
周辺
LINEチャットでも
相談できます
お問合せ先 :株式会社京都ライフ 北山店
1〜4月は引越しシーズンのピークです。お問合せはお早めに!
仲介手数料割引
仲介手数料が家賃の半月分(外税)です。
- 利用条件
- 株式会社京都ライフ 北山店で利用可
- 他特典との併用可
- ・法人契約、事業用物件は除く。 ・積水ハウス、大東建託の管理物件は除く。
利用方法
来店時に本特典の画面をスマートフォンやタブレットでスタッフに提示、または画面印刷した用紙を提示ください。
有効期限 なし
更新料無し スーパースグ 京阪淀駅がすぐ近く。コンビニやスーパーも近くて便利です。
基本情報
不動産用語- 賃料
- 6.9万円
- 管理費等
- 3,000円
初期費用などお気軽にお問合せください
- 敷金/礼金
- 無/6.9万円
- 保証金/敷引・償却金
- -/-
- 交通
京阪本線 淀駅 徒歩3分
阪急京都本線 西山天王山駅 3.2km
JR東海道・山陽本線 長岡京駅 3.4km
- 所在地
京都府京都市伏見区淀本町
地図を見る- 築年月
- 1994年7月(築32年)
- 主要採光面
- 南
- 専有面積
- 53.64㎡
- バルコニー面積
- -
- 所在階/階数
- 3階/4階建
入居可能日などお気軽にお問合せください
- 現況
- 空家
- 入居可能時期
- 相談

人気物件はすぐに埋まってしまいます。
気になったらお早めにお問合せください。
- 情報公開日
2026/03/07
16日前 公開
- 情報更新日
2026/03/22
18時間前 更新
- 次回更新
予定日 - 2026/04/03
物件のこだわり/設備・条件
新築(非該当)
2階以上の物件(該当)
南向き(該当)
駐車場(非該当)
オートロック(非該当)
エアコン(非該当)
バス・トイレ別(該当)
追焚機能(非該当)
フローリング(非該当)
ペット相談(非該当)
位置
角部屋入居条件
二人入居可キッチン/バス・トイレ
設備・サービス
CATV、BS対応、インターネット対応、公営水道、都市ガス、下水、バルコニー、室内洗濯機置場、南面バルコニー、駐輪場ありその他
住まい探し特典あり備考
京阪淀駅がすぐ近く。コンビニやスーパーも近くて便利です。京阪本線が最寄駅なので、大阪に出るのも便利ですよ。 物件情報はもちろん京都のエリア情報まで幅広く対応させていただきます!
物件周辺の生活情報
学校
- 明親小学校(420m)
- 大淀中学校(780m)
買い物
- コンビニ(100m)
- スーパー(31m)
その他施設
- 総合病院(499m)
- 銀行(130m)
- 京都淀池上郵便局(306m)
交通
- 京阪本線 淀駅 徒歩3分
- 普通(停車)
- 区間急行(通過)
- 急行(停車)
- 特急(通過)
- 通勤準急・準急(停車)
- 快速特急 洛楽(通過)
- 通勤快急・快速急行(通過)
- 阪急京都本線 西山天王山駅 3.2km
- 普通(停車)
- 準急(停車)
- 堺筋準急(停車)
- 通勤特急(通過)
- 特急(通過)
- 急行(通過)
- 準特急(通過)
※急行等の停車駅情報について
急行等の停車駅に関するデータは、随時更新をしておりますが、最新の内容であることを保証するものではありません。
最新かつ正確な情報につきましては、各鉄道会社のウェブサイトにてご確認ください
物件周辺の口コミ
- 京都府京都市伏見区淀本町に住む人の口コミ40代男性
大きな事故や事件も災害もなく平和に暮らせている。災害などでキビシイ生活をしている人達に比べたら、水道、電気、ガスが普通に使える生活だけでも大満足です。上ばっかり見ていてもキリがないです。
口コミを見る
この物件周辺に住む人の口コミ
口コミは、LIFULL HOME'Sが実際にこの物件の周辺に住む18歳~69歳の男女を対象に、WEBアンケート調査を実施しています。内容には回答者の主観的な表現が含まれる場合があるほか、事実と異なる場合もございます。ご了承ください。
- 京都府京都市伏見区淀本町に住む人の口コミ40代男性
- 大きな事故や事件も災害もなく平和に暮らせている。災害などでキビシイ生活をしている人達に比べたら、水道、電気、ガスが普通に使える生活だけでも大満足です。上ばっかり見ていてもキリがないです。
- 京都府京都市伏見区淀本町に住む人の口コミ50代男性
- 片田舎ではありますが、昔ながらのおっとりとした街で、住むのにはちょうど良いかと。。。
- 京都府京都市伏見区淀本町に住む人の口コミ50代男性
- 子供の頃から住んでいますが、治安も良くなり、普段の買い物もし易く、自然も歴史的にも恵まれているから。
- 京都府京都市伏見区淀本町に住む人の口コミ40代女性
- 一つの店で全て済むような便利さはないが、住んでいて不便もあまり感じないから。
- 京都府長岡京市神足に住む人の口コミ30代女性
- スーパーがたくさんあり、日々の生活にはあまり困らないが、自宅近くのバス停のバスの時間があまりなく、利用しづらいので、もう少し便利になればと思います。
- 京都府乙訓郡大山崎町字下植野に住む人の口コミ50代男性
- 一長一短な所はあるが、住めば都だと思う。バスが1時間に1本しかない点や飲食できる店が近所にはあまりない事が減点だ。京都府で一番小さな町らしいので仕方ない事ではある。
- 京都府長岡京市神足に住む人の口コミ40代女性
- 住みやすく、交通の便もいい。食料品を買い物するところも多い。
- 京都府京都市伏見区羽束師志水町に住む人の口コミ40代女性
- 自然も近くにそこそこあって、スーバーもあり、都市部にも比較的短時間で行けるところ
- 京都府京都市伏見区淀生津町に住む人の口コミ50代男性
- 1 公共交通が 少し不満です。2 自然が、満ちてるところに、満足。3 近距離で、日常に満足の施設がある。
- 京都府長岡京市神足に住む人の口コミ30代男性
- 自分のお気に入りの散歩コースがある事。JR、阪急の駅があり、交通の便がいい。スーパーが複数店舗ある。
物件概要
- 建物構造
- RC(鉄筋コンクリート)
- 駐車場
- 無
- 総戸数
- 12戸
- 契約形態
- -
- 契約期間
- 2年間
- 更新料
- -
- その他費用
- -
- 保証会社
- -
- 住宅保険
- 要
- 管理
- -
- LIFULL HOME'S
物件番号 - 0119809-0229904
- 自社管理番号
- 12782-3-A-13
- 取引態様
- 仲介
- 会社名
- 株式会社京都ライフ 北山店
営業スタッフコメント

株式会社京都ライフ 北山店営業
松野
花道だけ歩こう
業界経験1年
資格少額短期保険募集人
- 会社実績や特徴・サービス情報
- 地下鉄烏丸線沿線を中心に京都市内全域のお部屋探しは京都ライフ北山店へお任せください。ファミリー様向き物件、社会人様向きのお部屋はもちろん各大学の学生様向き物件も多数ございます。京都大学、同志社大学、同志社女子大学、京都産業大学、大谷大学、立命館大学、京都府立大学、ノートルダム女子大学の学生さんは当店までご相談ください。 当店では居住用物件個人契約の仲介手数料は家賃の半月分(外税)です。※一部物件を除く
地下鉄烏丸線沿線を中心に京都市内全域のお部屋探しは京都ライフ北山店へお任せください。ファミリー様向き物件、社会人様向きのお部屋はもちろん各大学の学生様向き物件も多数ございます。京都大学、同志社大学、同志社女子大学、京都産業大学、大谷大学、立命館大学、京都府立大学、ノートルダム女子大学の学生さんは当店までご相談ください。 当店では居住用物件個人契約の仲介手数料は家賃の半月分(外税)です。※一部物件を除く
- 電話でお問合せ(通話無料)
お問合せ先 :株式会社京都ライフ 北山店
不動産会社情報
株式会社京都ライフ 北山店京都ライフ北山店

京都府京都市北区上賀茂岩ケ垣内町98−2
京都市営烏丸線 北山駅 徒歩1分
- 営業時間
- 09:30~19:00
- 定休日
- 年中無休(盆・正月を除く)
優良店認定
地下鉄烏丸線「北山」から徒歩1分。キッズスペースも備えた明るく綺麗な店内で、ゆっくりとお部屋探ししていただけます。活気あふれるスタッフが皆様のご来店をお待ちしています。
- 店舗の特徴
- 賃貸管理業務
- 24時間管理物件取扱い
- リフォーム対応
- 引越し業者紹介可
- 年中無休
- 系列店舗での対応可
- 保証人不要な物件あり
- 法人契約取扱い
- 駅から歩いて3分以内
電話でお問合せお客様の電話番号は不動産会社には通知されません
- 不動産会社に
つながります
お客様の電話番号は不動産会社に通知されません
- ※光IP電話、及びIP電話からはご利用になれません
- ※お電話によるお問合せは、店舗営業時間内にお願いします。つながらない場合は、お問合せフォームよりお問合せください
- ※不動産会社がお電話に出られなかった場合、お問合せいただいた後に不動産会社より折り返しのお電話がある場合がございます(お客様が非通知設定した場合は対象外です)
- ※株式会社LIFULLは電話会社が提供するサービスを介してお客様の発信者番号を受領後、折り返し専用の電話番号を発番してお問合せの不動産会社に通知します(お客様の発信者番号がお問合せの不動産会社に通知されることはございません)
- ※携帯電話からお問合せいただいた方に対し、株式会社LIFULLは電話会社が提供するメッセ―ジサービスを介してお客様の発信者番号を受領後、ショートメッセージ(SMS)またはLINE通知メッセージによるお問合せ内容に関する通知をお届けする場合があります
- ※お客様が通話中に不動産会社にお伝えになったお客様の個人情報及び、電話会社が発番する折り返し専用の電話番号は、お問合せ先不動産会社が資料送付・電子メール送信・電話連絡などの目的で保管する可能性があります。お問合せ先不動産会社が保管する個人情報の取扱いについては、各不動産会社に直接お問合せください
- ※株式会社LIFULLでは本サービスを円滑に運用するために、お客様の発信者番号をサービスご利用の控えとして一定期間保管いたします
- ※上記および株式会社LIFULLの個人情報の取扱い方針に同意のうえ、お電話ください
【LIFULL HOME'S物件番号】0119809-0229904【自社管理番号】12782-3-A-13
オンライン対応
オンライン内見・オンライン相談・IT重説に対応している物件です

「オンライン内見」「オンライン相談」「IT重説」とは?
物件の内見や不動産会社スタッフとの相談、契約前の重要事項説明をオンライン(ビデオ通話)で行うことができるサービスです。
オンライン内見
ビデオ通話で現地(物件)にいる不動産会社スタッフと映像・音声を使ってリアルタイムで会話しながら内見ができます。
オンライン相談
「物件について聞きたいことがある」など不動産会社スタッフへの相談もビデオ通話で行うことができます。
IT重説
契約前の重要事項説明(重説)をビデオ通話で行うことができます。
利用時の注意事項
- ビデオ通話については各不動産会社指定のものとなります。
- ビデオ通話利用時には通信が発生します。従量課金制通信サービスや通信量に上限があるネット回線・プランを利用する場合は、通信量にご注意ください。
- 通信速度やアプリの設定によってはビデオ通話の画質が低下することがあります。安定した画質で利用するためにも、Wi-Fi環境下での利用を推奨します。
- ご利用のビデオ通話アプリによっては、対象のOSやブラウザに制限がある場合があります。詳しくはお問合せ先不動産会社にご確認ください。
初期費用・月額費用をあわせて確認!この物件に住んだときの費用めやす
めやすを見るこの物件に住んだときの費用めやす
- 初期費用
- 月額費用
- 追加費用※ご確認ください
追加で費用が
かかる場合があります
必ずご確認ください
初期費用めやす約0円
追加で費用がかかります(※)敷金
0
- 礼金
69,000
賃料+共益費・管理費の1ヶ月分として換算
賃料の1ヶ月分+税として換算。不動産会社によって金額が異なるため正確な金額は不動産会社にお問合せください
※追加費用もチェック!
これらの項目以外にも費用がかかる場合があります。正確な金額は不動産会社にお問合せください。
- 初期費用
- 鍵交換費:不動産会社に要確認
- 室内清掃費:不動産会社に要確認
- 火災保険費:不動産会社に要確認
- 保証会社
- 不動産会社に要確認
不動産会社より
更新料無し スーパースグ 京阪淀駅がすぐ近く。コンビニやスーパーも近くて便利です。
京阪淀駅がすぐ近く。コンビニやスーパーも近くて便利です。京阪本線が最寄駅なので、大阪に出るのも便利ですよ。 物件情報はもちろん京都のエリア情報まで幅広く対応させていただきます!
- 保存する
- 共有する
- ※各種情報と現状に差異がある場合は、現状優先となります
- ※不動産会社が入力した情報を基に物件の位置を表示しています。詳しくは不動産会社までお問合せください
- ※不動産会社の方からの上記電話番号によるお問合せはお断りしております。こちら不動産会社詳細からお問合せください
- ※LIFULL HOME'Sは物件鮮度No.1を目指していきます。閲覧中の物件が「成約済である」「実際の物件情報と異なる点がある」などの場合、「掲載110番」からお問合せください
- ※QRコードは株式会社デンソーウェーブの登録商標です
したい暮らしのタグから探す
LIFULL HOME'S 地図・周辺情報
買い物
- ローソン 京都競馬場前店
- フレスコ 淀駅店
- 薬ヒグチ淀店
- アンスリー 淀競馬場前店
- TOAmart京都淀店
グルメ
- ケンタッキーフライドチキン JRA京都競馬場店
- 吉野家 京都競馬場店
- 和食さと 城ノ里店
- すき家 大山崎IC店
- モスバーガー 長岡京駅前店
育児・教育
- 淀白鳥保育園
- 京都市立納所小学校
- 京都市立大淀中学校
- 淀白鳥保育園分園
- 京都市立明親小学校
医療
- 医療法人社団淀さんせん会金井病院
- 医療法人社団洛和会介護医療院洛和ヴィラよつば
- 医療法人八仁会久御山南病院
- 医療法人社団千春会千春会病院
- (財)長岡記念財団長岡ヘルスケアセンター(長岡病院)
公共施設・郵便局
- 京都淀池上郵便局
- 大山崎町役場
- 京都納所郵便局
- 御牧郵便局
- 長岡京神足郵便局
公園
- 淀城跡公園
- 横大路運動公園
- 勝竜寺城公園
- 勝竜寺城公園
- かわきた自然運動公園
利用可能な駅
- 徒歩10分以内
京阪本線
- 淀駅徒歩3分
- すべての駅
阪急京都本線
- 西山天王山駅3.2km
JR東海道・山陽本線
- 長岡京駅3.4km
- 周辺情報は2023年07月21日時点のものになります。
- 周辺情報は、参考情報としてのみご利用ください(周辺情報は、株式会社LIFULLが地図情報の提供事業者から提供を受けた情報とLIFULL HOME'Sの物件情報に基づき、独自の方法で抽出し提供しているものです。周辺情報は、移転や閉鎖等により情報が最新ではない、または正しくない場合がありますが、地図情報の提供事業者から提供された情報をそのまま周辺情報として表示しているため、正確かつ最新の情報へ修正することができないことがあります。)
- 周辺情報は、株式会社LIFULLが掲載するものであり、不動産物件情報を掲載している不動産会社が掲載するものではありません
- 交通情報の一部については、株式会社LIFULLが掲載するものであり、不動産物件情報を掲載している不動産会社が掲載するものではない場合があります。交通情報に関する質問などは株式会社LIFULLにお問合せください









