LIFULL HOME'Sは物件鮮度No.1!※評価について
ワンネス21(3階/301/3LDK/65.23m²)
ワンネス21(3階/301/3LDK/65.23m²)
8万円/管理費等12,000円
1時間前 更新
画像一覧
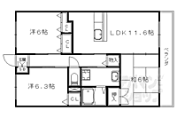
1/30間取り
2/30外観
3/30外観
4/30リビング/ダイニング
リビング
5/30リビング/ダイニング
リビング
6/30リビング/ダイニング
リビング
7/30室内
洋室
8/30寝室
洋室
9/30寝室
和室
10/30寝室
和室
11/30子供部屋
洋室
12/30キッチン
キッチン
13/30キッチン
キッチン
14/30キッチン
キッチン
15/30浴室
風呂
16/30トイレ
トイレ
17/30洗面
洗面所
18/30収納
収納
19/30収納
収納
20/30設備
下駄箱
21/30設備
洗濯機置場
22/30玄関
玄関
23/30バルコニー
ベランダ
24/30バルコニー
ベランダ
25/30駐車場
駐車場
26/30その他
ドアフォン
27/30その他
廊下
28/30周辺
ハッピーテラダ 山科大塚店まで120メートル
29/30周辺
ファミリーマート 山科大塚店まで250メートル
30/30周辺
ドラックユタカ 山科音羽店まで850メートル
間取り
外観
外観
リビング/ダイニング
リビング/ダイニング
リビング/ダイニング
室内
寝室
寝室
寝室
子供部屋
キッチン
キッチン
キッチン
浴室
トイレ
洗面
収納
収納
設備
設備
玄関
バルコニー
バルコニー
駐車場
その他
その他
周辺
周辺
周辺
お問合せ先 :株式会社エリッツ 六地蔵店
1〜3月は引越しシーズンのピークです。お問合せはお早めに!
仲介手数料割引
ご成約時の仲介手数料が賃料の半月分(税別)です。
- 利用条件
- 株式会社エリッツ 六地蔵店で利用可
- 他特典との併用可
- 借主が法人または一部の物件は対象外です。
利用方法
来店時に本特典の画面をスマートフォンやタブレットでスタッフに提示、または画面印刷した用紙を提示ください。
有効期限 なし
【カウンターキッチン】鉄筋コンクリート3LDKマンション--パノラマ掲載--
物件のこだわり/設備・条件
新築(非該当)
2階以上の物件(該当)
南向き(該当)
駐車場あり(該当)
オートロック(非該当)
エアコン(該当)
バス・トイレ別(該当)
追焚機能(非該当)
フローリング(該当)
ペット相談(非該当)
位置
角部屋入居条件
二人入居可、即入居可キッチン/バス・トイレ
設備・サービス
エアコン、クローゼット、シューズボックス、CATV、BS対応、光ファイバー、公営水道、都市ガス、下水、フローリング、バルコニー、室内洗濯機置場、南面バルコニー、エレベーター、駐車場あり、駐輪場ありその他
住まい探し特典あり備考
【大塚小学校・音羽中学校】地下鉄東野駅まで徒歩7分です。各部屋6帖のお部屋、カウンターキッチンでリビングも見渡せます。ベランダ南向きで日当たり良好です。クローゼット沢山あるので荷物が多くても安心です。・光ファイバーインターネット接続可 ハウスクリーニング55000円(退去時)
物件周辺の生活情報
学校
- 大宅小学校(850m)
- 大宅中学校(1,800m)
買い物
- コンビニ(250m)
- スーパー(120m)
- ドラッグストア(850m)
交通
- 京都地下鉄東西線 東野駅 徒歩7分
- 普通(停車)
- JR東海道・山陽本線 山科駅 徒歩22分
- 普通(停車)
- 新快速(停車)
- 快速(停車)
- 緩行電車(停車)
- 特別快速(通過)
- 区間快速(通過)
※急行等の停車駅情報について
急行等の停車駅に関するデータは、随時更新をしておりますが、最新の内容であることを保証するものではありません。
最新かつ正確な情報につきましては、各鉄道会社のウェブサイトにてご確認ください
物件周辺の口コミ
- 京都府京都市山科区東野中井ノ上町に住む人の口コミ30代男性
他の地域に比べると家賃が安い。歴史的にも深い地域で、交通の要所で、滋賀、奈良、京都、大阪に平均的に行きやすい。
口コミを見る
この物件周辺に住む人の口コミ
口コミは、LIFULL HOME'Sが実際にこの物件の周辺に住む18歳~69歳の男女を対象に、WEBアンケート調査を実施しています。内容には回答者の主観的な表現が含まれる場合があるほか、事実と異なる場合もございます。ご了承ください。
- 京都府京都市山科区東野中井ノ上町に住む人の口コミ30代男性
- 他の地域に比べると家賃が安い。歴史的にも深い地域で、交通の要所で、滋賀、奈良、京都、大阪に平均的に行きやすい。
- 京都府京都市山科区東野中井ノ上町に住む人の口コミ40代女性
- 交通の便が良いのでそれが一番助かっていますバスも使いやすく地下鉄もJRも全て使いやすい乗り換えとなっておりますそれが良ければどこでもいいというのが正直な気持ちでした
- 京都府京都市山科区東野中井ノ上町に住む人の口コミ50代女性
- 交通の便がよく、日常品なら徒歩・あるいは自転車でいける範囲に店があります。大きな工場もなく、どちらかというと落ち着いたところです。
- 京都府京都市山科区東野中井ノ上町に住む人の口コミ30代女性
- 病院や施設が充実しているし、買い物もしやすい。また、高速道路や新幹線にも近く、遠方へのアクセスも良い。
- 京都府京都市山科区東野中井ノ上町に住む人の口コミ30代女性
- コンビニやドラッグストアーが近所にあり買い物が便利。昔ながらの古民家で大屋さんやご近所の方の交流ごありホッとします。駅やバス停から徒歩5分で交通の便がよいです!駐車場が無料なのでかなり気に入ってます
- 京都府京都市山科区東野中井ノ上町に住む人の口コミ50代女性
- 普段の生活に必要な買い物は徒歩あるいは自転車で行けるところで買えるし、電車かバス一歩で市内にでられる
- 京都府京都市山科区東野中井ノ上町に住む人の口コミ30代女性
- 引っ越してきたばかりでまだあまり詳しくないが、生活に不便はしていない。もっと道が整備されていたり、緑のある大きな公園があると良いなと思う。
- 京都府京都市山科区東野八代に住む人の口コミ30代女性
- 同世代の家庭が多く、昔からのしきたり的な感覚が薄くて住みやすい。病院やスーパー等、近所に便利な施設も多く便利。
- 京都府京都市山科区竹鼻サイカシ町に住む人の口コミ40代男性
- スーパーが多く、買い物がしやすくて便利で、公共交通機関も多く住みやすい
- 京都府京都市山科区西野山南畑町に住む人の口コミ30代女性
- 特別何がいいというわけではないが、全体的に「絶対嫌だ!」という点が何もない。全体的に概ね満足している。
物件概要
- 建物構造
- RC(鉄筋コンクリート)
- 駐車場
- 空有 11,000円(税込)
- 総戸数
- 15戸
- 契約形態
- -
- 契約期間
- 2年間
- 更新料
- 新賃料の1ヶ月分
- その他費用
- 鍵交換費用:22,000円、安心入居サポート(初回):16,500円、駐車場手数料(初回):11,000円
- 保証会社
加入要
保証会社利用料:41、200円
- 住宅保険
- 要
- 管理
- -
- LIFULL HOME'S
物件番号 - 0118323-0231645
- 自社管理番号
- 31798-0301
- 取引態様
- 仲介
- 会社名
- 株式会社エリッツ 六地蔵店
営業スタッフコメント

株式会社エリッツ 六地蔵店
三崎日向
元気に精一杯務めさせていただきます。
業界経験4年
資格少額短期保険募集人
- 会社実績や特徴・サービス情報
- エリッツは京都No.1の店舗数を誇りますので、宇治市内に限らず、京都ならどこでもご紹介・ご案内させて頂けます。賃貸物件をお探しの方は、是非エリッツ六地蔵店をご利用下さいませ。
エリッツは京都No.1の店舗数を誇りますので、宇治市内に限らず、京都ならどこでもご紹介・ご案内させて頂けます。賃貸物件をお探しの方は、是非エリッツ六地蔵店をご利用下さいませ。
- 電話でお問合せ(通話無料)
お問合せ先 :株式会社エリッツ 六地蔵店
不動産会社情報
株式会社エリッツ 六地蔵店賃貸のエリッツ六地蔵店

京都府宇治市六地蔵奈良町74番地1 パデシオン六地蔵 ザ・ミッドモール1階
京都地下鉄東西線 六地蔵駅 徒歩1分
- 営業時間
- 10:00~19:00
- 定休日
- 水曜日(祝日を除く)、年末年始 お部屋探しのお問い合わせは無休
優良店認定
エリッツは京都No.1の店舗数を誇りますので、宇治市内に限らず、京都ならどこでもご紹介・ご案内させて頂けます!!賃貸物件をお探しの方は、是非エリッツ六地蔵店をご利用下さいませ!
- 店舗の特徴
- 賃貸管理業務
- 引越し業者紹介可
- 駐車場あり
- バリアフリー
- 系列店舗での対応可
- オンライン相談可
- 保証人不要な物件あり
- 法人契約取扱い
- 駅から歩いて3分以内
電話でお問合せお客様の電話番号は不動産会社には通知されません
- 不動産会社に
つながります
お客様の電話番号は不動産会社に通知されません
- ※光IP電話、及びIP電話からはご利用になれません
- ※お電話によるお問合せは、店舗営業時間内にお願いします。つながらない場合は、お問合せフォームよりお問合せください
- ※不動産会社がお電話に出られなかった場合、お問合せいただいた後に不動産会社より折り返しのお電話がある場合がございます(お客様が非通知設定した場合は対象外です)
- ※株式会社LIFULLは電話会社が提供するサービスを介してお客様の発信者番号を受領後、折り返し専用の電話番号を発番してお問合せの不動産会社に通知します(お客様の発信者番号がお問合せの不動産会社に通知されることはございません)
- ※携帯電話からお問合せいただいた方に対し、株式会社LIFULLは電話会社が提供するメッセ―ジサービスを介してお客様の発信者番号を受領後、ショートメッセージ(SMS)またはLINE通知メッセージによるお問合せ内容に関する通知をお届けする場合があります
- ※お客様が通話中に不動産会社にお伝えになったお客様の個人情報及び、電話会社が発番する折り返し専用の電話番号は、お問合せ先不動産会社が資料送付・電子メール送信・電話連絡などの目的で保管する可能性があります。お問合せ先不動産会社が保管する個人情報の取扱いについては、各不動産会社に直接お問合せください
- ※株式会社LIFULLでは本サービスを円滑に運用するために、お客様の発信者番号をサービスご利用の控えとして一定期間保管いたします
- ※上記および株式会社LIFULLの個人情報の取扱い方針に同意のうえ、お電話ください
【LIFULL HOME'S物件番号】0118323-0231645【自社管理番号】31798-0301
オンライン対応
オンライン内見・オンライン相談・IT重説に対応している物件です

「オンライン内見」「オンライン相談」「IT重説」とは?
物件の内見や不動産会社スタッフとの相談、契約前の重要事項説明をオンライン(ビデオ通話)で行うことができるサービスです。
オンライン内見
ビデオ通話で現地(物件)にいる不動産会社スタッフと映像・音声を使ってリアルタイムで会話しながら内見ができます。
オンライン相談
「物件について聞きたいことがある」など不動産会社スタッフへの相談もビデオ通話で行うことができます。
IT重説
契約前の重要事項説明(重説)をビデオ通話で行うことができます。
利用時の注意事項
- ビデオ通話については各不動産会社指定のものとなります。
- ビデオ通話利用時には通信が発生します。従量課金制通信サービスや通信量に上限があるネット回線・プランを利用する場合は、通信量にご注意ください。
- 通信速度やアプリの設定によってはビデオ通話の画質が低下することがあります。安定した画質で利用するためにも、Wi-Fi環境下での利用を推奨します。
- ご利用のビデオ通話アプリによっては、対象のOSやブラウザに制限がある場合があります。詳しくはお問合せ先不動産会社にご確認ください。
初期費用・月額費用をあわせて確認!この物件に住んだときの費用めやす
めやすを見るこの物件に住んだときの費用めやす
- 初期費用
- 月額費用
- 追加費用※ご確認ください
追加で費用が
かかる場合があります
必ずご確認ください
初期費用めやす約0円
追加で費用がかかります(※)敷金
0
- 礼金
100,000
賃料+共益費・管理費の1ヶ月分として換算
賃料の1ヶ月分+税として換算。不動産会社によって金額が異なるため正確な金額は不動産会社にお問合せください
※追加費用もチェック!
これらの項目以外にも費用がかかる場合があります。正確な金額は不動産会社にお問合せください。
- 初期費用
- 鍵交換費:22,000円
- 室内清掃費:不動産会社に要確認
- 火災保険費:不動産会社に要確認
- 月額費用
- 駐車場費:11,000円(税込)※契約任意
- その他
- 安心入居サポート(初回):16500円
- 駐車場手数料(初回):11000円
- 保証会社
- 41、200円
不動産会社より
【カウンターキッチン】鉄筋コンクリート3LDKマンション--パノラマ掲載--
【大塚小学校・音羽中学校】地下鉄東野駅まで徒歩7分です。各部屋6帖のお部屋、カウンターキッチンでリビングも見渡せます。ベランダ南向きで日当たり良好です。クローゼット沢山あるので荷物が多くても安心です。・光ファイバーインターネット接続可 ハウスクリーニング55000円(退去時)
- 保存する
- 共有する
- ※各種情報と現状に差異がある場合は、現状優先となります
- ※不動産会社が入力した情報を基に物件の位置を表示しています。詳しくは不動産会社までお問合せください
- ※不動産会社の方からの上記電話番号によるお問合せはお断りしております。こちら不動産会社詳細からお問合せください
- ※LIFULL HOME'Sは物件鮮度No.1を目指していきます。閲覧中の物件が「成約済である」「実際の物件情報と異なる点がある」などの場合、「掲載110番」からお問合せください
- ※QRコードは株式会社デンソーウェーブの登録商標です
したい暮らしのタグから探す
LIFULL HOME'S 地図・周辺情報
買い物
- ローソン 山科大塚店
- ハッピーテラダ山科大塚店
- ダックス山科大塚店
- ファミリーマート 山科大塚店
- マツヤスーパー 大塚店
グルメ
- 吉野家 1号線山科店
- びっくりドンキー 山科店
- 餃子の王将 京都東インター店
- マクドナルド 1号線山科店
- 丸亀製麺京都東インター店
育児・教育
- こばとこども園
- 京都市立音羽川小学校
- 京都市立音羽中学校
- こばと夜間保育園
- 京都市立音羽小学校
医療
- 加藤山科病院
- 医療法人社団洛和会洛和会音羽リハビリテーション病院
- 一般社団法人愛生会山科病院
- 医療法人社団洛和会洛和会音羽病院
- 恵仁会なぎ辻病院
公共施設・郵便局
- 京都山科音羽郵便局
- 京都市山科図書館
- 京都市山科区役所
- 京都山科椥辻郵便局
- 山科警察署
公園
利用可能な駅
- 徒歩10分以内
京都地下鉄東西線
- 東野駅徒歩7分
- すべての駅
京都地下鉄東西線
- 椥辻駅徒歩19分
- 小野駅徒歩35分
JR東海道・山陽本線
- 山科駅徒歩22分
京阪京津線
- 四宮駅徒歩22分
- 京阪山科駅徒歩22分
- 追分駅徒歩33分
- 御陵駅3.1km
- 周辺情報は2023年07月21日時点のものになります。
- 周辺情報は、参考情報としてのみご利用ください(周辺情報は、株式会社LIFULLが地図情報の提供事業者から提供を受けた情報とLIFULL HOME'Sの物件情報に基づき、独自の方法で抽出し提供しているものです。周辺情報は、移転や閉鎖等により情報が最新ではない、または正しくない場合がありますが、地図情報の提供事業者から提供された情報をそのまま周辺情報として表示しているため、正確かつ最新の情報へ修正することができないことがあります。)
- 周辺情報は、株式会社LIFULLが掲載するものであり、不動産物件情報を掲載している不動産会社が掲載するものではありません
- 交通情報の一部については、株式会社LIFULLが掲載するものであり、不動産物件情報を掲載している不動産会社が掲載するものではない場合があります。交通情報に関する質問などは株式会社LIFULLにお問合せください








