LIFULL HOME'Sは物件鮮度No.1!※評価について
KEIAI RESIDENCE 西所沢II(1階/1LDK/28.87㎡)
KEIAI RESIDENCE 西所沢II(1階/1LDK/28.87㎡)
7.2万円/管理費等3,500円
1日前 更新
画像一覧
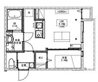
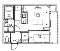
1/16間取り
間取図
2/16外観
外観・土地
3/16リビング/ダイニング
リビング
4/16室内
その他部屋・スペース
5/16キッチン
キッチン
6/16浴室
バス
7/16洗面
洗面所
8/16その他
配置図
9/16周辺
スーパーあまいけウィズ久米店 639m
10/16周辺
セブンイレブン西所沢山口店 596m
11/16周辺
ファミリーマート西所沢駅前店 776m
12/16周辺
ファミリーマートトモニー西所沢駅店 838m
13/16周辺
セブンイレブン所沢元町店 1142m
14/16周辺
ドラッグセイムス星の宮薬局 1109m
15/16周辺
医療法人慈桜会瀬戸病院 1106m
16/16周辺
所沢久米郵便局 373m
間取り
外観
リビング/ダイニング
室内
キッチン
浴室
洗面
その他
周辺
周辺
周辺
周辺
周辺
周辺
周辺
周辺
お問合せ先 :株式会社セントラルエージェンシー セントラルハウス所沢駅前店
引越し料金割引
引越業者代金の基本料金を10%割引いたします。
- 利用条件
- 株式会社セントラルエージェンシー セントラルハウス所沢駅前店で利用可
- 他特典との併用可
利用方法
来店時に本特典の画面をスマートフォンやタブレットでスタッフに提示、または画面印刷した用紙を提示ください。
有効期限 なし
インターネットに掲載しているお部屋をまとめてお調べできます!
基本情報
不動産用語- 賃料
- 7.2万円
- 管理費等
- 3,500円
初期費用などお気軽にお問合せください
- 敷金/礼金
- 無/1ヶ月
- 保証金/敷引・償却金
- -/-
- 交通
西武池袋線 西所沢駅 徒歩9分
西武狭山線 西所沢駅 徒歩9分
西武鉄道新宿線 所沢 徒歩24分
- 所在地
埼玉県所沢市大字久米
地図を見る- 築年月
- 2026年1月(新築)
- 主要採光面
- 北東
- 専有面積
- 28.87㎡
- バルコニー面積
- -
- 所在階/階数
- 1階/2階建
入居可能日などお気軽にお問合せください
- 現況
- 未完成
- 入居可能時期
- 2026年01月 下旬

人気物件はすぐに埋まってしまいます。
気になったらお早めにお問合せください。
- 情報公開日
2025/12/14
1日前 公開
- 情報更新日
2025/12/14
1日前 更新
- 次回更新
予定日 - 2025/12/21
物件のこだわり/設備・条件
新築(該当)
2階以上の物件(非該当)
南向き(非該当)
駐車場(非該当)
オートロック(該当)
エアコン(該当)
バス・トイレ別(該当)
追焚機能(非該当)
フローリング(該当)
ペット相談(非該当)
位置
角部屋入居条件
楽器不可、ペット不可、保証人不要キッチン/バス・トイレ
設備・サービス
オートロック、TVモニタ付インターホン、防犯(雨戸)シャッター、ディンプルキー、エアコン、ウォークインクローゼット、全居室収納、シューズボックス、CATV、インターネット対応、インターネット使用料無料、公営水道、都市ガス、下水、フローリング、バルコニー、室内洗濯機置場、24時間換気システム、室内洗濯物干し、全室フローリング、宅配ボックスその他
初期費用カード決済可、住まい探し特典あり備考
西所沢駅徒歩9分 通勤・通学に便利な立地です!新築アパートで設備や水回りが新しいです!経済的な都市ガスです!宅配ボックスがあり不在時にも荷物が受け取れ便利です!
物件周辺の生活情報
買い物
- コンビニ(596m)
- スーパー(639m)
- ドラッグストア(1,109m)
その他施設
- ファミリーマート所沢星の宮店(925m)
交通
- 西武池袋線 西所沢駅 徒歩9分
- 普通(停車)
- 準急(停車)
- 通勤準急(停車)
- 快速(停車)
- 通勤急行(停車)
- 急行(停車)
- 快速急行(通過)
- 西武狭山線 西所沢駅 徒歩9分
- 普通(停車)
※急行等の停車駅情報について
急行等の停車駅に関するデータは、随時更新をしておりますが、最新の内容であることを保証するものではありません。
最新かつ正確な情報につきましては、各鉄道会社のウェブサイトにてご確認ください
物件周辺の口コミ
- 埼玉県所沢市大字久米に住む人の口コミ60代女性
住環境が整っていて買い物にも便利で煩わしい近所付き合いなどもほとんどなく気楽
口コミを見る
この物件周辺に住む人の口コミ
口コミは、LIFULL HOME'Sが実際にこの物件の周辺に住む18歳~69歳の男女を対象に、WEBアンケート調査を実施しています。内容には回答者の主観的な表現が含まれる場合があるほか、事実と異なる場合もございます。ご了承ください。
- 埼玉県所沢市大字久米に住む人の口コミ60代女性
- 住環境が整っていて買い物にも便利で煩わしい近所付き合いなどもほとんどなく気楽
- 埼玉県所沢市大字久米に住む人の口コミ50代女性
- 子育てがしやすく、自然に恵まれていて、買い物もしやすく、自然にも恵まれている
- 埼玉県所沢市大字久米に住む人の口コミ40代女性
- 駅まで徒歩20分まででいけるのと、近くに食品スーパーがあるのである程度便利。そのうえ、ちょっと裏山に入ると、観光地のような森が続き、トレッキングのようなことを毎日できるので恵まれてると思う。
- 埼玉県所沢市大字久米に住む人の口コミ50代女性
- 電車の本数が多いので車がなくても困らい。一本で新宿、池袋など都心に行ける食料品や雑貨は地元で事足りる、ただ衣料品は私の年齢に合うお店がない。
- 埼玉県所沢市大字久米に住む人の口コミ40代女性
- 生まれ育った慣れ親しんだ土地だから。駅前開発がすすんでこれからがもっと楽しみ。
- 埼玉県所沢市大字久米に住む人の口コミ30代女性
- 歩いて行ける範囲内に食料品、衣料品、日用雑貨品を買えるお店がある。自然もあるし、ウォーキングしていても楽しい。道が狭いところが多いのが難点。
- 埼玉県所沢市大字久米に住む人の口コミ50代女性
- 都心へのアクセスが良く、買い物も地元で完結できる。成熟した町。
- 埼玉県所沢市大字久米に住む人の口コミ40代女性
- 徒歩圏内にスーパーはあるし、30分以内に衣料品や日用雑貨のお店もある。住んでいるところは閑静な住宅街だし落ち着く。最寄駅が坂道を登らないとないのが残念なところ。
- 埼玉県所沢市大字久米に住む人の口コミ30代女性
- 駅が近く、商業施設もあるので、たいていのものは買い揃えられる。
- 埼玉県所沢市大字久米に住む人の口コミ40代女性
- 自然が豊かでちょっとしたハイキングみたいなことも気軽にできる
物件概要
- 建物構造
- 木造
- 駐車場
- 無
- 総戸数
- 8戸
- 契約形態
- -
- 契約期間
- 2年間
- 更新料
- 新賃料の1ヶ月分
- その他費用
- 鍵交換費用:27,500円、室内清掃費用:55,000円、契約事務手数料:16,500円、KEIAI CLUB会費(保険・24Hサポート・ネット料):2,750円
- 保証会社
加入要
保証会社:管理会社指定
保証会社利用料:初回保証料:家賃総額50% 月額保証料:900円/月
- 住宅保険
- 要
- 管理
- -
- LIFULL HOME'S
物件番号 - 0118251-0154764
- 自社管理番号
- 69157704-1
- 取引態様
- 一般媒介
- 会社名
- 株式会社セントラルエージェンシー セントラルハウス所沢駅前店
営業スタッフコメント

株式会社セントラルエージェンシー セントラルハウス所沢駅前店
近田豊張
お客様の気持ちを一番に考え、お部屋探しのお手伝いを致します!
業界経験12年
- 会社実績や特徴・サービス情報
- ご契約金のお支払いをクレジットカード決済可能です。引越業者さんやインターネットの取次、電力会社のご紹介も可能です。気になる物件がありましたらまとめてご紹介・ご案内いたします。
ご契約金のお支払いをクレジットカード決済可能です。引越業者さんやインターネットの取次、電力会社のご紹介も可能です。気になる物件がありましたらまとめてご紹介・ご案内いたします。
- 電話でお問合せ(通話無料)
お問合せ先 :株式会社セントラルエージェンシー セントラルハウス所沢駅前店
不動産会社情報
株式会社セントラルエージェンシー セントラルハウス所沢駅前店セントラルハウス所沢駅前店

埼玉県所沢市くすのき台3丁目18−5 リングスビル1F
西武池袋線 所沢駅 徒歩3分
- 営業時間
- 10:00~19:00
- 定休日
- 年中無休(年末年始除く)
優良店認定
当店は、家主様と直接お取引きする物件が多いため、お客様のご意見、ご要望をダイレクトにぶつける事ができます。貸主様、借主様が共に喜んで頂けるまで諦めません。 是非、私たちにご案内させて下さい!
- 店舗の特徴
- 賃貸管理業務
- リフォーム対応
- 引越し業者紹介可
- 年中無休
- オンライン相談可
- 保証人不要な物件あり
- 法人契約取扱い
- 女性スタッフ対応可
- 駅から歩いて3分以内
- 外国語を話せるスタッフ在籍
電話でお問合せお客様の電話番号は不動産会社には通知されません
- 不動産会社に
つながります
お客様の電話番号は不動産会社に通知されません
- ※光IP電話、及びIP電話からはご利用になれません
- ※お電話によるお問合せは、店舗営業時間内にお願いします。つながらない場合は、お問合せフォームよりお問合せください
- ※不動産会社がお電話に出られなかった場合、お問合せいただいた後に不動産会社より折り返しのお電話がある場合がございます(お客様が非通知設定した場合は対象外です)
- ※株式会社LIFULLは電話会社が提供するサービスを介してお客様の発信者番号を受領後、折り返し専用の電話番号を発番してお問合せの不動産会社に通知します(お客様の発信者番号がお問合せの不動産会社に通知されることはございません)
- ※携帯電話からお問合せいただいた方に対し、株式会社LIFULLは電話会社が提供するメッセ―ジサービスを介してお客様の発信者番号を受領後、ショートメッセージ(SMS)またはLINE通知メッセージによるお問合せ内容に関する通知をお届けする場合があります
- ※お客様が通話中に不動産会社にお伝えになったお客様の個人情報及び、電話会社が発番する折り返し専用の電話番号は、お問合せ先不動産会社が資料送付・電子メール送信・電話連絡などの目的で保管する可能性があります。お問合せ先不動産会社が保管する個人情報の取扱いについては、各不動産会社に直接お問合せください
- ※株式会社LIFULLでは本サービスを円滑に運用するために、お客様の発信者番号をサービスご利用の控えとして一定期間保管いたします
- ※上記および株式会社LIFULLの個人情報の取扱い方針に同意のうえ、お電話ください
【LIFULL HOME'S物件番号】0118251-0154764【自社管理番号】69157704-1
オンライン対応
オンライン内見・オンライン相談・IT重説に対応している物件です

「オンライン内見」「オンライン相談」「IT重説」とは?
物件の内見や不動産会社スタッフとの相談、契約前の重要事項説明をオンライン(ビデオ通話)で行うことができるサービスです。
オンライン内見
ビデオ通話で現地(物件)にいる不動産会社スタッフと映像・音声を使ってリアルタイムで会話しながら内見ができます。
オンライン相談
「物件について聞きたいことがある」など不動産会社スタッフへの相談もビデオ通話で行うことができます。
IT重説
契約前の重要事項説明(重説)をビデオ通話で行うことができます。
利用時の注意事項
- ビデオ通話については各不動産会社指定のものとなります。
- ビデオ通話利用時には通信が発生します。従量課金制通信サービスや通信量に上限があるネット回線・プランを利用する場合は、通信量にご注意ください。
- 通信速度やアプリの設定によってはビデオ通話の画質が低下することがあります。安定した画質で利用するためにも、Wi-Fi環境下での利用を推奨します。
- ご利用のビデオ通話アプリによっては、対象のOSやブラウザに制限がある場合があります。詳しくはお問合せ先不動産会社にご確認ください。
初期費用・月額費用をあわせて確認!この物件に住んだときの費用めやす
めやすを見るこの物件に住んだときの費用めやす
- 初期費用
- 月額費用
- 追加費用※ご確認ください
追加で費用が
かかる場合があります
必ずご確認ください
初期費用めやす約0円
追加で費用がかかります(※)敷金
0
- 礼金
72,000
- 保証金
0
賃料+共益費・管理費の1ヶ月分として換算
賃料の1ヶ月分+税として換算。不動産会社によって金額が異なるため正確な金額は不動産会社にお問合せください
※追加費用もチェック!
これらの項目以外にも費用がかかる場合があります。正確な金額は不動産会社にお問合せください。
- 初期費用
- 鍵交換費:27,500円
- 室内清掃費:55,000円
- 火災保険費:不動産会社に要確認
- その他
- 契約事務手数料:16500円
- KEIAI CLUB会費(保険・24Hサポート・ネット料):2750円
- 保証会社
- 初回保証料:家賃総額50% 月額保証料:900円/月
不動産会社より
インターネットに掲載しているお部屋をまとめてお調べできます!
西所沢駅徒歩9分 通勤・通学に便利な立地です!新築アパートで設備や水回りが新しいです!経済的な都市ガスです!宅配ボックスがあり不在時にも荷物が受け取れ便利です!
- 保存する
- 共有する
- ※各種情報と現状に差異がある場合は、現状優先となります
- ※不動産会社が入力した情報を基に物件の位置を表示しています。詳しくは不動産会社までお問合せください
- ※不動産会社の方からの上記電話番号によるお問合せはお断りしております。こちら不動産会社詳細からお問合せください
- ※LIFULL HOME'Sは物件鮮度No.1を目指していきます。閲覧中の物件が「成約済である」「実際の物件情報と異なる点がある」などの場合、「掲載110番」からお問合せください
- ※QRコードは株式会社デンソーウェーブの登録商標です
LIFULL HOME'S 地図・周辺情報
買い物
- ファミリーマート 所沢久米東店
- スーパーあまいけウィズ久米店
- ドラッグセイムス星の宮店
- セブンイレブン 西所沢山口店
- 西友 西所沢店
グルメ
- 小僧寿し十人坂店
- ステーキのどん 星の宮店
- 山田うどん 山口店
- 中華食堂日高屋西所沢駅前店
- サイゼリヤ ヤオコー所沢有楽町店
育児・教育
- 吾妻保育園
- 所沢市立所沢小学校
- 所沢市立南陵中学校
- 所沢文化幼稚園
- 所沢市立南小学校
医療
- 医療法人社団一元会佐々木記念病院
- 医療法人慈桜会瀬戸病院
- 社会福祉法人白十字会東京白十字病院
- 公益財団法人結核予防会新山手病院
- 医療法人社団和風会所沢中央病院
公共施設・郵便局
- 所沢久米郵便局
- 所沢市立所沢図書館吾妻分館
- 所沢市役所所沢出張所
- 西所沢一郵便局
- 所沢市立所沢図書館所沢分館
公園
- 鳩峯公園
- 八国公園
- 大谷公園
- 熊野公園
- 所沢航空記念公園
利用可能な駅
- 徒歩10分以内
西武池袋線
- 西所沢駅徒歩9分
西武狭山線
- 西所沢駅徒歩9分
- その他交通
- 西武鉄道新宿線 所沢 徒歩24分
- 周辺情報は2023年07月21日時点のものになります。
- 周辺情報は、参考情報としてのみご利用ください(周辺情報は、株式会社LIFULLが地図情報の提供事業者から提供を受けた情報とLIFULL HOME'Sの物件情報に基づき、独自の方法で抽出し提供しているものです。周辺情報は、移転や閉鎖等により情報が最新ではない、または正しくない場合がありますが、地図情報の提供事業者から提供された情報をそのまま周辺情報として表示しているため、正確かつ最新の情報へ修正することができないことがあります。)
- 周辺情報は、株式会社LIFULLが掲載するものであり、不動産物件情報を掲載している不動産会社が掲載するものではありません
- 交通情報の一部については、株式会社LIFULLが掲載するものであり、不動産物件情報を掲載している不動産会社が掲載するものではない場合があります。交通情報に関する質問などは株式会社LIFULLにお問合せください














