LIFULL HOME'Sは物件鮮度No.1!※評価について
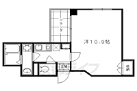
カーサ・ヴェルデ西洞院(6階/1K/30.38m²)
カーサ・ヴェルデ西洞院(6階/1K/30.38m²)
7.2万円/管理費等7,000円
14時間前 更新
お問合せ先 :株式会社エリッツ 西大路駅前店
1〜4月は引越しシーズンのピークです。お問合せはお早めに!
住まい探し特典内容
電気・ガス・インターネットの手続き代行のご案内します。
- 利用条件
- 株式会社エリッツ 西大路駅前店で利用可
- 他特典との併用可
利用方法
来店時に本特典の画面をスマートフォンやタブレットでスタッフに提示、または画面印刷した用紙を提示ください。
有効期限 なし
お部屋は10帖でとても広いです--パノラマ掲載--
基本情報
不動産用語- 賃料
- 7.2万円
- 管理費等
- 7,000円
初期費用などお気軽にお問合せください
- 敷金/礼金
- 無/無
- 保証金/敷引・償却金
- -/-
- 交通
京都市営烏丸線 四条駅 徒歩5分
阪急京都本線 烏丸駅 徒歩5分
京都地下鉄東西線 烏丸御池駅 徒歩15分
- 所在地
京都府京都市下京区西洞院通四条下る
地図を見る- 築年月
- 2004年1月(築23年)
- 間取り
- 1K ( 洋室 10.6帖 キッチン 2帖 )
- 主要採光面
- 西
- 専有面積
- 30.38㎡
- バルコニー面積
- -
- 所在階/階数
- 6階/8階建
入居可能日などお気軽にお問合せください
- 現況
- 居住中
- 入居可能時期
- 2026年05月 上旬

人気物件はすぐに埋まってしまいます。
気になったらお早めにお問合せください。
- 情報公開日
2026/03/19
2日前 公開
- 情報更新日
2026/03/20
14時間前 更新
- 次回更新
予定日 - 2026/03/26
物件のこだわり/設備・条件
新築(非該当)
2階以上の物件(該当)
南向き(非該当)
駐車場(非該当)
オートロック(該当)
エアコン(該当)
バス・トイレ別(該当)
追焚機能(非該当)
フローリング(非該当)
ペット相談(非該当)
入居条件
二人入居不可、単身者限定- 上記以外や相談可の
詳細はお問合せください キッチン/バス・トイレ
IHコンロ、コンロ一口、システムキッチン、給湯、専用バス、専用トイレ、バス・トイレ別、シャワー、シャワー付洗面化粧台、洗面所独立設備・サービス
オートロック、TVモニタ付インターホン、エアコン、クローゼット、シューズボックス、CATV、CS対応、BS対応、光ファイバー、公営水道、下水、オール電化、バルコニー、室内洗濯機置場、エレベーター、宅配ボックス、バイク置き場あり、駐輪場ありその他
初期費用カード決済可、住まい探し特典あり備考
コンビニとスーパーまで徒歩1分の便利な立地です。お部屋は10帖とてもの広く、家具の配置もしやすいです。阪急も地下鉄も両方利用出来ますので通勤・通学に便利な立地です。設備も充実していて快適生活ができます・光ファイバーインターネット接続可 ハウスクリーニング55000円(退去時)・家賃保証料(月額):864円
物件周辺の生活情報
地図を見る
物件周辺の学校、スーパーなどを地図で確認できます。
買い物
- コンビニ(350m)
- スーパー(60m)
交通
- 京都市営烏丸線 四条駅 徒歩5分
- 普通(停車)
- 急行(停車)
- 阪急京都本線 烏丸駅 徒歩5分
- 普通(停車)
- 準急(停車)
- 堺筋準急(停車)
- 通勤特急(停車)
- 特急(停車)
- 急行(停車)
- 準特急(停車)
※急行等の停車駅情報について
急行等の停車駅に関するデータは、随時更新をしておりますが、最新の内容であることを保証するものではありません。
最新かつ正確な情報につきましては、各鉄道会社のウェブサイトにてご確認ください
物件周辺の口コミ
- 京都府京都市下京区西洞院通四条下る西入に住む人の口コミ20代女性
交通の弁の良さと、買い物の便利な良さです。子どもが産まれたらもっと自然のあるところに住みたいと思うと思います。
口コミを見る
この物件周辺に住む人の口コミ
口コミは、LIFULL HOME'Sが実際にこの物件の周辺に住む18歳~69歳の男女を対象に、WEBアンケート調査を実施しています。内容には回答者の主観的な表現が含まれる場合があるほか、事実と異なる場合もございます。ご了承ください。
- 京都府京都市下京区西洞院通四条下る西入に住む人の口コミ20代女性
- 交通の弁の良さと、買い物の便利な良さです。子どもが産まれたらもっと自然のあるところに住みたいと思うと思います。
- 京都府京都市中京区姉小路通烏丸西入に住む人の口コミ20代男性
- 身近な環境でなんでも手に入りますが、その代わり家賃が比較的に高いです。
- 京都府京都市下京区綾小路通新町東入に住む人の口コミ20代女性
- 一人暮らしをするには、充分に買い物ができる場所があり、治安がいい。しかし、観光客が多い、路線が地下鉄のため階段が多い、人気が少ないところがないことは少し不満に思う、
- 京都府京都市下京区西洞院通仏光寺下るに住む人の口コミ20代男性
- 夜出歩きやすい。足りないと思ったものを思った時に買いに行けるのはとても便利である。
- 京都府京都市中京区蛸薬師通東洞院東入に住む人の口コミ30代女性
- 交通の便が多いのと病院、歯医者が多いのであったとこを選べるとこ
- 京都府京都市中京区堀川通三条東入に住む人の口コミ30代女性
- 治安が良く歴史的な建造物も近くにあり、四季を感じる公園もある。買い物は徒歩圏内である程度済ませることができるし、20分も歩けば繁華街に行ける。
- 京都府京都市中京区御池通東洞院西入に住む人の口コミ20代男性
- ・街の要衝。中心部でほとんど不自由なことはないが、近くを走っている市営地下鉄の終電が早い。
- 京都府京都市中京区西洞院通三条下るに住む人の口コミ20代女性
- 交通の便がよく、友達と近い距離に住んでいる。買い物にも困らない。
- 京都府京都市中京区壬生坊城町に住む人の口コミ30代男性
- 交通の便が非常に良く市内ならば,ほぼ乗換無しで移動できる。又,利用できる鉄道路線が多いため近隣の町に行くのも非常に便利
- 京都府京都市下京区松原通油小路東入に住む人の口コミ30代女性
- 交通の便がよく、都会でありながら騒がしくなり、伝統行事などにも接しやすい。
物件概要
- 建物構造
- 鉄骨造
- 駐車場
- 近隣 30,800円(税込) 物件からの距離344m
- 総戸数
- 57戸
- 契約形態
- -
- 契約期間
- 2年間
- 更新料
- -
- その他費用
- 鍵交換費用:25,300円、管理会社書類代(初回):8,800円、水道代(月額):2,200円、入居サポート(月額):2,750円
- 保証会社
加入要
保証会社利用料:67、160円
- 住宅保険
- 不要
- 管理
- -
- LIFULL HOME'S
物件番号 - 0117113-0344926
- 自社管理番号
- 26382-0608
- 取引態様
- 仲介
- 会社名
- 株式会社エリッツ 西大路駅前店
営業スタッフコメント

株式会社エリッツ 西大路駅前店
瀧本佳那子
精一杯サポートします!
業界経験3年
- 会社実績や特徴・サービス情報
- 当店は京都市南区のJR西大路駅改札を出てすぐ目の前に位置しています。 西大路駅は、京都駅まで1駅3分、大阪駅にも38分で到着、さらに西大路駅周辺を西大路通、九条通(国道171号線)、七条通が走り、鉄道で、車で、どこへ行くにも便利なアクセス環境です. 西大路駅のある南区は京都を代表する企業の事業所が多く集まる一方、イオン洛南店をはじめ、スーパー、金融機関、病院、公園などが揃う生活便利な住宅地という一面も持っています。 南区(吉祥院、唐橋、上鳥羽)、下京区(梅小路、七条)、右京区(西京極)でお探しの方、JR沿線、近鉄沿線、阪急沿線でお探しの方、ぜひ当店にお気軽にご相談下さい。 「すべてはお客様の笑顔の為に」をモットーにスタッフ全員で、みなさまにご満足いただけるお部屋探しが出来るよう精一杯お手伝いいたします。安心してお気軽にお越しください。
当店は京都市南区のJR西大路駅改札を出てすぐ目の前に位置しています。 西大路駅は、京都駅まで1駅3分、大阪駅にも38分で到着、さらに西大路駅周辺を西大路通、九条通(国道171号線)、七条通が走り、鉄道で、車で、どこへ行くにも便利なアクセス環境です. 西大路駅のある南区は京都を代表する企業の事業所が多く集まる一方、イオン洛南店をはじめ、スーパー、金融機関、病院、公園などが揃う生活便利な住宅地という一面も持っています。 南区(吉祥院、唐橋、上鳥羽)、下京区(梅小路、七条)、右京区(西京極)でお探しの方、JR沿線、近鉄沿線、阪急沿線でお探しの方、ぜひ当店にお気軽にご相談下さい。 「すべてはお客様の笑顔の為に」をモットーにスタッフ全員で、みなさまにご満足いただけるお部屋探しが出来るよう精一杯お手伝いいたします。安心してお気軽にお越しください。
- 電話でお問合せ(通話無料)
お問合せ先 :株式会社エリッツ 西大路駅前店
不動産会社情報
株式会社エリッツ 西大路駅前店賃貸のエリッツ西大路駅前店

京都府京都市南区唐橋西平垣町19−2
JR東海道・山陽本線 西大路駅 徒歩1分
- 営業時間
- 10:00~19:00
- 定休日
- 年中無休(年末年始を除く)
優良店認定
JR西大路駅周辺・南区吉祥院周辺・下京区西七条周辺でお探しのお客様、ぜひぜひエリッツ西大路駅前店へ!!取り扱い物件充実の当店にて、ピッタリなお部屋を見つけて下さい!!
- 店舗の特徴
- 引越し業者紹介可
- 駐車場あり
- 系列店舗での対応可
- 社宅・寮物件取扱い
- オンライン相談可
- 保証人不要な物件あり
- 法人契約取扱い
- 女性スタッフ対応可
- 駅から歩いて3分以内
電話でお問合せお客様の電話番号は不動産会社には通知されません
- 不動産会社に
つながります
お客様の電話番号は不動産会社に通知されません
- ※光IP電話、及びIP電話からはご利用になれません
- ※お電話によるお問合せは、店舗営業時間内にお願いします。つながらない場合は、お問合せフォームよりお問合せください
- ※不動産会社がお電話に出られなかった場合、お問合せいただいた後に不動産会社より折り返しのお電話がある場合がございます(お客様が非通知設定した場合は対象外です)
- ※株式会社LIFULLは電話会社が提供するサービスを介してお客様の発信者番号を受領後、折り返し専用の電話番号を発番してお問合せの不動産会社に通知します(お客様の発信者番号がお問合せの不動産会社に通知されることはございません)
- ※携帯電話からお問合せいただいた方に対し、株式会社LIFULLは電話会社が提供するメッセ―ジサービスを介してお客様の発信者番号を受領後、ショートメッセージ(SMS)またはLINE通知メッセージによるお問合せ内容に関する通知をお届けする場合があります
- ※お客様が通話中に不動産会社にお伝えになったお客様の個人情報及び、電話会社が発番する折り返し専用の電話番号は、お問合せ先不動産会社が資料送付・電子メール送信・電話連絡などの目的で保管する可能性があります。お問合せ先不動産会社が保管する個人情報の取扱いについては、各不動産会社に直接お問合せください
- ※株式会社LIFULLでは本サービスを円滑に運用するために、お客様の発信者番号をサービスご利用の控えとして一定期間保管いたします
- ※上記および株式会社LIFULLの個人情報の取扱い方針に同意のうえ、お電話ください
【LIFULL HOME'S物件番号】0117113-0344926【自社管理番号】26382-0608
オンライン対応
オンライン相談・IT重説に対応している物件です

「オンライン内見」「オンライン相談」「IT重説」とは?
物件の内見や不動産会社スタッフとの相談、契約前の重要事項説明をオンライン(ビデオ通話)で行うことができるサービスです。
オンライン内見
ビデオ通話で現地(物件)にいる不動産会社スタッフと映像・音声を使ってリアルタイムで会話しながら内見ができます。
オンライン相談
「物件について聞きたいことがある」など不動産会社スタッフへの相談もビデオ通話で行うことができます。
IT重説
契約前の重要事項説明(重説)をビデオ通話で行うことができます。
利用時の注意事項
- ビデオ通話については各不動産会社指定のものとなります。
- ビデオ通話利用時には通信が発生します。従量課金制通信サービスや通信量に上限があるネット回線・プランを利用する場合は、通信量にご注意ください。
- 通信速度やアプリの設定によってはビデオ通話の画質が低下することがあります。安定した画質で利用するためにも、Wi-Fi環境下での利用を推奨します。
- ご利用のビデオ通話アプリによっては、対象のOSやブラウザに制限がある場合があります。詳しくはお問合せ先不動産会社にご確認ください。
初期費用・月額費用をあわせて確認!この物件に住んだときの費用めやす
めやすを見るこの物件に住んだときの費用めやす
- 初期費用
- 月額費用
- 追加費用※ご確認ください
追加で費用が
かかる場合があります
必ずご確認ください
初期費用めやす約0円
追加で費用がかかります(※)敷金
0
- 礼金
0
賃料+共益費・管理費の1ヶ月分として換算
賃料の1ヶ月分+税として換算。不動産会社によって金額が異なるため正確な金額は不動産会社にお問合せください
※追加費用もチェック!
これらの項目以外にも費用がかかる場合があります。正確な金額は不動産会社にお問合せください。
- 初期費用
- 鍵交換費:25,300円
- 室内清掃費:不動産会社に要確認
- 火災保険費:不動産会社に要確認
- 月額費用
- 駐車場費:30,800円(税込)※近隣
- その他
- 管理会社書類代(初回):8800円
- 水道代(月額):2200円
- 入居サポート(月額):2750円
- 保証会社
- 67、160円
不動産会社より
お部屋は10帖でとても広いです--パノラマ掲載--
コンビニとスーパーまで徒歩1分の便利な立地です。お部屋は10帖とてもの広く、家具の配置もしやすいです。阪急も地下鉄も両方利用出来ますので通勤・通学に便利な立地です。設備も充実していて快適生活ができます・光ファイバーインターネット接続可 ハウスクリーニング55000円(退去時)・家賃保証料(月額):864円
- 保存する
- 共有する
- ※各種情報と現状に差異がある場合は、現状優先となります
- ※不動産会社が入力した情報を基に物件の位置を表示しています。詳しくは不動産会社までお問合せください
- ※不動産会社の方からの上記電話番号によるお問合せはお断りしております。こちら不動産会社詳細からお問合せください
- ※LIFULL HOME'Sは物件鮮度No.1を目指していきます。閲覧中の物件が「成約済である」「実際の物件情報と異なる点がある」などの場合、「掲載110番」からお問合せください
- ※QRコードは株式会社デンソーウェーブの登録商標です
LIFULL HOME'S 地図・周辺情報
買い物
- ファミリーマート 四条西洞院店
- フレスコ 四条店
- ドラッグひかり四条堀川店
- セブンイレブン 京都四条新町店
- ライフ 四条烏丸店
グルメ
- タリーズコーヒー京都四条烏丸店
- まいどおおきに食堂 四条西洞院食堂
- やよい軒 四条烏丸店
- さち福やSUINA室町店
- すき家 四条堀川店
育児・教育
- 池坊保育園
- 京都市立下京雅小学校
- 京都市立下京中学校成徳学舎
- 京都市立楊梅幼稚園
- 京都市立洛央小学校
医療
- 医療法人知音会京都新町病院
- 山元病院
- 医療法人毛利病院
- 医療法人財団足立病院
- 医療法人令寿会しまばら病院
公共施設・郵便局
- 京都西洞院綾小路郵便局
- 京都市下京図書館
- 京都府下京警察署
- 京都堀川仏光寺郵便局
- 京都市こどもみらい館子育て図書館
公園
- 光徳公園
- 梅屋広場公園
- 梅小路公園
- 梅小路公園
- 京都御苑
利用可能な駅
- 徒歩10分以内
京都市営烏丸線
- 四条駅徒歩5分
阪急京都本線
- 烏丸駅徒歩5分
- その他交通
- 京都地下鉄東西線 烏丸御池駅 徒歩15分
- 周辺情報は2023年07月21日時点のものになります。
- 周辺情報は、参考情報としてのみご利用ください(周辺情報は、株式会社LIFULLが地図情報の提供事業者から提供を受けた情報とLIFULL HOME'Sの物件情報に基づき、独自の方法で抽出し提供しているものです。周辺情報は、移転や閉鎖等により情報が最新ではない、または正しくない場合がありますが、地図情報の提供事業者から提供された情報をそのまま周辺情報として表示しているため、正確かつ最新の情報へ修正することができないことがあります。)
- 周辺情報は、株式会社LIFULLが掲載するものであり、不動産物件情報を掲載している不動産会社が掲載するものではありません
- 交通情報の一部については、株式会社LIFULLが掲載するものであり、不動産物件情報を掲載している不動産会社が掲載するものではない場合があります。交通情報に関する質問などは株式会社LIFULLにお問合せください

















