LIFULL HOME'Sは物件鮮度No.1!※評価について
阪急京都本線 桂駅 徒歩17分(2階/ワンルーム/22.3m²)
阪急京都本線 桂駅 徒歩17分(2階/ワンルーム/22.3m²)
5.5万円/管理費等-
6時間前 更新
画像一覧
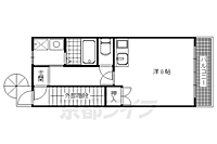
1/30間取り
間取
2/30外観
3/30外観
4/30リビング/ダイニング
5/30リビング/ダイニング
6/30リビング/ダイニング
7/30室内
8/30室内
9/30室内
10/30室内
11/30室内
12/30キッチン
13/30キッチン
14/30キッチン
15/30浴室
16/30トイレ
17/30洗面
18/30収納
19/30収納
20/30収納
21/30収納
22/30収納
23/30設備
24/30玄関
25/30バルコニー
26/30バルコニー
27/30バルコニー
28/30その他
29/30その他
30/30周辺
ファミリーマート樫原江ノ本町店まで150m
間取り
外観
外観
リビング/ダイニング
リビング/ダイニング
リビング/ダイニング
室内
室内
室内
室内
室内
キッチン
キッチン
キッチン
浴室
トイレ
洗面
収納
収納
収納
収納
収納
設備
玄関
バルコニー
バルコニー
バルコニー
その他
その他
周辺
仲介手数料割引
仲介手数料は賃料の半月分と消費税となります。(個人契約に限る)
- 利用条件
- ウインズリンク株式会社 アパマンショップ西院店 で利用可
- 他特典との併用可
- ※積水ハウス、大東建託の管理物件は家賃1か月分が仲介手数料としてかかります。
利用方法
来店時に本特典の画面をスマートフォンやタブレットでスタッフに提示、または画面印刷した用紙を提示ください。
有効期限 2026年05月05日まで
改装部屋 音を気にされている方にオススメの間取りと部屋の配置
物件のこだわり/設備・条件
新築(非該当)
2階以上の物件(該当)
南向き(非該当)
駐車場(非該当)
オートロック(非該当)
エアコン(該当)
バス・トイレ別(該当)
追焚機能(非該当)
フローリング(該当)
ペット相談(非該当)
位置
角部屋入居条件
即入居可キッチン/バス・トイレ
設備・サービス
エアコン、公営水道、都市ガス、下水、フローリング、バルコニー、室内洗濯機置場、駐輪場ありその他
住まい探し特典あり備考
京都市西京区 樫原エリアのワンルームマンションです。更新料ナシ。嬉しい3点セパレートにシステムキッチン、温水洗浄便座など充実の設備。コンビニ、スーパー、ドラッグストア、ホームセンターなど近くにあって便利ですよ。
物件周辺の生活情報
学校
- 樫原小学校(300m)
- 樫原中学校(750m)
買い物
- コンビニ(150m)
- スーパー(400m)
- ドラッグストア(300m)
その他施設
- 総合病院(1,250m)
- マツヤデンキ(100m)
交通
- 阪急京都本線 桂駅 徒歩17分
- 普通(停車)
- 準急(停車)
- 堺筋準急(停車)
- 通勤特急(停車)
- 特急(停車)
- 急行(停車)
- 準特急(停車)
- 阪急京都本線 洛西口駅 徒歩21分
- 普通(停車)
- 準急(停車)
- 堺筋準急(停車)
- 通勤特急(通過)
- 特急(通過)
- 急行(通過)
- 準特急(通過)
※急行等の停車駅情報について
急行等の停車駅に関するデータは、随時更新をしておりますが、最新の内容であることを保証するものではありません。
最新かつ正確な情報につきましては、各鉄道会社のウェブサイトにてご確認ください
物件概要
- 建物構造
- 鉄骨造
- 駐車場
- 無
- 総戸数
- 2戸
- 契約形態
- -
- 契約期間
- 2年間
- 更新料
- -
- その他費用
- -
- 保証会社
- -
- 住宅保険
- 要
- 管理
- 管理員:巡回
- LIFULL HOME'S
物件番号 - 0113627-0259494
- 自社管理番号
- 79221-2F-64
- 取引態様
- 仲介
- 会社名
- ウインズリンク株式会社 アパマンショップ西院店
営業スタッフコメント

ウインズリンク株式会社 アパマンショップ西院店
速水歩
女性が好む食料品が好みです。
業界経験4年
資格少額短期保険募集人
- 会社実績や特徴・サービス情報
- アパマンショップ西院店の掲載物件をご覧いただき、ありがとう御座います。 当店は右京区・中京区・下京区・西京区を中心に阪急沿線、地下鉄沿線、JR沿線と 京都市内全域の物件を取り扱い、幅広い物件のご提案・ご紹介が可能です。 社会人様・カップル様・ファミリー様をはじめ、京都外国語大学・立命館大学・ 京都先端科学大学・大和学園などの学生様・留学生様まで当店のスタッフが 貴方のお部屋探しに最大限、尽力させていただきます。 ちょっとしたご相談や1件の見学からでもお気軽にお問い合わせ下さいませ。
アパマンショップ西院店の掲載物件をご覧いただき、ありがとう御座います。 当店は右京区・中京区・下京区・西京区を中心に阪急沿線、地下鉄沿線、JR沿線と 京都市内全域の物件を取り扱い、幅広い物件のご提案・ご紹介が可能です。 社会人様・カップル様・ファミリー様をはじめ、京都外国語大学・立命館大学・ 京都先端科学大学・大和学園などの学生様・留学生様まで当店のスタッフが 貴方のお部屋探しに最大限、尽力させていただきます。 ちょっとしたご相談や1件の見学からでもお気軽にお問い合わせ下さいませ。
- 電話でお問合せ(通話無料)
お問合せ先 :ウインズリンク株式会社 アパマンショップ西院店
不動産会社情報
ウインズリンク株式会社 アパマンショップ西院店 アパマンショップ西院店

京都府京都市右京区西院巽町41
阪急京都本線 西院駅 徒歩1分
- 営業時間
- 09:30~19:00
- 定休日
- なし(盆休み8/13〜8/16・年末年始12/27〜1/4)
優良店認定
右京区・中京区を中心に市内全域ご対応可能。シャーメゾンSHOPであり他社様では取り扱えない物件も多数あり、ご厚意にして頂いている家主様も多く様々なご相談が可能。お部屋探しは当店へお気軽にご相談下さい。
- 店舗の特徴
- 賃貸管理業務
- リフォーム対応
- 引越し業者紹介可
- 年中無休
- 保証人不要な物件あり
- 法人契約取扱い
- 女性スタッフ対応可
- 駅から歩いて3分以内
電話でお問合せお客様の電話番号は不動産会社には通知されません
- 不動産会社に
つながります
お客様の電話番号は不動産会社に通知されません
- ※光IP電話、及びIP電話からはご利用になれません
- ※お電話によるお問合せは、店舗営業時間内にお願いします。つながらない場合は、お問合せフォームよりお問合せください
- ※不動産会社がお電話に出られなかった場合、お問合せいただいた後に不動産会社より折り返しのお電話がある場合がございます(お客様が非通知設定した場合は対象外です)
- ※株式会社LIFULLは電話会社が提供するサービスを介してお客様の発信者番号を受領後、折り返し専用の電話番号を発番してお問合せの不動産会社に通知します(お客様の発信者番号がお問合せの不動産会社に通知されることはございません)
- ※携帯電話からお問合せいただいた方に対し、株式会社LIFULLは電話会社が提供するメッセ―ジサービスを介してお客様の発信者番号を受領後、ショートメッセージ(SMS)またはLINE通知メッセージによるお問合せ内容に関する通知をお届けする場合があります
- ※お客様が通話中に不動産会社にお伝えになったお客様の個人情報及び、電話会社が発番する折り返し専用の電話番号は、お問合せ先不動産会社が資料送付・電子メール送信・電話連絡などの目的で保管する可能性があります。お問合せ先不動産会社が保管する個人情報の取扱いについては、各不動産会社に直接お問合せください
- ※株式会社LIFULLでは本サービスを円滑に運用するために、お客様の発信者番号をサービスご利用の控えとして一定期間保管いたします
- ※上記および株式会社LIFULLの個人情報の取扱い方針に同意のうえ、お電話ください
【LIFULL HOME'S物件番号】0113627-0259494【自社管理番号】79221-2F-64
初期費用・月額費用をあわせて確認!この物件に住んだときの費用めやす
めやすを見るこの物件に住んだときの費用めやす
- 初期費用
- 月額費用
- 追加費用※ご確認ください
追加で費用が
かかる場合があります
必ずご確認ください
初期費用めやす約0円
追加で費用がかかります(※)敷金
50,000
- 礼金
50,000
賃料+共益費・管理費の1ヶ月分として換算
賃料の1ヶ月分+税として換算。不動産会社によって金額が異なるため正確な金額は不動産会社にお問合せください
※追加費用もチェック!
これらの項目以外にも費用がかかる場合があります。正確な金額は不動産会社にお問合せください。
- 初期費用
- 鍵交換費:不動産会社に要確認
- 室内清掃費:不動産会社に要確認
- 火災保険費:不動産会社に要確認
- 保証会社
- 不動産会社に要確認
不動産会社より
改装部屋 音を気にされている方にオススメの間取りと部屋の配置
京都市西京区 樫原エリアのワンルームマンションです。更新料ナシ。嬉しい3点セパレートにシステムキッチン、温水洗浄便座など充実の設備。コンビニ、スーパー、ドラッグストア、ホームセンターなど近くにあって便利ですよ。
- 保存する
- 共有する
- ※各種情報と現状に差異がある場合は、現状優先となります
- ※不動産会社が入力した情報を基に物件の位置を表示しています。詳しくは不動産会社までお問合せください
- ※不動産会社の方からの上記電話番号によるお問合せはお断りしております。こちら不動産会社詳細からお問合せください
- ※LIFULL HOME'Sは物件鮮度No.1を目指していきます。閲覧中の物件が「成約済である」「実際の物件情報と異なる点がある」などの場合、「掲載110番」からお問合せください
- ※QRコードは株式会社デンソーウェーブの登録商標です
LIFULL HOME'S 地図・周辺情報
買い物
- セブンイレブン 京都樫原水築町店
- 新鮮激安市場!樫原店
- ダックス西京樫原店
- ファミリーマート 樫原江ノ本町店
- 万代 樫原店
グルメ
- すき家 西京区樫原店
- 生そばあずま樫原店
- モスバーガー 桂物集女店
- サンマルク京都桂店
- 和食さと 京都桂店
育児・教育
- 社会福祉法人樫原保育園
- 京都市立樫原小学校
- 京都市立樫原中学校
- 京都三ノ宮幼稚園
- 京都市立川岡小学校
医療
- 医療法人清仁会シミズ病院
- 医療法人真生会向日回生病院
- 社会福祉法人京都社会事業財団京都桂病院
- 三菱京都病院
- 医療法人清人会洛西ニュータウン病院
公共施設・郵便局
- 京都樫原郵便局
- 京都市西京図書館
- 西京警察署
- 京都川島郵便局
- 京都市洛西図書館
公園
- 京都市洛西竹林公園
- 車塚緑地
- 御陵公園
- 福西公園
- 牛ケ瀬公園
利用可能な駅
- すべての駅
阪急京都本線
- 桂駅徒歩17分
- 洛西口駅徒歩21分
- 東向日駅徒歩34分
阪急嵐山線
- 上桂駅徒歩27分
JR東海道・山陽本線
- 桂川駅徒歩31分
- 向日町駅3.2km
- 周辺情報は2023年07月21日時点のものになります。
- 周辺情報は、参考情報としてのみご利用ください(周辺情報は、株式会社LIFULLが地図情報の提供事業者から提供を受けた情報とLIFULL HOME'Sの物件情報に基づき、独自の方法で抽出し提供しているものです。周辺情報は、移転や閉鎖等により情報が最新ではない、または正しくない場合がありますが、地図情報の提供事業者から提供された情報をそのまま周辺情報として表示しているため、正確かつ最新の情報へ修正することができないことがあります。)
- 周辺情報は、株式会社LIFULLが掲載するものであり、不動産物件情報を掲載している不動産会社が掲載するものではありません
- 交通情報の一部については、株式会社LIFULLが掲載するものであり、不動産物件情報を掲載している不動産会社が掲載するものではない場合があります。交通情報に関する質問などは株式会社LIFULLにお問合せください










