LIFULL HOME'Sは物件鮮度No.1!※評価について
East court 北白川(1階/1-D/1K/23.8m²)
East court 北白川(1階/1-D/1K/23.8m²)
5.9万円/管理費等4,000円
2時間前 更新
画像一覧
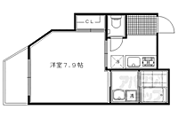
1/30間取り
2/30外観
3/30外観
4/30リビング/ダイニング
洋室
5/30室内
洋室
6/30寝室
洋室
7/30子供部屋
洋室
8/30キッチン
キッチン
9/30キッチン
キッチン
10/30キッチン
キッチン
11/30浴室
風呂
12/30トイレ
トイレ
13/30洗面
洗面所
14/30収納
収納
15/30設備
下駄箱
16/30設備
冷蔵庫置場
17/30設備
洗濯機置場
18/30玄関
玄関
19/30バルコニー
北側ベランダ
20/30エントランス
エントランス
21/30その他
廊下
22/30その他
北側眺望
23/30その他
エアコン
24/30その他
給湯器リモコン
25/30その他
インターフォン
26/30その他
廊下
27/30周辺
メルシーマルギンまで260メートル
28/30周辺
ファミリーマート 白川通別当町店まで510メートル
29/30周辺
京都銀行 銀閣寺店まで160メートル
30/30周辺
ダックス 浄土寺店まで710メートル
間取り
外観
外観
リビング/ダイニング
室内
寝室
子供部屋
キッチン
キッチン
キッチン
浴室
トイレ
洗面
収納
設備
設備
設備
玄関
バルコニー
エントランス
その他
その他
その他
その他
その他
その他
周辺
周辺
周辺
周辺
お問合せ先 :株式会社エリッツ 山科店
1〜3月は引越しシーズンのピークです。お問合せはお早めに!
住まい探し特典内容
電気・ガス・インターネットの手続き代行のご案内します。
- 利用条件
- 株式会社エリッツ 山科店で利用可
- 他特典との併用可
利用方法
来店時に本特典の画面をスマートフォンやタブレットでスタッフに提示、または画面印刷した用紙を提示ください。
有効期限 なし
京都大学生専用です。北白川エリアの築浅賃貸物件です。--パノラマ掲載--
物件のこだわり/設備・条件
新築(非該当)
2階以上の物件(非該当)
南向き(該当)
駐車場(非該当)
オートロック(該当)
エアコン(該当)
バス・トイレ別(該当)
追焚機能(非該当)
フローリング(該当)
ペット相談(非該当)
位置
角部屋入居条件
二人入居不可、単身者限定、学生限定キッチン/バス・トイレ
設備・サービス
オートロック、エアコン、シューズボックス、インターネット対応、インターネット使用料無料、公営水道、都市ガス、下水、フローリング、バルコニー、室内洗濯機置場、南面バルコニー、駐輪場ありその他
初期費用カード決済可、住まい探し特典あり備考
京都芸術大学まで自転車で4分、京都大学正門前まで自転車で6分です。2口ガスコンロ付きです。洗濯機は室内に設置可能です。出町柳駅まで自転車で8分、出町柳駅から祇園四条駅まで5分です。・インターネット無料
物件周辺の生活情報
買い物
- コンビニ(510m)
- スーパー(260m)
- ドラッグストア(710m)
その他施設
- 総合病院(700m)
- 銀行(160m)
交通
- 京阪本線 出町柳駅 バス7分 銀閣寺道下車 徒歩4分
- 普通(停車)
- 区間急行(通過)
- 急行(停車)
- 特急(停車)
- 通勤準急・準急(停車)
- 快速特急 洛楽(停車)
- 通勤快急・快速急行(停車)
- 叡山電鉄叡山本線 元田中駅 徒歩20分
- 普通(停車)
※急行等の停車駅情報について
急行等の停車駅に関するデータは、随時更新をしておりますが、最新の内容であることを保証するものではありません。
最新かつ正確な情報につきましては、各鉄道会社のウェブサイトにてご確認ください
物件周辺の口コミ
- 京都府京都市左京区北白川東久保田町に住む人の口コミ30代男性
都会すぎず、だからと言って田舎でもなく、店もそれなりにあって、ごちゃごちゃしすぎてもいない。でも最近観光客が多い気がして気がかかり。
口コミを見る
この物件周辺に住む人の口コミ
口コミは、LIFULL HOME'Sが実際にこの物件の周辺に住む18歳~69歳の男女を対象に、WEBアンケート調査を実施しています。内容には回答者の主観的な表現が含まれる場合があるほか、事実と異なる場合もございます。ご了承ください。
- 京都府京都市左京区北白川東久保田町に住む人の口コミ30代男性
- 都会すぎず、だからと言って田舎でもなく、店もそれなりにあって、ごちゃごちゃしすぎてもいない。でも最近観光客が多い気がして気がかかり。
- 京都府京都市左京区下鴨膳部町に住む人の口コミ30代女性
- 治安はいい。バスも多くそれほど不便は感じない。カラスが多くゴミを漁られるのだけが不満。
- 京都府京都市左京区高野清水町に住む人の口コミ10代女性
- 周辺に大型施設があり、買い物に困ることはない。近くに川があり、自然を感じることができる。しかし、車が多く、パトカーの音もよく聞こえるので治安はあまり良く無いと感じる。
- 京都府京都市上京区塔之段通今出川上る2丁目に住む人の口コミ30代男性
- 昔ながらの商店街もあり交通の便も良く、近くに四季が感じられる自然もあり、夜は静かだから
- 京都府京都市左京区吉田中阿達町に住む人の口コミ10代男性
- これといった不便を感じずに、生活できている。買い物もしやすく、交通の便も良い。ある程度の自然もあるので快適。
- 京都府京都市左京区高野清水町に住む人の口コミ30代男性
- 静かに暮らせてお店もたくさんあるので困らない、繁華街へのアクセスもいい
- 京都府京都市左京区田中大堰町に住む人の口コミ20代女性
- コンビニもスーパーもあり、学生も多い街なので活気がある。交通が便利。
- 京都府京都市左京区吉田上阿達町に住む人の口コミ20代女性
- 田舎すぎず都会すぎないちょうど良い。また、気軽に山や川に行ける。少しの移動で街中にも行ける。電車、バス、少し歩いて地下鉄が利用できる。スーパーもコンビニも困らない。治安がいい。
- 京都府京都市上京区寺之内通新町東入に住む人の口コミ20代女性
- 学生にとって住みやすい環境だし、坂がないため自転車でほとんどの場所へ行くことができるから。
- 京都府京都市左京区下鴨宮河町に住む人の口コミ20代女性
- 衣食住に困らず、歴史的な街並みや観光スポットが身近にある。京阪やバス停も近くにあり交通は便利。ただし寒暖の差が激しく水道水は不味いため。
物件概要
- 建物構造
- RC(鉄筋コンクリート)
- 駐車場
- 近隣 11,000円(税無) 物件からの距離348m
- 総戸数
- 12戸
- 契約形態
- -
- 契約期間
- 2年間
- 更新料
- -
- その他費用
- 鍵交換費用:16,500円、室内清掃費用:33,000円、水道代(月額):2,000円
- 保証会社
加入要
保証会社利用料:10、000円
- 住宅保険
- 要
- 管理
- -
- LIFULL HOME'S
物件番号 - 0110598-0267672
- 自社管理番号
- 63552-01-D
- 取引態様
- 仲介
- 会社名
- 株式会社エリッツ 山科店
営業スタッフコメント

株式会社エリッツ 山科店
羽渕暖
お部屋探しを精一杯サポートさせていただきます。
業界経験1年
- 会社実績や特徴・サービス情報
- 弊社では、京都で店舗数が一番多いという実績を生かしてお客様により良い物件を提供できるよう努めてまいります。ぜひ一度お越しください。スタッフ一同お待ちしております。
弊社では、京都で店舗数が一番多いという実績を生かしてお客様により良い物件を提供できるよう努めてまいります。ぜひ一度お越しください。スタッフ一同お待ちしております。
- 電話でお問合せ(通話無料)
お問合せ先 :株式会社エリッツ 山科店
不動産会社情報
株式会社エリッツ 山科店賃貸のエリッツ山科店

京都府京都市山科区竹鼻竹ノ街道町42−2 オフィス山科1F
JR東海道・山陽本線 山科駅 徒歩6分
- 営業時間
- 10:00~19:00
- 定休日
- 年中無休(年末年始を除く)
優良店認定
京都のお部屋探しはエリッツで!単身者様、ご家族様向け等幅広く物件を取り揃えております!京都薬科大学様、洛和会様の提携業者です。オンラインでの応対も可能です。遠方の方もお気軽にご相談ください。
- 店舗の特徴
- 引越し業者紹介可
- 年中無休
- 駐車場あり
- バリアフリー
- オンライン相談可
- 保証人不要な物件あり
- 法人契約取扱い
電話でお問合せお客様の電話番号は不動産会社には通知されません
- 不動産会社に
つながります
お客様の電話番号は不動産会社に通知されません
- ※光IP電話、及びIP電話からはご利用になれません
- ※お電話によるお問合せは、店舗営業時間内にお願いします。つながらない場合は、お問合せフォームよりお問合せください
- ※不動産会社がお電話に出られなかった場合、お問合せいただいた後に不動産会社より折り返しのお電話がある場合がございます(お客様が非通知設定した場合は対象外です)
- ※株式会社LIFULLは電話会社が提供するサービスを介してお客様の発信者番号を受領後、折り返し専用の電話番号を発番してお問合せの不動産会社に通知します(お客様の発信者番号がお問合せの不動産会社に通知されることはございません)
- ※携帯電話からお問合せいただいた方に対し、株式会社LIFULLは電話会社が提供するメッセ―ジサービスを介してお客様の発信者番号を受領後、ショートメッセージ(SMS)またはLINE通知メッセージによるお問合せ内容に関する通知をお届けする場合があります
- ※お客様が通話中に不動産会社にお伝えになったお客様の個人情報及び、電話会社が発番する折り返し専用の電話番号は、お問合せ先不動産会社が資料送付・電子メール送信・電話連絡などの目的で保管する可能性があります。お問合せ先不動産会社が保管する個人情報の取扱いについては、各不動産会社に直接お問合せください
- ※株式会社LIFULLでは本サービスを円滑に運用するために、お客様の発信者番号をサービスご利用の控えとして一定期間保管いたします
- ※上記および株式会社LIFULLの個人情報の取扱い方針に同意のうえ、お電話ください
【LIFULL HOME'S物件番号】0110598-0267672【自社管理番号】63552-01-D
オンライン対応
オンライン相談・IT重説に対応している物件です

「オンライン内見」「オンライン相談」「IT重説」とは?
物件の内見や不動産会社スタッフとの相談、契約前の重要事項説明をオンライン(ビデオ通話)で行うことができるサービスです。
オンライン内見
ビデオ通話で現地(物件)にいる不動産会社スタッフと映像・音声を使ってリアルタイムで会話しながら内見ができます。
オンライン相談
「物件について聞きたいことがある」など不動産会社スタッフへの相談もビデオ通話で行うことができます。
IT重説
契約前の重要事項説明(重説)をビデオ通話で行うことができます。
利用時の注意事項
- ビデオ通話については各不動産会社指定のものとなります。
- ビデオ通話利用時には通信が発生します。従量課金制通信サービスや通信量に上限があるネット回線・プランを利用する場合は、通信量にご注意ください。
- 通信速度やアプリの設定によってはビデオ通話の画質が低下することがあります。安定した画質で利用するためにも、Wi-Fi環境下での利用を推奨します。
- ご利用のビデオ通話アプリによっては、対象のOSやブラウザに制限がある場合があります。詳しくはお問合せ先不動産会社にご確認ください。
初期費用・月額費用をあわせて確認!この物件に住んだときの費用めやす
めやすを見るこの物件に住んだときの費用めやす
- 初期費用
- 月額費用
- 追加費用※ご確認ください
追加で費用が
かかる場合があります
必ずご確認ください
初期費用めやす約0円
追加で費用がかかります(※)敷金
20,000
- 礼金
130,000
賃料+共益費・管理費の1ヶ月分として換算
賃料の1ヶ月分+税として換算。不動産会社によって金額が異なるため正確な金額は不動産会社にお問合せください
※追加費用もチェック!
これらの項目以外にも費用がかかる場合があります。正確な金額は不動産会社にお問合せください。
- 初期費用
- 鍵交換費:16,500円
- 室内清掃費:33,000円
- 火災保険費:不動産会社に要確認
- 月額費用
- 駐車場費:11,000円※近隣
- その他
- 水道代(月額):2000円
- 保証会社
- 10、000円
不動産会社より
京都大学生専用です。北白川エリアの築浅賃貸物件です。--パノラマ掲載--
京都芸術大学まで自転車で4分、京都大学正門前まで自転車で6分です。2口ガスコンロ付きです。洗濯機は室内に設置可能です。出町柳駅まで自転車で8分、出町柳駅から祇園四条駅まで5分です。・インターネット無料
- 保存する
- 共有する
- ※各種情報と現状に差異がある場合は、現状優先となります
- ※不動産会社が入力した情報を基に物件の位置を表示しています。詳しくは不動産会社までお問合せください
- ※不動産会社の方からの上記電話番号によるお問合せはお断りしております。こちら不動産会社詳細からお問合せください
- ※LIFULL HOME'Sは物件鮮度No.1を目指していきます。閲覧中の物件が「成約済である」「実際の物件情報と異なる点がある」などの場合、「掲載110番」からお問合せください
- ※QRコードは株式会社デンソーウェーブの登録商標です
LIFULL HOME'S 地図・周辺情報
買い物
- ローソン 北白川久保田店
- DAIKOKUYA白川店
- ダックス左京浄土寺店
- ファミリーマート 白川通別当町店
- フレスコ 北白川店
グルメ
- かに道楽 京都北白川店
- 天下一品銀閣寺店
- すき家 北白川店
- タリーズコーヒー京都大学時計台店
- 餃子の王将 北白川店
育児・教育
- コドモのイエ幼稚園
- 京都市立北白川小学校
- 私立ノートルダム女学院中学校
- 北白川幼稚園
- 京都市立第三錦林小学校
医療
- (財)川越病院
- (財)日本バプテスト連盟医療団総合病院日本バプテスト病院
- 公益社団法人信和会京都民医連あすかい病院
- 医療法人一仁会脳神経リハビリ北大路病院
- 京都大原記念病院グループ京都近衛リハビリテーション病院
公共施設・郵便局
- 京都北白川郵便局
- 京都市左京図書館
- 下鴨警察署
- 京都浄土寺郵便局
- 京都府立図書館
公園
- 吉田山公園
- 岡崎公園
- 京都御苑
- 円山公園
- 円山公園
利用可能な駅
- 徒歩10分以内
京阪本線
- 出町柳駅 バス7分 銀閣寺道下車徒歩4分
- すべての駅
叡山電鉄叡山本線
- 元田中駅徒歩20分
- 茶山・京都芸術大学駅徒歩20分
- 一乗寺駅徒歩28分
- 修学院駅徒歩33分
京都地下鉄東西線
- 蹴上駅徒歩34分
- 東山駅3.2km
- 三条京阪駅3.8km
- 京都市役所前駅4.1km
京阪本線
- 神宮丸太町駅3.1km
- 三条駅4.2km
京都市営烏丸線
- 今出川駅3.2km
- 松ヶ崎駅3.5km
- 周辺情報は2023年07月21日時点のものになります。
- 周辺情報は、参考情報としてのみご利用ください(周辺情報は、株式会社LIFULLが地図情報の提供事業者から提供を受けた情報とLIFULL HOME'Sの物件情報に基づき、独自の方法で抽出し提供しているものです。周辺情報は、移転や閉鎖等により情報が最新ではない、または正しくない場合がありますが、地図情報の提供事業者から提供された情報をそのまま周辺情報として表示しているため、正確かつ最新の情報へ修正することができないことがあります。)
- 周辺情報は、株式会社LIFULLが掲載するものであり、不動産物件情報を掲載している不動産会社が掲載するものではありません
- 交通情報の一部については、株式会社LIFULLが掲載するものであり、不動産物件情報を掲載している不動産会社が掲載するものではない場合があります。交通情報に関する質問などは株式会社LIFULLにお問合せください











