LIFULL HOME'Sは物件鮮度No.1!※評価について
イヌイ星の子ハイツ(5階/513/2LDK/60.31m²)
イヌイ星の子ハイツ(5階/513/2LDK/60.31m²)
11.3万円/管理費等10,000円
3日前 更新
画像一覧
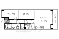
1/30間取り
2/30外観
3/30外観
4/30リビング/ダイニング
リビング
5/30リビング/ダイニング
リビング
6/30室内
洋室
7/30寝室
洋室
8/30寝室
洋室
9/30寝室
和室
10/30子供部屋
洋室
11/30キッチン
キッチン
12/30キッチン
キッチン
13/30キッチン
キッチン
14/30浴室
風呂
15/30浴室
風呂
16/30トイレ
トイレ
17/30洗面
洗面所
18/30収納
収納
19/30設備
冷蔵庫置場
20/30設備
洗濯機置場
21/30玄関
玄関
22/30バルコニー
ベランダ
23/30駐車場
駐車場
24/30その他
眺望
25/30その他
エアコン
26/30その他
給湯器リモコン
27/30その他
インターフォン
28/30周辺
ライフ 西陣店まで10メートル
29/30周辺
セブンイレブン 烏丸今出川店まで500メートル
30/30周辺
ダックス 智恵光院店まで110メートル
間取り
外観
外観
リビング/ダイニング
リビング/ダイニング
室内
寝室
寝室
寝室
子供部屋
キッチン
キッチン
キッチン
浴室
浴室
トイレ
洗面
収納
設備
設備
玄関
バルコニー
駐車場
その他
その他
その他
その他
周辺
周辺
周辺
お問合せ先 :株式会社エリッツ 今出川店
1〜4月は引越しシーズンのピークです。お問合せはお早めに!
住まい探し特典内容
電気・ガス・インターネットの手続き代行のご案内します。
- 利用条件
- 株式会社エリッツ 今出川店で利用可
- 他特典との併用可
利用方法
来店時に本特典の画面をスマートフォンやタブレットでスタッフに提示、または画面印刷した用紙を提示ください。
有効期限 なし
ペットご相談可能です。マンション1階がスーパーです。--パノラマ掲載--
基本情報
不動産用語- 賃料
- 11.3万円
- 管理費等
- 10,000円
初期費用などお気軽にお問合せください
- 敷金/礼金
- 無/2.4ヶ月
- 保証金/敷引・償却金
- -/-
- 交通
京都市営烏丸線 今出川駅 徒歩20分
京阪本線 出町柳駅 3.1km
JR嵯峨野線 二条駅 徒歩27分
- 所在地
京都府京都市上京区中立売通松屋町西入新白水丸町
地図を見る- 築年月
- 1980年8月(築46年)
- 主要採光面
- 西
- 専有面積
- 60.31㎡
- バルコニー面積
- -
- 所在階/階数
- 5階/8階建
入居可能日などお気軽にお問合せください
- 現況
- 居住中
- 入居可能時期
- 2026年04月 下旬

人気物件はすぐに埋まってしまいます。
気になったらお早めにお問合せください。
- 情報公開日
2026/02/25
51日前 公開
- 情報更新日
2026/04/14
3日前 更新
- 次回更新
予定日 - 2026/04/21
物件のこだわり/設備・条件
新築(非該当)
2階以上の物件(該当)
南向き(非該当)
駐車場あり(該当)
オートロック(該当)
エアコン(非該当)
バス・トイレ別(該当)
追焚機能(非該当)
フローリング(該当)
ペット相談可(該当)
入居条件
二人入居可、ペット相談キッチン/バス・トイレ
設備・サービス
オートロック、CATV、インターネット対応、インターネット使用料無料、公営水道、都市ガス、下水、フローリング、バルコニー、室内洗濯機置場、エレベーター、駐車場あり、バイク置き場あり、駐輪場ありその他
初期費用カード決済可、住まい探し特典あり備考
振り分け間タイプの2LDKです。リビングも広々10帖です。新婚さんやご兄弟・ご姉妹でのルームシェアに向いています。お部屋も美室ですよ。学区は、正親小学校区・二条中学校区で人気学区ですよ。1階スーパー。 ペット相談条件:ペット1匹迄(小型犬礼金+1ヵ月、猫礼金+1.5ヵ月)・インターネット無料・ごみ処理代(月額):400円・その他(月額):700円
物件周辺の生活情報
学校
- 正親小学校(200m)
- 二条中学校(1,250m)
買い物
- コンビニ(500m)
- スーパー(10m)
- ドラッグストア(110m)
その他施設
- 総合病院(1,400m)
交通
- 京都市営烏丸線 今出川駅 徒歩20分
- 普通(停車)
- 急行(停車)
- 京阪本線 出町柳駅 3.1km
- 普通(停車)
- 区間急行(通過)
- 急行(停車)
- 特急(停車)
- 通勤準急・準急(停車)
- 快速特急 洛楽(停車)
- 通勤快急・快速急行(停車)
※急行等の停車駅情報について
急行等の停車駅に関するデータは、随時更新をしておりますが、最新の内容であることを保証するものではありません。
最新かつ正確な情報につきましては、各鉄道会社のウェブサイトにてご確認ください
物件概要
- 建物構造
- RC(鉄筋コンクリート)
- 駐車場
- 空有 15,750円(税無)
- 総戸数
- 81戸
- 契約形態
- -
- 契約期間
- 2年間
- 更新料
- 新賃料の1ヶ月分
- その他費用
- 室内清掃費用:37,400円、管理会社書類代(初回):18,700円、システム料金(初回):16,500円、その他(初回):10,000円
- 保証会社
加入要
保証会社利用料:62、050円
- 住宅保険
- 要
- 管理
- -
- LIFULL HOME'S
物件番号 - 0110594-0336056
- 自社管理番号
- 7648-0513
- 取引態様
- 仲介
- 会社名
- 株式会社エリッツ 今出川店
営業スタッフコメント

株式会社エリッツ 今出川店店長
佐野大祐
お客様のお部屋探しを知識と経験で全力でサポートさせて頂きます。
業界経験28年
資格宅地建物取引士、少額短期保険募集人、賃貸不動産経営管理士、損害保険募集人
- 会社実績や特徴・サービス情報
- 同志社大学、同志社女子大学生様は賃貸のエリッツ今出川店賃貸のエリッツ今出川店は京都市営地下鉄烏丸線今出川駅4番出口より徒歩1分、烏丸今出川の北西角です。同志社大学今出川キャンパス正門の前にあり、広い店内には自転車置き場も完備しており、自転車でのご来店も駅前駐輪場の使用なしでご来店いただけますので、通勤・通学途中でお立ち寄りいただくことも可能です。 ご転勤のシーズンに向け、法人様向け賃貸も多数準備致しております。
同志社大学、同志社女子大学生様は賃貸のエリッツ今出川店賃貸のエリッツ今出川店は京都市営地下鉄烏丸線今出川駅4番出口より徒歩1分、烏丸今出川の北西角です。同志社大学今出川キャンパス正門の前にあり、広い店内には自転車置き場も完備しており、自転車でのご来店も駅前駐輪場の使用なしでご来店いただけますので、通勤・通学途中でお立ち寄りいただくことも可能です。 ご転勤のシーズンに向け、法人様向け賃貸も多数準備致しております。
- 電話でお問合せ(通話無料)
お問合せ先 :株式会社エリッツ 今出川店
不動産会社情報
株式会社エリッツ 今出川店賃貸のエリッツ今出川店
京都府京都市上京区北小路室町388 ファーストコート御所室町 1階
京都市営烏丸線 今出川駅 徒歩2分
- 営業時間
- 10:00~19:00
- 定休日
- 年中無休(年末年始を除く)
京都市上京区、同志社大学、地下鉄今出川駅周辺のお部屋探しはお任せ下さい。大学周辺では立命館大学や京都産業大学等どのエリアの物件も大丈夫です。単身者物件〜ファミリー物件まで情報力には自信あります。
- 店舗の特徴
- 賃貸管理業務
- 引越し業者紹介可
- 年中無休
- オンライン相談可
- 保証人不要な物件あり
- 法人契約取扱い
- 駅から歩いて3分以内
- 外国語を話せるスタッフ在籍
電話でお問合せお客様の電話番号は不動産会社には通知されません
- 不動産会社に
つながります
お客様の電話番号は不動産会社に通知されません
- ※光IP電話、及びIP電話からはご利用になれません
- ※お電話によるお問合せは、店舗営業時間内にお願いします。つながらない場合は、お問合せフォームよりお問合せください
- ※不動産会社がお電話に出られなかった場合、お問合せいただいた後に不動産会社より折り返しのお電話がある場合がございます(お客様が非通知設定した場合は対象外です)
- ※株式会社LIFULLは電話会社が提供するサービスを介してお客様の発信者番号を受領後、折り返し専用の電話番号を発番してお問合せの不動産会社に通知します(お客様の発信者番号がお問合せの不動産会社に通知されることはございません)
- ※携帯電話からお問合せいただいた方に対し、株式会社LIFULLは電話会社が提供するメッセ―ジサービスを介してお客様の発信者番号を受領後、ショートメッセージ(SMS)またはLINE通知メッセージによるお問合せ内容に関する通知をお届けする場合があります
- ※お客様が通話中に不動産会社にお伝えになったお客様の個人情報及び、電話会社が発番する折り返し専用の電話番号は、お問合せ先不動産会社が資料送付・電子メール送信・電話連絡などの目的で保管する可能性があります。お問合せ先不動産会社が保管する個人情報の取扱いについては、各不動産会社に直接お問合せください
- ※株式会社LIFULLでは本サービスを円滑に運用するために、お客様の発信者番号をサービスご利用の控えとして一定期間保管いたします
- ※上記および株式会社LIFULLの個人情報の取扱い方針に同意のうえ、お電話ください
【LIFULL HOME'S物件番号】0110594-0336056【自社管理番号】7648-0513
オンライン対応
オンライン相談・IT重説に対応している物件です

「オンライン内見」「オンライン相談」「IT重説」とは?
物件の内見や不動産会社スタッフとの相談、契約前の重要事項説明をオンライン(ビデオ通話)で行うことができるサービスです。
オンライン内見
ビデオ通話で現地(物件)にいる不動産会社スタッフと映像・音声を使ってリアルタイムで会話しながら内見ができます。
オンライン相談
「物件について聞きたいことがある」など不動産会社スタッフへの相談もビデオ通話で行うことができます。
IT重説
契約前の重要事項説明(重説)をビデオ通話で行うことができます。
利用時の注意事項
- ビデオ通話については各不動産会社指定のものとなります。
- ビデオ通話利用時には通信が発生します。従量課金制通信サービスや通信量に上限があるネット回線・プランを利用する場合は、通信量にご注意ください。
- 通信速度やアプリの設定によってはビデオ通話の画質が低下することがあります。安定した画質で利用するためにも、Wi-Fi環境下での利用を推奨します。
- ご利用のビデオ通話アプリによっては、対象のOSやブラウザに制限がある場合があります。詳しくはお問合せ先不動産会社にご確認ください。
初期費用・月額費用をあわせて確認!この物件に住んだときの費用めやす
めやすを見るこの物件に住んだときの費用めやす
- 初期費用
- 月額費用
- 追加費用※ご確認ください
追加で費用が
かかる場合があります
必ずご確認ください
初期費用めやす約0円
追加で費用がかかります(※)敷金
0
- 礼金
271,200
賃料+共益費・管理費の1ヶ月分として換算
賃料の1ヶ月分+税として換算。不動産会社によって金額が異なるため正確な金額は不動産会社にお問合せください
※追加費用もチェック!
これらの項目以外にも費用がかかる場合があります。正確な金額は不動産会社にお問合せください。
- 初期費用
- 鍵交換費:不動産会社に要確認
- 室内清掃費:37,400円
- 火災保険費:不動産会社に要確認
- 月額費用
- 駐車場費:15,750円※契約任意
- その他
- 管理会社書類代(初回):18700円
- システム料金(初回):16500円
- その他(初回):10000円
- 保証会社
- 62、050円
不動産会社より
ペットご相談可能です。マンション1階がスーパーです。--パノラマ掲載--
振り分け間タイプの2LDKです。リビングも広々10帖です。新婚さんやご兄弟・ご姉妹でのルームシェアに向いています。お部屋も美室ですよ。学区は、正親小学校区・二条中学校区で人気学区ですよ。1階スーパー。 ペット相談条件:ペット1匹迄(小型犬礼金+1ヵ月、猫礼金+1.5ヵ月)・インターネット無料・ごみ処理代(月額):400円・その他(月額):700円
- 保存する
- 共有する
- ※各種情報と現状に差異がある場合は、現状優先となります
- ※不動産会社が入力した情報を基に物件の位置を表示しています。詳しくは不動産会社までお問合せください
- ※不動産会社の方からの上記電話番号によるお問合せはお断りしております。こちら不動産会社詳細からお問合せください
- ※LIFULL HOME'Sは物件鮮度No.1を目指していきます。閲覧中の物件が「成約済である」「実際の物件情報と異なる点がある」などの場合、「掲載110番」からお問合せください
- ※QRコードは株式会社デンソーウェーブの登録商標です
LIFULL HOME'S 地図・周辺情報
買い物
- ファミリーマート 中立売智恵光院店
- ライフ 西陣店
- ダックス上京智恵光院店
- セブンイレブン 智恵光院上長者町店
- ダイソー京都西陣店
グルメ
- 餃子の王将 中立売店
- マクドナルド 千本中立売店
- すき家 千本中立売店
- 無添くら寿司 西陣店
- CoCo壱番屋 堀川丸太町店
育児・教育
- 第二せいしん幼児園
- 京都市立正親小学校
- 京都市立嘉楽中学校
- 浄福寺幼稚園
- 京都市立西陣中央小学校
医療
- 社会医療法人西陣健康会堀川病院
- 医療法人愛寿会同仁病院
- 京都第二赤十字病院
- 医療法人相馬病院
- 医療法人社団洛和会洛和会丸太町病院
公共施設・郵便局
- 京都中立売千本郵便局
- 京都市中央図書館
- 京都府警察本部
- 京都堀川下長者町郵便局
- 京都市こどもみらい館子育て図書館
公園
- 梅屋広場公園
- 京都御苑
- 船岡山公園
- 土堂公園
利用可能な駅
- すべての駅
京都市営烏丸線
- 今出川駅徒歩20分
京阪本線
- 出町柳駅3.1km
- その他交通
- JR嵯峨野線 二条駅 徒歩27分
- 周辺情報は2023年07月21日時点のものになります。
- 周辺情報は、参考情報としてのみご利用ください(周辺情報は、株式会社LIFULLが地図情報の提供事業者から提供を受けた情報とLIFULL HOME'Sの物件情報に基づき、独自の方法で抽出し提供しているものです。周辺情報は、移転や閉鎖等により情報が最新ではない、または正しくない場合がありますが、地図情報の提供事業者から提供された情報をそのまま周辺情報として表示しているため、正確かつ最新の情報へ修正することができないことがあります。)
- 周辺情報は、株式会社LIFULLが掲載するものであり、不動産物件情報を掲載している不動産会社が掲載するものではありません
- 交通情報の一部については、株式会社LIFULLが掲載するものであり、不動産物件情報を掲載している不動産会社が掲載するものではない場合があります。交通情報に関する質問などは株式会社LIFULLにお問合せください















