LIFULL HOME'Sは物件鮮度No.1!※評価について
ラベンダー90(1階/105/2LDK/56m²)
ラベンダー90(1階/105/2LDK/56m²)
6.9万円/管理費等6,000円
2時間前 更新
画像一覧
1/25リビング/ダイニング
リビング
2/25リビング/ダイニング
リビング
3/25室内
洋室
4/25寝室
和室
5/25子供部屋
洋室
6/25キッチン
キッチン
7/25キッチン
キッチン
8/25浴室
風呂
9/25トイレ
トイレ
10/25洗面
洗面所
11/25収納
収納
12/25設備
洗濯機置場
13/25バルコニー
ベランダ
14/25エントランス
エントランス
15/25その他
廊下
16/25その他
その他
17/25その他
階段
18/25その他
廊下
19/25その他
駐輪場
20/25その他
ゴミ置き場
21/25その他
前面道路
22/25周辺
スーパーチャコルマート墨染まで800メートル
23/25周辺
セブンイレブン 深草大亀谷店まで140メートル
24/25周辺
JR藤森駅まで230メートル
25/25周辺
京阪墨染駅まで950メートル
リビング/ダイニング
リビング/ダイニング
室内
寝室
子供部屋
キッチン
キッチン
浴室
トイレ
洗面
収納
設備
バルコニー
エントランス
その他
その他
その他
その他
その他
その他
その他
周辺
周辺
周辺
周辺
お問合せ先 :株式会社エリッツ 深草店
1〜4月は引越しシーズンのピークです。お問合せはお早めに!
住まい探し特典内容
電気・ガス・インターネットの手続き代行のご案内します。
- 利用条件
- 株式会社エリッツ 深草店で利用可
- 他特典との併用可
利用方法
来店時に本特典の画面をスマートフォンやタブレットでスタッフに提示、または画面印刷した用紙を提示ください。
有効期限 なし
JR奈良線藤森駅から徒歩3分の物件です--パノラマ掲載--
基本情報
不動産用語- 賃料
- 6.9万円
- 管理費等
- 6,000円
初期費用などお気軽にお問合せください
- 敷金/礼金
- 無/1ヶ月
- 保証金/敷引・償却金
- -/-
- 交通
- 所在地
京都府京都市伏見区深草大亀谷大山町
地図を見る- 築年月
- 1990年1月(築37年)
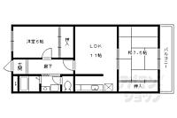
- 間取り
- 2LDK ( 和室 7.5畳 洋室 6帖 リビングダイニングキッチン 11帖 )
- 主要採光面
- 南
- 専有面積
- 56㎡
- バルコニー面積
- -
- 所在階/階数
- 1階/3階建
入居可能日などお気軽にお問合せください
- 現況
- 居住中
- 入居可能時期
- 2026年05月 下旬

人気物件はすぐに埋まってしまいます。
気になったらお早めにお問合せください。
- 情報公開日
2026/03/12
13日前 公開
- 情報更新日
2026/03/25
2時間前 更新
- 次回更新
予定日 - 2026/04/01
物件のこだわり/設備・条件
新築(非該当)
2階以上の物件(非該当)
南向き(該当)
駐車場あり(該当)
オートロック(非該当)
エアコン(該当)
バス・トイレ別(該当)
追焚機能(非該当)
フローリング(該当)
ペット相談(非該当)
位置
角部屋入居条件
二人入居可- 上記以外や相談可の
詳細はお問合せください - 上記以外や相談可の詳細は
お電話ください(通話無料)電話でお問合せ キッチン/バス・トイレ
設備・サービス
TVモニタ付インターホン、エアコン、クローゼット、CATV、インターネット対応、インターネット使用料無料、公営水道、都市ガス、下水、フローリング、バルコニー、室内洗濯機置場、南面バルコニー、駐車場あり、駐輪場ありその他
初期費用カード決済可、住まい探し特典あり備考
JR奈良線藤森駅から徒歩3分の駅チカ物件です。また京阪本線墨染駅までも徒歩10分なので2WAY使えて非常に便利です。3点セパレートのお部屋なのでオススメです。是非、一度ご覧になられてはいかがでしょう。・インターネット無料 ハウスクリーニング33000円(退去時)・長栄スマイルパック(初回):25000円・その他(初回):1100円・プレート代(初回):3300円
物件周辺の生活情報
学校
- 藤城小学校(760m)
- 藤森中学校(2,000m)
買い物
- コンビニ(140m)
- スーパー(800m)
その他施設
- 総合病院(1,300m)
交通
- JR奈良線 JR藤森駅 徒歩3分
- 普通(停車)
- 区間快速(通過)
- 快速(通過)
- みやこ路快速(通過)
- 京阪本線 墨染駅 徒歩10分
- 普通(停車)
- 区間急行(通過)
- 急行(通過)
- 特急(通過)
- 通勤準急・準急(停車)
- 快速特急 洛楽(通過)
- 通勤快急・快速急行(通過)
※急行等の停車駅情報について
急行等の停車駅に関するデータは、随時更新をしておりますが、最新の内容であることを保証するものではありません。
最新かつ正確な情報につきましては、各鉄道会社のウェブサイトにてご確認ください
物件周辺の口コミ
- 京都府京都市伏見区深草大亀谷大山町に住む人の口コミ50代女性
自然があり、静か。店はコンビニ程度しかなく不便だが、おいしいパンやさんと無人の野菜販売所がある。京都駅まで電車に乗れば近い。
口コミを見る
この物件周辺に住む人の口コミ
口コミは、LIFULL HOME'Sが実際にこの物件の周辺に住む18歳~69歳の男女を対象に、WEBアンケート調査を実施しています。内容には回答者の主観的な表現が含まれる場合があるほか、事実と異なる場合もございます。ご了承ください。
- 京都府京都市伏見区深草大亀谷大山町に住む人の口コミ50代女性
- 自然があり、静か。店はコンビニ程度しかなく不便だが、おいしいパンやさんと無人の野菜販売所がある。京都駅まで電車に乗れば近い。
- 京都府京都市伏見区深草大亀谷大山町に住む人の口コミ40代女性
- 山手にある家に住んでいるが、駅から5分のため、便利。坂が多いのが難点。
- 京都府京都市伏見区深草大亀谷大山町に住む人の口コミ50代女性
- JRや私鉄の駅が近くにあり、どこへ行くにも便利。大体が住宅街であるため、静かである。
- 京都府京都市伏見区深草東伊達町に住む人の口コミ50代女性
- 駅から歩いて10分 近所に大きな病院があり 学校も小中と近くにある。スーパーもたくさんあって非常に住みやすい
- 京都府京都市伏見区深草泓ノ壺町に住む人の口コミ40代女性
- 歩いて移動できる距離にスーパーやお店があり、鉄道もいくつかの線が使えるので。ただ、おしゃれなカフェがないのが残念
- 京都府京都市伏見区深草新門丈町に住む人の口コミ30代男性
- 交通の便がよくめちゃくちゃ優れている訳ではないけどある程度なんでもある
- 京都府京都市伏見区深草キトロ町に住む人の口コミ40代女性
- 公園が多くて緑が多い、駅が近い、遅くまであいてるスーパーがあり、百均、ドラッグストア、コンビニも近い。飲食店が多くて外食もしやすい。ツタヤがあって本もみれるし、特に不自由なく便利で快適だと思う。
- 京都府京都市伏見区深草新門丈町に住む人の口コミ50代男性
- 交通機関が充実し、また、名神高速、阪神高速・第二京阪等自家用車でも遠出しやすい立地。
- 京都府京都市伏見区深草直違橋南1丁目に住む人の口コミ30代女性
- 交通の便もよくスーパーやパン屋がたくさんあるので、生活するには便利
- 京都府京都市伏見区深草瓦町に住む人の口コミ40代女性
- 街中に出るには少し交通に不便だが、その他の面ではそれほど不自由ない
物件概要
- 建物構造
- RC(鉄筋コンクリート)
- 駐車場
- 空有 11,000円(税込)
- 総戸数
- 12戸
- 契約形態
- -
- 契約期間
- 2年間
- 更新料
- 35,000円
- その他費用
- 鍵交換費用:15,000円、駐車場手数料(初回):12,100円、電子契約手数料(初回):11,000円、ベルヴィクラブ(初回):38,500円
- 保証会社
加入要
保証会社利用料:43、000円
- 住宅保険
- 不要
- 管理
- -
- LIFULL HOME'S
物件番号 - 0110592-0296579
- 自社管理番号
- 9376-0105
- 取引態様
- 仲介
- 会社名
- 株式会社エリッツ 深草店
営業スタッフコメント

株式会社エリッツ 深草店
井口太智
深草店の井口です! 誠心誠意をもってお部屋探しに携わらせていただきます!
業界経験3年
- スタッフ情報
- 龍谷大学生様・伏見区のお部屋探しは賃貸のエリッツ深草店にお任せ下さい。賃貸のエリッツ深草店は、伏見区の賃貸物件を豊富に取り揃えております。龍谷大学の正面にあり、龍谷大学周辺の賃貸物件の取り扱い数は地域ナンバーワン。龍谷大学から徒歩1分なので、大学の授業の合間や授業終わりでもすぐに賃貸物件のご案内に行けますよ。もちろん龍谷大学の学生様以外にも、社会人の一人暮らしや、新婚、ご家族の方向けの賃貸物件もご紹介できます。伏見区深草エリアは、京阪・JR・地下鉄・近鉄と様々な沿線があり、商業施設も充実して、生活がとっても便利です。新婚様・ファミリー様にもオススメです。賃貸のエリッツ深草店には、龍大OBや伏見区で生まれ育ったスタッフが在籍しております。伏見区はもちろん、京都市内どのエリアでもお探しさせて頂きます。お部屋探し以外のことでもぜひご相談ください。ご来店スタッフ一同心よりお待ちしております。
龍谷大学生様・伏見区のお部屋探しは賃貸のエリッツ深草店にお任せ下さい。賃貸のエリッツ深草店は、伏見区の賃貸物件を豊富に取り揃えております。龍谷大学の正面にあり、龍谷大学周辺の賃貸物件の取り扱い数は地域ナンバーワン。龍谷大学から徒歩1分なので、大学の授業の合間や授業終わりでもすぐに賃貸物件のご案内に行けますよ。もちろん龍谷大学の学生様以外にも、社会人の一人暮らしや、新婚、ご家族の方向けの賃貸物件もご紹介できます。伏見区深草エリアは、京阪・JR・地下鉄・近鉄と様々な沿線があり、商業施設も充実して、生活がとっても便利です。新婚様・ファミリー様にもオススメです。賃貸のエリッツ深草店には、龍大OBや伏見区で生まれ育ったスタッフが在籍しております。伏見区はもちろん、京都市内どのエリアでもお探しさせて頂きます。お部屋探し以外のことでもぜひご相談ください。ご来店スタッフ一同心よりお待ちしております。
- 電話でお問合せ(通話無料)
お問合せ先 :株式会社エリッツ 深草店
不動産会社情報
株式会社エリッツ 深草店賃貸のエリッツ深草店

京都府京都市伏見区深草西浦町4丁目31番地
京阪本線 龍谷大前深草駅 徒歩5分
- 営業時間
- 10:00~19:00
- 定休日
- 水曜日(祝日を除く)、年末年始 ※部屋探しのお問い合わせは無休
優良店認定
伏見区のお部屋探しはエリッツ深草店へ。龍谷大学生様のお部屋探しは物件数NO,1のエリッツにお任せ下さい。新婚様向け物件も多数ございます。日本語学校の留学生も歓迎します。
- 店舗の特徴
- 引越し業者紹介可
- バリアフリー
- 社宅・寮物件取扱い
- オンライン相談可
- 保証人不要な物件あり
- 法人契約取扱い
電話でお問合せお客様の電話番号は不動産会社には通知されません
- 不動産会社に
つながります
お客様の電話番号は不動産会社に通知されません
- ※光IP電話、及びIP電話からはご利用になれません
- ※お電話によるお問合せは、店舗営業時間内にお願いします。つながらない場合は、お問合せフォームよりお問合せください
- ※不動産会社がお電話に出られなかった場合、お問合せいただいた後に不動産会社より折り返しのお電話がある場合がございます(お客様が非通知設定した場合は対象外です)
- ※株式会社LIFULLは電話会社が提供するサービスを介してお客様の発信者番号を受領後、折り返し専用の電話番号を発番してお問合せの不動産会社に通知します(お客様の発信者番号がお問合せの不動産会社に通知されることはございません)
- ※携帯電話からお問合せいただいた方に対し、株式会社LIFULLは電話会社が提供するメッセ―ジサービスを介してお客様の発信者番号を受領後、ショートメッセージ(SMS)またはLINE通知メッセージによるお問合せ内容に関する通知をお届けする場合があります
- ※お客様が通話中に不動産会社にお伝えになったお客様の個人情報及び、電話会社が発番する折り返し専用の電話番号は、お問合せ先不動産会社が資料送付・電子メール送信・電話連絡などの目的で保管する可能性があります。お問合せ先不動産会社が保管する個人情報の取扱いについては、各不動産会社に直接お問合せください
- ※株式会社LIFULLでは本サービスを円滑に運用するために、お客様の発信者番号をサービスご利用の控えとして一定期間保管いたします
- ※上記および株式会社LIFULLの個人情報の取扱い方針に同意のうえ、お電話ください
【LIFULL HOME'S物件番号】0110592-0296579【自社管理番号】9376-0105
オンライン対応
オンライン相談・IT重説に対応している物件です

「オンライン内見」「オンライン相談」「IT重説」とは?
物件の内見や不動産会社スタッフとの相談、契約前の重要事項説明をオンライン(ビデオ通話)で行うことができるサービスです。
オンライン内見
ビデオ通話で現地(物件)にいる不動産会社スタッフと映像・音声を使ってリアルタイムで会話しながら内見ができます。
オンライン相談
「物件について聞きたいことがある」など不動産会社スタッフへの相談もビデオ通話で行うことができます。
IT重説
契約前の重要事項説明(重説)をビデオ通話で行うことができます。
利用時の注意事項
- ビデオ通話については各不動産会社指定のものとなります。
- ビデオ通話利用時には通信が発生します。従量課金制通信サービスや通信量に上限があるネット回線・プランを利用する場合は、通信量にご注意ください。
- 通信速度やアプリの設定によってはビデオ通話の画質が低下することがあります。安定した画質で利用するためにも、Wi-Fi環境下での利用を推奨します。
- ご利用のビデオ通話アプリによっては、対象のOSやブラウザに制限がある場合があります。詳しくはお問合せ先不動産会社にご確認ください。
初期費用・月額費用をあわせて確認!この物件に住んだときの費用めやす
めやすを見るこの物件に住んだときの費用めやす
- 初期費用
- 月額費用
- 追加費用※ご確認ください
追加で費用が
かかる場合があります
必ずご確認ください
初期費用めやす約0円
追加で費用がかかります(※)敷金
0
- 礼金
69,000
賃料+共益費・管理費の1ヶ月分として換算
賃料の1ヶ月分+税として換算。不動産会社によって金額が異なるため正確な金額は不動産会社にお問合せください
※追加費用もチェック!
これらの項目以外にも費用がかかる場合があります。正確な金額は不動産会社にお問合せください。
- 初期費用
- 鍵交換費:15,000円
- 室内清掃費:不動産会社に要確認
- 火災保険費:不動産会社に要確認
- 月額費用
- 駐車場費:11,000円(税込)※契約任意
- その他
- 駐車場手数料(初回):12100円
- 電子契約手数料(初回):11000円
- ベルヴィクラブ(初回):38500円
- 保証会社
- 43、000円
不動産会社より
JR奈良線藤森駅から徒歩3分の物件です--パノラマ掲載--
JR奈良線藤森駅から徒歩3分の駅チカ物件です。また京阪本線墨染駅までも徒歩10分なので2WAY使えて非常に便利です。3点セパレートのお部屋なのでオススメです。是非、一度ご覧になられてはいかがでしょう。・インターネット無料 ハウスクリーニング33000円(退去時)・長栄スマイルパック(初回):25000円・その他(初回):1100円・プレート代(初回):3300円
- 保存する
- 共有する
- ※各種情報と現状に差異がある場合は、現状優先となります
- ※不動産会社が入力した情報を基に物件の位置を表示しています。詳しくは不動産会社までお問合せください
- ※不動産会社の方からの上記電話番号によるお問合せはお断りしております。こちら不動産会社詳細からお問合せください
- ※LIFULL HOME'Sは物件鮮度No.1を目指していきます。閲覧中の物件が「成約済である」「実際の物件情報と異なる点がある」などの場合、「掲載110番」からお問合せください
- ※QRコードは株式会社デンソーウェーブの登録商標です
したい暮らしのタグから探す
LIFULL HOME'S 地図・周辺情報
買い物
- セブンイレブン 深草大亀谷店
- フレスコ 墨染店
- ツルハドラッグ伏見直違橋店
- セブンイレブン 伏見深草藤森店
- フレスコスマイル 藤森店
グルメ
- カフェ・ド・クリエホピタル京都医療センター店
- ケンタッキーフライドチキン カナートモール伏見店
- なか卯 龍大前店
- にぎり長次郎 竹田店
- 和食さと 竹田店
育児・教育
- 西福寺幼児園
- 京都市立藤城小学校
- 京都市立桃山中学校
- 第二うづらこども園
- 京都市立藤ノ森小学校
医療
- 独立行政法人国立病院機構京都医療センター
- 京都市桃陽病院
- 社会医療法人岡本病院(財団)伏見岡本病院
- 医療法人清水会京都リハビリテーション病院
- 特定医療法人桃仁会桃仁会病院
公共施設・郵便局
- 京都深草大亀谷郵便局
- 京都市伏見中央図書館
- 京都市伏見区役所深草支所
- 京都藤森郵便局
- 京都市醍醐図書館
公園
- 伏見北堀公園
- 伏見桃山城運動公園
- 深草西浦南公園
- 竹田公園
- 深草墓園
利用可能な駅
- 徒歩10分以内
JR奈良線
- JR藤森駅徒歩3分
京阪本線
- 墨染駅徒歩10分
- すべての駅
京阪本線
- 藤森駅徒歩22分
- 丹波橋駅徒歩24分
- 龍谷大前深草駅徒歩31分
- 伏見桃山駅徒歩34分
- 伏見稲荷駅3.2km
- 中書島駅3.8km
近鉄京都線
- 近鉄丹波橋駅徒歩23分
- 伏見駅徒歩24分
- 桃山御陵前駅徒歩32分
- 竹田駅徒歩35分
JR奈良線
- 桃山駅徒歩30分
- 稲荷駅徒歩35分
- 六地蔵駅徒歩36分
京阪宇治線
- 桃山南口駅徒歩36分
- 六地蔵駅徒歩36分
- 観月橋駅徒歩36分
- 木幡駅3.8km
京都市営烏丸線
- くいな橋駅3.5km
京都地下鉄東西線
- 石田駅3.6km
- 周辺情報は2023年07月21日時点のものになります。
- 周辺情報は、参考情報としてのみご利用ください(周辺情報は、株式会社LIFULLが地図情報の提供事業者から提供を受けた情報とLIFULL HOME'Sの物件情報に基づき、独自の方法で抽出し提供しているものです。周辺情報は、移転や閉鎖等により情報が最新ではない、または正しくない場合がありますが、地図情報の提供事業者から提供された情報をそのまま周辺情報として表示しているため、正確かつ最新の情報へ修正することができないことがあります。)
- 周辺情報は、株式会社LIFULLが掲載するものであり、不動産物件情報を掲載している不動産会社が掲載するものではありません
- 交通情報の一部については、株式会社LIFULLが掲載するものであり、不動産物件情報を掲載している不動産会社が掲載するものではない場合があります。交通情報に関する質問などは株式会社LIFULLにお問合せください









